徐徐·咖啡师的家,成都/室内
本案屋主是一对咖啡店主,将兴趣作为工作,让屋主积累了独特的生活哲学:生活需要冲,但是缓冲,不必做到十分,尽八分的努力就好,剩下两分的力气,权当回旋的余地和养精蓄锐的资本,这是“八分”生活哲学,不过满、不偏执,一种和谐有弹性的生活态度。设计师将“八分哲学”对应到空间设计中,营造现代气息高级感的同时,融入温暖平静的生活氛围,实现居者工作与生活的自由转换。
The homeowner in this case is a pair of coffee shop owners, who use interest as work and let the homeowner accumulate a unique philosophy of life: life needs to forward, but slowly. You do not have to do it with 10 points, just make 8 points of effort; the remaining 2 points is the room of manoeuvre and the capital to recharge respectively. This is the “Eight Philosophy” of life, not full and not paranoid, just a harmonious and flexible attitude of life. The designer put the “Eight-point Philosophy” in the space design, creating a modern and high-level sense. While integrating a warm and peaceful living atmosphere, and realising the free transition between work and life of the residents.
▼空间概览,overall view of the space
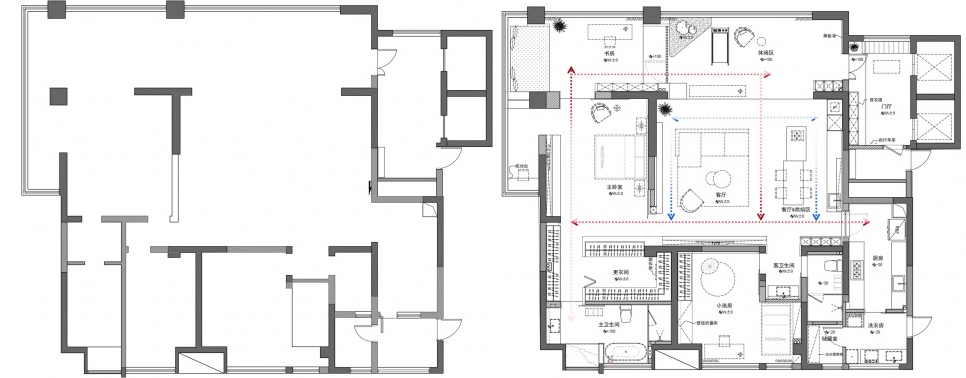
房间总面积220㎡,在做空间设计的思考时,根据夫妇俩的生活需求,打造更多开放式场所,借由功能串联出各空间之间“回字形”动线,满足空间灵动性,使之具有行走的自由体验感。夫妇俩喜欢聚会,分享美食,客厅/烘焙区/休闲区组成开阔明亮的公共区域,让每个人在做自己事的同时,充分实现互动性。
The total area of the room is 220 ㎡. When thinking about space design, we will create more open spaces according to the living needs of the couple. And connect the “back-shaped” movement lines between the spaces, satisfy the agility of the space and make it have a sense of freedom of walking.The couple like the party and food sharing. The living room/baking area/leisure area compose an open and bright public area, allowing each individual to fully realize the interaction while doing their own things.
▼入口区域,entrance area
▼开放明亮的门厅,the open and bright living room and foyer
▼餐厨空间,kitchen and dining area
▼室内细部,detailed view
▼客厅,living room
主卧采用开放式的“套间”设计概念,将衣帽间、梳妆台、书房、卫浴等功能性区域,串联叠加成一个完整的套间式空间。
The master bedroom adopts an open “suite” design concept, which combines functional areas such as cloakroom, dressing table, study room, bathroom, etc., to form a complete suite space.
▼主卧室套间,master suite
▼卧室细节,bedroom detailed view
▼衣帽间,cloakroom
▼浴室,bathroom
▼原始平面图,Original floor plan

项目名称:徐徐·咖啡师的家
设计事务所:璞珥空间设计
项目地址:中国成都
建筑面积:220㎡
设计师:李瀛
摄影:李恒
品牌提供:IMOLA蜜蜂砖、凡德罗家具、科定木饰面、科勒厨房、金鹰艾格地板
Project Name: Xuxu · The home of barista
Design Office: Puer Space Design
Project address: Chengdu, China
Building area: 220㎡
Designer: Li Ying
Photography: Li Heng
Brand offers: IMOLA, VAN DER RDHE Furniture, KEDING, Kohler, PEREC


























