艺术涂料概念店 ,四川/室内设计
本次呈现的作品是一家艺术涂料概念店,在应对国际品牌的艺术要求之下,针对产品本身的特性,设计师不断进行思考和尝试:借由画廊的艺术姿态的方式呈现,以涂料作画,以材质为介,通过理性精准的分割与塑造空间,打造独一无二的标示性展示空间。 极简 开放 低调 行云,这些特质有韵律的于场景内体现,利用艺术涂料材质在灯光的映射与烘托下,呈现的虚实对比,营造出艺术氛围浓厚的空间,得到更加丰富的精神体验。 梵高说过没有什么是不朽的,唯一不朽的是艺术传递出来的对人和世界的理解。我们所做的就是将这份不朽发扬 延申,创造更多丰富的可能性。
The work presented this time is an art paint concept store. In response to the artistic requirements of international brands, the designer has been constantly thinking and trying for the characteristics of the product itself: by presenting the art posture of the gallery, painting with paint, taking the material as the medium, and creating a unique symbolic display space through rational and accurate division and shaping of the space. Minimalist, open and low-key, these characteristics are rhythmically reflected in the scene. By using the virtual and real contrast of artistic paint materials under the reflection and contrast of lights, we create a space with a strong artistic atmosphere and get a richer spiritual experience. Van Gogh said that nothing is immortal. The only immortal thing is the understanding of people and the world conveyed by art. What we have done is to extend this immortality and create more possibilities.
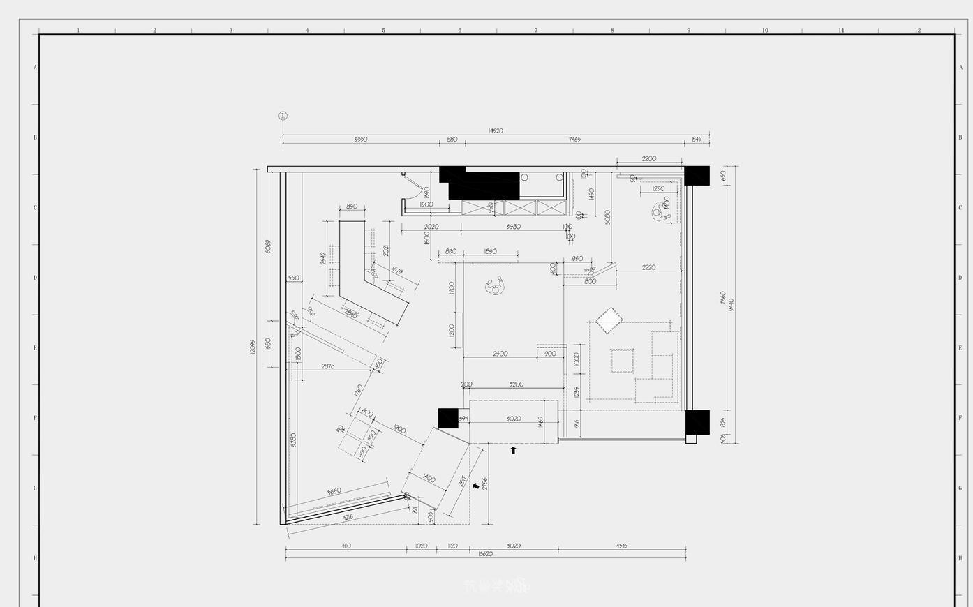
▼ 平面图,Plan

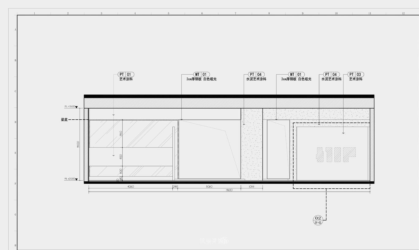
▼ 立面图,Elevation

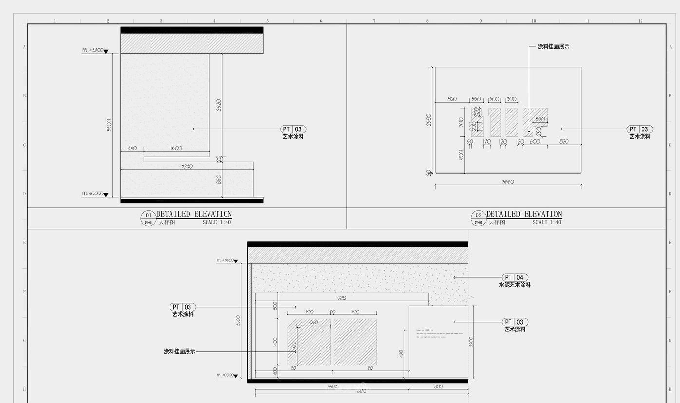
▼ 立面详图,Elevation detail




当空间不再被冠上既定名词,展厅内科调配性则相对活泼了,亦如“艺术”一样有深度,置放于角落的展示台,犹如空间指挥家,灯光加身,调动着整个空间的美学氛围。我们以涂料作画,材质为介,打造洋溢着艺术热枕的展示空间,诠释着对艺术涂料的精神笃信。
When the space is no longer crowned with the established term, the internal coordination of the exhibition hall is relatively lively, which is as deep as "art". The display stand placed in the corner is like a space commander, with lights added, mobilizing the aesthetic atmosphere of the whole space. We use paint and materials as the medium to create an exhibition space filled with art hot pillows, which interprets the spiritual faith in art paint.


极简,让我们拥有的更少,但却让核心细节更有关注度。它肯定包含了某些美学元素,以及灵活的空间路径和可变的交互可能性。
Minimalism makes us have less, but makes the core details more relevant. It certainly contains some aesthetic elements, as well as flexible spatial paths and variable interaction possibilities.




艺术涂料的功能性不予赘述,我要展现的是视觉上的质感冲击。低调的颜色柔和的光泽,在不同界面组合的空间形态下,激发不同的刺激与美感。
The functionality of art paint will not be repeated. What I want to show is the visual texture impact. The low-key color and soft luster stimulate different stimulation and aesthetic feeling under the spatial form of different interface combinations.

慢逛展厅,我们能设想的是每一位大众能够在驻足,行走中捕捉到光影的魅力,也借由光影的优势,利用虚实的对比,深浅交替的映射,引入聚焦于展品之上。
Walking slowly through the exhibition hall, we can imagine that every public can catch the charm of light and shadow while stopping and walking, and also take advantage of the advantages of light and shadow to introduce and focus on the exhibits by making use of the contrast between reality and reality and the mapping of depth and depth.



整个空间都散发出柔和的光芒,一抹亮眼的黄色在空间炸开,轻柔却不较弱,而是以深刻的力量洞穿心灵。
The whole space emits soft light. A bright yellow color explodes in the space. It is gentle but not weak, but penetrates the soul with profound power.



一盏灯具,在光影交叠的立体化呈现中,在稍挪视角的艺术化构图中,虽处角落却有了灵魂,化身成向阳而生的精灵。
A lamp, in the three-dimensional presentation of overlapping light and shadow, and in the artistic composition with a slightly shifted perspective, has a soul in the corner and turns into a spirit born in the sun.

项目信息
项目名称:艺术涂料概念店
文章分类:展示展览
设计公司:四川尚舍生活家具设计有限公司
项目地址:成都
项目规模:145㎡
设计师:杨一凡
项目标签:第十届筑巢奖参赛作品
Project information
Project Name: art coating concept store
Article category: Exhibition
Design company: Sichuan Shangshe living furniture design Co., Ltd
Project address: Chengdu
Project scale: 145 ㎡
Designer: Yang Yifan
Project tag: entries of the 10th nest building Award














