成都麓湖郎酒集团总部,成都/建筑
项目标签
2017年初,位于成都南郊麓湖社区的郎酒集团总部投入使用,设计自2008年到最终办公区建成运营过去十年,在当下一日千里的建设高潮下是罕见特例。本案总部坐落在麓湖生态城的核心地块,在中国成都南郊,原来是一片郊野丘陵。 整体开发通过引水灌溉,将场地广袤低位变身湖泊,隆起的地貌则化为一个个小岛,之间以路桥以及小艇驳岸相连,强力的人工改造地貌为水岸生态区。用地曾是水鸟栖息地,其展翅姿态与动感恰好与客户- 郎酒集团的雄心匹配,飞鸟的设计概念由此确定。
The Langjiu Headquarters, based out of the southern suburb of Chengdu known as Luhu Community, has been in open and occupied since early 2017. The project site is truly exceptional, and has been undergoing rapid improvement for the past ten years. Located at the core of the southern Chengdu suburb called the Luhu Eco-City, the site was originally farm land; but after undergoing substantial site work and irrigation the land was transformed into a finger lake dotted with small islands, all of which are connected with bridges and boats. One of the unique features of this site is that this eco-city is a wetland for migrating birds. The dynamic characteristic of the bird and its wings can be seen reflected in the “soaring” aspirations as that of the client- Langjiu Group. The headquarters design incorporates the special qualities of the bird in its design.
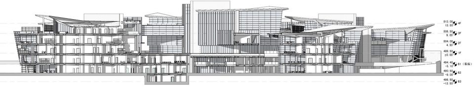
总部园区包括办公,会务,展厅,报告厅,员工餐厅,休闲配套等完整功能,遵循规划布局原则是:内部资源分配上为主要办公区争取最大看湖景观面;与外部环境则是建筑体量碎片化与景观化。通过实体模型研究,把办公及会务功能分为六幢3~5层楼布置,配套功能及停车设置在两层地库中,建筑轮廓追随地形高差沿湖错落起伏,保持岛屿形态下,也争取最大的自然采光面。
The headquarters park includes offices, conference centers, an exhibition hall, an auditorium, a staffs cafeteria, leisure environments and other functions. The main concept of the design is simple—collaborative office spaces are located in a way to give the most possible views, for those inside, of the surrounding lake and eco-city landscape. Based on thorough research on the entire 3D design model, the office and conference functions are divided into six towers with a three to five floor layout, supporting functions, such as parking spaces, are provided on the two underground podium floors. The outline of the building is consistent with the varying topography of the lake islands. This design allows for greatest possible amount of natural daylight.
漫步园区,建筑体量刻意低矮以露出树梢,转折错动的幕墙玻璃折射出重叠或片段的环境,外露的钢楼梯可以呈非对称角度挑出,与遮阳表皮构成了强烈的光影效果,低反光的锌钣屋顶呈现片段的翻动,成为远处的高层建筑有趣的景观造型。办公建筑设置整体抬起的人造地形下,不同的部门分部在6幢建筑间,以天桥及户外楼梯及地库连接为整体;半埋的地景建筑除了呼应岛屿状的标高变化,也以整体停车区及外挑在水面的员工餐厅及接待会所,提供了整个总部办公区的配套功能。
Walking through the park, the height of the building is deliberately reduced in order to properly view the tops of the surrounding trees. The design of the glass curtain wall has the effect of reflecting the surrounding environment, the shading of the asymmetric steel staircase gives a strong lighting and shadow contrast, the low reflective zinc roof provides a blurring of the landscape and cityscape beyond, all of which brings together a mingling of urban and landscape design. The whole office building is designed in order to emulate the surrounding terrain. From the interior, the multiple departments are distributed into the six buildings, connected with bridges and outdoor staircases and then the base into a whole. The half-buried terrain architecture, in addition to working in concert with the varying topography of the surrounding islands, also raises up the surface of the parking garage, staff dining room and reception center; furthermore, providing a complete set of functions for the headquarters office.
本案于2007年启动设计,是当时在中国西南地区首次完整应用BIM-Revit信息化建模设计的项目,先进三维的设计手段成功地实现了建筑师精确地对山地上复杂造型的施工控制。
Project started in 2007, was one of the earliest projects to design with BIM-Revit software. The BIM system provides architects much better support to review the whole construction process.
项目名称:成都麓湖郎酒集团总部
建筑公司:上海骏地建筑设计事务所股份有限公司
完成年份:2017-03
总建筑面积:36,000平米
项目地址:中国四川成都麓湖生态城
摄影师:存在建筑(www.arch-exist.com)
建筑公司:上海骏地建筑设计事务所股份有限公司
完成年份:2017-03
总建筑面积:36,000平米
项目地址:中国四川成都麓湖生态城
摄影师:存在建筑(www.arch-exist.com)
项目总监: 胡劲松
项目经理:冯硕
项目建筑师: 顾铮
本案设计人员:田甹,刘铖,严菁,王燕 , Steve Roberts (U.S.),Perry Jacobs (U.S.)
BIM:冯娅,赵莹
项目建筑师: 顾铮
本案设计人员:田甹,刘铖,严菁,王燕 , Steve Roberts (U.S.),Perry Jacobs (U.S.)
BIM:冯娅,赵莹
合作方
建筑设计顾问 :Chris Mitchell
建筑设计顾问 :Chris Mitchell
总部内场景观及规划:黄飞
外围沿河景观:GVL
外围沿河景观:GVL
怡境设计客户:成都万华集团
Project:Langjiu Group HQ at Luxelake, Chengdu
Architecture Firm:JUND
Constructed:2017-03
Total GFA:36,000SQM
Location:The Luxelake Eco town ,Chengdu, CHN http://www.google.cn/maps/@30.4658954,104.0676665,723m/data=!3m1!1e3
Photographer:Arch Exist (www.arch-exist.com)设计人员 Design Team:
Principal in Charge:Jason Hu
Project Manager:Jordan Feng ;
Project Architect: Gu Zheng
Team members:Tian Ping,Chris Liu,Yan Jing,Stella Wong (U.S.), Steve Roberts (U.S.),Perry Jacobs (U.S.)
BIM:Feng Ya, Ying Zhao;
Architecture Firm:JUND
Constructed:2017-03
Total GFA:36,000SQM
Location:The Luxelake Eco town ,Chengdu, CHN http://www.google.cn/maps/@30.4658954,104.0676665,723m/data=!3m1!1e3
Photographer:Arch Exist (www.arch-exist.com)设计人员 Design Team:
Principal in Charge:Jason Hu
Project Manager:Jordan Feng ;
Project Architect: Gu Zheng
Team members:Tian Ping,Chris Liu,Yan Jing,Stella Wong (U.S.), Steve Roberts (U.S.),Perry Jacobs (U.S.)
BIM:Feng Ya, Ying Zhao;
Cooperate Partners
Architecture:Chris Mitchell @Studios Architecture
landscape & planning: Fei Wong-Principal in charge @ Famous Garden Inc
Lakeside landscape:GVL
Architecture:Chris Mitchell @Studios Architecture
landscape & planning: Fei Wong-Principal in charge @ Famous Garden Inc
Lakeside landscape:GVL
Client:WideHorizon Group Chengdu, CHN

















































