屋上三间,上海 /建筑
项目标签
“屋上三间”作为一处小型会务接待空间,是为一家金融科技企业位于某科技园区的总部办公楼所做的屋顶花园设计的一部分。整个屋顶花园分布在有退台的三个不同楼层的屋顶上,而“屋上三间”所在的这层屋顶直接与北侧的高管办公区相连,并有机会在这层屋顶上创造一处与花园融为一体的景观建筑。
As a small conference and reception facility, “Three Rooms in a Roof Garden” is a part of the roof landscape that was designed for a financial technology enterprise located in its headquarters office building in a technology park. The whole garden is distributed on the roofs of three floors with different heights, and the roof of this “Three Rooms” is connected to the executive office area on the north side. In this project, we had the opportunity to create a new landscape architecture integrating with the garden.
我们在设计中借鉴的是唐代诗人白居易在《庐山草堂记》中所描述的“三间两柱,二室四牖”的草堂原型。这样的草堂原型在中国文人山水画传统中具有重要地位,其简朴而又融入山水的品格气质十分符合本项目的内在述求。我们希望以此在闹市的空中营造一处“隐于市”的桃花源。
We took our ideas from the prototype of the thatched cottage, described by the poet Bai Juyi in his Notes on Lushan Cottage in the Tang Dynasty. It was a three-room cattage defined by two rows of columns. Such a prototype of the cottage plays an important role in the tradition of Chinese scholarly landscape painting. Its character and temperament, simple and integrated into the landscape, are in line with the internal requirements of this project. We hope to build a “secret garden” hidden high in the downtown area.
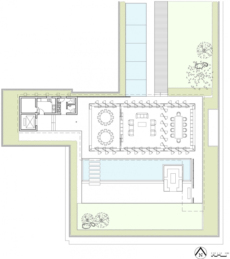
我们把三开间的建筑主体在这层屋顶居中稍抬高布置,正中较大的开间是接待室,东西两侧较小的开间分别是会议室和餐室,其中会议室和接待室之间以一排中轴旋开门作分隔,需要时可以连成一体使用。
We arranged the main volume of the three-room building in the center of this roof and elevates it slightly. The larger room in the centre is the reception space while the smaller rooms on the east and west sides are the meeting room and the dining room respectively. The conference room and reception room are separated by a row of central axis swing doors. The two rooms can be used as one when needed.
建筑的重檐形式很好地控制了尺度感,出挑的下层屋檐正好是环绕四周的檐廊,同时下层屋檐向西一直延伸至原有出屋面电梯处,成为一个宽大的开敞边厅,并覆盖住西北角的卫生间和小厨房等服务空间;而东侧檐廊向南延伸再折返成一段复廊,正好作为南庭水池的东侧端景。建筑南北两面都是连续的中轴旋开落地玻璃门,在合适的天气可以全部打开,这时“三间”于是南北通透,采阴纳阳,与庭园真正融为一体。
The double eaves of the building controls the sense of scale well. The lower eaves form a semi-outdoor corridor around the building and they extend westward to the original elevator, becoming a wide open side hall and covering service spaces such as the toilet and kitchenette in the northwest corner. The east side corridor extends southward, forming a section of double corridor separated by wooden grilles. It serves as a scenic spot on the east end of the south courtyard pool. Continuous floor-to-ceiling glass doors, which rotates on its axis, on the north and south sides of the building can be fully opened in the right weather. At this moment, the “three rooms” get good ventilation and lighting, and really integrate with the garden.
建筑抬高的架空平台下正好容纳空调地送风系统,而建筑主体采用纤细的轻钢结构,辅以温暖沉着的木质内外饰面。极致化处理的轻盈重檐屋顶让尺度宜人的建筑又具有了一种自由感。上层檐配有大天窗的钛锌版屋面和下层檐的阳光板屋面相配合弱化了建筑的体量,而其下统一的实木格栅平顶让建筑内外覆盖下都光线自然柔和。
The elevated platform of the building accommodates the ground air supply system of the air conditioning, while the main part of the building is made of a slim light steel structure, and complemented by a warm wooden interior and exterior finish. The extreme treatment of the lightweight double eaves roof brings people a sense of freedom with its pleasant scale. The roof of the upper eave, which is covered by zinc sheet, is equipped with large skylight, while the roof of the lower eave is covered with polycarbonate panel. The roof with double eaves weakens the volume of the building. The unified flat ceiling of solid timber grille under the eaves makes the light inside and outside the building more natural and soft.
项目名称:屋上三间
建筑师:周蔚+张斌 / 致正建筑工作室
主持建筑师: 张斌
项目建筑师:金燕琳(建筑)、何茜(景观)
设计团队:李姿娜、徐跃、李金武、查东尼、隋璐(实习)
结构设计:和作结构建筑研究所
设计时间:2016.07-2016.11
建造时间:2016.11- 2017.11
基地面积:3115 m2
占地面积:275 m2
建筑面积:244 m2
结构形式:轻钢结构
建筑层数:1层
主要用途:会晤
主要用材:型钢、铝材、钛锌板、阳光板、平板玻璃、实木板及实木贴面板、火山岩板、花岗岩板、瓷砖
造价:建筑200万,景观311万
摄影师:CreatAR Images
建筑师:周蔚+张斌 / 致正建筑工作室
主持建筑师: 张斌
项目建筑师:金燕琳(建筑)、何茜(景观)
设计团队:李姿娜、徐跃、李金武、查东尼、隋璐(实习)
结构设计:和作结构建筑研究所
设计时间:2016.07-2016.11
建造时间:2016.11- 2017.11
基地面积:3115 m2
占地面积:275 m2
建筑面积:244 m2
结构形式:轻钢结构
建筑层数:1层
主要用途:会晤
主要用材:型钢、铝材、钛锌板、阳光板、平板玻璃、实木板及实木贴面板、火山岩板、花岗岩板、瓷砖
造价:建筑200万,景观311万
摄影师:CreatAR Images
Project Name: Three Rooms in a Roof Garden, Xuhui, Shanghai
Architect: ZHOU Wei + ZHANG Bin / Atelier Z+
Partner in Charge: ZHANG Bin
Project Architects: JIN Yanlin (Architecture Design), HE Qian (Landscape Design)
Project Team: LI Zina, XU Yue, LI Jinwu, ZHA Dongni, SUI Lu(intern)
Structure Design: AND Institute of Structural Architecture
Design Period: Jul.2016-Nov.2016
Construction Period: Nov.2016- Nov.2017
Site Area: 3115 m2
Building Area: 275 m2
Gross Floor Area: 244 m2
Structure: Light Steel Structure;1 Story
Principal Use: Meeting
Primary Materials: Steel structure, Aluminum Material, Zinc Sheet, Polycarbonate Panel, Plate Glass, Solid board and solid wood veneer, Volcanic Rock Slab, Granite Slab , Ceramic Tile
Cost: 2,000,000 Yuan RMB for Building; 3,110,000 Yuan RMB for Landscape
Photography: CreatAR Images
Architect: ZHOU Wei + ZHANG Bin / Atelier Z+
Partner in Charge: ZHANG Bin
Project Architects: JIN Yanlin (Architecture Design), HE Qian (Landscape Design)
Project Team: LI Zina, XU Yue, LI Jinwu, ZHA Dongni, SUI Lu(intern)
Structure Design: AND Institute of Structural Architecture
Design Period: Jul.2016-Nov.2016
Construction Period: Nov.2016- Nov.2017
Site Area: 3115 m2
Building Area: 275 m2
Gross Floor Area: 244 m2
Structure: Light Steel Structure;1 Story
Principal Use: Meeting
Primary Materials: Steel structure, Aluminum Material, Zinc Sheet, Polycarbonate Panel, Plate Glass, Solid board and solid wood veneer, Volcanic Rock Slab, Granite Slab , Ceramic Tile
Cost: 2,000,000 Yuan RMB for Building; 3,110,000 Yuan RMB for Landscape
Photography: CreatAR Images






































