陵江驿渡·三胜车渡服务站,重庆 / 建筑
三土渡口,临江两岸
Santu Ferry on both sides of the river
穿城而过的长江、嘉陵江既造就了重庆“山水相依”的独特城市格局和地理景观,也给城市交通带来了诸多不便。在人力、技术和资金相对匮乏的岁月里,车渡成为往返于城市各区重要的车辆交通工具和物质输送通道。然而,近几十年来随着一座座跨江大桥的建立,车渡这一传统交通载体的职能日渐式微,重庆以往运营的15个车渡码头已逐渐停运。往返于三胜、水土两地之间的三土渡口成为重庆主城区唯一在航的公益性车渡渡口。
The Yangtze River and Jialing River that pass through the city have not only created Chongqing’s unique urban pattern and landscape of “mountain and river interdependence”, but also brought a lot of inconvenience to urban traffic. In the years when manpower, technology, and funds were relatively scarce, car ferry became an important vehicle and material transportation channel to the city. However, in recent decades, with the establishment of bridges across the river, the function of the car ferry, a traditional transportation carrier, has gradually declined. The 15 the car ferry previously operated in Chongqing have gradually ceased operations. The Santu Ferry, which runs between Sansheng and Shuitu, has become the only public car ferry used in the main urban area of Chongqing.
位于三土渡口西岸的北碚区施家梁镇三胜村是古时重庆通向合川的要道之一。上世纪60年代,随着川仪17厂的进驻繁华一时,也因17厂的衰落而逐渐沉寂。东岸是北碚区水土镇,清康熙年间设立水土铺,后称水土沱。水土镇曾是工商重镇,有诗“白天千人躬首,夜晚万盏明灯”来形容水土镇的繁华。民国陪都时期中央警卫署落户于此,建国以后水土镇是江北县人民政府驻地。县政府办公楼、人民大礼堂等历史建筑遗址均保留完好。
Sansheng Village, Shijialiang Town, Beibei District, located on the west bank of Santu Ferry Port, was one of the main pass from Chongqing to Hechuan in ancient times. In the 1960s, with the establishment of No. 17 Chuanyi Factory, Santu Ferry became vibrant, and became silent with the the decline of Factory No. 17 gradually. The Shuituo Townis on the east bankin Beibei District. During the Kangxi period of the Qing Dynasty, a water and soil shop was set up, which was called Shuitutuo later. Shuitu Town was once an important industrial and commercial town. During the period of the Republic of China, the Central Guard Office settled here. After the founding of the People’s Republic of China, Shuitu Town was the seat of the People’s Government of Jiangbei County. The office building of the National People’s Congress, the Great Hall of the People and other historical architectural sites are well preserved.
随着不远处水土嘉陵江大桥的即将竣工,重庆主城最后一处车渡渡口可能也会就此消逝在历史的长河中。然而,渡口码头是老重庆历史印记中不可或缺的一部分,尽管车渡作为交通工具的功能会逐渐减弱,但是将这一份老城记忆留下,通过合理的功能定位与产业策划使其重获新生,并激活带动沿线村镇的复兴与发展,或许是一条“以点连线,以线带面”的有效路径。
With the completion of the Jialing River Bridge not far away, the last car ferry crossing in the main city of Chongqing may also disappear in the history. However, the ferry terminal is an indispensable part of the historical of the old Chongqing. Although the function of the car ferry as a means of transportation will gradually weaken, the memory of this old city will be left behind, and it will be restored through reasonable functional positioning and industrial planning,to rejuvenating and activating the revival and development of villages and towns along the route, which could be an effective method called “connecting points with lines, and areas with lines”.
曾经与车渡面临相同困境的还有重庆另一种独特的交通工具——过江索道。于上世纪八十年代初期建成并使用的过江索道辉煌一时,同样也是随着重庆城市交通格局的日新月异,过江索道的客运功能逐步减弱。为改善这一局面,重庆索道公司将过江索道从单一的索道交通服务转型为索道与城市交通旅游结合的模式,使长江索道成为重庆城市旅游的特色景点。
Once faced with the same dilemma as car ferry, there is another unique means of transportation in Chongqing-the cableway across the river. The river-crossing cableway built and used in the early 1980s was glorious for a while, but also with the rapid changes in the urban traffic pattern of Chongqing, the transport function of the river-crossing cableway gradually weakened. In order to improve this situation, the Chongqing Ropeway Company has transformed the cableway across the river from a single transportation service to a combination of transportation and tourism, making the Yangtze River Ropeway a popular tourist attraction in Chongqing.
有着相似发展轨迹的车渡或许能从长江索道的转型中获得启发。以战备码头这一体验旅游背景为依托,充分发挥其“一线临江”的景观优势,并结合两岸的自然、人文等资源,将这一面临淘汰的传统交通方式与文旅产业结合,可以打破现有物质空间的限制,在留住这一老城记忆的同时,利用其历史、社会、文化等因素,打造一处新的城市旅游景点。
The Car ferry may be inspired by the transformation of the Yangtze River Cableway. Relying on the experience tourism background of the combat readiness wharf, offer good view of river, and combining the natural and human resources on both sides of the strait, combining this traditional mode of transportation that is facing elimination with the cultural tourism industry can break The existing material space constraints, while retaining the memory of this old city, use its historical, social, cultural and other factors to create a new urban tourist attraction.
立于江岸,功能复合
Standing on the river bank with complex functions
在与车渡管理站沟通之后,我们寻求以建筑的方式介入这一转型过程,决定为三土码头建造一个配套服务的公共空间,为市民及游客提供文化展示和休闲的场所,同时解决部分船员的食宿问题,以此来体验车渡,将原汁原味的老重庆文化延续,从而带动两岸的复兴和发展。
After communicating with the Car Ferry Management Station, we sought to intervene in this transformation process in an architectural way, and decided to build a public space with supporting services for the Santu Wharf, providing a place for cultural display and leisure for citizens and tourists, and solving part of the crew In order to experience the car crossing, the original old Chongqing culture will continue to promote the revival and development of both sides of the strait.
项目位于嘉陵江西岸的一处由条石垒砌的崖壁之上,地块紧邻经由三胜码头驶上车渡船的施家三胜公路。场地面积只有150平方米左右,为满足多种空间复合的多样性需求,我们将建筑依场地形状南北向为长边摆放,东面临江,西面靠山,最终用三个基本长方体块以上下错落叠加的组合方式而矗立于场地中。
The project is located on a cliff on the west bank of the Jialing River, and the land is close to the Shijia Sansheng Highway that takes the car and ferry via Sansheng Wharf. The site area is only about 150 square meters. In order to meet the diverse needs of multiple spaces, we placed the building on the long side in the north-south direction according to the shape of the site, facing the river on the east and backing on the west, and finally used more than three basic cuboid blocks. It stands on the site in a combination of staggered and superimposed patterns.
▼生成过程动图,Generating process
南北向大小不同、交错布置的三个体块化解了场地的局促紧张,出挑的体量形成了多个灰空间,丰富了空间层次及立面构成。
The three blocks of different sizes and staggered arrangement in the north-south direction dissolve the tightness of the site. The overhanging volume forms multiple gray spaces, enriching the spatial hierarchy and facade composition.
底层体块西侧为建筑的主入口部分,虚实相结合打破了空间的呆板沉闷,以开放的空间感受引入人流,同时可减少空间狭长感,增强建筑的功能实用性。
The west side of the ground floor block is the main entrance part of the building. The combination of virtual and real breaks the dullness of the space and introduces the flow of people with an open space experience. At the same time, it can reduce the sense of narrow space and enhance the functional and practicality of the building.
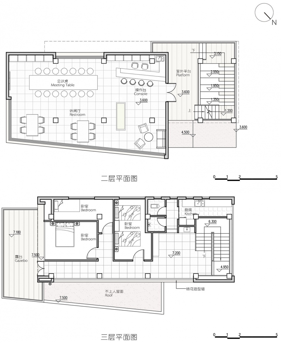
在功能策划上,我们将第一层作为对外开放的文化展示空间,展示车渡这一传统交通工具的历史发展过程;第二层作为市民休闲的区域,提供茶水、WIFI、充电宝、简单医疗救助等便民服务,满足建筑作为服务站的开放性和公众参与性;第三层则是为车渡船员提供生活起居的场所。
In terms of function planning, we use the first floor as a cultural exhibition space open to the outside world to showcase the historical development of the traditional means of transportation; the second floor is a leisure area for citizens, providing tea, WIFI, power banks, and simple medical care. Convenient services such as rescue meet the openness and public participation of the building as a service station; the third floor is to provide a living place for the car and ferry crew.
延续肌理,融于市井
Continue the texture and blend in the market
建筑形态上,通过场地肌理的分析,我们希望建筑与周边老旧民房能产生形态上的相关性,试图将新的手法赋予山地建筑的传统材料、色彩、形式之上,将错叠的坡屋顶、吊脚楼、踏步等元素进行重新定义,形成新的形态视觉和文脉属性,使得建筑与环境融为一体,与渡口沿岸线相呼应,激发场地的传统空间活力,最终以开放的姿态迎接市民和游客。
In terms of architectural form, through the analysis of the site texture, we hope that the building can have a morphological correlation with the surrounding old houses, and try to give new techniques to the traditional materials, colors, and forms of mountain buildings, and the staggered sloped roofs Redefine elements such as stilts, stilts, and steps to form a new form of vision and contextual attributes, which integrate the architecture and the environment, echo the coastline of the ferry, stimulate the traditional space vitality of the site, and finally welcome the citizens and the public with an open attitude. Tourists.
建筑屋顶延续当地民居传统坡屋顶的形态,但使用现代建筑的材料和体量,体现传统元素与现代元素相结合。底层除卫生间以外全部架空形成完全开放的空间,为文化展示空间提供更开敞的空间感受。在正对入口的位置设计了一个突出的垂直于江面方向的坡屋顶框形成景框,从入口处就可以直面嘉陵江以及对岸的远山。二层的体量经过扭转获得了更好的观景面,临江面全部采用落地玻璃窗,最大限度的保留了俯览江面的视角。
The roof of the building continues the traditional sloping roof form of the local residential houses, but uses the materials and volumes of modern buildings to reflect the combination of traditional and modern elements. Except for the bathroom, the ground floor is all overhead to form a completely open space, providing a more open space experience for the cultural exhibition space. A protruding sloping roof frame perpendicular to the direction of the river surface is designed at the position directly opposite the entrance to form a frame of view. From the entrance, you can directly face the Jialing River and the distant mountains on the opposite bank. The volume on the second floor has been twisted to obtain a better viewing surface, and the riverside surface is all made of floor-to-ceiling glass windows, which preserves the viewing angle of the river surface to the greatest extent.
▼剖透视图,sections
同时,二层体块的错动在一层北侧形成了通高空间用作楼梯间,在三层南侧形成出挑观景平台。楼梯间同样没有围护结构成为开敞空间,这一设计使得楼梯间也拥有了开敞的观景面,增加了建筑的虚实对比,使得形体更加轻盈,仿佛飘浮在场地之上。
At the same time, the dislocation of the second-story volume creates a full-height space on the north side of the first floor for use as a stairwell, and an overhanging viewing platform on the south side of the third floor. The stairwell also does not have an enclosure structure to become an open space. This design makes the stairwell also have an open viewing surface, which increases the contrast between the virtual and the reality of the building, making the shape more light, as if floating on the site.
三层则是一个相对纯粹的坡屋顶盒子,与背景的传统民居遥相呼应。
The third floor is a relatively pure sloping roof box, echoing the traditional houses in the background.
建筑主体结构选用全钢框架结构,外围护结构则以水泥纤维板为主,部分墙体采用青砖砌成的传统砖花墙。采用部分砖花墙而不是大面积的落地玻璃窗的处理既保证了建筑体量的完整性,镂空的部分又保证了建筑内部的采光,并且能形成独特的光影效果。
The main structure of the building adopts an all-steel frame structure, the outer protective structure is mainly made of cement fiberboard, and part of the wall adopts a traditional brick wall made of blue bricks. The use of partial brick walls instead of large-area floor-to-ceiling glass windows not only ensures the integrity of the building volume, the hollowed out part also ensures the lighting inside the building, and can form a unique light and shadow effect.
建筑灰色的整体进一步使得建筑相对于周边建筑高大的尺度有所消解,也与三胜村整体的色调相符,让建筑如本身生长在江边的巨石一般,低调地伫立在嘉陵江畔,体现了独特的场所精神。
The overall grayness of the building further dissolves the building relative to the tall scale of the surrounding buildings, and also matches the overall tone of Sansheng Village, making the building stand like a boulder on the riverside, standing low-key by the Jialing River, reflecting its uniqueness The spirit of the place.
创造契机,挑战制约
Create opportunities and challenge constraints
为解决条石垒成的将近11米的崖壁高差,我们用一座宛如山城步道的折行钢结构楼梯来连接建筑底层和位于江边的室外停车场。作为整个建筑的前景,打破了建筑本身体量的秩序,在拾阶而上的行进中以达到不同的空间体验。
In order to solve the nearly 11-meter cliff height difference formed by the stone barrier, we used a folded steel structure staircase like a mountain walkway to connect the ground floor of the building and the outdoor parking lot by the river. As the prospect of the entire building, it breaks the order of the physical volume of the building, and achieves different spatial experiences in the process of climbing up the stairs.
为尽快建成车渡服务站并投入使用,建筑整体采用了装配式全钢结构。在保证施工速度的同时,暴露出来的黑色钢结构与灰色的水泥纤维板相协调,体现出现代建筑的要素,并且钢结构的设计也让二层的悬挑结构部分厚重感减少。
In order to complete the Car Ferry Service Station and put it into use as soon as possible, the building adopts a fabricated all-steel structure as a whole. While ensuring the construction speed, the exposed black steel structure is coordinated with the gray cement fiber board, reflecting the elements of modern architecture, and the design of the steel structure also reduces the weight of the second-story cantilever structure.
建筑“一线临江”的地理位置带来了极佳的观景视野的同时我们也在思考可能遇到的极大挑战。为应对50年一遇的汛期水位线上涨可能淹没低层这一风险,建筑首层全部架空,在功能上设定为布置较为灵活的展厅,在洪峰过境时方便将室内尽早清空并撤离人员。水泥纤维板以及水磨石地面等材料的选择也是为了被淹没后不至于遭受颠覆性的破坏。
The geographical location of the building “frontier by the river” brings an excellent view of the scenery, and at the same time we are also thinking about the great challenges that may be encountered. In order to deal with the risk that the rising water level during the flood season once in 50 years may inundate the lower floors, the first floor of the building is completely raised and is functionally set as a more flexible exhibition hall. It is convenient to empty the room and evacuate people as soon as possible when the flood peak passes. The choice of materials such as cement fiberboard and terrazzo floor is also to avoid subversive damage after being submerged.
成效反馈,持续助力
Effect feedback and continuous assistance
以公共空间作为触媒,以引导而非主导的方式逐步推进周边地区的发展,是当下建筑学介入乡村振兴的一种新模式。通过建设并完善公共空间和公共设施的同时,提高乡村居民的居住和生活水平,并引导乡村产业的逐步转型以及民居的建设,是使乡村和城市边远地区重新焕发活力的长远之策。
Using public space as a catalyst and gradually advancing the development of the surrounding areas in a guided rather than dominant manner is a new mode of architecture intervention in rural revitalization. By constructing and improving public spaces and public facilities, improving the living and living standards of rural residents, and guiding the gradual transformation of rural industries and the construction of residential buildings is a long-term strategy for revitalizing rural and remote urban areas.
在三胜车渡服务站建成并投入使用后,三土车渡的运载量开始逐步回暖,周末以此为目的地前来旅游打卡的市民也络绎不绝。以此为依托,我们又参与到了车渡服务站二期的建筑设计及后街的沿街建筑产业策划与改造项目中,用“以点连线,以线带面”的模式,持续并渐进地推进村里风貌的改变。建成之后,这里将成为以车渡文化为主的一个复合型公共休闲服务区域,让三土车渡自身发展的生态链得到有机的延续。
After the Sansheng Car Ferry Service Station was completed and put into use, the carrying capacity of the Santu Car Ferry began to pick up gradually, and there was an endless stream of citizens who came to visitthe building as a destination on weekends. Relying on this, we have participated in the architectural design of the second phase of the Car Ferry Service Station, and the planning and renovation project of the construction industry along the street in the back street. The model of “connecting with points and connecting with lines” is used to continuously and gradually promote the changes of the village. After completion, it will become a complex public leisure service area with the car ferry culture as the mainstay, allowing the ecological chain of Santu Car Ferry’s own development to be organically continued.
项目名称:陵江驿渡·三胜车渡服务站
项目地址:中国重庆市北碚区施家梁镇三胜村三胜渡口
项目面积:430平方米
建筑设计:重庆悦集建筑设计事务所
室内设计:重庆悦集建筑设计事务所
灯光设计:重庆悦集建筑设计事务所
联系邮箱:115075555@qq.com
主创团队:田琦 李骏 何飙
设计团队:李涛 张茜 翁钰展 于春晓 林岭 谭梦
施工图设计:重庆何方城市规划设计有限公司第一分公司
钢结构设计:王立彬 徐富洪
主要材质:钢材、水泥纤维板、水磨石、青砖
建筑摄影:三棱镜建筑景观摄影(刘国畅)、图里摄影、田琦
设计时间:2018.08-2019.01
建造时间:2019.02-2019.10
Project Name: Sansheng Ferry Service Station
Project location:Sansheng Village, Shijialiang Town, Beibei District, Chongqing City
Area (square meters):800m²
Architecture Design: Yueji Design
Indoor Design: Yueji Design
Light Design: Yueji Design
E-mail:115075555@qq.com
Leader designer: Tian Qi, Li Jun, He Biao
Design Team: Li Tao, Zhang Qian, Weng Yuzhan, Yu Chunxiao, Lin Ling, Tan Meng
Construction Design:HEFANG Corporation
Steel Structure Design: Wang Libin,Xu Fuhong
Materials: Steel, Cement Fiberboard, Terrazzo, Blue Brick
Photo credits:Liu Guochang, Tuli Photography, Tian Qi
Design year: 2018.08-2019.01
Construction Year: 2019.02-2019.10





























































