惠阳第七中学及附属小学,广东 / 建筑
三年前,我们接到这座学校的设计工作,客户提的要求简单而明确:“要好、要经济”!
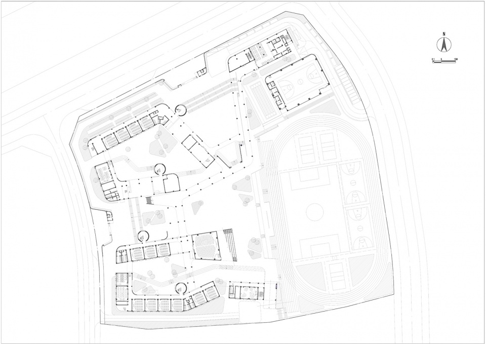
这是一座九年一贯制中小学,基地不远处有起伏的山峦,北侧是一条小河,小河以北已有部分住宅建成,校园未来会被住宅楼盘和公共设施环绕。目前,校园基地孤独的身处乡野之中。我心目中,这座校园应该具有某种自然属性,在未来能让人忆起这里曾是一片山水田园。
When we received the design project for the school three years ago, the client’s request was simple and clear: High quality & cost-effective!
This is a nine-year consistent primary and secondary school, with rolling hills not far away and a narrow river in the north. Some residences have been built to the north of the river. In the future, the campus will be surrounded by residential communities and public facilities. But when we did the design, the plot was alone in the countryside. So in our mind, this school should be attached with some kind of natural attributes, which will remind people that it was once a landscape garden.
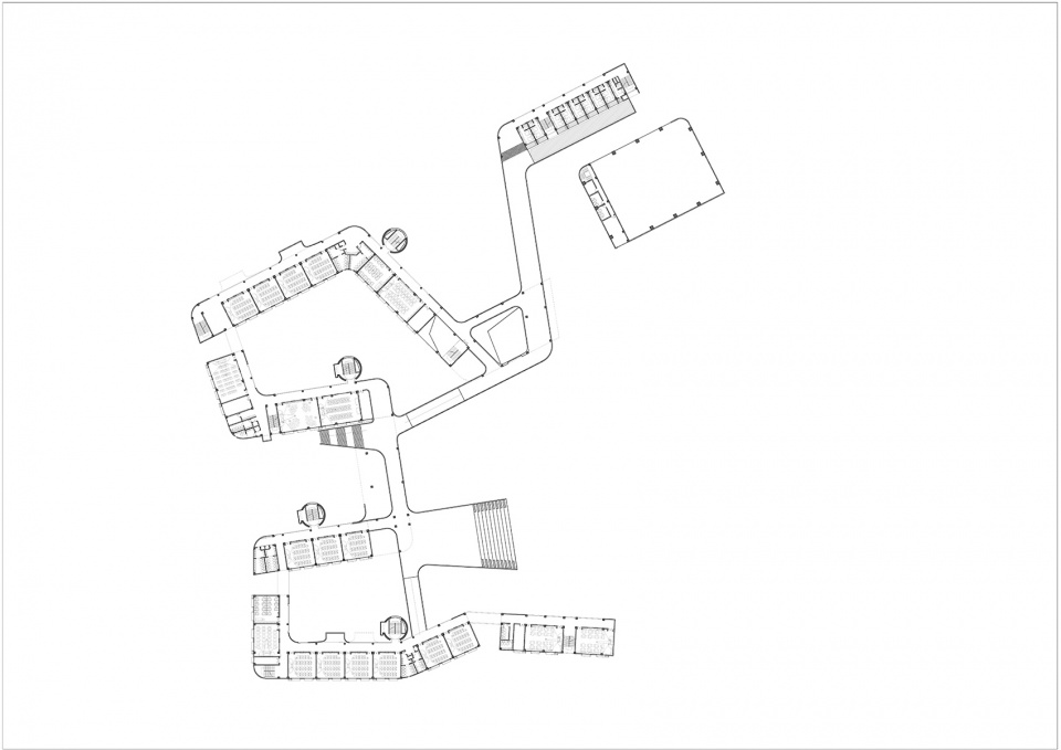
我们设计了一条蜿蜒跌宕的线性建筑,与山峦、小河对话,并把校园分隔为一个个半开放的庭院,取意“九曲园”。建筑群面向东侧运动场呈开敞的姿态,让校园内部空间联通渗透;而在北侧和西侧主要道路面,建筑贴线塑造了街廓边界,并自然形成两个内凹的院落,分别作为小学和中学主入口。中小学分为两个区域,日常上下学互不干扰。
We designed meandering linear buildings that were in harmony with the mountains and rivers. They divided the campus into semi-open courtyards named “Nine Turnings Garden”(Jiuqu Yuan in Chinese). The buildings face the sports field on the east side in an open posture, allowing the internal space of the campus to connect and penetrate with each areas. Along the main roads on north and west sides, the buildings’ outline shape the street’s outline boundary and naturally form two concave courtyards, which respectively serve as the main entrances to the primary school and secondary school. With two separated divisions, the daily commuting of the primary school and secondary school does not interfere with each other.
经济性策略
Cost-effective strategy
惠阳紧邻深圳,但这座学校的单方造价不到同期深圳中小学的三分之二。在设计之初,我们制定了几个应对低成本的设计策略。如低限度的使用异形或曲线;不用任何昂贵的结构和构造做法;在满足通风采光的前提下控制窗墙比,减少窗的面积;不做不必要的装饰元素,不依赖材料品质和精美细节,用纯空间形体叙事等等。
——为响应以上策略,我们选择了表现体积感、弱化建构表达、并富有抽象性的白色体量,这样的做法也具备细节容错、容差的能力。
Huiyang is close to Shenzhen, but the cost per-square meter of this project is less than two-thirds of that of primary and secondary schools in Shenzhen in the same period. At the beginning of the design, we developed several design strategies to reduce the costs. For example, we minimized the usage of irregular shapes and curves; We avoided any expensive structures and construction practices; Under the premise of ensuring good ventilation and lighting, the window-wall ratio is controlled to reduce the area of the window; Instead of using unnecessary decorative elements, exquisite material and details, we used pure spatial forms to narrate our design concept.
In response to the above strategies, we chose abstract white mass shapes that express the feeling of volume, and weaken the construction expression. It enabled us with the ability to tolerate errors and detail differences in the design process.
低成本策略的另一个关注点是控制建筑总量,需要在满足54班规模下把总建筑面积控制在最小。我们无法像深圳的中小学那样设计宽大的走廊和阔绰的架空层,但孩子们同样需要足够的活动场地,怎么办?
——除基本的走廊和少量架空层外,我们采用了立体分散、突出便利性的策略,平衡分配孩子们的活动空间。连续跌落的屋顶,创造了高楼层孩子们同层可达的活动平台;拱廊及报告厅的二层屋面,弥补了中间楼层孩子们的活动空间;建筑间的庭院,自然满足了低楼层孩子们的活动需要,等等。
Another concern of the low-cost strategies is to control the total amount of floor areas. We need to minimalize GFA with minimum classes of 54. Unlike the projects of primary and secondary schools in Shenzhen, we could not design large corridors and spacious overhead floors in the project. However, children still need enough playground. What should we do?
Including basic corridors and a small number of overhead floors, we adopted a strategy of three-dimensional dispersion and highlighting convenience to balance the allocation of children’s activity space. For example, the continuous roofs create activity platforms that are accessible by children from the high floors; the second-floor roofs of the arcade and lecture hall provide activity space for children on the intermediate floors; the courtyard between buildings naturally meets the needs of activities from children on the lower floors.
低成本的建筑往往会逼着你用更诚实的设计思路去应对,诚实的空间怎样实现高质量成为设计最突出的挑战,这是校园建筑成为“好”的关键。多年来,在建筑空间塑造上,我一直在思考两个问题——气候与文化,我希望把两者梳理为一条完整的线索,创造生动又浑然一体的校园。针对本项目的场地和特质,我想到两个词,洞穴与园林。
Limited budget often forces you to use more practical design ideas. How to achieve high quality with realistic space is the most prominent challenge of design, which is as well the key to a successful campus design. Over the years, in the shaping of architectural space, I have been thinking about two issues – Climate and Culture, which I hope to become a complete clue to create a vivid and integrated campus. In response to the site and characteristics of this project, two words came to me — “Caves and Gardens” .
洞穴——对气候的回应
Caves–a response to the climate issue
南方的中小学校园本身就是低碳节能建筑,因为教室主要依靠自然采光和通风,走廊、楼梯等均为半室外空间,能耗低。但节能不代表舒适,岭南不缺阳光,缺的是阴凉的场所。老师孩子们常用的外走廊、楼梯、架空层等空间很浅,很容易被阳光晒透,很多时候舒适度不高。
再看岭南传统民居,厚墙小窗、窄天井的做法却能创造更多的阴凉,如同自然界的洞穴。洞穴不仅有顶,外墙面开口也相对少,与我们所说的灰空间有所不同,开放度高的洞穴可以是阴凉又通风的空间。
The primary and secondary school campuses in the south of China are low-carbon energy-saving buildings, because most classrooms have natural lighting and ventilation, semi-outer space like corridors and stairs. So teaching buildings are low energy consumption ones. However, they are not necessarily comfortable. For example, Lingnan areas does not lack sunshine, they lack shady space. The open corridors, stairs, overhead floors often are very narrow, so they would be easily exposed to the sunshine. Most of the time, these space are not very comfortable for teachers and students.
However, in traditional dwellings in Lingnan, thick walls, small windows and narrow courtyards can provide cool and shady space, which is similar to caves in natural environment. Caves have roofs, and relatively few openings on the walls. Unlike what we call gray spaces, caves with high openness can be cool and ventilated spaces.
我们尝试用洞穴的逻辑来设计建筑,在教学楼外廊、首层拱廊、部分楼梯、体育馆立面等处,外立面先被实墙面包裹,再有限度的挖出洞口。教学楼东西向外廊日晒严重,采用实墙开小洞的处理;北向外廊日晒少,则洞口大幅度敞开;南向和东西向教室窗洞有遮阳的必要,则增加了遮阳窗套,并把空调室外机位整合在内。实际建成后,建筑内各处空间亮度适宜,且阴凉舒适。在有意识控制下,建筑呈现出洞穴般的形态。
We tried to use the logic of caves to design buildings in this project. In the design of some parts of architectures, such as the teaching building verandas, the arcade of the first floor, some part of the stairs, and the stadium, we use solid walls and limited openings to form their facades. The east-west verandas of the teaching building are seriously exposed to the sunshine, so we use solid walls with small openings. There is little sunlight on the north-facing verandas, so we enlarged the size of openings. The classroom windows facing south, east and west need sunshade, so we add sunshading window frames, which are comprehensively integrated with the outdoor conditioner positions. When the construction was completed, the space throughout the building is bright, cool and comfortable. With conscious control, the buildings present cave-like forms.
园林——作为文化的参照
Gardens– as a reference to culture
在开放与遮蔽之间,人的相望时隐时现,空间开始有了中国园林的意味,这恰恰也是我们有意追求的效果。这里说的园林并非指花草树木,而是空间的构成,正如童寯先生所说,“中国园林建筑布置的如此错落有致,即使没有花草树木,也成园林”。五六层的建筑尺度其实很难让人直接感受到中国园林的情境,但我们尝试把中国园林的要素引入其中,创造校园应有的空间趣味。
云墙建筑——蜿蜒的建筑可视为有窗有洞的“云墙”,在人的视角上,看到的是一个个被“云墙”分隔开的小庭院。建筑跌宕起伏,为庭院带来了空间变化,至校园中心处建筑最低,让建筑尺度更亲切。
People could look at others from time to time because of openings in the architectures. The space begins to have the features of Chinese gardens. This is precisely the effect we intend to pursue. The garden mentioned here does not refer to flowers and trees, but to the composition of space. As Mr. Tong Huan once said, “Even without flowers and trees, Chinese garden architectures could become a garden by themselves.” Although buildings of five or six stories are difficult for people to directly feel the characteristics of Chinese gardens, we still try to introduce the elements of the Chinese garden into the project to create a fun space that the schools should have.
The cloud-wall buildings – Meandering buildings can be regarded as “cloud-walls” with windows and holes. From people’s perspective, there are small courtyards separated by “cloud-walls”. The ups and downs of the buildings create spatial changes to the courtyards. The lowest building is at the center of the campus, it makes the building more friendly.
山石洞塔——“云墙”建筑外矗立的四个“洞塔”,是我心目中太湖石山的意向。它们是一座座可以“探索”的楼梯,孩子们行走其中,不时通过洞口与外部世界对望,看与被看,如同捉迷藏;其顶部圆形天窗下,自然光洒落,似有某种精神的力量。
The cave towers – The four cave-towers standing outside the cloud-wall buildings are the symbolization of Taihu Stone Mountain in my mind. They are also mysterious staircases waiting to be explored, where students can take a glance at the outside world through the cave windows from time to time. Seeing and being watched in here is like a hide-and-seek game. Under the circular skylight on the top of towers, natural light sprinkles, which seems to have some kind of spiritual power.
变拱游廊——一条单层的游廊依地形逐级而上,蜿蜒穿行在主体建筑间,若即若离,串联起各功能区,并与图书馆、报告厅、中厅、体育馆、游泳池、展示区等共享设施连接。自由形式的拱券,阻挡了侧向阳光,形成一种庇护感。游廊在校园入口架空区放大,成为富有仪式感和精神性的“光之中厅”。
The arched verandas – Single-story verandas are set according to the terrain, meandering through the main buildings. They connect all functional areas together with sharing facilities such as the library, the lecture hall, the atrium, the gymnasium, the swimming pool, and the exhibition area. Free-form arches create a sense of shelter by sunshading from one side. By magnifying the verandas in the elevated area of the main entrance, the verandas become a ceremonial and spiritual “hall of light”.
云墙建筑、山石洞塔、变拱游廊三套系统叠加,让校园有标准化的普通空间,也有差异化的节点空间,创造了一种园林式的深度感和复杂性!在安全和管理便利的前提下,中小学需要具有童趣的空间体验,孩子们跟空间的互动,成为少年时代的记忆,也成为了教育的一部分。项目实施中,因为控制造价的需要,屋顶绿化和农场未能实现,连接屋顶各层级平台的楼梯也被取消,有趣的空间少了很大一部分,成为项目最大的遗憾。
The superposition of three sets of systems, which are the cloud-wall buildings, the cave towers and the arched verandas, allows the campus to have standardized ordinary space and differentiated node space at the same time. It creates a garden-like sense of depth and complexity! On the premise of safety and convenient management, primary and secondary schools need to have childlike fun space. Interactions between children and space have become a memory of childhood and a part of education. During the process of construction, some initial design could not be realized because of the budget control, such as green roofs and roof farms, the stairs connecting all roof platforms. It is the biggest regret of the project to loss so many interesting space.
三年前,在方案评审会上,一位专家说,“这是向现代主义经典致敬的设计”。其实,这并非在我们的设计思考中,只是意外的实现了一次洞穴、园林与现代主义的对话!
Three years ago, at our proposal review meeting, one expert said, “This is a design that salute to the classic of modernism.” In fact, that is not our intention. It is just an unexpected realization of a dialogue among caves, gardens and modernism!
项目名称:惠阳第七中学及附属小学
项目地点:广东省惠州市惠阳区淡水镇
建筑面积:3万平方米
设计时间:2019
建成时间:2022
班级数量:54
项目业主:惠州惠兴房地产有限公司
设计单位:深圳墨泰建筑设计与咨询有限公司、中外建工程设计与顾问有限公司深圳分公司
设计范围:建筑方案、施工图全程设计
项目负责人:沈驰、文奕、王淞
方案:沈驰、王淞、朱维、梁晨、徐卫子、冯文清、沈晓明、潘晋 、谢浩东
建筑:文奕、贺杰、罗正岗、陈静儿、葛铁昶、刘为霞、吴丽萍、陈棋炜
结构:陈惠明、岑慧园、胡海武、黄明星、朱安安、付修政
暖通:彭天辉、赫可可、陈鹏、吴尚宽
给排水:李和、黄杰、刘教良、郭君豪、谢翼遥
电气:张维林、孙健有、周永华、吕珍地
室内:深圳洲际建筑装饰集团有限公司
景观:深圳有限设计咨询有限公司
标识:深圳市振瑞标识有限公司
摄影:TAL
撰文:沈驰
Project Name: Huiyang No.7 Secondary School and Affiliated Primary School
Project location: Tamsui Town, Huiyang District, Huizhou City, Guangdong Province
Construction area: 30,000 m2
Design time: 2019
Completion time: 2022
Number of classes: 54
Project owner: Huizhou Huixing Real Estate Co., Ltd.
Design units: Shenzhen Multiarch Architectural Design and Consulting Co., Ltd. and China International Engineering Design & Consulting Co., Ltd. Shenzhen Branch
Design scope: Schematic design, construction drawing
Project leader: Shen Chi, Wen Yi, Wang Song
Schematic design: Shen Chi, Wang Song, Zhu Wei, Liang Chen, Xu Weizi, Feng Wenqing, Shen Xiaoming, Pan Jin, Xie Haodong
Architectural design: Wen Yi, He Jie, Luo Zhenggang, Chen Jinger, Ge Tiechang,
Liu Weixia, Wu Liping, Chen Qiwei
Strucural design: Chen Huiming, Cen Huiyuan, Hu Haiwu, Huang Mingxing, Zhu Anan, Fu Xiuzheng
Heating and ventilation: Peng Tianhui, He Keke, Chen Peng, Wu shangkuan
Water supply and drainage: Li He, Huang Jie, Liu Jiaoliang, Guo Junhao, Xie Yiyao
Electrical engineering: Zhang Weilin, Sun Jianyou, Zhou Yonghua, Lv Zhendi
Interior design: Shenzhen Intercontinental Building Decorating Group Co., Ltd.
Landscape design: Shenzhen Limited Design Consulting Co., Ltd.
Logo design: Shenzhen Zhenrui Sign Co., Ltd.
Photographer: TAL















































