安徽霍山太阳乡书院,安徽/建筑
项目位于安徽霍山县大别山深处的太阳乡,场地原是一处孤寡老人居住的乡村民宅,老人去世以后被政府收回,希望改造成一处服务乡镇居民的文化设施并且可以作为当地茶叶的展示和体验空间。场地一侧靠山,四周被树林环绕,中间被一条溪流穿过,中部地处为层层梯田,高处为两间老房,犹如一个小型盆地,虽在集镇却有难得的幽静与自然。
The project is located in Sun Township, deep in the Dabie Mountains of Huoshan County, Anhui Province. The site was formerly a rural dwelling for an elderly widow who died and was repossessed by the government. It is proposed to transform the site into a cultural facility that will serve the township community and act as a venue for the exhibition and appreciation of local tea. The site is situated on one side of a hill, surrounded by woods. Crossing by a stream in the middle, with terraced fields forming the central part of the site and two old houses on the higher ground, making it a small basin with a rare tranquility and naturalness despite being in a market town settlement.
耕 – 景观的生产与保持
Cultivation – the production and maintenance of the landscape
耕读传家是中国人自古信奉的人生信条,被写在无数古宅的匾额楹联之上。在这片水稻梯田之上的书院更是与这个中国传统的文化主题不谋而合。梯田是整个场地最大的景观特色,这片面积不大的梯田被一直耕种,投资方本来希望将梯田改为园林花卉,认为这些在乡村随处可见的普通景象过于平淡无奇。乡村原本无需过多所谓“绿化”,生产性景观本就是乡村最好的景观。
The Chinese people have believed in ‘cultivation and read to bequeath to the family’ since ancient times, and this has been written on the plaques and couplets of countless ancient houses. The academy on top of this rice terrace is in keeping with this traditional Chinese cultural theme. The terraces are the biggest landscape feature of the whole site and this small area has been cultivated continuously. The investors had hoped to convert the terraces into landscaped flowers, believing that these were too banal and ordinary a scene to be found anywhere in the countryside. Nevertheless, the village does not have to be “greened” in the first place, as productive landscapes are the best scenery in the countryside.
具体而言,“绿化”原本是源自于城市景观的概念。在城市中之所以需要“绿化”,是由于作为“水泥森林”的城市需要园景来改善环境,从而维持基本生态平衡 。然而在乡村这种生态平衡已然存在。
In particular, ‘greening’ is a concept originally derived from the urban landscape. The need for ‘greening’ in cities is due to the fact that cities, as ‘concrete forests’, need landscaping to improve their environment and thus maintain a basic ecological balance. In the countryside, however, this ecological balance already exists.
而业主的心理是源自于长久以来的固有观念:“乡村”通常被定义为于“城市”相对立的概念,它们的对立在某种程度上意味着人类发展的不同程度。这种对立关系就像是“文明”和“蒙昧”、“现代”和“传统”、“自由”和“进步”、“保守”和“落后”之间的对立。使其不仅体现在乡村经济活动中,也存在于建筑和景观等学术领域,和现在乡村振兴的社会实践中。带来的结果就是乡村里的“绿化”没有城市里的养护保障机制而陷入尴尬,或者沦为杂草丛生的消极空间,亦或是被农民再次“回收”重新变回菜地,这种尴尬在当下的乡村建设中屡见不鲜。
The psychological orientation of the client stems from the long-held notion that the rural is often defined as the opposite of the urban, and that their opposition somehow indicates a different level of human development. This dichotomy is akin to “civilisation” and ” uncivilisation”, “modernity” and “tradition”, “liberal” and “progressive”, “conservative” and “backward”. Therefore, it is not only reflected in the economic activities of the countryside, but also in academic disciplines such as architecture and landscape, as well as in the social practice of rural revitalization. The result is that the “greenery” in the countryside is either reduced to a negative space overgrown with weeds or “recycled” by farmers back into vegetable plots since there is no maintenance guarantee mechanism as in the city. This kind of embarrassment is a common occurrence in the construction of new rural settlements.
探讨乡村有没有必要做所谓“绿化”设计的同时也是在探讨乡村实践是否要一味照搬城市建筑学、景观学以及规划学的方法。本项目的“稻田”就是乡村的“生产性景观”很好的例子。它并不是源自城市学里任何的规划,以图更好的控制和预测,恰恰相反它是自然的、不突兀的,在地的。“稻田”回归了土地最原初的功能——物质的产出功能,也将粮食生产重新带回了人们的日常生活中。所以,或许我们需要的,只是一个与天然存在环境“对话”的方法,以及尊重场地、尊重“平凡”的态度。
The question of whether there is a need for ‘greening’ design in the countryside is also a question of whether the practice of the countryside should be based on the methods of urban architecture, landscape architecture and urban planning. The ‘rice field’ in this project is a good example of the ‘productive landscape’ of the rural. It is not derived from any urbanistic planning in an attempt to be more controlled and predictable, rather it is natural, unobtrusive and in situ. The “rice field” returns to the original function of the land – the production of a substance – and brings food production back into the everyday life of people. Hence, perhaps all we need is a way in which we are in dialogue with the natural environment, and an attitude of being respectful to the site and to the “ordinary”.
起源于上个世纪末的“生产性景观”在城市中被人热切讨论,这似乎让人忘记,且不说是否能达到预期生产性的目的,在被搬到城市并花费大量人力物力维持前,农业生产原本就属于乡村。此处指刻意为了做生产性景观而当做园林观赏的城市“生产性景观”,(即用农作物当 花种,不仅不会产生收益,反而增加了维护难度和成本,)。
The ‘productive landscape’, which was originally introduced at the end of the last century, is being discussed with great enthusiasm in the urban context, which seems to forget that agricultural production was indigenous to the rural environment before it was brought to the city and maintained at great expense, not to mention whether or not it achieved the desired productive purpose. The term ‘productive landscape’ in this context refers to urban ‘productive landscapes’ that are deliberately used as ornamental gardening for the sake of being productive (i.e. crops are planted as flowers, which instead of generating income, make maintenance more demanding and costly).
我们不反对比如阳台屋顶种菜之类的市民自发性的生产性种植,事实上,农村本身就是一个生产空间(农业、渔业、林业等),城市则是一个同时具有消费功能、基础设施的密集的居住空间。在当下,这种城乡对立和飞速城市化导致基于乡村的“再生产”总是以一种大刀阔斧的形式进行:大批的工厂厂房,现代化农业温室大棚和机械,甚至是适应物流四通八达的硬化道路。这种以“生产”为核心的模式,已经渐渐成了多数乡村的空间主角。不仅摧毁了自然地理特征的特殊性,还摧毁了与之相关的劳动形式、生活方式,亲缘地缘关系以及社会文化活动。以前最为“农村” 、“乡村””或 “乡间”的地方现在已经变成了最“城市化”的景观。现在,这种城市化的“生产”,应该止于这片“稻田”。
This is not an opposition to the spontaneous productive cultivation of the public, such as the growing of vegetables on balconies and rooftops, but rather the fact that the rural environment is itself a productive space (agriculture, fishing, forestry, etc.) and the urban context is a condensed residential territory with consumption functions and infrastructural facilities. In the present day, this dichotomy between urban and rural sectors and rapid urbanisation has led to the “reproduction” of the countryside, invariably in the form of a vast array of factory buildings, modern agricultural greenhouses and machinery, and hardened roads to accommodate logistics. This mode of “production” has gradually become the spatial protagonist of most villages. This has destroyed not only the distinctiveness of the physical and geographical features, but also the forms of labour, the lifestyle of the villagers, the proximity, kinship and socio-cultural activities associated with them. What was once the most “rural”, ” countryside” or ” village-like” place has now become the most ” city-like “landscapes. This urbanised ‘production’ should now stop at this ‘rice field’.
经过多次与业主的沟通,最后水田得以保留,不仅省去了大笔的征地款,而且使这处最具标志性的景观无需刻意的园林维护就能始终保持生机。
After numerous discussions with the client, the paddy fields were eventually preserved, avoiding the need for significant land acquisition and allowing this most iconic view to be kept alive without the need for deliberate garden maintenance.
场地的水田、茶园、菜地都被全部保留并由它们原来的主人继续耕种,数条栈道被架设在水田之上,用最“轻”的方式使有人和这片水田交织在一起,栈道底层架空,水从栈道下方缓缓流过,禾苗垂与栈道之上,秋季收获之时栈道还为水稻收割和运输提供便利。来到书院的游客都要经过架设在农田上的栈道引导之下来到书院,春种秋收的生产活动成了书院的最佳外景,农耕的全过程被生动的展示在书院周围,没有什么乡村生活体验比真实的农耕来的更直接。人们可以与农业生产零距离的密切接触,可以与除草施肥的老农聊天。书院建成后镇上每天下午放学后的儿童都会来到座图书馆写作业和玩耍,古人追求了千年的“耕”与“读”在此被重新演绎。
The paddy fields, tea plantations and vegetable plots have all been retained and continue to be cultivated by their original owners, and several trestles have been erected over the paddy fields, intertwining them in the lightest possible way. The bottom of the trestle is elevated and the water flows gently underneath, with the seedlings draped over them. The pathway even facilitates the harvesting and transportation of the rice during the autumn harvest. The whole process of farming is vividly displayed around the academy, and there is no more direct experience of country life than real farming. People can get in close contact with agricultural production and chat with the old farmers who are weeding and fertilising. After the construction of the academy, children from the town come to the library every afternoon after school to do their homework and play. The ancient pursuit of ‘cultivation’ and ‘reading’, which has been practiced for millennia, is reinterpreted here.
读 – 建筑的材料和结构
Reading – Architectural materials and structures
书院对面的高处的一块水田上设计了一处休息亭,与书院建筑相互呼应,亭子四面皆为可以打开的竹窗,亭子架空在稻田之上,被水稻环绕, 亭子采用混凝土浇筑,当地篾匠编织的竹席作为模板内衬,是混凝土呈现出别样的手工味道。游人可以在亭内乘凉聊天,与书院对望,农民耕种之余也可以在亭内休憩抽烟。
A pavilion was designed on the paddy field opposite the academy, corresponding to the academy building, with bamboo windows that can be opened on each side, and the pavilion is elevated above the paddy field, surrounded by rice. Visitors can enjoy the pavilion for a refreshing chat and look out across the pavilion to the academy, while farmers may rest and smoke in the pavilion after farming.
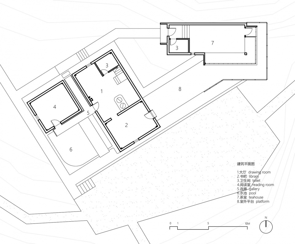
书院建筑由图书馆和茶室组成。图书馆由现状两间老房改造而来,老房为夯土结构,改造过程保留了现有夯土墙体,通过内部嵌套钢结构抬升屋面的策略,使得图书馆内部采光和空气流通功能顺利实现,改造后的屋面有了更好的保温和防水的建筑性能,正房局部增加夹层,扩展现有的使用面积,夜晚室内温暖的灯光从檐下的窗口透出,成为整个环境的焦点。
The Academy building consists of a library and a tea room. The library is made up of two old rooms of rammed earth construction, which have been renovated by retaining the existing rammed earth walls and elevating the roof by nesting the steel structure inside, allowing the library to be light and well ventilated internally. The renovated roof provides better insulation and water resistance properties. At night the warm light of the interior penetrates through the windows under the eaves and becomes the focal point of the whole environment. A partial mezzanine has been inserted into the main room to extend the existing use area, and at night warm light from the interior comes through a window under the eaves and becomes the focal point of the environment.
老建筑内部由于多年生活已经被熏成黑色,土墙也存在剥落和粉尘等问题,内部墙面采用双层结构,在土墙外重新安装一层石膏板解决相应问题,在入口处的墙上设计师特意留出一个方口将原有土墙展示出来,老墙上黑色的烟熏痕迹在框景的处理下犹如一幅抽象山水画,变得奇妙而恰当。房间内原有的灶台也被保留下来作为展示台重新利用。
The interior of the old building has been blackened due to years of life, and the soil wall also has problems such as peeling and dust. The interior wall adopts a double-layer structure, and a layer of gypsum board is installed outside the soil wall to solve the corresponding problems. The designer specially leaves a square opening on the wall at the entrance to show the original soil wall. The black smoke trace on the old wall is like an abstract landscape painting under the treatment of the frame scenery, which becomes wonderful and appropriate. The original stove in the room has also been reserved for reuse as a display platform.
新建茶室在老房一侧,与老房子成可以处理成一定角度与老房子成为一组建筑,犹如山坡上的几块巨石,嵌入在梯田里。茶室采用木模板浇筑,木纹隐约可见,为了与老房子外墙的白灰相互呼应,混凝土被刷成白色,原本张扬的混凝土变得温和而克制。建筑向外开出巨大的飘窗,将外面的稻田景色引入室内,室内人可以盘坐于飘窗之上品茶观景。玻璃窗+竹格栅的双层窗户结构既实现保温又可以根据日照情况开启竹格栅实现遮阳功能,同时竹格栅与对面的景观亭的竹窗在材料上相呼应。
The new teahouse is on the side of the original house, and at a certain angle it can be observed as a series of buildings alongside the original house, like a few boulders on a hillside, embedded in the terraces. The teahouse is cast in wooden formwork, with the wood grain faintly visible, and the concrete is painted white in order to correspond with the white plaster of the façade of the old house, which was originally imposing but has become gentle and restrain. The building opens out to a huge bay window, which brings the view of the rice fields outside into the interior, where people can sit and enjoy tea and watch the scenery. The double window structure of glass + bamboo grille provides thermal insulation and allows the opening of the bamboo grille to provide shading according to the sunlight, while the bamboo grille materially matches the bamboo window of the pavilion opposite.
两个老房之间嵌入了一个钢结构连廊,使得两个建筑成为一个整体便于使用,同时在关系上又独立于旧建筑之外。当地传统民房前通常有一个小水池作为蓄积雨水之用,本次改造也保留了水池,由于连廊占用了原有入户道路,改造中在水池一侧重新架设了一个轻盈的小桥作为图书馆的进入道路,使进入的方式更具浪漫气息。
A steel corridor has been included between the two old houses, making the two buildings integral and easy to use, while remaining distinct in relationship to the old building. The small pond in front of the traditional dwelling, which was often used to store rainwater, has also been retained in this renovation. As the connecting porch occupied the original entrance road, a light bridge has been re-erected on the side of the pond to provide a more romantic approach to the library.
太阳书院将一处原本凋零的普通乡间民宅变成了阅读、游览、展示的公共空间,同时原本的农业生产仍然得以继续与新功能和谐相处共生,使原本“平凡”的稻田得以成为景观的一部分。
The Sun Academy transforms an ordinary country house, which was in decline, into a public space for reading, visiting and exhibiting, while the original agricultural production continues to coexist in harmony with the new functionalities, allowing the otherwise ‘ordinary’ rice fields to become part of the landscape.
建筑是环境的一部分,应当与环境相适宜,太阳书院所有的建筑改造以及新建都围绕稻田这一环境展开,试图与之找到恰当而多样的对话方式。许多设计师都试图对“生产性景观”这一理念进行相关实践,然而“生产”难以被设计出来,设计出的“生产性”也难以长期为继,乡村天然存在的生产性景观为设计提供了可能性。乡村实践不应单纯照搬城市建筑学,景观学,规划学的方法。尊重场地,与场地对话和适应,或许是面对乡村的设计的途径之一。
As architecture is part of the environment and should be integrated seamlessly into it, all of Sun Academy’s renovations and new constructions are oriented around the rice paddies as a context, trying to find appropriate and fluid responses to it. Many designers have tried to put into practice the idea of a ‘productive landscape’, but it is rather difficult to design ‘production’, and it is even more difficult to sustain the designed ‘production’ in the long term. In this sense, the naturally productive landscape of the countryside offers design possibilities. Rural practice should not simply copy the methods of urban architecture, landscape architecture and urban planning. To respect the context, to respond to it, to adapt to it, is perhaps one way of designing for the rural.
项目地点:安徽省六安市霍山县太阳乡
设计时间:2017.3
建成时间:2018.2
面积:0.8公顷
设计单位:傅英斌工作室
主创设计师:傅英斌
团队:张浩然、蔡万成、闫璐
摄影:张虔希
Project Location: Sun Township, Huoshan County, Liuan City, Anhui Province
Design date: 2017.3
Completion: 2018.2
Area: 0.8 hectares
Design Unit: Fu Yingbin Studio
Principal Designer: Fu Yingbin
Team: Zhang Haoran, Cai Wancheng, Yan Lu
Photographer: Zhang Qiaoxi






































