台湾彰化高铁站,台湾/建筑
彰化(高铁)站位于台湾彰化县田中镇,为台湾高速铁路的一座铁路车站。位于田中镇彰95线乡道(田中镇往田尾乡的联络道路,大社路一段附近),也就是彰化县田中镇明礼国民小学东南方的新厝地区。
Changhua (High Speed Railway) Station is located in Tianzhong Town, Changhua County, Taiwan. It is a railway station of Taiwan's high-speed railway. It is located in the Xincuo area in the southeast of Mingli National Primary School in Tianzhong Town, Changhua County.

高铁彰化站座落于彰化县田中镇,于2015年12月起开始通车,距离田中火车站约3公里,高铁及台铁的整合也带动了周遭的交通网络的兴起,也让彰化旅游行更增添了便利性。高铁彰化站上行台中站、下行云林站,完善的高铁系统,提供民众到彰化旅游更加便捷。
Located in Tianzhong Town, Changhua County, the high-speed railway Changhua Station has been open to traffic since December 2015, about 3 kilometers away from the Tianzhong Railway Station. The integration of high-speed railway and Taiwan railway has also led to the rise of the surrounding transportation network, and has also made Changhua tourism more convenient. Changhua station of high-speed railway goes up to Taichung station and down to Yunlin station. The perfect high-speed railway system provides more convenience for people to travel to Changhua.
台湾田中镇位于彰化县内,四周环绕种植水稻的农田。这片区域近几年在当地花农的竞争下转型为一个新兴园艺业基地。这种环境特征被姚仁喜|大元建筑工场所设计的彰化新高铁火车站所引用。不论是从人的尺度还是鸟瞰视角,车站和其景观的整体规划创建出一种花卉、植物、水景和铺装相互交织的景色。
Tianzhong Town in Taiwan is located in Changhua County, surrounded by paddy fields. This area has been transformed into a new horticultural base under the competition of local flower farmers in recent years. This environmental feature was cited by the Changhua New High-speed Railway Station designed by Yao Renxi | Dayuan Construction Workshop. The overall planning of the station and its landscape creates an intertwined landscape of flowers, plants, waterscape and pavement from both the human scale and the bird's eye view.

车站和其景观的整体规划创建出一种花卉、植物、水景和铺地相互交织的景色。
The overall planning of the station and its landscape creates a landscape of flowers, plants, waterscape and paving.
大面积的玻璃幕墙可以保证视线的通透。车站轻盈的结构美感将花卉的优雅融入其中,不但能保证结构安全还赋予建筑翩翩风姿。支撑屋顶的曲线柱子实现了车站内的自然通风和采光。
Large-area glass curtain wall can ensure the visibility. The light structural beauty of the station integrates the elegance of flowers, which not only ensures the structural safety, but also endows the building with elegant style. Curved columns supporting the roof realize natural ventilation and lighting in the station.
▼屋顶的部分让人联想到稻田,The part of the roof is reminiscent of the paddy field

高铁彰化站 建筑特色
高铁彰化站全站共有四楼层之高架车站,第一层为车站大厅、站务、商业等空间,第二层为车站穿堂层,第三层为机电设备空间,第四层为车站月台层。高铁彰化站以花卉、日光为设计的理念,以黄金级绿建筑为目标,站内以植物花瓣造型的打造墙柱、屋顶花朵意象的打造天窗,能引入光线照亮室内大厅,将整体建筑融入周边景观绿意,塑造优雅的乘车空间氛围;而室外景观则是强化在地精神,延伸「田」字意向,以花卉、植栽、水景、苗圃等设计为主,引申为花卉重地之意义。
Architectural characteristics of Changhua Station of high-speed railway
The whole station of Changhua High-speed Railway Station has a four-floor elevated station. The first floor is the station hall, station service, commercial and other spaces, the second floor is the station hall, the third floor is the electromechanical equipment space, and the fourth floor is the station platform. The Changhua Station of the high-speed railway takes flowers and sunlight as the design concept, takes the golden green building as the goal, and uses the plant petal-shaped wall column and the roof flower image to create a skylight in the station, which can introduce light to illuminate the indoor hall, integrate the overall building into the surrounding landscape green, and create an elegant space atmosphere for passengers; The outdoor landscape is to strengthen the local spirit, extend the intention of "field", and give priority to the design of flowers, plants, waterscapes, nurseries, etc., which is extended to the meaning of flowers and plants.
▼支撑屋顶的曲线柱子能让车站内有自然通风,Curved columns supporting the roof can provide natural ventilation in the station

▼车站将花卉的优雅融入其中,使建筑看起来十分轻盈,The station integrates the elegance of flowers, making the building look very light

▼柱子能将自然光线带入车站,The column can bring natural light into the station

▼大面积的玻璃幕墙可以保持视线的通透,Large-area glass curtain wall can keep the visibility transparent

▼对自然景观一览无余,Have a panoramic view of the natural landscape

无论站内到站外,高铁彰化站设计处处充满巧思,从站体内的花瓣造型柱,引入光线照亮室内大厅,达到节能省电;玻璃帷幕,打造温室绿廊,让建筑融入在地性,从大厅到月台,利用造型柱光影的变换,巧妙营造戏院迷离的光影,这样富有高质感兼具设计感的高铁彰化站也获得有「建筑界奥斯卡」国际建筑大奖Architizer A+,建筑车站类票选第一名。
From inside to outside the station, the design of Changhua station of high-speed railway is full of ingenious ideas. From the petal-shaped column inside the station, light is introduced to illuminate the indoor hall to save energy and electricity; The glass curtain is used to create a greenhouse and green corridor to integrate the building into the local nature. From the hall to the platform, the transformation of the light and shadow of the shape column is used to skillfully create the blurred light and shadow of the theater. Such a high quality and design high-speed railway Changhua Station also won the "Architecture Oscar" International Architecture Award Architizer A+, and the first place in the construction station category.
▼车站夜景,Night view of the station

高铁逍遥游 体验彰化风情
高铁彰化站的开通,使得高铁网络系统更为完善,也大幅了增进彰化旅游的便利性。彰化拥有人文历史古迹特色、绿野平畴的田野风光、迷人景致西滨海岸线等观光资源,彰化八卦山脉更是休闲旅游的著名地标,到彰化不仅可以登山健行,还可赏花田、逛老街、游古迹等,多元的主题之旅都具相当独特的旅游魅力,等著您亲自探索体验彰化风情。
High-speed rail travel experience Changhua style
The opening of the Changhua station of the high-speed railway has improved the high-speed railway network system and greatly improved the convenience of Changhua tourism. Changhua has the characteristics of cultural and historical sites, the field scenery of green fields, the charming scenery of the West Coast and other tourist resources. Changhua Bagua Mountain is also a famous landmark for leisure tourism. You can not only climb mountains and hiking, but also appreciate flower fields, visit old streets, visit historic sites, etc. The diversified theme tours have quite unique tourist charm, waiting for you to explore and experience the customs of Changhua personally.
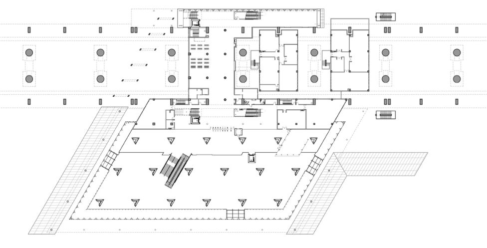
图纸,Drawings
▼平面图,Plan

▼屋顶平面,Roof plane

▼剖面图,Profile

▼立面图,Elevation

编辑:Hickman
项目名称:彰化车站(Changhua Station)
所属地区:台湾彰化县田中镇
主要线路:台湾高铁
车站地址:田中镇彰95线乡道(田中镇往田尾乡的联络道路,大社路一段附近)
Editor: Hickman
Project name: Changhua Station
Region: Tanaka Town, Changhua County, Taiwan
Main route: Taiwan high-speed railway
Address of the station: Zhang95 Township Road, Tianzhong Town (the connecting road from Tianzhong Town to Tianwei Township, near the first section of Dashe Road)














