借水吟馆,北京/建筑

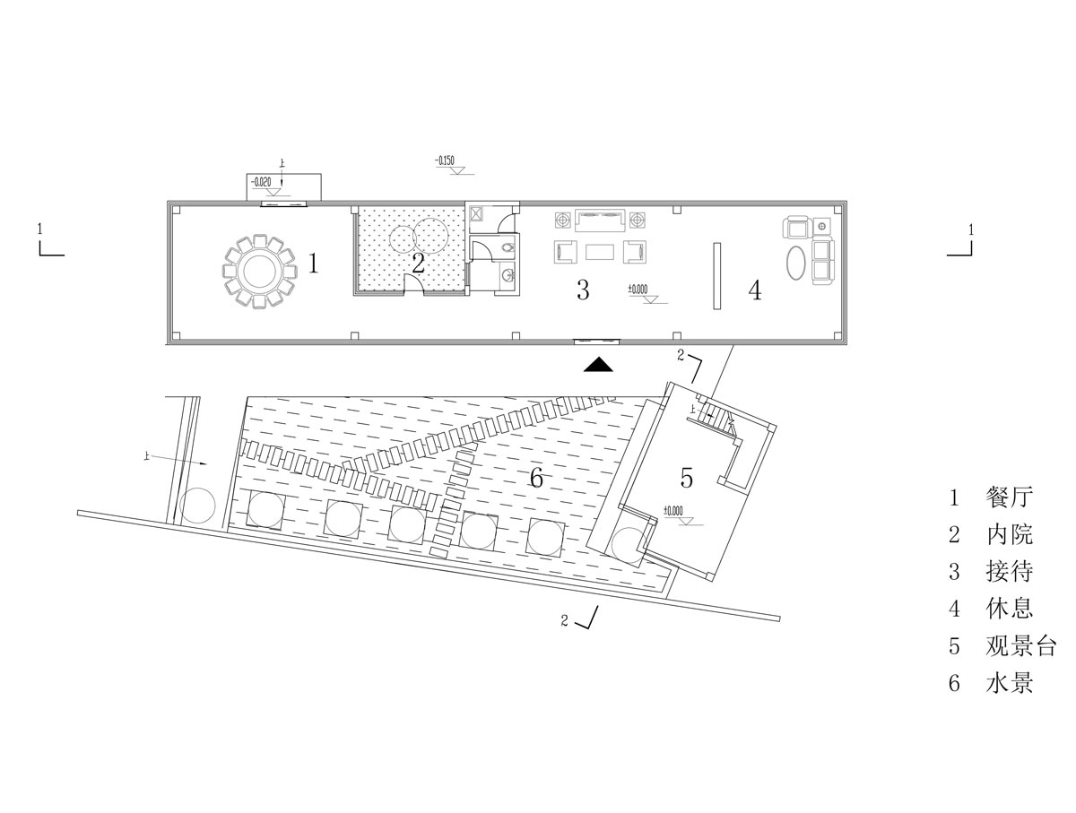
简介:私人会馆树木植被良好环境优美。通过景墙和建筑围合出大小不同适人尺度的庭院,保留基地内的原有树木,建筑的屋顶和平台也成为景观的一部分,建筑和景观相互融合没有明确的界限。
Introduction: in this private hall, there are good vegetation trees with beautiful environments. During the design of this project, king walls and buildings were used properly to create various intimate courts with different sizes. The existing trees in the base were kept, the roof and platform of the building were also taken as a part of the landscapes. There were no definite limitation between the merging of the building and landscape.

所有院落围绕中间水院一系列展开,并将树木的倒影反射给建筑内部的人们,提供了一片宁静树林休闲空间。
All courtyards were built around the intermediate water courtyard and the inverted images of the trees were brought to the people within the building resulting in a leisure space within the quiet trees.

体会宁静自然美,静下来的世界、耳朵是被叫醒的。鸟鸣虫叫处处在,花开叶落时时有,大自然馈赠予我们天地妙音,万事万物和谐共生共荣,于是,细水长流、云淡风轻,人人皆可笑看日升日落。
Experience the tranquil and natural beauty, where the quiet world and ears are awakened. Birds chirp and insects chirp everywhere, flowers bloom and leaves fall from time to time, and nature gives us the wonderful sounds of heaven and earth. Everything coexists and prospers harmoniously, so that the water flows long, the clouds are light, and the wind is gentle. Everyone is ridiculous to watch the sun rise and sunset.

在这温暖的阳光里,独自享受大自然给予的宁静。
In this warm sunshine, enjoy the tranquility provided by nature alone.




项目名称:借水吟馆
设计机构:殊舍景观
项目地点:北京市
景观面积:1570m²
设计时间:2013年3月-2013年10月
设计团队:何宏仕 王妲 谢宝昕 朱玲
Project Name: Hall for Chanting by Water
Design Department: Shu Se Landscape
Project location: Beijing
Landscape Area: 1570m²
Design Time:March 2013 to October 2013
Design team: Honglin He, Dan Wang, Baoxin Xie, Ling Zhu














