北京大兴国际机场临空经济区发展服务中心,北京/室内
设计理念:
Design concept:
灵感来源
Source of inspiration
静水渔船--给人带来了漂泊远方之感,“海内存知己,天涯若比邻”送别八方来客;
使用网格曲线和各种夸张的几何结构来构造空间。
Quiet water fishing boat - brings the feeling of drifting far away, "the sea memory friend, the end of the world if near" farewell from the eight visitors;
Use grid curves and various exaggerated geometric structures to construct Spaces.
▼区域位置,Regional location

元素提取
Element extraction
船--停靠;网--寄托;水--抒怀。
Ship - dock; Net - sustenance; Water - expressing feelings.
▼元素提取,Element extraction

概念应用
Concept application
我们不是高奢冷淡的商场,而是具有温度和情绪的生活空间;
为顾客带来全新的生活方式,提升城市购物体验、慢享品质生活,打造最具艺术品质的沉浸式体验空间慢享品质生活。
多元化的购物场景--复合型业态,满足多元化消费需求;
开放包容的公共空间--打造多个社交空间,让商场成为家的延伸;
细致的人性化关怀--从细节出发,体验无微不至的服务。
We are not a high luxury and cold shopping mall, but a living space with temperature and emotion;
Bring customers a new way of life, enhance the urban shopping experience, enjoy the quality of life slowly, create the most artistic quality of the immersive experience space to enjoy the quality of life slowly.
Diversified shopping scenario-complex business format to meet diversified consumer needs;
Open and inclusive public Spaces - create multiple social Spaces and make the mall an extension of home;
Meticulous humanized care - from the details, experience meticulous service.
▼概念应用,Concept application

平面分析:
Planar analysis:
▼平面分析-原始平面图,Planar analysis - original plan

▼平面分析-优化平面图,Plane analysis - Optimize the plane plan

▼重点打造空间,Focus on building space

主中庭空间优化分析
优化前:形态单一,较为保守;空间没有亮点。
优化后:顶面通过应用网状装置对空间进行艺术及降噪优化,整个空间虚实结合,凸显光影效果增加空间的灵劢性;渔网概念应用,打造主题性艺术空间。
Main atrium space optimization analysis
Before optimization: the form is single and conservative; There are no highlights in the space.
After optimization: The top surface is optimized for art and noise reduction through the application of mesh devices, and the whole space is combined with virtual and real, highlighting the light and shadow effect and increasing the vitality of the space; The concept of fishing net is applied to create a thematic art space.
▼主中庭空间优化分析,Main atrium space optimization analysis

南渡--艺术格调。南:是大兴机场方向,位于北京的南边;渡:渡过,过水,示意行驶过程。
Nandu -- artistic style. South: The direction of Daxing Airport, located in the south of Beijing; Crossing: To cross, to cross water, to indicate the course of driving.
▼南渡空间分析,Nandu spatial analysis

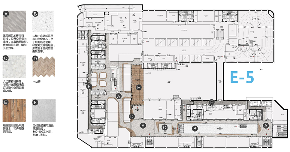
▼地面铺坪设计,Floor paving design

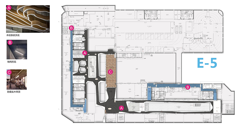
▼天花设计,Ceiling design

▼空间方案示意-无艺术装置,Spatial proposal - No art installation

▼空间方案示意-主中庭角度,Spatial scheme schematic - main atrium Angle





▼空间方案示意-设计元素,Spatial scheme schematic - Design elements

▼餐饮店面,Catering store

港埠--时尚休闲。港:港口,码头;埠:停船的码头,示意停靠,休息。
Port - Fashion and leisure. A port or wharf; Port: a dock where a ship stops, signaling to dock and rest.
▼港埠空间分析,Port spatial analysis

▼地面铺坪设计,Floor paving design

▼天花设计,Ceiling design

▼空间方案示意,Spatial proposal



▼空间方案示意-B2连廊,Space scheme -B2 corridor

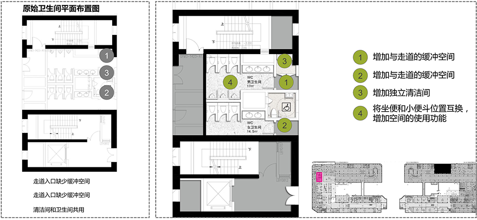
▼卫生间平面,Bathroom plane


▼卫生间鸟瞰图,Aerial view of the bathroom

▼空间方案示意-空间剖面,Space scheme schematic - space profile

▼空间方案示意-卫生间,Space scheme - Bathroom


▼空间方案示意-电梯厅,Space scheme - Elevator hall




▼扶梯造型,Escalator molding

▼栏杆造型,Railing molding

▼柱子造型,Column molding

▼服务台概念,Help desk concept


▼导视意向图,Guide image

▼后勤通道示意,Logistics channel scheme

▼雕塑陈设意向图,Sculpture layout intention

项目名称:北京大兴国际机场临空经济区发展服务中心
文章分类:室内设计-综合商业
项目地址:北京大兴
项目规模:10000平米
设计主创:王建伟
设计团队:叶建森 董涛 栾雪婷 张振波 于本彦
设计公司:北京华城远大建设有限公司
建 材: 铝板 木饰面 石材 波纹钢
项目年份:2021年
业主单位:宾至中国
施工企业:华诚博远工程技术集团有限公司
Project Name: Beijing Daxing International Airport Airport Airport Economic Zone Development Service Center
Article classification: Interior Design - Comprehensive Business
Project address: Daxing, Beijing
Project scale: 10000 square meters
Designer: Wang Jianwei
Design team: Ye Jiansen, Dong Tao, Luan Xueting, Zhang Zhenbo, Yu Benyan
Design company: Beijing Huacheng Yuanda Construction Co., Ltd
Building materials: aluminum board, wood veneer, stone, corrugated steel
Project Year: 2021
Owner: Binzhi China
Construction enterprise: Huacheng Boyuan Engineering Technology Group Co., Ltd














