济南超算中心科技园项目二期室内方案设计,山东/室内
项目概况:
Project Overview:
本项目位于山东省济南市港源六路以北,经十路以南,春暄路以西,本次设计区域:东区商务办公楼、西区商务公寓楼,区域约总面积 35341.42 平方米,包括但不限于办公大堂、办公、公寓电梯厅、电梯轿厢等装饰设计。
The project is located in the north of Gangyuan 6th Road, the south of Jingshi Road, and the west of Chunxuan Road, Jinan City, Shandong Province. The design area: the East commercial office building, the West commercial apartment building, with a total area of 35,3441.42 square meters, including but not limited to office lobby, office, apartment elevator hall, elevator car and other decorative design.
▼鸟瞰图,Aerial view

设计理念:
Design concept:
本着超算中心供给计算能力的超级大脑;聚集创新资源的重要载体;打造超算生态的高端基地;培养计算学科的中坚力量;培育产业链群的专业园区;拓展国际合作的开放平台的使命。致力于智能计算和信息处理技术学科的应用基础与高技术发展研究,着力提升自主创新与核心竞争能力,取得创新性重大成果,引领学科发展方向,保持特色鲜明和不可替代的地位,把超算中心打造成智能计算和信息处理技术领域国际一流的专业研究与服务机构。因此在空间设计表现上我们要符合企业的核心理念 与价值所在。打造现代科技前卫的空间。应用金属和石材作为空间的主要装饰材料,展现空间的庄重典雅和前沿科技感。
A superbrain that supplies computing power to a supercomputing center; An important carrier for gathering innovation resources; Build a high-end base for supercomputing ecology; Cultivate the backbone of computing discipline; Professional parks to cultivate industrial chain groups; Expand the mission of an open platform for international cooperation. It is committed to the application foundation and high-tech development research of intelligent computing and information processing technology, and strives to improve its independent innovation and core competitiveness, achieve major innovative achievements, lead the development direction of the discipline, maintain its distinctive and irreplaceable position, and build the Supercomputing Center into an international first-class professional research and service institution in the field of intelligent computing and information processing technology. Therefore, in the space design performance, we must conform to the core concept and value of the enterprise. Create a modern science and technology avant-garde space. The application of metal and stone as the main decorative materials of the space shows the solemn elegance of the space and the sense of cutting-edge technology.
▼济南超算中心平面图,Jinan supercomputer center plan

东区商务办公楼:
East Business Office Building:
▼鸟瞰图,Aerial view

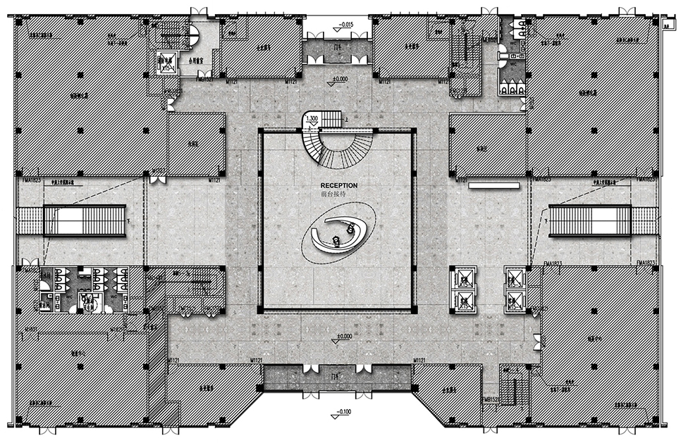
▼东区商务办公楼平面图,East business office building plan

设计说明:
Design description:
本区1#、2#、3#、4#号楼空间结构相似,5#、6#号空间结构相似,因此在环境装饰上采用两类手法。
依据本区建筑条件和设计需求,室内环境采光较好,在材质上墙面使用洞石,展现其空间的庄重典雅;顶面采用金属铝板,烘托其企业的未来感和科技感。
The spatial structure of building 1#, 2#, 3# and 4# in this district is similar, and the spatial structure of 5# and 6# is similar, so two kinds of techniques are used in environmental decoration.
According to the architectural conditions and design needs of the area, the indoor environment has good lighting, and the wall is made of cave stones to show the solemn and elegant space. The top surface is made of metal aluminum plate, highlighting the sense of the future and science and technology of its enterprise.
▼东区商务办公楼平面图,East business office building plan

1#/2#/3#/4#首层区域说明:
1#/2#/3#/4# First floor area Description:
1. 办公大堂:地面采用灰米色水磨石,分割方式采用建筑外窗及立面作为延展造型
2. 大堂等候区:与大堂相比,硬装材质选用同类,在家具上采用异形简洁的座椅,在满足使用功能的情况下,体现其空间的艺术性。
3. 电梯厅:地面材质采用米白色水磨石,顶面利用软膜天花,满足照度的同时,提升其空间的美感及体量感。
4. 卫生间:地面考虑到耐脏性和易清洁,采用深灰色地砖,墙面采用灰色墙砖错缝瓶贴。
1. Office lobby: gray-beige terrazzo is used on the ground, and the external window and facade of the building are used as extension modeling
2. Lobby waiting area: Compared with the lobby, the hard installation material is the same, and the special-shaped and simple seats are used on the furniture, which reflects the artistry of the space while meeting the use function.
3. Elevator hall: The ground material is made of beige terrazzo, and the top surface is made of soft film ceiling, which can meet the illumination and enhance the aesthetic sense and volume sense of the space.
4. Bathroom: Taking into account the dirt resistance and easy cleaning on the ground, dark gray floor tiles are used, and gray wall tiles are staggered bottle stickers.
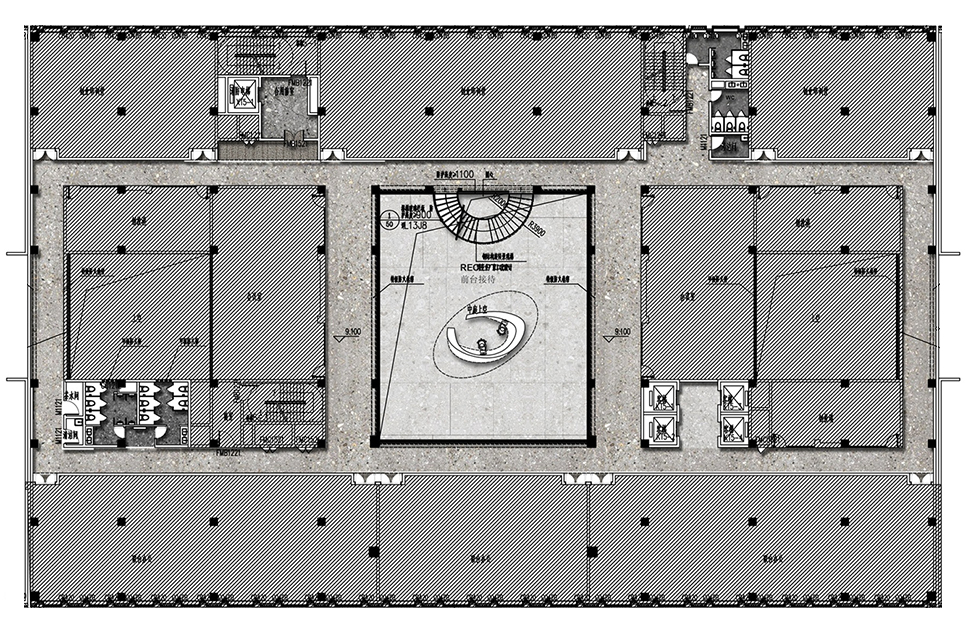
▼东区商务办公楼-首层平面图2#,Eastern Business Office Building - Ground Floor Plan 2#

1#/2#/3#/4#标准层区域说明:
1#/2#/3#/4# Standard layer area description:
1. 公共走道:与大堂相比,硬装材质选用同类,在家具上采用异形简洁的座椅,在满足使用功能的情况下,体现其空间的艺术性。
2. 电梯厅:地面材质采用米白色水磨石,顶面利用软膜天花,满足照度的同时,提升其空间的美感及体量感。
3. 卫生间:地面考虑到耐脏性和易清洁,采用深灰色地砖,墙面采用灰色墙砖错缝瓶贴。
1. Public walkway: Compared with the lobby, the hard installation material is the same, and the special-shaped and simple seats are used on the furniture to reflect the artistry of the space while meeting the use function.
2. Elevator hall: The ground material is made of beige terrazzo, and the top surface is made of soft film ceiling, which can meet the illumination and enhance the aesthetic sense and volume sense of the space.
3. Bathroom: Considering the dirt resistance and easy cleaning on the ground, dark gray floor tiles are used, and gray wall tiles are used for staggered bottle stickers.
▼东区商务办公楼-标准层平面图2#,Eastern Business Office Building - Standard Floor Plan 2#

5#/6#首层区域说明:
5#/6# First floor area description:
1.办公大堂:地面采用灰米色水磨石,分割方式采用建筑外窗及立面作为延展造型
2.大堂等候区:与大堂相比,硬装材质选用同类,在家具上采用异形简洁的座椅,在满足使用功能的情况下,体现其空间的艺术性。
3.电梯厅:地面材质采用米白色水磨石,顶面利用软膜天花,满足照度的同时,提升其空间的美感及体量感。
4.卫生间:地面考虑到耐脏性和易清洁,采用深灰色地砖,墙面采用灰色墙砖错缝瓶贴。
1. Office lobby: gray-beige terrazzo is used on the ground, and the external window and facade of the building are used as extension modeling
2. Lobby waiting area: Compared with the lobby, the hard installation material is the same, and the special-shaped and simple seats are used on the furniture, which reflects the artistry of the space while meeting the use function.
3. Elevator hall: The ground material is made of beige terrazzo, and the top surface is made of soft film ceiling, which can meet the illumination and enhance the aesthetic sense and volume sense of the space.
4. Bathroom: Taking into account the dirt resistance and easy cleaning on the ground, dark gray floor tiles are used, and gray wall tiles are staggered bottle stickers.
▼东区商务办公楼-首层平面图5#,Eastern Business Office Building - Ground Floor Plan 5#

5#/6#标准层区域说明:
5#/6# Standard layer area description:
1.办公大堂:地面采用灰米色水磨石,分割方式采用建筑外窗及立面作为延展造型
2.大堂等候区:与大堂相比,硬装材质选用同类,在家具上采用异形简洁的座椅,在满足使用功能的情况下,体现其空间的艺术性。
3.电梯厅:地面材质采用米白色水磨石,顶面利用软膜天花,满足照度的同时,提升其空间的美感及体量感。
4.卫生间:地面考虑到耐脏性和易清洁,采用深灰色地砖,墙面采用灰色墙砖错缝瓶贴。
1. Office lobby: gray-beige terrazzo is used on the ground, and the external window and facade of the building are used as extension modeling
2. Lobby waiting area: Compared with the lobby, the hard installation material is the same, and the special-shaped and simple seats are used on the furniture, which reflects the artistry of the space while meeting the use function.
3. Elevator hall: The ground material is made of beige terrazzo, and the top surface is made of soft film ceiling, which can meet the illumination and enhance the aesthetic sense and volume sense of the space.
4. Bathroom: Taking into account the dirt resistance and easy cleaning on the ground, dark gray floor tiles are used, and gray wall tiles are staggered bottle stickers.
▼东区商务办公楼-标准层平面图5#,Eastern Business Office Building - Standard Floor Plan 5#

▼公共办公区效果-大堂2#,Public Office Area Effect - Lobby 2#

▼公共办公区效果-大堂等候区2#,Public Office Area Effect - Lobby Waiting Area 2#

▼公共办公区效果-电梯厅2#,Public Office Area Effect - Elevator Hall 2#

▼公共办公区效果-首层电梯厅2#,Public office area Effect - First floor Elevator Hall 2#

▼公共办公区效果-标准层电梯厅2#,Public Office area Effect - Standard Floor Elevator Hall 2#

▼公共办公区效果-标准层轿厢2#,Public office area effect - Standard Floor Car 2#

▼公共办公区效果-标准层走廊2#,Public Office Area Effect - Standard Floor Corridor 2#

▼公共办公区效果-大堂5#,Public Office area Effects - Lobby 5#

▼公共办公区概念-挑空中庭5#,Public office Area Concept - Atrium 5#

▼公共办公区效果-电梯厅5#,Public office area effect - Elevator Hall 5#

▼公共办公区效果-标准层轿厢5#,Public office area effect - Standard Floor Car 5#

▼公共办公区效果-标准层走廊5#,Public Office Area Effect - Standard Floor Corridor 5#

▼公共办公区效果-标准层卫生间5#,Public office area Effect - Standard floor bathroom 5#

西区商务公寓楼:
West Side Business Apartment Building:
▼鸟瞰图,Aerial view

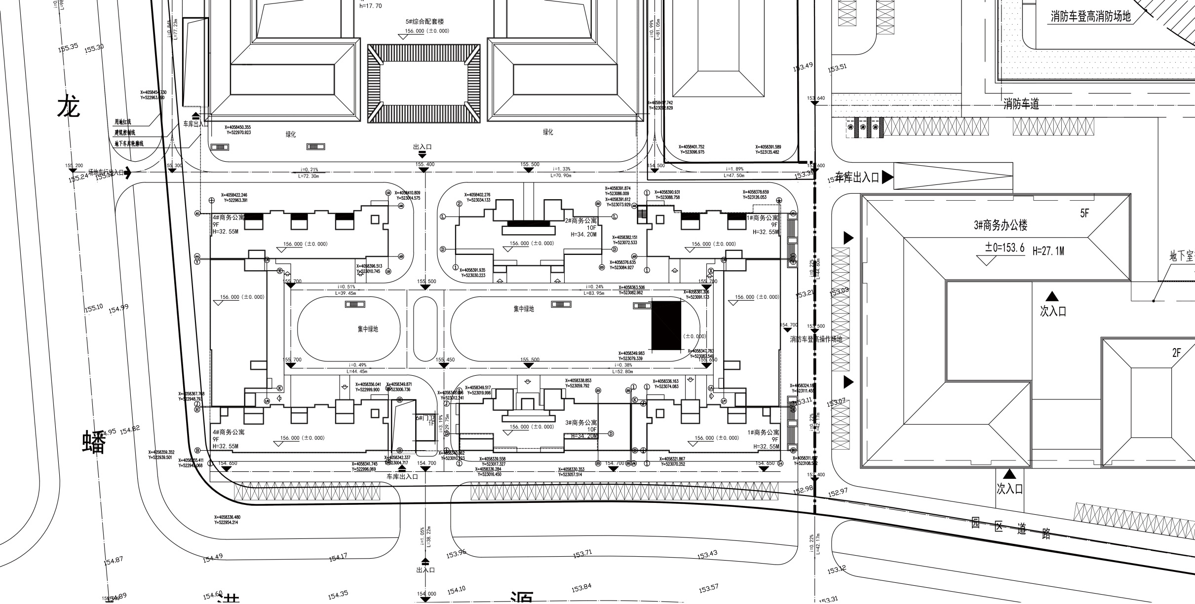
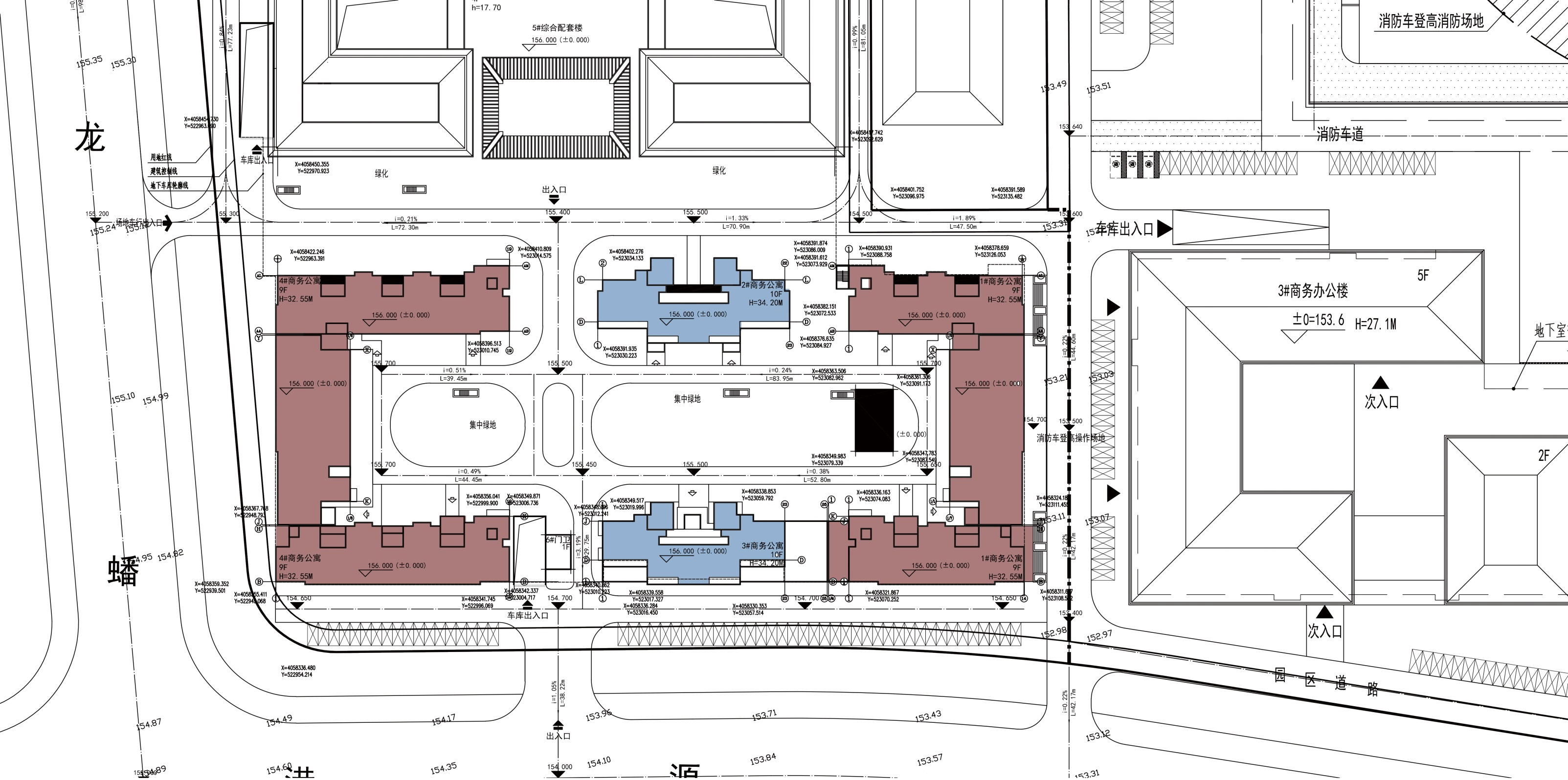
▼西区商务公寓楼平面图,West commercial apartment building floor plan

设计说明:
Design specification:
西区为商务公寓楼,1#、4#为相似结构,2#、3#为相似结构。提取4号楼为典型进行设计,大堂采用木饰面作为墙面装饰,打造居住环境的温馨感。
电梯厅采用石材,标准走道客房入口处做凹洞造型,增加空间的体量感和结构感。墙面采用壁纸,地面采用防地毯式地胶,耐磨易于打理。
The West side is a commercial apartment building, 1#, 4# is a similar structure, 2#, 3# is a similar structure. Taking Building 4 as a typical design, the lobby uses wood veneer as wall decoration to create a warm feeling of living environment.
The elevator hall is made of stone, and the entrance of the standard corridor guest room is made of concave shape to increase the sense of volume and structure of the space. The wall is made of wallpaper, and the ground is made of anti-carpet adhesive, which is wear-resistant and easy to manage.
▼西区商务公寓楼平面图,West commercial apartment building floor plan

1#//4#首层区域说明:
1#//4# First layer area description:
1. 公寓大堂:地面采用灰米色水磨石,分割方式采用建筑外窗及立面作为延展造型
2. 大堂等候区:与大堂相比,硬装材质选用同类,在家具上采用异形简洁的座椅,在满足使用功能的情况下,体现其空间的艺术性。
3. 电梯厅:地面材质采用米白色水磨石,顶面利用软膜天花,满足照度的同时,提升其空间的美感及体量感。
1. The lobby of the apartment: The ground is made of grey-beige terrazzo, and the division method is extended by the external Windows and facades of the building
2. Lobby waiting area: Compared with the lobby, the hard installation material is the same, and the special-shaped and simple seats are used on the furniture, which reflects the artistry of the space while meeting the use function.
3. Elevator hall: The ground material is made of beige terrazzo, and the top surface is made of soft film ceiling, which can meet the illumination and enhance the aesthetic sense and volume sense of the space.
▼西区商务公寓楼-首层平面图4#,West Commercial Apartment Building - Ground Floor Plan 4#

▼公共区概念-公寓大堂4#,Public Area Concept - Apartment Lobby 4#


▼公共区概念-电梯厅4#,Public area Concept - Elevator Hall 4#

▼公共区概念-走道4#,Public Area Concept - Aisle 4#

▼公共区概念-客房4#,Common Area Concept - Room 4#


项目名称:济南超算中心科技园项目二期方案设计
项目时间:2020年
项目分类:室内设计-办公
项目地址:山东济南
设计面积:35341.42平方米
设计主创:王建伟
设计团队:叶建森、董涛、王慧敏、张振波、于本彦
建材:铝板、木饰面、石材、集成板材
设计范围:包括但不限于办公大堂、办公、公寓电梯厅、电梯轿厢等
设计单位:北京华城远大建设有限公司
项目业主单位:济南超算中心科技园
施工企业:华诚博远工程技术集团有限公司
设计定位:简洁、绿色环保、科技创新、现代化办公理念
Project name: Project design of the second phase of Jinan Supercomputing Center Science Park Project
Project time: 2020
Project category: Interior Design - Office
Project address: Jinan, Shandong Province
Design area: 35341.42 square meters
Design chief: Wang Jianwei
Design team: Ye Jiansen, Dong Tao, Wang Huimin, Zhang Zhenbo, Yu Benyan
Building materials: aluminum sheet, wood veneer, stone, integrated sheet
Design scope: including but not limited to office lobby, office, apartment elevator hall, elevator car, etc
Design unit: Beijing Huacheng Yuanda Construction Co., LTD
Project owner unit: Jinan Supercomputer Center Science Park
Construction enterprise: Huacheng Boyuan Engineering Technology Group Co., LTD
Design orientation: simple, green, scientific and technological innovation, modern office concept














