成溪云颂示范区项目,长春/室内

有“东方底特律”之称的吉林长春,是高新核心区发展较早的宜居区。周边聚集了支付力较高的高知及产研人群,人文氛围好;高品质宜居。项目如宝格丽酒店奢华风格,融合现代设计、华丽工艺以及对艺术细节,孜孜追求的现代都市风。
Changchun, known as "Eastern Detroit", is a livable area with early development in the high-tech core area. Surrounded by high paying intellectuals and industry research groups, the cultural atmosphere is good; High quality and livable. The project, such as the luxurious style of the Bulgari Hotel, combines modern design, luxurious craftsmanship, and the pursuit of modern urban style with artistic details.

以宝格丽酒店精致及商务轻奢注入整体的设计理念之中,云水的自然艺术植入空间布局,使用石材、木饰、水晶及金属材质提升空间品质感,点缀复古的小细节突出宝格丽的设计灵魂。
Injecting the exquisite and business luxury of the Bulgari Hotel into the overall design concept, the natural art of Yunshui is embedded in the spatial layout, using stone, wood decorations, crystal and metal materials to enhance the quality of the space, and embellishing retro small details to highlight the soul of Bulgari's design.
大量现代质感材质,同时与空间的功能性相结合。内部由一些开放和半开放的连续空间,光与影配合着在空间里呈现出律动之美。
A large number of modern texture materials, combined with the functionality of the space. The interior consists of some open and semi open continuous spaces, where light and shadow cooperate to present a rhythmic beauty.


一入大厅,映入眼帘的是石材台面上空宛若水滴阵列而成的组合吊灯,宛如海面划开一道道涟漪,绵延的浪花与侧面的水滴雕塑相互追逐,使整个空间熠熠生辉,别有一番生趣。
As soon as you enter the hall, you will see a combination of chandeliers above the stone countertop that resemble an array of water droplets, like ripples on the sea surface. The continuous waves chase after each other with the water droplet sculptures on the side, making the entire space shine and have a unique charm.


南侧接待台背景墙以几何元素的解构与重组的体块营造简约的氛围,金属、木饰面、深色石材的碰撞,刚柔并济,极具现代奢华酒店风。
The background wall of the reception desk on the south side creates a minimalist atmosphere with geometric elements deconstructed and reorganized blocks. The collision of metal, wood veneer, and dark stone creates a combination of hardness and softness, exuding a modern luxury hotel style.

北侧楼梯下方的景观池墙面,嵌入了上下交错的亚克力灯条,地面采用镜面不锈钢材质,同时延伸了空间视觉上的深度与广度也强调空间的通透感,与此同时亚克力灯条也与之相呼应,巧妙的在镜面不锈钢中营造了一片飘渺的水中倒影,为空间营造了丰富的层次感。
The landscape pool wall below the north staircase is embedded with alternating acrylic light strips. The ground is made of mirrored stainless steel material, which extends the visual depth and breadth of the space and emphasizes the transparency of the space. At the same time, the acrylic light strips also echo it, cleverly creating a ethereal reflection in the mirrored stainless steel, creating a rich sense of hierarchy for the space.

如今,在快节奏的当代,能够停下来偶尔小酌几杯是生活中放松的时刻。中岛的水吧台恰巧赋予了这个功能,给予了人们短暂的小憩时光。
Nowadays, in the fast-paced contemporary world, being able to stop and occasionally have a few drinks is a relaxing moment in life. The water bar on Nakajima coincidentally endowed this function, providing people with a brief rest time.




洽谈区
Negotiation area
位于水吧台北侧,是主要的交流区域。墙面采用如同宝石般的透光石作为主要基调,搭配古铜不锈钢线条几何,贯穿空间,构建序列。细节与设计所呈现的独特气质,将永恒探索的创造力,至美表达。大面积落地窗也在阳光的折射照耀下,温润了空间温度,提升身心的舒适感受度。
Located on the Taipei side of the Water Bar, it is the main communication area. The wall adopts a gemstone like translucent stone as the main tone, paired with ancient copper and stainless steel line geometry, running through the space and constructing a sequence. The unique temperament presented by details and design expresses the creativity of eternal exploration to the fullest. The large-area french window also warm the space temperature and enhance the comfort of body and mind under the refraction of sunlight.
软装家具整体选用了沉稳的灰咖色作为主色调,使整体空间更加温和,拉近社交情景的亲近距离,给人一种隐形的归属感。地毯和功能家具则以一种融合又跳脱的形式组合着,形成连贯而成统一的视觉感受。
The overall soft furnishings use a calm gray coffee color as the main color tone, making the overall space more gentle, bringing social scenes closer and giving people an invisible sense of belonging. Carpets and functional furniture are combined in a form of fusion and detachment, forming a coherent and unified visual experience.

▼洽谈区的树枝灯,Branch lights in the negotiation area


沙盘区
Sand table area
将设计语言运用到,遵守着少即是多的设计,没有加入多余的装饰,随着人们的走动,光影在有限的空间里投射出无限的阔度,于在室外面看,在室内其中,在方寸之间,都可获得震撼心灵的观感体验。
Applying design language to a design that adheres to the principle of 'less is more' without adding unnecessary decorations. As people move around, light and shadow project an infinite width into the limited space. When viewed from outside, within, and within every inch of the room, one can experience a stunning visual experience.


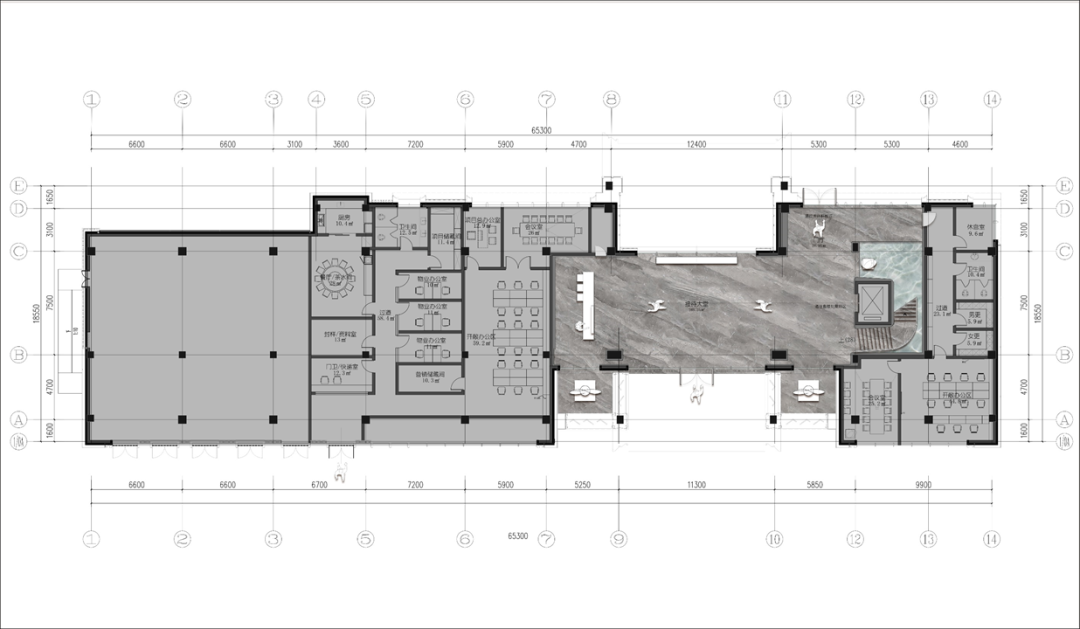
▼平面图,Plan view


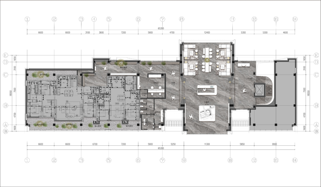
▼效果图,Rendering





“美其实并没有什么用处,它饥不可为食,冷不可为衣。但人类之所以区别其他物种的一点就在于,饮食男女之外还有更高尚的企求,美学便是其中之一。”——朱光潜
"Beauty is of no use. It cannot be fed by hunger and clothed by cold. But the reason why human beings differ from other species is that there are more noble pursuits besides men and women who eat and drink. Aesthetics is one of them." - Zhu Guangqian
每一处人居空间的诞生,都带着各自的独特“美”,人与空间邂逅,被色彩、线条、材质触动,因此活得有滋有味。此处空间在设计师的笔触之下,加入了巧妙的“混搭”,营造出一个轻奢典雅的空间,以轻盈灵动的艺术姿态强调精致不凡的生活情趣。
The birth of each living space carries its own unique "beauty". When people encounter the space, they are touched by colors, lines, and materials, so they live a lively and enjoyable life. Under the touch of the designer, this space incorporates clever "mixing and matching" to create a light and luxurious and elegant space, emphasizing exquisite and extraordinary life charm with a light and agile artistic posture.
客厅空间
Living room space

光影和温度,色彩与质感,共同创造了客厅空间的层次感。
Light and shadow, temperature, color and texture jointly create a sense of hierarchy in the living room space.

在大理石与米白色铺陈的空间里,随处可见的勃艮第红化形为地毯上的拼接色块,沙发上的抱枕,辅以咖色平衡空间气质,更为沉静大气。
In the space paved with marble and off white, Burgundy redness can be seen everywhere as patchwork color blocks on the carpet, and the pillows on the sofa are complemented by coffee color to balance the space temperament, making it more calm and atmospheric.
室内软装大量采用编织、皮质材质,将艺术的高级带入了室内,生活的温度与现代材质糅合出了细腻的奢华美。
Indoor soft furnishings use a large amount of woven and leather materials, bringing the advanced art into the interior. The temperature of life and modern materials blend together to create a delicate and luxurious beauty.


巨大落地窗带来充足的自然光线,物遇上了光,形成影子,在自然光与灯光的变化中,记录人的踪迹。
The huge french window bring sufficient natural light, and when things meet light, they form shadows, recording people's tracks in the changes of natural light and light.

“文学”是心灵的“避风港”。客厅书房演绎出一个兼具美学与实用性的空间,金属与原木相搭配的置物架是贯穿此处“天地”的灵魂点缀,是既时尚又奢华的格调体现。
Literature "is the" safe haven "of the soul. The living room and study create a space that combines aesthetics and practicality. The metal and wooden shelves are the soul embellishments that run through the "heaven and earth" here, reflecting a fashionable and luxurious style.


用餐空间
Dining space


客餐一体的格局打破了空间视觉上的平静,以一种延伸的姿态衔接用餐时刻。明亮奢侈的色彩搭配让餐厅看起来尤为现代摩登,无主灯设计兼具美学内涵,堆叠氛围,带来与众不同的别致美感。餐桌上井然有序地放置着精致餐具,浪漫的红色花卉与餐具上的勃艮第红丝带遥相呼应,与家人好友共享美食,倒上一杯红酒,畅谈生活里的小确幸。
The integrated pattern of dining and dining breaks the visual tranquility of the space, connecting the dining moments with an extended posture. The bright and luxurious color scheme makes the restaurant look particularly modern and modern, with no main lights and aesthetic connotations. The stacked atmosphere brings a unique and unique aesthetic feeling. Delicate tableware is placed orderly on the table. Romantic red flowers echo the Burgundy Red ribbon on the tableware, share food with family and friends, pour a glass of red wine, and talk about the small blessings in life.


干净整洁,上下排柜橱极具实用性,艺术与家具融为一体,展现高品位生活。
Clean and tidy, the upper and lower cabinets are highly practical, integrating art and furniture, showcasing a high-end lifestyle.
卧室空间
Bedroom space


主卧温暖而不炙热,萃取万物之美倾注于此。大地色与勃艮第红覆盖肌肤,布艺、皮草、麂皮带来繁复迤逦之美,床头背景选用卡其色,并挂有一个轻奢感十足的挂饰,为雅致的空间注入一丝小资情调;金属灯具精巧无比,悦目怡情。
The master bedroom is warm but not hot, extracting the beauty of everything and pouring it into it. The earth color and Burgundy red cover the skin, and the fabric, fur and chamois bring the beauty of complexity and meaningfulness. The Khaki background is selected on the bedside, and a pendant with a sense of luxury is hung, which adds a touch of petty bourgeoisie to the elegant space; The metal lighting fixtures are extremely exquisite and pleasing to the eyes and emotions.
阳光透过飘逸的纱窗与梳妆台相约,用光线描绘出灵动的空间效果。
The sunlight shines through the flowing screen window and meets the dressing table, depicting a dynamic spatial effect with light.

女孩房以“音乐”为设计灵感,床头墙的音符装饰和五线谱墙画融入勃艮第红,仿佛在演奏一首热情洋溢的乐曲;床上用品和窗帘上均有凌乱又不失美感的线条设计,别具巧心,使整个空间活泛起来。
The girl's room is inspired by "music" in its design, and the note decoration on the bedside wall and the staff wall painting blend with Burgundy red, as if playing an passionate piece of music; The bedding and curtains have messy yet aesthetically pleasing line designs, with a unique sense of cleverness that enlivens the entire space.



男孩房选用动漫“宝可梦”里的经典“蓝红”配色,高级又不失律动,棒球元素彰显男孩的活泼;室内搭配书桌,可以满足孩子学习与阅读的需求,动静皆宜。
The boy's room adopts the classic "blue red" color scheme from the anime "Pok é mon", which is high-end yet rhythmic, with baseball elements showcasing the boy's liveliness; Indoor combination with a desk can meet children's learning and reading needs, both dynamic and static.



休闲空间
Leisure space
家庭房作为娱乐休闲的空间,充满了艺术元素,艺术雕塑品、艺术壁画,给此空间注入了艺术氛围。温润皮质沙发与柔软触感的地毯呈现出丰富的层次感,低饱和度的空间主色表达出平和的空间气质,辅以勃艮第红和克莱因蓝的细节,尤为时髦,点亮生活里的热忱。
As a space for entertainment and leisure, the family room is full of Elements of art, artistic sculptures and murals, which inject an artistic atmosphere into the space. The warm leather sofa and soft tactile carpet present a rich sense of layering, while the low saturation space main color expresses a peaceful spatial temperament, complemented by details of Burgundy red and Klein blue, which are particularly fashionable and light up the enthusiasm in life.


项目信息
ABOUT THE PROJECT
项目名称:长春成溪云颂示范区项目
项目区位:中国·长春
开发商信息:龙湖地产东北公司
开发商设计管理团队:惠明 张凯淳
设计公司:北京靳朝晖设计有限公司
精装设计总监:万超
软装设计总监:范蓉
精装设计:丁铭亮 杨二亮 徐芸娜 孟繁金 贺永恒
软装设计:栗娇 白潇 白丹丹 向文 许文雅 李函洺
样板间精装设计公司:沈阳井言设计顾问有限公司
项目经理:王玉宝
品牌推广:家伟 张淼
摄影团队:睿奇摄影
建筑设计:成执设计
Project Name: Changchun Chengxi Yunsong Demonstration Zone Project
Project location: Changchun, China
Developer information: Longfor Properties Northeast Company
Developer Design Management Team: Huiming Zhang Kaichun
Design company: Beijing Jinchaohui Design Co., Ltd
Fine Decoration Design Director: Wan Chao
Soft Decoration Design Director: Fan Rong
Hardbound design: Ding Mingliang, Yang Erliang, Xu Yunna, Meng Fanjin, He Yongheng
Soft Decoration Design: Li Jiao, Bai Xiao, Bai Dan, Xiang Wen, Xu Wenya, Li Hanming
Model Room Decoration Design Company: Shenyang Jingyan Design Consulting Co., Ltd
Project Manager: Wang Yubao
Brand promotion: Jia Wei, Zhang Miao
Photography team: Ruiqi Photography
Architectural Design: Chengzhi Design














