江西际洲星辰幼儿园,江西/室内
设计理念:
Design concept:
1. 以儿童为中心,以轻快活跃为主线,孩子们感受到环境带给他们的乐趣。教师办公区临近教学区,以便即时互动。
2. 以“树”的形态作为设计元素,一种形态为诙谐有力的枝干,象征父爱的给予与付出;一种形态为枝繁叶茂小树,象征寄予孩子的希望和成长。
3. 充分考虑儿童所需环境,提供相对开放的教学环境。
4. 考虑晨检室、隔离间要与整个教学流线做到不交叉,设置独立安全出口,营造良好的教学空间。
5. 体现园区形象,设置接待与公共展厅。。
6. 充分考虑安全性,充分考虑环境卫生控制,在家具及空间设备避免直角,以免孩子们发生碰撞。
1. With children as the center and light and active as the main line, children feel the fun brought by the environment.Teachers' offices are close to the teaching area for instant interaction.
2. Take the form of "tree" as the design element, a form of humorous and powerful branches, symbolizing the father's love Give and pay; One form is a leafy small tree, symbolizing hope and growth for children.
3. Give full consideration to the environment required by children and provide a relatively open teaching environment.
4. Consider that the morning test room and isolation room should not cross with the entire teaching flow line, and set up independent safety exits.Create a good teaching space.
5. Reflect the image of the park, set up reception and public exhibition halls.
6. Give full consideration to safety, give full consideration to environmental health control, avoid right angles in furniture and space equipment,So the kids don't collide.

归属感:利用空间色彩,打造温馨舒适的教学环境。
Sense of belonging: Use space color to create a warm and comfortable teaching environment.
▼概念提取,Concept extraction

安全性:
1. 建筑主体的安全(工程质量、结构安全性、装修材料);
2. 空间的安全(环境的无障碍性;地面平整、趋地、不同房间之间交通的足够缓冲和回旋余地……);
3. 幼儿的安全(尺度;水电暖设备安装 隐蔽性、墙地面棱角处理);
4. 空间对幼儿的影响:行为限制、行为诱导、行为的综合满足。
Safety:
1. The safety of the main building (engineering quality, structural safety, decoration materials);
2. Safety of space (accessibility of environment; Ground level, ground orientation, sufficient buffer and leeway for traffic between different rooms...) ;
3. Safety of young children (scale; Water and electricity heating equipment installation concealment, wall ground edge treatment);
4. The influence of space on children: behavior restriction, behavior induction, and comprehensive satisfaction of behavior.
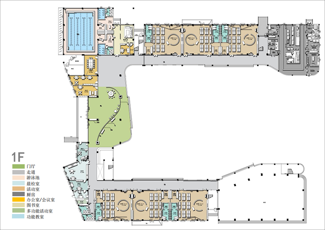
▼平面规划1F,Plane plan 1F

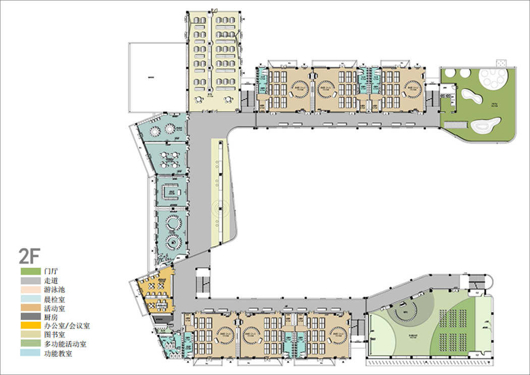
▼平面规划2F,Plane plan 2F

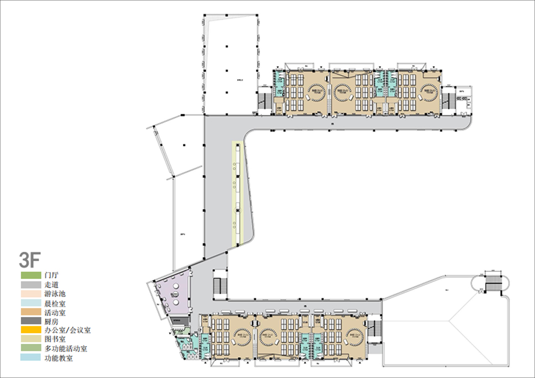
▼平面规划3F,Plane plan 3F

▼空间流线,Spatial streamline

品质性:
1.物质环境舒适度(家具 光源 隔声 通风);满足功能性,追求艺术性;
2.管理流程高效;
3.提升品牌价值。
Quality:
1. Physical environment comfort (furniture light source sound insulation ventilation); Meet the function, the pursuit of art;
2. Efficient management process;
3. Enhance brand value.
▼公共区域效果-前厅,Public area effect - Front room



▼公共区域效果-楼梯间,Public area effect - Stairwell

▼标准教室效果-标准走廊,Standard classroom effect - Standard hallway

▼功能教室效果-图书室,Functional classroom effects - Library


▼功能教室效果-模拟厨房,Functional classroom effect - simulated kitchen

▼功能教室效果-积木室,Functional classroom effects - Building blocks Room

▼功能教室效果-科学探索室,Functional Classroom Effects - Science Exploration Room

▼功能教室效果-美工室,Functional classroom effects - Art Room

▼功能教室效果-美工室(加隔墙),Functional Classroom Effects - Art Room (with partition wall)

▼功能教室效果-多功能活动室,Functional classroom effect - multi-functional activity room


▼标准教室效果-活动室(一层),Standard Classroom Effects - Activity Room (1st floor)

▼标准教室效果-活动室(二层),Standard Classroom Effects - Activity Room (2nd floor)

▼标准教室效果-活动室(三层),Standard Classroom Effects - Activity Room (3rd floor)

▼标准教室效果-卫生间,Standard classroom effect - Bathroom

▼公共区域效果-游泳馆,Public area Effect - Swimming pool

▼办公区效果-标准办公室,Office area Effect - Standard office

▼办公区效果-会议室,Office area Effect - Meeting room

项目名称:江西际洲星辰幼儿园
文章分类:室内设计-教育科研
项目地址:江西省上饶市
项目规模:9000平米
设计主创:王建伟
设计团队:叶建森,董涛,王慧敏,张振波,于本彦
设计公司:北京华城远大建设有限公司
建 材: 铝板 波纹钢 木饰面 生态漆
项目年份:2020
业主单位:际洲集团
施工企业: 际洲集团
Project Name: Jiangxi Jizhou Xingchen Kindergarten
Article classification: Interior Design - Education and Research
Project address: Shangrao City, Jiangxi Province
Project scale: 9000 square meters
Designer: Wang Jianwei
Design team: Ye Jiansen, Dong Tao, Wang Huimin, Zhang Zhenbo, Yu Benyan
Design company: Beijing Huacheng Yuanda Construction Co., Ltd
Building materials: aluminum plate corrugated steel wood veneer ecological paint
Project Year: 2020
Owner: Jizhou Group
Construction enterprise: Jizhou Group














