金融街富国里早教培训中心改造装饰项目,北京/室内
设计说明:
Design description:
大自然万物随着世界推移生长,蕴含面貌独特性,而空间本质也会随着环境、时间与人文演进,产生使用情境的多样性。我们探索环境之于所引发的情感,探究情感连结记忆无限延伸的可能性,当记忆随着时间流转,衍生材质之于空间的视觉叙事,城市的快速发展和扩张,导致人们对公共教育设施,尤其是幼儿早教类的需求日益渐增。幼儿活动教育中心在社区充当了重要的公共职能。本次设计,以“沉睡的山丘”为题,在精神上赋予童话色彩,带有趣味性。在整个空间造型上,以“山丘”为原型,进行概念提取,应用到空间中。使得室内一景一物便有了本质存在的意义。空间本身原有的采光条件不是很好,而且根据空间性质不同,不便做太多的封闭隔墙。以前台为中心形成连续性,体现其办学的传承性,传承教育发展的凝聚力。当然更希望整个空间在动线功能分区上更加开放、自由、彼此相互连接,让距离感消失,让整个空间整体中带有活跃。在空间配色上我们以暖色调木色作为空间主调,展现其沉稳以及温馨感。以绿色和蓝色作为配色,来体现希望和活跃性。孩子是每一个家庭的希望,每一家庭的寄托,他们希望孩子健康成长,当然在成长的路上积极进取不断超越。因此与本次设计的主题“沉睡的山丘”不谋而合,延绵的山丘体现延续、传承、和不断进取,山丘的色调绿色给人生命活力以及希望。营造舒适趣味性空间。在设计过程中,不仅追求品味,背后更经过深入的洞察。根据使用者直接、间接形成和隐藏的需求,然后通过恰到好处、一脉相承的设计,来形成更加灵活、动态、新异的协作空间。
All things in nature grow with the passage of the world and contain unique features, while the nature of space will also evolve with the environment, time and humanity, resulting in the diversity of use situations. We explore the emotions triggered by the environment, and explore the possibility of infinite extension of emotion-linked memory. As memory flows over time, the visual narrative of space derived from materials, and the rapid development and expansion of cities, people's demand for public education facilities is increasing, especially for early childhood education. The early childhood Activity and education Center serves as an important public function in the community. This design, with "sleeping hill" as the title, gives fairy tale color in spirit, with fun. In the whole space modeling, the concept of "hill" is extracted and applied to the space. It makes a scene and a thing in the room have the meaning of essential existence. The original lighting conditions of the space itself are not very good, and according to the different nature of the space, it is inconvenient to do too many closed partitions. The formation of the continuity of the former station as the center reflects the inheritance of its school running and the cohesion of the development of inheritance education. Of course, I hope that the whole space is more open, free and connected to each other on the moving line function partition, so that the sense of distance disappears and the whole space is active. In the space color matching, we use warm wood color as the main tone of the space, showing its calm and warm feeling. Use green and blue as a color scheme to reflect hope and activity. Children are the hope of every family, the sustenance of every family, they hope that children grow up healthily, of course, on the way to growth and continue to go beyond. Therefore, it coincides with the theme of this design, "sleeping hill", the extended hill reflects continuity, inheritance, and continuous progress, and the green color of the hill gives people life vitality and hope. Create a comfortable and interesting space. In the design process, not only the pursuit of taste, behind the more in-depth insight. According to the user's direct, indirect formation and hidden needs, and then through the right, consistent design, to form a more flexible, dynamic, new collaboration space.
▼方案概念-缓释班活动区,Program concept - Slow release class activity area


方案思考:
Project consideration:
1. 以儿童为中心,以轻快活跃为主线,孩子们感受到环境带给他们的乐趣。教师办公区临近教学区,以便即时互动。
2. 充分考虑儿童所需环境,提供相对开放的教学环境。
3. 充分考虑感控要求,做到洁污分流;污物与儿童通道分流;设置足够的手盆,保证卫生的要求。
4. 能够显示明确的指示标志,以便孩子们能准确的找到目的地。
5. 考虑针对不同年龄儿童空间规划,使兴趣班与缓释班流线不交叉,营造良好的学习空间。
6. 体现对儿童家长的关心,设置足够的等候区、卫生间。
7. 充分考虑安全性,充分考虑环境卫生控制,在家具及空间设备避免直角,以免孩子们发生碰撞。设置必要的消毒空间。
8. 布局时,考虑合理性,同时把标识系统融入到空间布局内,使导视系统更清晰。
9. 分区时,考虑不同年龄段儿童的特点,在分区时应明确划分区域。
10. 等候区分级等候,针对儿童年龄不同需求不同,我们设置普通等候区和哺乳间。
1. With children as the center and light and active as the main line, children feel the fun brought by the environment. Teachers' offices are close to the teaching area for instant interaction.
2. Give full consideration to the environment required by children and provide a relatively open teaching environment.
3. Fully consider the requirements of sensitivity control to achieve clean and dirty separation; Sewage and children channel diversion; Set up enough handpots to ensure hygiene requirements.
4. Be able to display clear indication signs so that children can accurately find the destination.
5. Consider space planning for children of different ages, so that the flow lines of interest class and slow-release class do not cross, and create a good learning space.
6. Reflect the concern for children's parents, set up enough waiting areas, toilets.
7. Give full consideration to safety, give full consideration to environmental health control, avoid right angles in furniture and space equipment, so as to avoid collisions between children. Set up the necessary disinfection space.
8. When layout, consider rationality, and integrate the identification system into the spatial layout to make the guide system clearer.
9. When zoning, consider the characteristics of children of different ages, and the area should be clearly divided when zoning.
10. Waiting area is graded. According to the different needs of children at different ages, we set up ordinary waiting area and nursing room.
▼方案概念-走廊,Project concept - Corridor

概念分析:
Conceptual analysis:
归属感:
1. 利用空间色彩,影响幼儿的情绪体验。
2. 空间功能多样化;引导归属感形成——提供幼儿在活动中实现主观、价值的使用性空间(行为参与/行为认知)。
感控:
1. 环境卫生。
2. 灯光的感控。
3. 人流(师资/孩子年龄不同流线不分)。
4. 色彩感控(区分区域)。
5. 装饰风格。
Sense of belonging:
1. Use space color to affect children's emotional experience.
2. Diversification of spatial functions; Guide the formation of a sense of belonging - provide children with the use of space to realize subjective and value in activities (behavioral participation/behavioral cognition).
Control:
1. Environmental hygiene.
2. Sensory control of lighting.
3. Flow of people (teachers/children of different ages are not distinguishable).
4. Color sense control (distinguish areas).
5. Style of decor.
▼方案概念-缓释班模拟活动区,Scheme concept - Simulated activity area for slow release class

安全性:
1. 建筑主体的安全(工程质量、结构安全性、装修材料)。
2. 空间的安全(环境的无障碍性;地面平整、趋地、不同房间之间交通的足够缓冲和回旋余地……)。
3. 幼儿的安全(尺度;水电暖设备安装 隐蔽性、墙地面棱角处理)。
4. 空间对幼儿的影响:行为限制、行为诱导、行为的综合满足)。
可控性:
1. 通过空间平面布置影响教育体系及日常管理流程。
2. 通过空间氛围的营造,建设教育品牌文化、把控教学情境
针对性(幼儿生活在行为上对于空间被动性更强):
1. 好动而稳定性差,有赖于环境为其提供行动的支撑。
2. 好奇而持续时间短,环境的趣味性因素在其兴趣转换过程中,对下一兴趣中心的形成起诱导作用。
3. 是游戏时姿势趋于席地缘墙,直接表现出对于环境的依赖。
4. 幼儿的人体尺度、日常生活和学习规律、对彩色和形状的认知程度…进行群体活动时,考虑空间荷载。
品质性:
1. 物质环境舒适度(家具 光源 隔声 通风);满足功能性,追求艺术性。
2. 管理流程高效
3. 提升品牌价值
Security:
1. The safety of the main building (engineering quality, structural safety, decoration materials).
2. Safety of space (accessibility of environment; Ground level, ground orientation, sufficient buffer and leeway for traffic between different rooms...) .
3. Safety of young children (scale; Water and electricity heating equipment installation concealment, wall ground edge treatment).
4. The influence of space on children: behavior restriction, behavior induction, and comprehensive satisfaction of behavior).
Controllability:
1. Influence the education system and daily management process through spatial layout.
2. Build educational brand culture and control teaching situation through the creation of space atmosphere
Pertinence (children's lives are more passively spatial in behavior) :
1. Active but poor stability depends on the environment to provide action support.
2. Curiosity and short duration, the interest factor of the environment in the process of interest conversion, to the formation of the next interest center plays an induction role.
3. The posture tends to the geo-wall during the game, which directly reflects the dependence on the environment.
4. Children's human body size, daily life and learning rules, cognition degree of color and shape... When performing group activities, consider spatial loads.
Quality:
1. Physical environment comfort (furniture light source sound insulation ventilation); Meet the functionality, the pursuit of art.
2. Efficient management process
3. Enhance brand value
▼方案概念-托管班,Program concept - Hosting class

▼方案概念-兴趣班,Program concept - Interest class


材质分析:
无孔矿棉吸音板和石膏板结合,吸声 、便于维护,节能并环保;
墙面乳胶漆、石材、木饰面、竹木板或壁纸;
木纹饰面采用防火板,色彩温馨,易清洁和抗菌,选用易清洁和抗菌的产品;
公共区地面塑胶、地砖,工作区地毯,耐磨、吸音、易清洁;
二次反射灯盘、反光灯带和LED射灯、筒灯结合,避免直射、营造氛围、光线柔和。
Material analysis:
Non-porous mineral wool sound absorption board and gypsum board, sound absorption, easy maintenance, energy saving and environmental protection;
Wall latex paint, stone, wood finish, bamboo board or wallpaper;
Wood decoration with fire-proof board, warm color, easy to clean and antibacterial, choose easy to clean and antibacterial products;
Public area floor plastic, floor tile, working area carpet, wear-resistant, sound-absorbing, easy to clean;
Secondary reflection lamp panel, reflector strip and LED spotlights, downlights combined to avoid direct exposure, create atmosphere, soft light.
▼材质分析,Material analysis

▼方案效果图-前厅接待,Plan renderings - Front office reception






▼方案效果图-教学走廊,Project renderings - Teaching corridor

▼方案效果图-缓释班,Solution renderings - slow release class


▼平面布置图,Floor plan

▼色彩平面,Color plane

▼色彩立面,Color facade

▼功能分区图,Functional partition chart


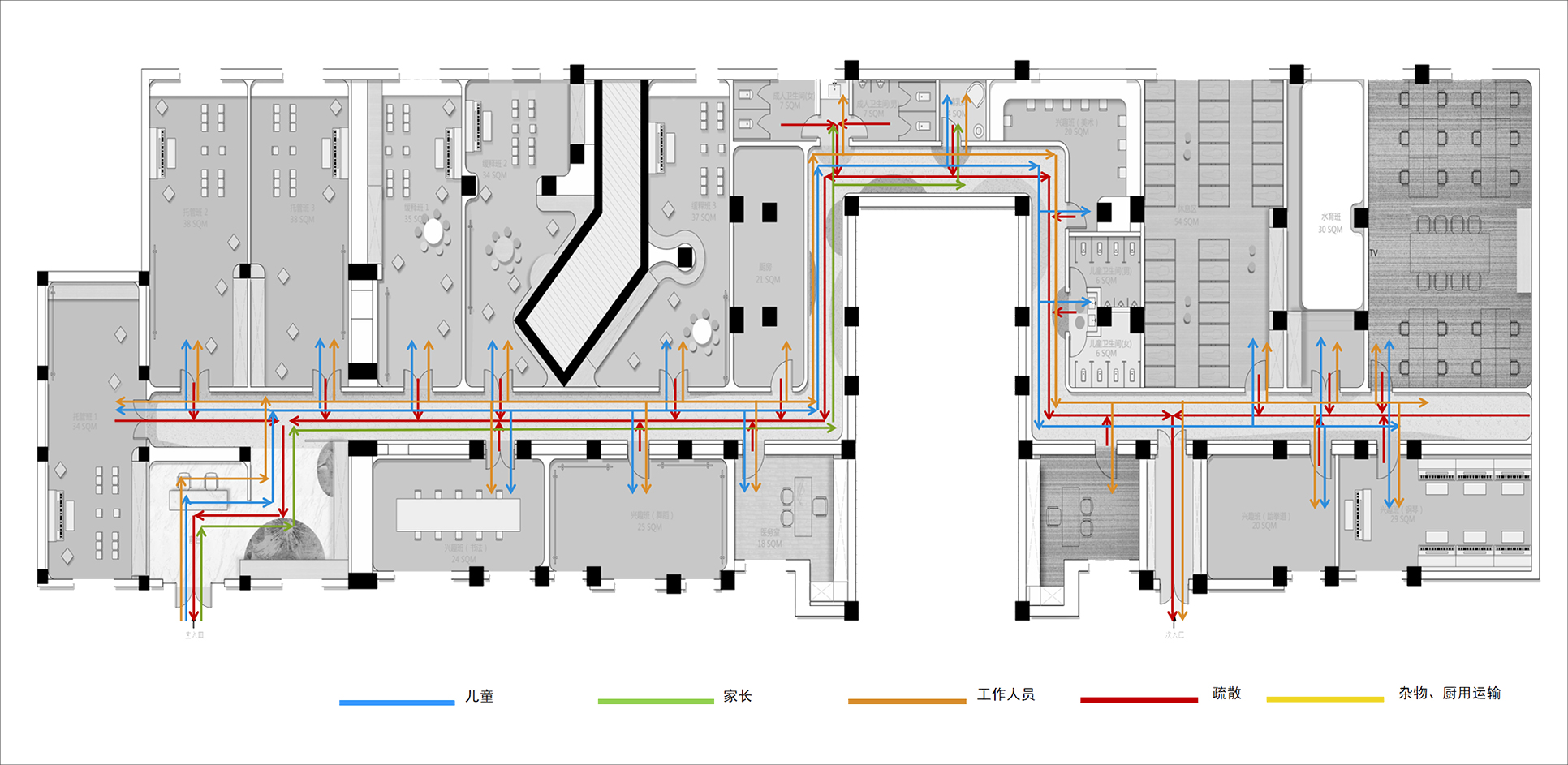
▼流线分析图,Streamline analysis diagram

▼功能分区图,Functional partition chart

▼轴侧图,Axial view




▼剖面图,Profile map

文章分类:室内设计-办公会议
项目地址:北京丰台科技园区
项目规模:30000平米
设计主创:王建伟
设计团队:叶建森,董涛,于本彦,张旭
设计公司:北京华城远大建设有限公司
建 材: 铝板 波纹钢 木饰面 生态漆
项目年份:2018
业主单位:金融街富国里
施工企业: 华诚博远工程技术集团有限公司
Article classification: Interior Design - Office Meetings
Project address: Fengtai Science and Technology Park, Beijing
Project scale: 30000 square meters
Designer: Wang Jianwei
Design team: Ye Jiansen, Dong Tao, Yu Benyan, Zhang Xu
Design company: Beijing Huacheng Yuanda Construction Co., Ltd
Building materials: aluminum plate corrugated steel wood veneer ecological paint
Awards Received:
Project Year: 2018
Employer: Fuguoli, Financial Street
Construction enterprise: Huacheng Boyuan Engineering Technology Group Co., Ltd














