新华国际教育中心,北京/室内
设计说明:整体设计为开放灵活的办公空间,尽可能利用活动家具区分不同的工作区,减少现场制作工程,选用环保生态的定制产品和成品,提高可再利用回收比例,降低成本且更加环保,利于施工进度和简化管理流程。
Design Description: The overall design is an open and flexible office space, utilizing movable furniture to distinguish different work areas as much as possible, reducing on-site production projects, selecting environmentally friendly and ecological customized products and finished products, increasing the proportion of recyclable and recyclable products, reducing costs, and making it more environmentally friendly, which is conducive to construction progress and simplifying management processes.
▼功能分区-1F,Function partition -1F
项目室内设计面积为5600㎡,分为AB、CD两栋。设计内容主要以两栋大堂设计电梯厅及公共活动区为主。
The interior design area of the project is 5600 square meters, divided into AB and CD two buildings. The design content mainly focuses on the elevator hall and the public activity area of the two lobbies.
▼AB座平面布局-1F,AB flat layout -1F

▼AB座大堂,Block AB lobby

▼AB座大堂效果图,AB block lobby rendering

▼AB大堂标准电梯厅效果图,AB lobby standard elevator hall renderings

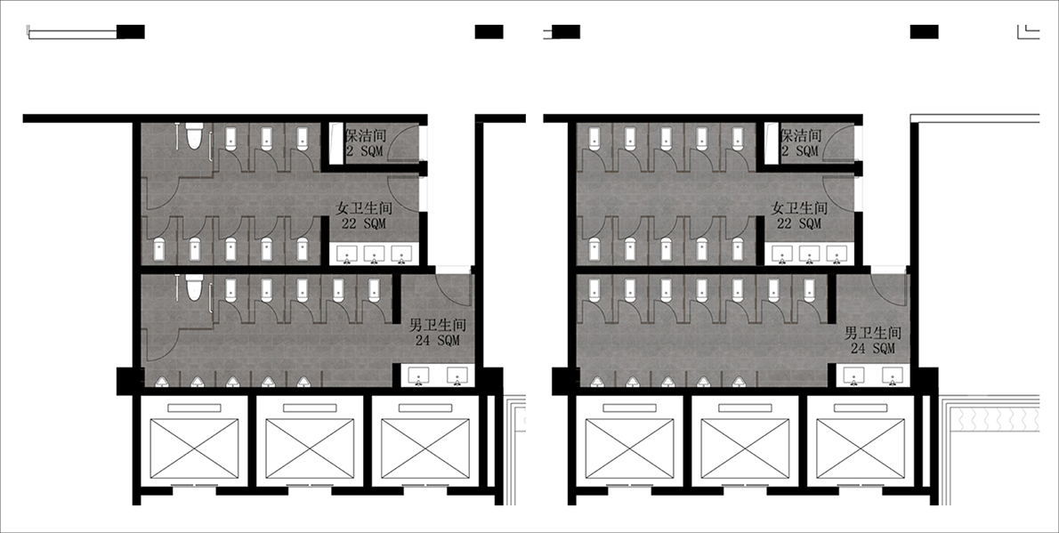
▼AB标准卫生间平面图,AB Standard bathroom plan

▼AB标准卫生间效果图,AB standard bathroom renderings


项目地址为北京市丰台区丰台科技园。
The project address is Fengtai Science Park, Fengtai District, Beijing.
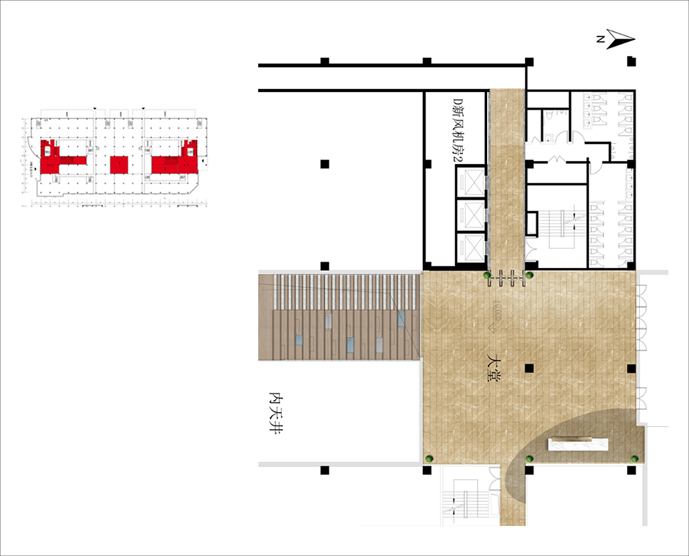
▼CD座平面布局-B1-1F,CD seat layout -B1-1F

▼CD座大堂,CD block lobby

▼CD座大堂效果图,CD block lobby rendering


▼CD座大堂天井效果图,Rendering of CD Block lobby patio

▼CD座大堂标准电梯厅效果图,CD block lobby standard elevator hall renderings

▼CD座大堂标准电梯轿厢效果图,CD block lobby standard elevator car effect

项目名称:新华国际教育中心
文章分类:室内设计-科研教育
项目地址:北京丰台科技园区
项目规模:30000平米
设计主创:王建伟https://www.iecwww.com/design/designer.html?designer_id=546
设计团队:叶建森,董涛,于本彦,张旭,周连成
设计公司:北京华城远大建设有限公司
建 材:石材 铝板 波纹钢 木饰面
项目年份:2018
业主单位:新华国际教育中心
施工企业: 华诚博远工程技术集团有限公司
Project Name: Xinhua International Education Center
Article classification: Interior Design - Research Education
Project address: Fengtai Science and Technology Park, Beijing
Project scale: 30000 square meters
Designer: Wang Jianwei https://www.iecwww.com/design/designer.html?designer_id=546
Design team: Ye Jiansen, Dong Tao, Yu Benyan, Zhang Xu, Zhou Liancheng
Design company: Beijing Huacheng Yuanda Construction Co., Ltd
Building materials: stone, aluminum plate, corrugated steel, and wood veneer
Project Year: 2018
Owner: Xinhua International Education Center
Construction enterprise: Huacheng Boyuan Engineering Technology Group Co., Ltd














