信和宝岛月子会所室内设计,北京/室内
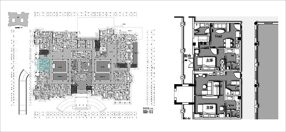
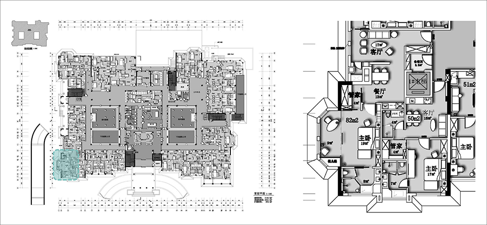
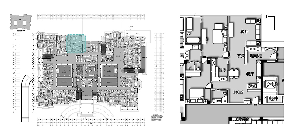
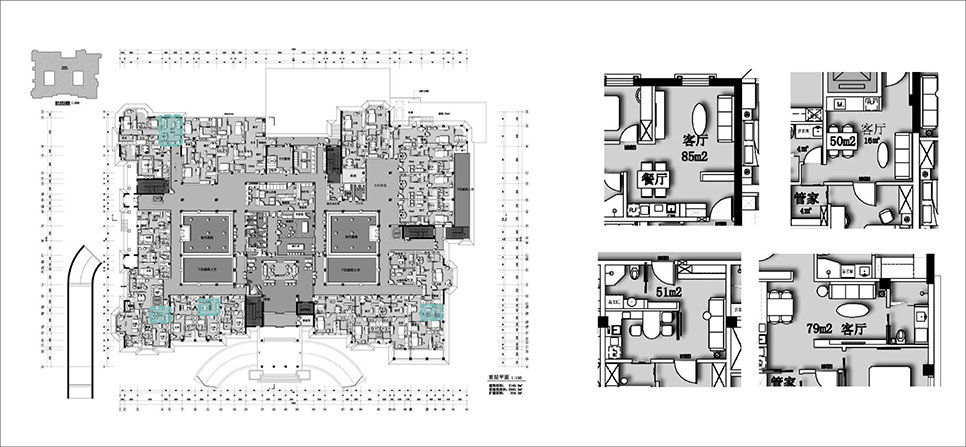
▼彩色平面图-首层,Color plan - Ground floor

设计说明:
Design description:
1.分析:
一个完全陌生的环境,对刚生完宝宝的母亲来说很难获得安定感,不像在家那样放松。
即使相对熟悉,也需要接纳的过程。过程的长短在于对空间的感受,在受到足够的关爱时才能安定,安静,从而产生喜悦,带着这样的问题我们探索一种能给人带来温馨、柔和、被关爱的空间。
1. Analysis:
A completely unfamiliar environment, it is difficult for the mother who has just given birth to a baby to get a sense of peace, not as relaxed as at home.
Even if it is relatively familiar, it requires a process of acceptance. The length of the process lies in the feeling of space. Only when we receive enough care can we settle down and be quiet, thus generating joy. With this problem, we explore a space that can bring warmth, tenderness and care to people.
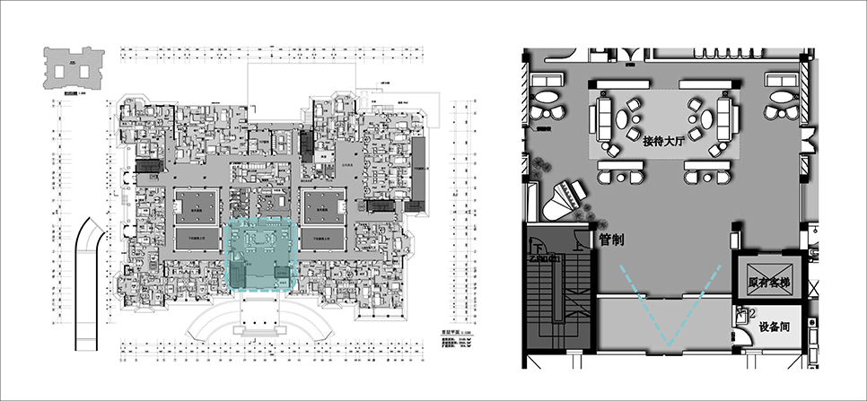
▼视角平面图-大厅1F,View Plan - Hall 1F

▼效果图-大厅入口1F,Renderings - Lobby entrance 1F

▼效果图-接待区1F,Rendering - Reception area 1F

▼效果图-洽谈/等候区1F,Renderings - Negotiation/waiting area 1F

▼视角平面图-换鞋区1F,View plan - Shoe change area 1F

▼效果图-走道换鞋区1F,Effect picture - Walkway shoe change area 1F

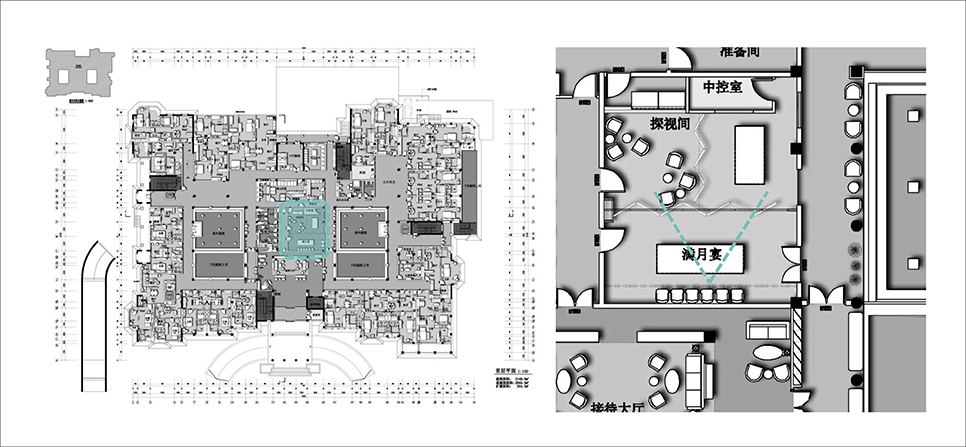
▼视角平面图-满月宴/培训教室1F,View Plan - Full Moon Banquet/Training Room 1F

▼效果图-满月宴/培训室1F,Renderings - Full Moon Banquet/Training Room 1F

▼视角平面图-卫生间(家庭间/无障碍间)1F,View Plan - Bathroom (Family/Mobility accessible) 1F

▼效果图-家庭间/无障碍间1F,Renderings - Family Room/Mobility Accessible Room 1F

▼效果图-女卫公共区1F,Renderings - Female Guard public Area 1F

▼效果图-女卫隔间1F,Renderings - Female bathroom cubicle 1F

▼效果图-哺乳间1F,Renderings - Nursing room 1F

▼视角平面图-过道/休息区/护士站1F,View plan - Aisle/rest area/Nurses station 1F

▼效果图-过道/休息区/护士站(一层)1F,Renderings - Aisle/rest area/Nurses Station (1st floor) 1F

▼效果图-VIP电梯厅1F,Renderings -VIP Elevator Hall 1F

▼效果图-VIP电梯轿厢1F,Renderings -VIP elevator car 1F

▼效果图-电梯轿厢1F,Renderings - Elevator car 1F

▼效果图-楼梯间1F,Rendering - Stairwell 1F


2.概念:生命与自然 / 爱的礼物
生命是大自然馈赠的礼物,端庄美丽,高贵而年轻。一个新生命的诞生犹如春天般总能留给我们一段美好的回忆。以春天的花卉作为概念主题。并融入礼物的概念( tiffany 蒂芙尼礼盒和色彩)。
2. Concept: The gift of life and nature/love
Life is a gift from nature, dignified and beautiful, noble and young. The birth of a new life like spring always leaves us with a good memory. Spring flowers as the concept theme. And incorporate the gift concept (tiffany gift box and color).
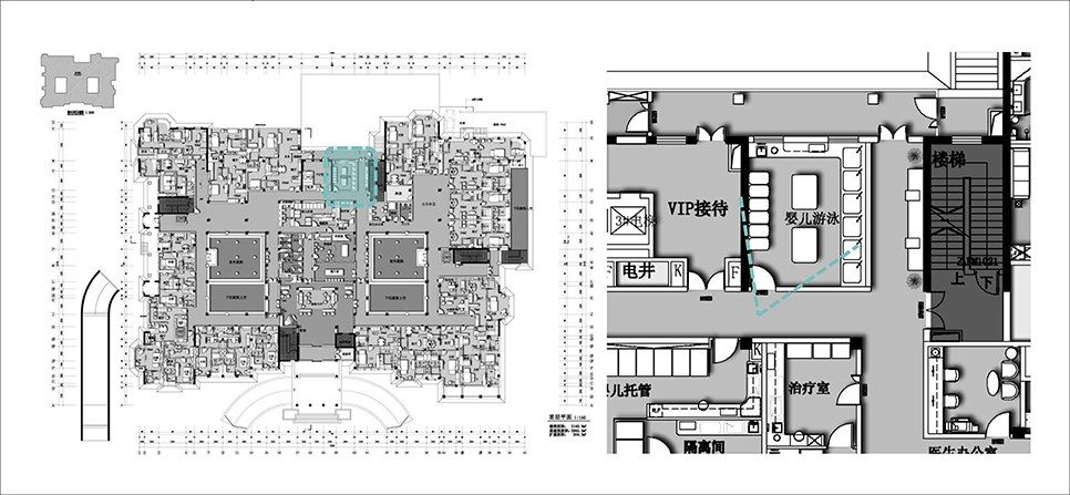
▼视角平面图-婴儿游泳室1F,View plan - Baby swimming room 1F

▼效果图-婴儿游泳室1F,Renderings - Baby swimming room 1F

▼效果图-婴儿游泳室等候区1F,Renderings - Baby swimming room waiting area 1F

3.空间营造:
一个文化氛围较浓的环境往往能让人很快接纳并且喜欢上。结合概念元素把空间打造成一个文化艺术殿堂。设计中考虑展示功能。可以不定时的举办一些主题展,既丰富了客人生活,又提升了空间品质。空间主要以艺术品、文字、音乐相结合,营造一个立体式的文化空间氛围,让人留下一段美好的回忆。一个如春天般,充满关爱的空间,岂不是一份爱的礼物而让人感动。
3. Space creation:
An environment with a strong cultural atmosphere can often be quickly accepted and liked by people. Combine the conceptual elements to build the space into a palace of culture and art. Design with presentation in mind. Some theme exhibitions can be held from time to time, which not only enrichis the life of guests, but also improves the quality of space. The space mainly combines art, text and music to create a three-dimensional cultural space atmosphere and leave a good memory. A space like spring, full of love, is not a gift of love and let people move.
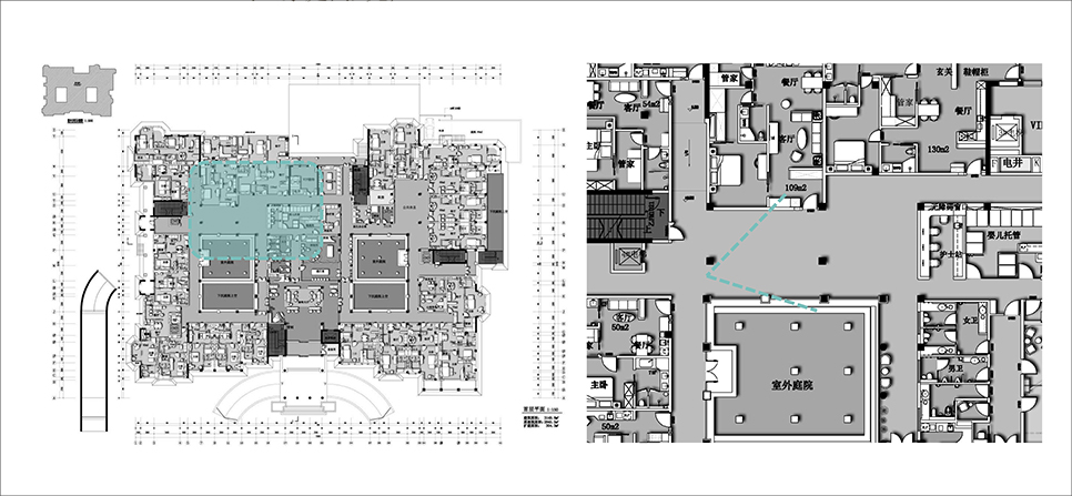
▼视角平面图-60㎡客房1F,View Floor plan -60㎡ Room 1F

▼效果图-60㎡客厅1F,Renderings - 60m2 living room 1F

▼效果图-60㎡餐厅1F,Renderings -60㎡ restaurant 1F


▼效果图-60㎡卧室1F,Renderings -60㎡ bedroom 1F

▼视角平面图-70㎡客房1F,View Floor plan -70㎡ Room 1F

▼效果图-70㎡客厅1F,Renderings -70㎡ living room 1F

▼效果图-70㎡操作区1F,Renderings -70㎡ operation area 1F

▼效果图-70㎡卧室1F,Renderings -70㎡ bedroom 1F

▼视角平面图-80㎡客房1F,View Floor plan -80㎡ Room 1F

▼效果图-80㎡客厅1F,Renderings -80㎡ living room 1F

▼效果图-80㎡餐厅1F,Renderings -80㎡ restaurant 1F

▼效果图-80㎡卧室1F,Renderings -80㎡ bedroom 1F

▼视角平面图-Svip130㎡客房1F,View floor plan -Svip130㎡ Room 1F

▼效果图-Svip130㎡客厅1F,Rendering-svip130 ㎡ living room 1F

▼效果图-Svip130㎡餐厅1F,Renderings -Svip130㎡ Restaurant 1F

▼效果图-Svip130㎡卧室1F,Renderings -Svip130㎡ bedroom 1F

细节与标准化设计
Details and standardized design
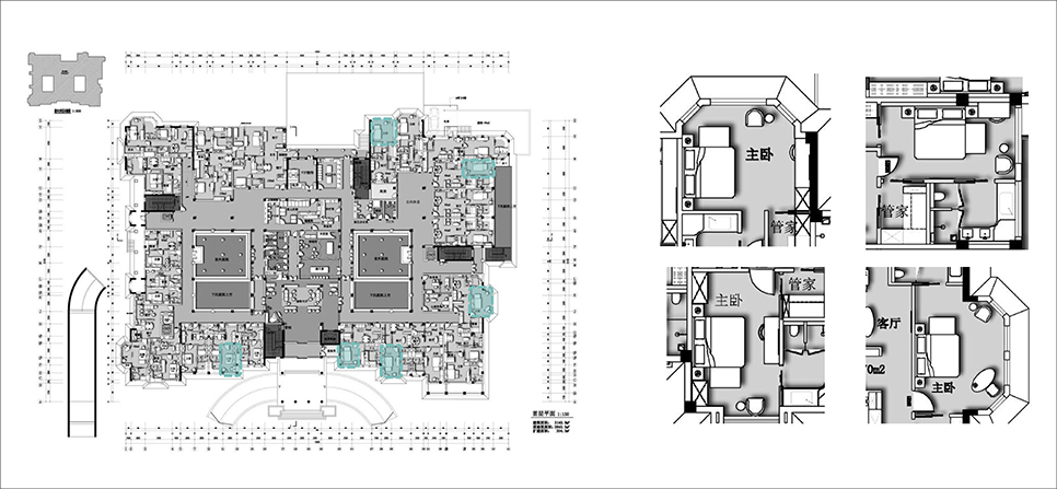
▼视角平面图-客房1F,View floor Plan - Room 1F

▼效果图-85㎡客厅1F,Renderings -85㎡ living room 1F

▼效果图-60㎡客厅1F,Renderings - 60m2 living room 1F


▼效果图-90㎡客厅1F,Renderings -90㎡ living room 1F


▼视角平面图-卧室1F,View Plan - Bedroom 1F

▼效果图-70㎡卧室1F,Renderings -70㎡ bedroom 1F



▼效果图-60㎡卧室1F,Renderings -60㎡ bedroom 1F

▼效果图-80㎡卧室1F,Renderings -80㎡ bedroom 1F




▼效果图-60㎡客卫1F,Renderings - 60m2 1F


▼效果图-60㎡主卫1F,Renderings -60㎡ main bathroom 1F


▼效果图-管家房1F,Renderings - Butler Room 1F

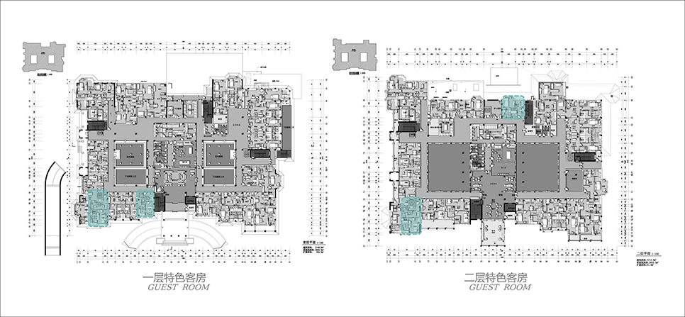
▼视角平面图-特色客房1F,View Floor Plan - Featured Room 1F

▼效果图-60㎡新中式风格户型1F,Renderings -60㎡ new Chinese style apartment 1F

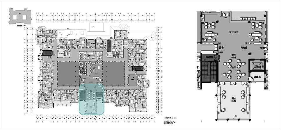
▼彩色平面图-二层,Color plan - Second floor

▼视角平面图-接待/休息/露台2F,View Plan - Reception/lounge/Terrace 2F

▼效果图-接待区2F,Rendering - Reception area 2F

▼效果图-休息区2F,Renderings - Lounge area 2F

▼效果图-露台休闲区2F,Rendering - Terrace lounge area 2F

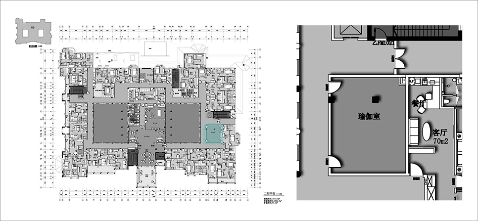
▼视角平面图-瑜伽室2F,View floor plan - Yoga Room 2F

▼概念图-瑜伽室2F,Concept image - Yoga Room 2F

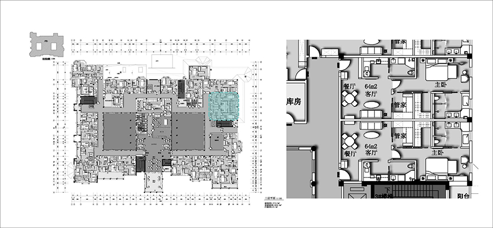
▼彩色平面图-三层,Color plan - three levels

▼效果图-电梯厅/门厅3F,Renderings - Elevator Hall/Foyer 3F

▼视角平面图-Svip210㎡客房3F,View floor plan -Svip210㎡ Room 3F

▼效果图-Svip210㎡门厅3F,Rendering-svip210 ㎡ Hall 3F

▼效果图-Svip210㎡客厅3F,Rendering-svip210 ㎡ living room 3F

▼效果图-Svip210㎡餐厅3F,Renderings -Svip210㎡ Restaurant 3F

▼效果图-Svip210㎡卧室3F,Renderings -Svip210㎡ Bedroom 3F

▼效果图-Svip210㎡书房3F,Rendering-svip210 ㎡ study room 3F

▼效果图-Svip210㎡庭院3F,Renderings -Svip210㎡ courtyard 3F

▼视角平面图-Svip125㎡客房3F,View Floor Plan -Svip125㎡ Room 3F

▼效果图-Svip125㎡过道3F,Rendering-svip 125㎡ aisle 3F

▼效果图-Svip125㎡客厅3F,Rendering-svip125 ㎡ living room 3F

▼效果图-Svip125㎡卧室3F,Renderings -Svip125㎡ Bedroom 3F


▼效果图-Svip125㎡餐厅/庭院3F,Renderings -Svip125㎡ Restaurant/courtyard 3F

▼效果图-Svip125㎡ SPA 3F,Renderings -Svip125㎡ SPA 3F

▼彩色平面图-地下一层,Color plan - Ground floor

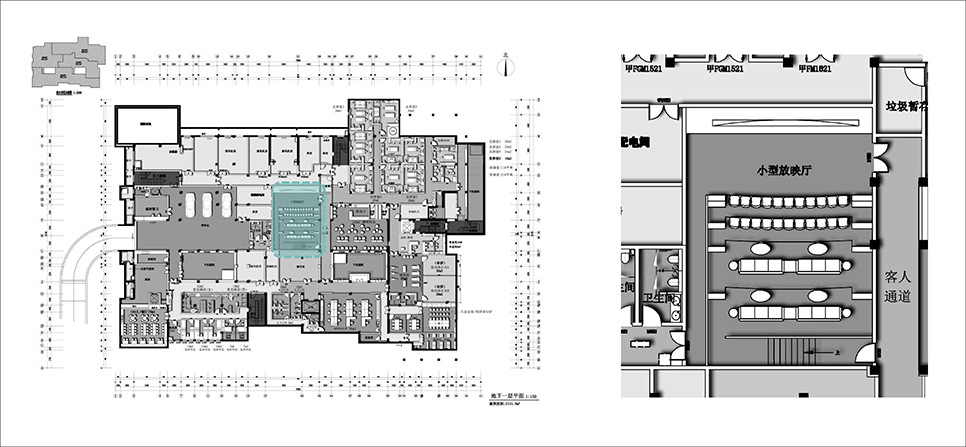
▼视角平面图-放映厅B1,View Plan - Projection Hall B1

▼效果图-放映厅B1,Renderings - Projection Hall B1

▼视角平面图-SPA接待/房间B1,View Floor Plan -SPA Reception/Room B1

▼效果图-SPA接待区B1,Renderings -SPA Reception Area B1

▼效果图-SPA房间B1,Rendering -SPA Room B1

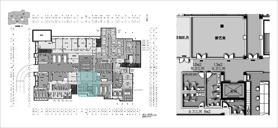
▼视角平面图-育乐室/卫生间/电梯/等候区B1,View Plan - Recreation Room/toilet/Elevator/waiting area B1

▼效果图-电梯厅B1,Renderings - Elevator Hall B1

▼效果图-入口/走廊B1,Renderings - Entrance/Corridor B1

▼效果图-育乐室B1,Renderings - Music Room B1


▼效果图-等候休息区B1,Renderings - Waiting rest area B1

▼效果图-卫生间B1,Renderings - Bathroom B1

▼效果图-家庭间B1,Renderings - Family Room B1

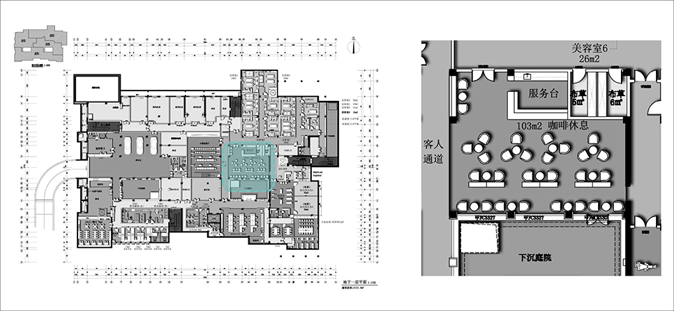
▼视角平面图-咖啡厅B1,View Plan - Cafe B1

▼效果图-咖啡厅B1,Rendering - Cafe B1

项目名称:信和宝岛月子会所室内设计,北京/室内
项目地址:北京
设计单位:北京华城远大建设有限公司
Project name: Xinhe Baodao Yuezi Club Interior design, Beijing/Interior
Project address: Beijing
Design unit: Beijing Huacheng Yuanda Construction Co., LTD














