Hallandsfjell山间木屋,挪威 / Quentin Desfarges
Timber Nest小屋位于海拔937米的高地,坐落在美丽的Hallandsfjell山脉,远离Rødberg村,俯瞰着Hardangervidda国家公园的原始风景。这里是一个宁静的避世之所,融合了传统设计与现代生活,同时拥抱挪威大自然的原始之美。
Constructed at 937 meters above sea level, the Timber Nest cabin is located beyond the village of Rødberg in the scenic Hallandsfjell mountains. Overlooking the pristine landscapes of the Hardangervidda National Park, the cabin offers a serene retreat, blending traditional design with modern living, all while embracing the raw beauty of Norway’s natural surroundings.
▼项目概览,overview of the project


▼项目外观,exterior of the project


▼项目近景,closer view of the project



由于周围环境的影响,这座小屋常常暴露在严酷的冬季天气中,有时甚至被厚厚的积雪覆盖。设计小屋时,考虑到生活的基本需求,日常生活围绕简单而必需的任务展开。因此,设计方案聚焦于这种简约性——包括烹饪、睡眠、卫生和共处。
Due to its surroundings, the cabin is exposed to severe winter weather, at times being buried under meters of snow. To design a cabin is linked to the basics of living. Everyday life goes in circles between simple, essential tasks. Therefore, the programme reflects this simplicity; cooking, sleeping, hygiene, and being together.
▼周围场地被厚厚的积雪覆盖,site being buried under meters of snow


▼被厚厚的积雪覆盖的细部,detail being buried under meters of snow

为了与自然环境无缝融合,小屋的选址保留了大量原始植被。访客将车停在道路旁,步行穿过一片桦树林到达入口。对景观的最小干扰体现了建筑与自然和谐对话的设计理念。
Designed to seamlessly integrate with its natural setting, the cabin placement preserves much of the existing vegetation. Visitors leave their cars by the road and walk through a birch forest to reach the entrance. This minimal disruption to the landscape emphasizes the intent to create a respectful dialogue between the built environment and nature.
▼周围的桦树林,birch forest near the cabin

这座建筑的特点是简洁和坚固。Timber Nest的小屋呈矩形形态,入口处有一个大胆的切口,为冬季装备提供了一个遮蔽的存储空间。一个大圆形窗户增添了独特的元素,既能窥见温馨的室内空间,也建立了室内与外界之间的视觉联系。
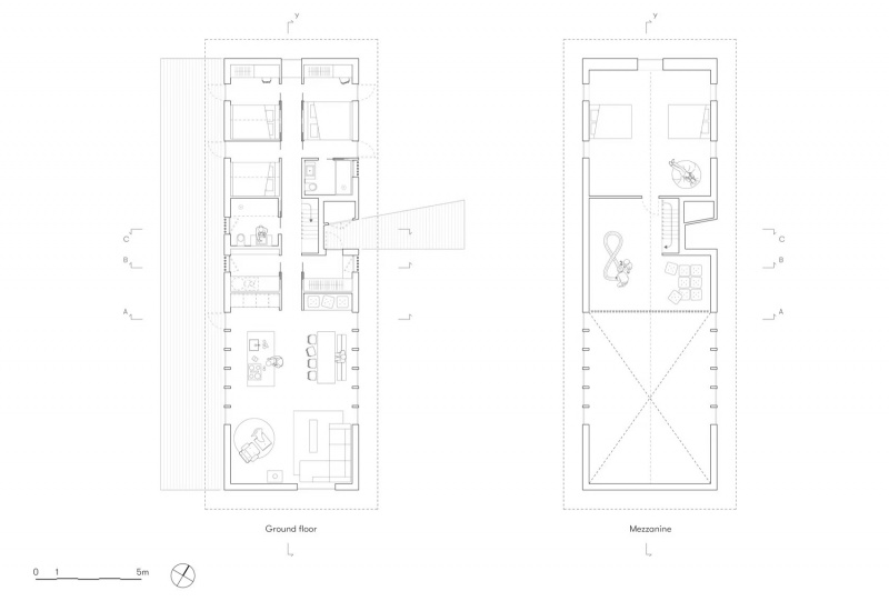
▼平面图,plan

The resulting architecture is characterized by its simplicity and ruggedness. The Timber Nest’s rectangular form is punctuated by a bold cut, marking the entrance, and offering sheltered storage for winter equipment. A large round window adds an intriguing element, offering a peek into the inviting interior and establishing a visual connection between inside and out.
▼走廊,corridor

小屋完全由实木建造,结构表达坚固有力。裸露的交叉层压木材定义了室内外空间,外立面采用未处理的松木板材,随着时间的推移会自然风化,逐渐形成灰色的表面,与周围的自然景观融为一体。这种材质的选择不仅让小屋与周围环境紧密相连,还创造了一个温暖而亲密的室内氛围,光滑的松木面板带来了宁静与舒适。
Built entirely from solid wood, the cabin has a strong structural expression. Exposed cross-laminated timber defines both the interior and exterior, with untreated pine cladding that will weather naturally, developing a grey patina that mirrors the aging landscape. This material choice not only roots the cabin in its surroundings but also creates a warm, intimate atmosphere inside, where smooth pine paneling evokes a sense of calm and comfort.
▼温暖而亲密的室内氛围,a warm, intimate atmosphere inside



与木材的温暖感形成对比的是,抛光的混凝土地板与地暖系统相结合,带来原始与精致材料之间的触感互动。定制的橱柜和家具采用交叉层压松木制作,进一步丰富了室内空间,部分家具使用绿色处理,打造出雕塑感的焦点,比如厨房岛台和楼梯。大量使用木材也赋予了小屋独特的气味特征,为避世小屋增添了独特的氛围。
In contrast to the warmth of the wood, the polished concrete floor with underfloor heating introduces a tactile interplay between raw and refined materials. Custom cabinetry and furniture crafted from cross-laminated pine further enrich the interior, with select pieces treated in green to create sculptural focal points, such as the kitchen island and staircase. The extensive use of wood also imparts a distinctive, unique olfactory quality to the retreat.
▼经过绿色处理的厨房岛台和楼梯,the kitchen island and staircase being treated in green



建筑设计完全尊重周围的自然山景,通过大面积的落地玻璃窗与木结构融为一体,景观得以引入室内,打破了室内外的边界,突显了四季变换的美丽景色,也让小屋的生活与自然景观息息相关。
Deferring to the natural mountain landscape all around, the architecture engages the outdoors in a spectacular fashion. Integrated within the wooden structure, floor to ceiling glazing invite the landscape inside, dissolving the boundary between interior and exterior and highlighting the landscape ever-changing scenery on which the cabin life is based.
▼大面积的落地玻璃窗,floor to ceiling glazing


▼卧室,bedroom


▼卧室,bedroom

▼阁楼,attic

Timber Nest小屋体现了精心设计的场地适应性,既庆祝了挪威的建筑遗产,也为居住者提供了一个宁静的庇护所。
The Timber Nest cabin exemplifies thoughtful, site-specific design, celebrating Norway’s architectural heritage while offering a sanctuary for its inhabitants.
▼夕阳下的景色,scene at dusk


▼夕阳照耀下的建筑,building under the sunset



▼夕阳照耀下的建筑,building under dusk

▼场地平面,site plan

▼立面,elevation

▼剖面,section

Location: Rødberg, Norway
Program: Mountain cabin in Hallandsfjell
Size: plot 3.000m2, cabin 110m2
Status: Completed (2022)
Architect: Quentin Desfarges
Contractors: BN Bygg AS, Uvdal Snekker Verksted, Numedal Installasjon
Photography: Quentin Desfarges + Ruben Ratkusic














