悍高户外家具展厅,佛山 / E Studio壹所
在现代喧嚣里,人们对自然满怀渴望,户外家具宛如连接自然与生活的纽带;城市化令生活空间多囿于室内,户外家具则打破局限、拓展空间,在家庭户外与公共自然场所,为人们创造亲近自然、尽享阳光等美景的契机。项目规模涵盖 1115平方米室内与1530 平方米室外空间,我们希望打破室内室外的观念,使其界限消失,将常用于户外场景的麻石与彩陶沙引入室内,以此作为主材构建空间视觉与质感体系,契合对自然色调的美学追求。
Modern life’s pace intensifies our longing for nature. While urbanisation pulls us indoors, outdoor furniture expands our horizons, inviting us into sunlight, open skies, and earthly beauty. Spanning 1,000 square meters indoors and 2,000 outdoors, this design dissolves the boundary between inside and out. Raw granite and vibrant ceramic sand introduced indoors create a cohesive visual and tactile system, echoing natural tones and organic connections.
▼项目概览,overview of the project


未来主义与原始质感的融合,沙丘地貌的空间复刻Merging futurist vision with raw texture, echoing the majesty of dune landscapes.
踏入这片场域,建筑形体依循着沙丘在风沙长期雕琢下形成的自然曲线搭建,每一处弯折、每一段衔接,都打破常规建筑里横平竖直的刻板框架,它跳脱出室内精致雕琢的禁锢,将未经驯化的自然粗粝质感与灵动婉约的弧度设计语言相融合。
Architectural forms trace gentle curves shaped by wind and sand. Each bend departs from rigid convention, blending rough, natural textures with flowing arcs. This dialogue merges the earth’s primordial spirit with a fluid, poetic design language.
▼未经驯化的自然粗粝质感与灵动婉约的弧度设计语言相融合,merges the earth’s primordial spirit with a fluid, poetic design language

▼灵动婉约的弧度设计语言,a fluid, poetic design language

展厅布局似电影里的沙丘地貌,高低起伏勾勒出类沙丘沟壑山谷空间,参观者仿若置身沙丘穿梭。从大自然沙丘轮廓与线条汲取灵感,借流动曲线连接空间,曲线不仅用于造型,更主导游客视线与动线。路径设计避开直线和平整路,增添变化与不可测性,让参观者像在沙丘寻路般不断改向,强化探索感。
▼轴测图,axonometric

The showroom’s layout recalls the sweep of dune landscapes, with undulating heights and hollows shaping a valley-like terrain. Flowing lines, inspired by dune contours, unify the space. Beyond their aesthetic form, these curves guide the eye and dictate one’s journey through the showroom. Avoiding straight, level routes adds surprise and unpredictability, prompting visitors to change direction as though navigating real desert sands.
▼参观者仿若置身沙丘穿梭,recalls the sweep of dune landscapes

彩陶砂与麻石:自然肌理的细腻演绎Ceramic Sand and Granite: A Subtle Expression of Natural Textures
我喜欢感受真实的材料,我不喜欢装饰,我只是更喜欢真实原始的东西,追求自然和谐色调,以低饱和米黄彩陶沙和灰色麻石为主材。二者如沙漠与岩石沉淀,交织出沉稳优雅氛围。彩陶沙粗粝肌理经打磨显细腻温暖,弧度似沙丘轮廓自然流畅,麻石原始野性,为空间增添了一份稳重感。
Authenticity prevails over adornment, embracing raw textures. Soft beige ceramic sand and grey granite form a layered, desert-like palette of understated elegance and calm. Polished ceramic sand lends gentle, dune-like curves, while granite’s untamed solidity grounds the space with earthbound strength.
▼以低饱和米黄彩陶沙和灰色麻石为主材,Soft beige ceramic sand and grey granite

▼弧度似沙丘轮廓自然流畅,Polished ceramic sand lends gentle, dune-like curves

彩陶砂Ceramic Sand
高温煅烧陶瓷制砂:彩陶砂以 1000-2000℃高温煅烧而成的陶瓷制砂为主要原料,经过高温处理,砂粒内部变得疏松,能更好地吸收乳液,为后续形成良好的漆膜涂层奠定基础;
High-temp ceramic sand: Coloured ceramic sand uses ceramic-based granules fired at 1,000–2,000°C. The intense heat treatment loosens the internal structure of each grain and allows better absorption of emulsions to form a superior paint coating.
▼彩陶砂细节,Ceramic Sand detail

环保无毒:所使用的原材料和乳液均符合环保标准,不含有害物质,如甲醛、苯等,对人体和环境无害,在使用过程中不会释放有害气体,能够为人们创造一个健康、安全的居住和工作环境;
Eco-friendly and non-toxic: All raw materials and emulsions meet environmental standards, containing no harmful substances such as formaldehyde or benzene. The materials do not release hazardous gases and ensures a healthy, safe environment for both living and working.
▼彩陶砂细节,Ceramic Sand detail

资源可再生性:彩陶砂主要原料是陶瓷制砂,陶瓷材料的基础成分如黏土等,在自然界中储量丰富。并且,陶瓷制砂可以通过回收利用陶瓷碎片等方式获取,减少对原始矿产资源的开采。从长远来看,这种资源的可再生性有助于维持材料供应的稳定性,降低对不可再生资源的依赖。悍高户外家具事业部自 2006 年成立起,秉持原创设计,融合金属与户外家具及东西方美学,为全球用户缔造非凡户外体验。产品涵盖外露、蒙布、编织家具与全场景配套品。作为高端品牌,其创新研发领先,斩获多项国际大奖。悍高销售网络遍布五大洲90 余国,于多国设专卖店,与 ADEO 等零售商及众多奢华酒店、地产商合作。未来家具事业部将坚守初心,凭设计创新、品质服务提升全球影响力,塑造阳光健康户外生活,剑指高端户外家具首位与理想生活标识,持续书写品牌辉煌篇章,引领行业发展新潮流。为直观呈现悍高户外家具魅力与品质,特建产品展示室内空间。以自然为灵感,依沙丘曲线布局,引入户外材质,奠定自然与未来融合基调。依产品特性设区,借灯光模拟自然光影,让参观者在室内也如临户外场景,领略家具惬意舒适,感受悍高户外家具对理想户外生活的诠释。
Renewable resources: The primary ingredient of coloured ceramic sand is ceramic granules, derived from readily available natural components like clay. Ceramic sand can be sourced through recycling ceramic fragments, reducing the reliance on new mineral extraction. Over time, this renewable supply helps maintain resource stability and lessens dependence on non-renewable materials. Established in 2006, HiGold merges metalwork, outdoor furnishings, and Eastern-Western aesthetics to create world-class outdoor experiences. Its product range covers various outdoor scenarios, complemented by innovative design and research that have earned multiple international awards. With a network spanning over 90 countries and collaborations with luxury hotels, property developers, and partners like ADEO, HiGold stays committed to its founding vision. It continues shaping a healthy outdoor lifestyle, striving for leadership in the high-end outdoor furniture market and guiding the industry’s future. To showcase HiGold’s outdoor furniture, the indoor showroom draws on nature’s cues. Dune-like curves and outdoor materials blend with a forward-looking aesthetic. Products are grouped by attributes, and lighting mimics natural sunlight and shadow, creating an outdoor feel. In this space, the furniture’s comfort and ease embody HiGold’s ideal outdoor lifestyle.

树状区域Tree-Shaped Zone
在家具的设计中,木材被广泛运用,天然纹理与暖色泽融入自然,似带着树木生命律动。实木框架粗壮的枝干悬吊天花与立面树桩,经过特殊处理的深色木质,质感厚重、纹理深刻,彰显着大地般的沉稳坚实;
Wood is widely used, its natural grain and warm tones reflecting a tree’s living rhythm. Solid wood frames and stout branches hang from the ceiling like trunks. Special treatments give the dark wood a heavy, deeply textured quality that accentuates a grounded, earthy stability.
▼实木框架粗壮的枝干悬吊天花,Solid wood frames and stout branches hang from the ceiling

▼天花上的树枝,stout branches hang from the ceiling

▼天花上的树枝,stout branches hang from the ceiling

隧道入口:野性的邀约Tunnel Entrance: A Primal Invitation
踏入隧道,墙面麻石经雕琢呈温润弧形,在灯光映照下,光影交错于石纹与弧面间,渲染出空灵神秘质感,仿若瞬间将人拉进沙丘地下巢穴。
Stepping into the tunnel, carved granite walls form gentle, rounded surfaces. Under shifting light, their grain and curves curate a mysterious, otherworldly atmosphere, as if drawing visitors into a hidden lair beneath the dunes.
▼隧道入口,tunnel entrance

灯光设计是诠释沙丘电影概念的重要手段,借助动态光影模拟一天自然光变化:清晨呈柔和橙红色暖光、亮度低,渐转至中午明亮偏白光线,再到傍晚暖黄余晖,且灯光还可变柔和、朦胧,带沙尘质感,营造多样氛围,让参观者似身处不同沙丘天气,感受时光的流转和空间氛围的变化。
Lighting sets a cinematic, dune-like tone. It shifts from dawn’s soft orange-red glow to midday’s bright whites and dusk’s warm golds. At times, lighting softens and diffuses, hinting at drifting sand and subtle weather changes, immersing visitors in the evolving moods of a desert landscape.
▼天花设计细部,ceiling design detail

室内展厅:沙幕幻镜Indoor Showroom: A Mirage in the Sands
在这个依沙丘自然曲线搭建、融合自然粗粝质感与灵动弧度设计的室内产品展厅中,仿若打造出一方别具风情的度假胜地,让产品在这充满度假慵懒惬意与独特美感的环境里全方位展现,使参观者仿若在沙丘度假之旅中惬意地邂逅每一件心仪产品。
▼室内平面,indoor plan

Inspired by the fluid curves of dunes, the showroom blends raw, earthy textures with graceful arcs. The result is an environment that feels like a relaxed vacation retreat. Here, each piece of outdoor furniture is displayed as if discovered on an unhurried desert holiday, allowing visitors to appreciate the products’ comfort and character in an atmosphere that encourages lingering.
▼室内展厅,the showroom

▼室内展厅,the showroom

在产品展厅中,引入大量的自然日光,赋予空间动态之感。借助巧妙布局,自然光还能引导参观路线,有效突显沙丘自然质感,使产品展示更符合户外家具要传达的体验。
Abundant natural light infuses this space with life. Through clever spatial planning, sunlight guides visitors along their path and accentuates the dune-like textures. This approach ensures the outdoor furniture is presented in a way that resonates with the feeling of being surrounded by nature’s own artistry.
▼产品展厅家具展示,the furniture display in the showroom

▼家具展示,the furniture display

▼光影变幻,play of light and shadow

玻璃砖:光缕轻纱Glass Bricks: Threads of Light
玻璃砖本身具有现代、精致的质感,在以自然元素为主的空间中加入玻璃砖,可以起到平衡自然与现代的作用;从形态特征看,其规则几何与光滑质地,和沙丘自然随机轮廓形成鲜明对照,依此构建的视觉冲突,有效丰富空间层次、平衡风格配比;功能层面,它可以对光线进行柔和处理,如同阴天或者清晨有薄纱般雾气时的光线效果,营造出一种朦胧、静谧的氛围。
Glass bricks, with their modern and refined sensibility, serve as a bridge between nature and contemporary elements. Their crisp geometry and smooth surfaces stand in vivid contrast to the dunes’ organic contours, introducing a visually dynamic tension that enriches the space and balances its style. Functionally, glass bricks soften incoming light, recalling the gentle, diffused glow of an overcast morning or a fine mist at dawn. The result is a serene, dreamlike atmosphere.
▼玻璃砖,Glass bricks

▼平衡自然与现代,balances its style

户外展区:松影浮岛Outdoor Exhibit: Pine-Shadowed Isle
星际总部园区景观仿若一座悬浮的岛屿。园区中央,那几株巨大松树舒展着墨绿枝叶,其身影倒映在水面,让人能看到水中树叶的影子,户外家具植入其间,人们落座于此,抬眼便是松枝绿意与浩瀚天空。
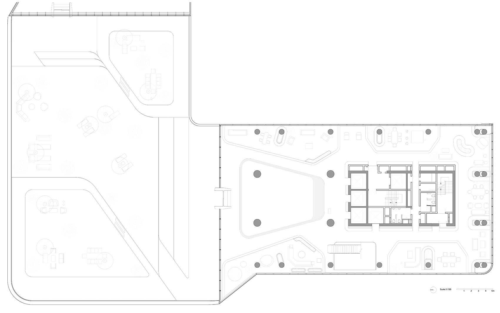
▼室外平面,outdoor plan

The interstellar headquarters’ landscape appears as a floating island. At its center, towering pines stretch their deep-green limbs, mirrored on the water’s surface. Outdoor furniture nestles among them, inviting visitors to sit and gaze up into green branches and endless sky.
▼景观仿若一座悬浮的岛屿,landscape appears as a floating island



▼巨大松树舒展着墨绿枝叶,towering pines stretch their deep-green limbs


可持续理念Sustainability
在这一空间,人们可感知自然之力与美,领略传统材料与现代工艺的精妙融合,及未来主义设计魅力。科技时代,仍能从自然获灵感,融入现代生活以创佳作。它警示我们,追求现代生活不能忘尊重保护自然,要和谐共生构建可持续未来。人们离开展厅时,带走的不只是对户外家具的新认知,更是对自然与未来关系的深度思考,和对美好生活的强烈向往与执着追求,这一切都彰显出空间独特的价值与深远影响力。
Here, nature’s strength and grace meet timeless craft and a future-forward design ethos. Even amid technology, nature inspires and blends into modern life. This setting reminds us that progress must respect and preserve our world. Visitors depart with not only a new view of outdoor furniture, but deeper reflections on nature’s future and a renewed longing for a more harmonious life – an enduring testament to this space’s value and influence.
▼室内展厅,indoor exhibition space



▼室内展厅,indoor exhibition space

环保材料Eco-Friendly Materials
展厅建筑结构材料,如框架木材、砖石等,优先在当地取材,既能削减运输碳排放,又契合地域特色。树状区域采用本地生长、未经加工的木材——树桩、烘干树枝与木条。
Structural materials such as framing timber, masonry and stone were sourced locally in preference to other materials, both to reduce transport carbon emissions and to fit the regional character. Locally grown, unprocessed timber – stumps, dried branches and strips – are used for the tree areas.
▼细部,detail

再生能源Renewable Energy
光伏覆盖展厅内外照明系统——展厅屋顶和露天区域安装太阳能板,并将其与户外家具上的照明设备、充电接口等相连,实现新能源驱动照明。
Photovoltaic systems power both indoor and outdoor lighting. Solar panels on the roof and open areas feed energy to fulfill the new energy lighting.
▼外观,exterior

Name: Higold’s Outdoor Furniture Museum
Interior design: E Studio
Location: Shunde District, Foshan, Guangdong, China
Indoor area: 1,115 sqm
Outdoor area: 1,530 sqm
Chief designers interior: Fan Junjian, Zhou Xuanzhuo
Design team interior: Liu Shuqi,Fang Guiyun,Huang Chenxi, Zhou Jing
Main materials: Stainless steel, Colored pottery stone, Granite,teak,Glass brick
Client: Higold Group
Photography: WM STUDIO














