笛田住宅,日本 / ROOVICE
将镰仓笛田的1970年代木屋改造为宠物友好的家Transforming a 1970s Wooden House in Fueda, Kamakura, into a Pet-Friendly Home
位于镰仓笛田的这座建造于1970年代的两层木屋,经过精心改造,满足了年轻夫妻及其宠物的需求。重新设计注重功能性与舒适性,巧妙地平衡了实用性与设计美学。
A modest two-story wooden house from the 1970s in Fueda, Kamakura, has been thoughtfully renovated to meet the needs of a young couple and their pets. The redesign focuses on functionality and comfort, balancing practicality with smart design choices.
▼房屋外观,exterior view

▼玄关,vestibule

▼入口区域,entrance area

▼室内概览,interior overview



细腻的更新,营造放松美学Subtle Updates for a Relaxed Aesthetic
这座房屋包括一个宽敞的花园,墙面采用多种不同材质的组合。肌理漆涂料模仿外墙效果,搭配维持原貌的区域,创造出一种轻松、略带“不对称”的氛围。这种低调的做法既保留了房屋的原始特色,又避免了过于标准化的装饰。
The house, which includes a spacious garden, features walls with a mix of finishes. Spray-textured coatings resembling exterior walls are paired with areas left in their original state, creating a relaxed, slightly “mismatched” look. This understated approach preserves the home’s character while avoiding over-standardization.
▼轻松、略带“不对称”的氛围,a relaxed, slightly “mismatched” look


▼室内一角,a corner in the room

扩展厨房,提升实用性Expanding the Kitchen and Enhancing Practicality
原本紧凑的厨房被改造为L形布局,为烹饪和日常活动提供了更为实用的空间。为了提高耐用性并随着时间的推移更具韵味,选择了硬质石膏台面。客厅、餐厅和厨房(LDK)区域的地板采用PVC长条地板,便于清洁,非常适合有宠物的家庭。
The previously compact kitchen was expanded into an L-shaped layout, creating a more functional space for cooking and daily activities. A hard-plaster countertop was chosen for its durability and ability to age gracefully over time. The flooring in the living-dining-kitchen (LDK) area was updated with PVC long sheet flooring, making cleaning simple and convenient—a practical choice for a household with pets.
▼厨房区域,kitchen area

最大化采光与开阔感Maximizing Light and Openness
客厅的通高彩光井是一个突出的特色,通过狭窄的窗户将自然光引入空间,营造明亮、开阔的氛围。为了增强这一效果,拆除了底层的部分墙壁,将客厅与厨房和原来的榻榻米房间连接起来。裸露的木柱保留了结构的稳固性,同时增添了温暖和质感。
The living room’s double-height lightwell is a standout feature, bringing natural daylight into the space through narrow windows and creating a bright, open atmosphere. To enhance this feature, walls on the first floor were removed, connecting the living room with the kitchen and the former tatami room. Exposed wooden pillars maintain structural integrity while adding warmth and texture.
▼客厅的通高采光井,kitchen area

▼明亮、开阔的氛围,a bright, open atmosphere



厨房和原榻榻米房间的天花板被拆除,暴露出的木梁增添了乡村魅力,并提升了空间的开阔感。入口也被纳入到客厅区域,创造了一个无缝、温馨的流动感。
Ceilings in the kitchen and former tatami room were removed to expose the wooden beams, adding rustic charm and a sense of openness. The entrance was also integrated into the living area, creating a seamless and welcoming flow.
▼拆除后暴露出的木梁,exposed wooden beams after renovation

▼无缝、温馨的流动感,a seamless and welcoming flow

▼细部,details

宠物友好的设计Designing with Pets in Mind
此次改造融入了多项宠物友好的设计。门道设置了便于通行的通道,定制的猫道为猫咪提供了垂直活动的空间。这些贴心的设计确保了这个家既符合夫妻的生活需求,又能照顾到宠物的需要。
The renovation incorporates several pet-friendly features. Doorways include pathways for easy movement, and custom-built catwalks provide vertical spaces for cats to explore. These thoughtful additions ensure the home caters to the couple’s lifestyle while accommodating their pets’ needs.
▼猫爬架,cat tree

▼活动的猫咪,climbing cat


简化的二楼布局Simplified Second-Floor Layout
二楼去除了多余的隔墙,创造了更开放、更具功能性的布局。榻榻米和地毯被橡木地板替代,既统一了整体风格,也增强了适应现代生活和宠物需求的实用性。
Upstairs, redundant partitions were removed to create a more open and functional layout. The tatami mats and carpets were replaced with an oak wooden flooring, offering a cohesive look and enhanced practicality for modern living with pets.
▼房间,rooms



实用与宁静并存的家A Practical and Peaceful Home
这次改造将一座简单的木屋转变为一个既实用又舒适的家,既适合人类居住,也满足宠物的需求。通过注重适度更新和精心设计,最终呈现出一个宁静、功能与魅力兼具的空间。
This renovation transforms a simple wooden house into a practical, comfortable home for both humans and animals. By focusing on modest updates and thoughtful design, the result is a peaceful space where functionality and charm coexist effortlessly.
▼既适合人类居住,也满足宠物需求的家,a comfortable home for both humans and animals

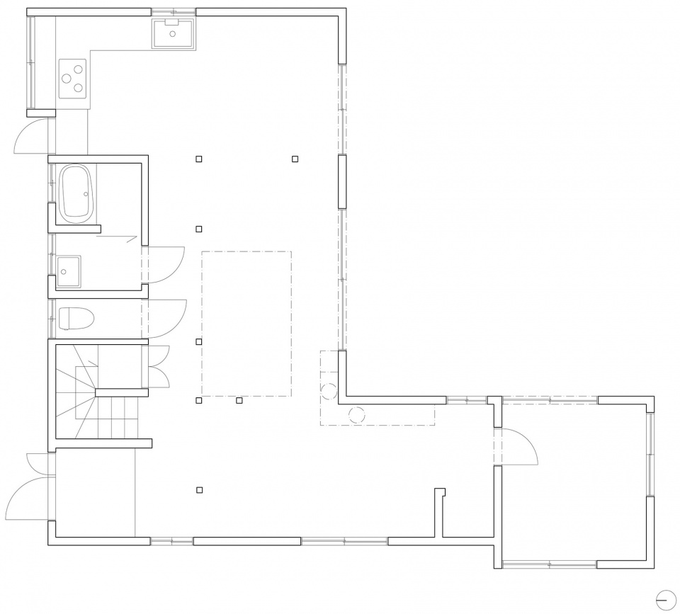
▼改造后平面,plan after renovation


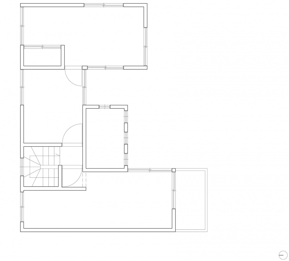
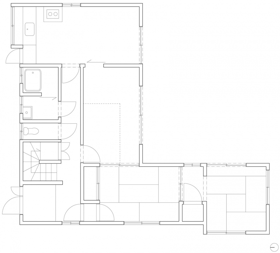
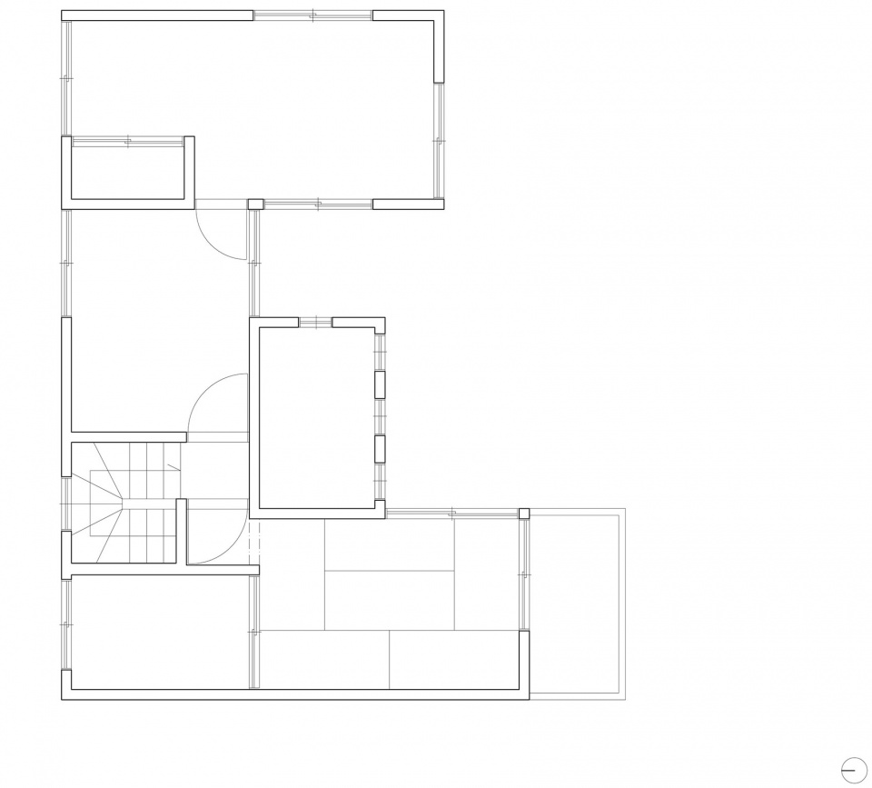
▼改造前平面,plan after renovation


Lead Architects: Maoko Sato, Masaki Yamada | ROOVICE
Photography: Akira Nakamura
Construction Year: 2022
Website: https://www.roovice.com/works/22906/
Dimensions: 110 m2














