江西省文化中心-博物馆,江西/室内设计
江西博物馆位于南昌市红谷滩新区,将历史、自然、革命三个博物馆合在一起,组成一座大型综合性博物馆,这在全国尚属首创。 馆舍主体建筑造型取材明代景德镇御窑出土白瓷三管器,将古代陶瓷艺术与现代建筑风格巧妙地融于一体,庄重典雅,别具一格。作为江西省自建国以来投资最大的一项文化基础设施--江西省博物馆经过几代人不懈努力,已成为蜚声海内外的大型综合性博物馆。
Jiangxi museum is located in Honggutan new area of Nanchang city. It combines the three museums of history, nature and revolution to form a large comprehensive museum, which is the first in China. The main building model of the museum is based on the white porcelain three pipe ware unearthed from the imperial kiln in Jingdezhen of the Ming Dynasty, which skillfully integrates the ancient ceramic art with the modern architectural style, solemn, elegant and unique. As a cultural infrastructure with the largest investment in Jiangxi Province since the founding of the people's Republic of China, Jiangxi Museum has become a large-scale comprehensive museum famous at home and abroad through the unremitting efforts of several generations.

江西博物馆在赣江、抚河环抱的新洲上,东临抚河,南接中山桥,西面赣江,北依江南三大名楼之一的滕王阁,环境优美;通过对全国不同地区博物馆考察,挖掘江西历史文化,提炼江西博物馆设计主题为“赣物观志”。 “赣”:江西简称,引申为天赐财富,同时《淮南子·精神》-今赣人敖仓,予人河水,饥而餐之,渴而饮之。“物”:江西“物”华天宝,天工开“物”,博“物”,青铜和陶瓷等全国有名。“观”品尝、欣赏、观看、奇观、人文观、历史观。“志”日志、记录、理想、感受。
Jiangxi museum is located on Xinzhou surrounded by Ganjiang River and Fuhe River. It faces Fuhe River in the East, Zhongshan Bridge in the south, Ganjiang River in the west, and Tengwang Pavilion, one of the three famous buildings in the south of the Yangtze River, in the north. The environment is beautiful; Through the investigation of museums in different regions of the country, the history and culture of Jiangxi were excavated, and the design theme of Jiangxi museum was refined as "the history of Jiangxi's view of things". "Gan": the abbreviation of Jiangxi, which is extended to heaven given wealth. At the same time, the spirit of Huainanzi - aocang, a native of Jiangxi today, gives people the water to eat when hungry and drink when thirsty. "Things": Jiangxi "things" huatianbao, Tiangong "things", Bo "things", bronze and ceramics are well-known in China. "View" means tasting, appreciating, watching, wonders, humanities and history. "Zhi" logs, records, ideals and feelings.

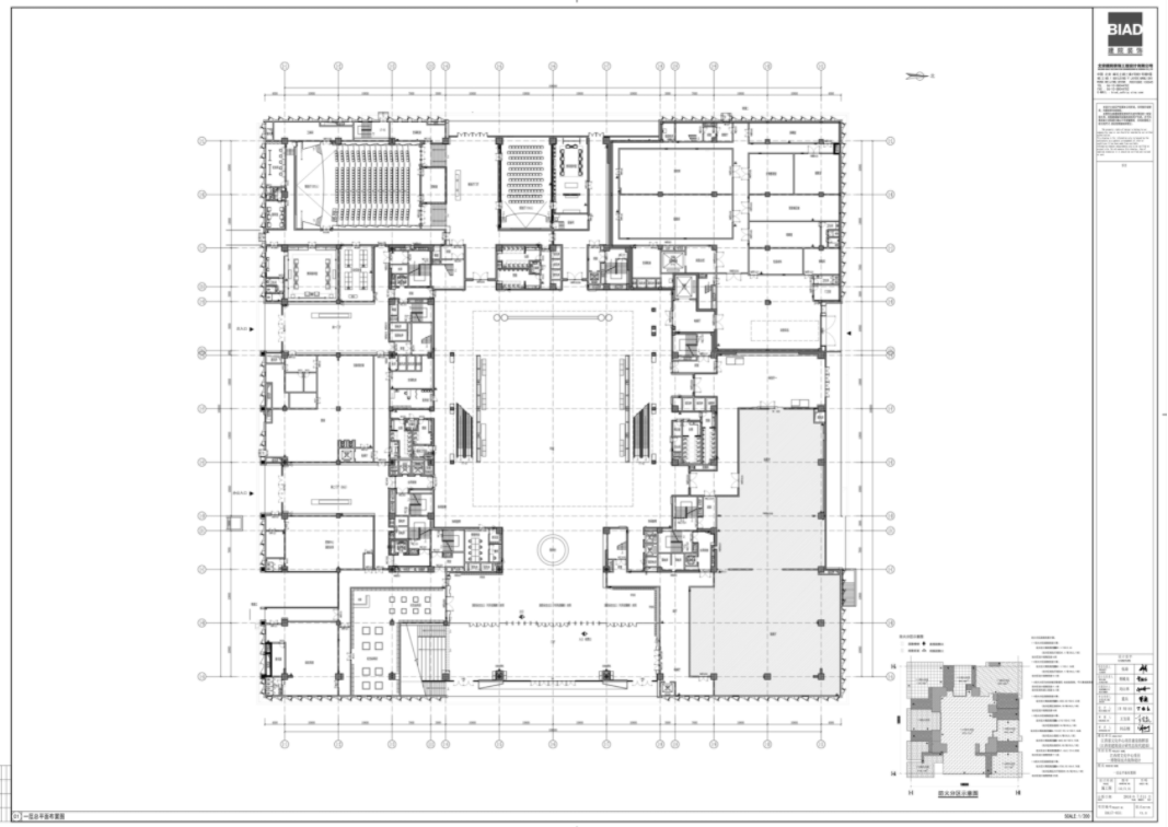
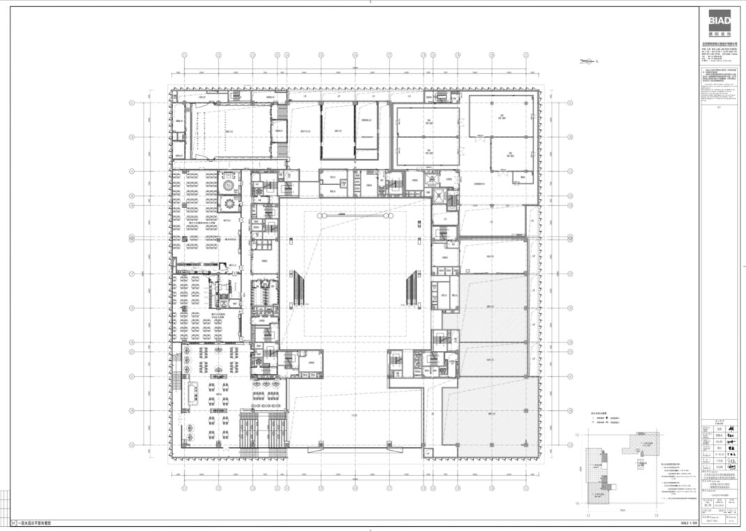
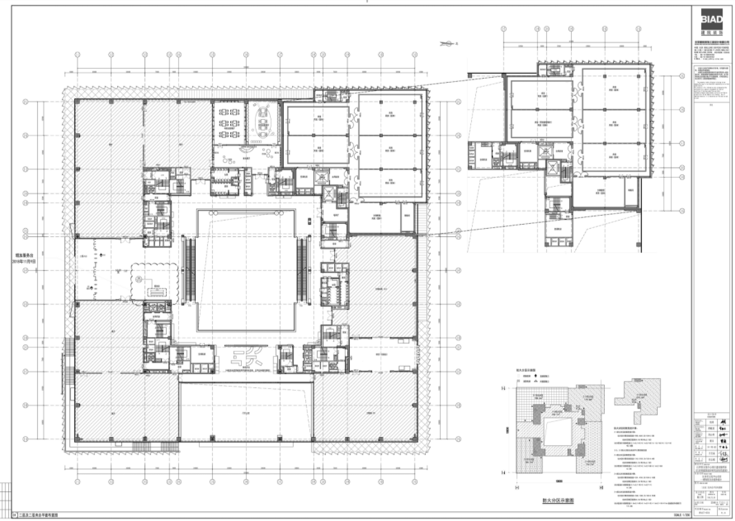
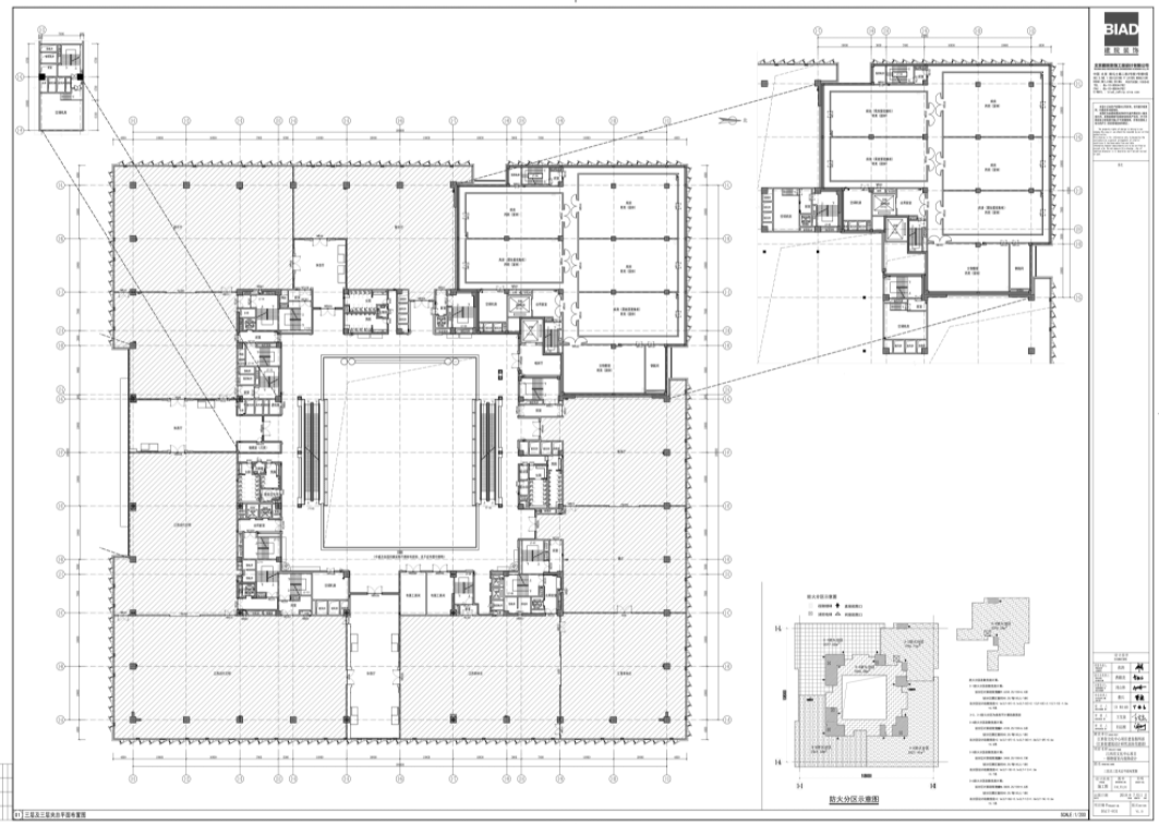
江西省博物馆筹建于1953年,是全省最大的综合性博物馆,首批国家一级博物馆,全省爱国主义教育基地。60多年来,江西省博物馆历经八一广场老馆到新洲路馆到赣江北大道新馆。新馆为江西省文化中心三大馆之一,以方盒为建筑原型,寓意为宝盒,共6层,建筑面积8.6万平方米,展陈面积2.8万平方米。
Established in 1953, Jiangxi Provincial Museum is the largest comprehensive museum in the province, the first batch of national first-class museums and the provincial patriotism education base. Over the past 60 years, the Jiangxi Provincial Museum has gone through the old hall of Bayi Square, the new hall of Xinzhou road and the new hall of Ganjiang North Avenue. The new hall is one of the three major halls of Jiangxi cultural center. It takes the square box as the architectural prototype and means the treasure box. It has six floors, with a construction area of 86000 square meters and an exhibition area of 28000 square meters.

江西省博物馆是江西省文化新地标,兼备智能导览等公共信息化服务系统以及学术报告厅、教育活动室、文创产品展示区等公共服务功能区,正朝着具有高水平文保能力和创新-务能力的现代化智慧化博物馆迈进。
As a new cultural landmark of Jiangxi Province, Jiangxi museum is also equipped with public information service systems such as intelligent guided tours, as well as public service functional areas such as academic lecture hall, educational activity room and cultural and creative product exhibition area. It is moving towards a modern intelligent museum with high-level cultural protection ability and innovation service ability.

江西省文化中心将作为赣江两岸文化生态轴线的核心节点,使赣江西岸的景观通廊更为丰满,并与对岸的滕王阁等文化建筑群隔江呼应。省博物馆、省图书馆、省科技馆由北向南排列开来,分别隐喻历史、现 在与未来,描绘出文化发展、探索知识的故事与旅程。
Jiangxi Provincial Cultural Center will serve as the core node of the cultural and ecological axis on both sides of the Ganjiang River, making the landscape corridor on the West Bank of the Ganjiang River fuller and echoing with the Tengwang Pavilion and other cultural buildings on the opposite bank across the river. The Provincial Museum, the provincial library and the provincial science and Technology Museum are arranged from north to south, respectively metaphoring history, the present and the future, and depicting the story and journey of cultural development and knowledge exploration.






















项目信息
项目名称:江西省文化中心-博物馆
文章分类:文化体育
设计公司:北京市建筑设计研究院有限公司
项目地址:南昌
项目规模:84500㎡
设计团队:董兵、刘山林、王盟、赵佳、薛冬春、唐滔
Project information
Project Name: Jiangxi Cultural Center - Museum
Article category: culture and sports
Design company: Beijing Architectural Design and Research Institute Co., Ltd
Project address: Nanchang
Project scale: 84500 ㎡
Design team: Dong Bing, Liu Shanlin, Wang Meng, Zhao Jia, Xue Dongchun, Tang Tao














