Rosemary Brown休闲中心,加拿大 / hcma architecture + design
融合卓越的冰面质量管理实践,运用温暖的木材、自然光线和通透开放的布局,位于加拿大不列颠哥伦比亚省Burnaby的全新Rosemary Brown休闲中心为访客在冰场内外带来了丰富而富有活力的体验。
Blending best practices for superior ice quality with the use of warm wood, natural light, and a transparent, open layout, the new Rosemary Brown Recreation Centre in Burnaby, British Columbia, creates a rich, dynamic experience for visitors on and off the ice.
▼项目外观,exterior of the project


由跨学科设计事务所 hcma architecture + design 设计,该设施优先考虑公众体验,在提供高性能冰场的同时,打造一个充满活力、可及性强且包容性的社区中心。这座耗资 4950 万加元,占地 8,547 平方米(91,999 平方英尺)的尖端设施,摒弃了传统冰场封闭、寒冷、钢结构桁架的过时模式,致力于创造一个不仅仅专注于竞技体育的空间。
Designed by interdisciplinary firm hcma architecture + design, the facility prioritizes the public experience, offering a high-performance ice arena alongside a vibrant, accessible, and inclusive community hub. The CDN $49.5 M, 8,547 sq m / 91,999 sq ft state-of-the-art design rejects the dated model of freezing cold, windowless, steel-trussed ice arenas, dedicated solely to sport.
▼项目鸟瞰,aerial view of the project

其独特的结构设计让北向光线充分照射冰场,而不会影响冰面质量,同时裸露的大跨度木质屋顶为空间注入温暖氛围,让运动员与观众都能感受到舒适与欢迎。这一非传统的设计采用了混合钢-木屋顶系统,利用木材的几何灵活性、施工便利性以及自然温暖的视觉特性,使其成为不可或缺的核心元素。
A distinctive structural approach floods the rinks with north-facing light without impacting ice quality, while the exposed mass timber roof creates a warm and inviting space for both players and spectators. This unconventional approach necessitated a hybrid steel-timber roof system, using wood as an essential component due to its geometric flexibility, ease of construction, and warm and inviting aesthetic.
▼入口大厅,entrance hall

▼采用了混合钢-木屋顶系统,a hybrid steel-timber roof system

木材在中心的建筑特色中发挥着重要作用,象征着温暖与耐久性,同时也确保了在紧凑且复杂的工地条件下实现快速高效的施工。混合钢-木屋顶系统不仅赋予建筑醒目的视觉效果,也展现出卓越的技术能力。这一系统的灵活性使其能够实现复杂的几何结构,从而在建筑北侧设置天窗,引入大量自然光。胶合木作为横梁和竖向立柱,为大堂提供支撑,同时营造出从室内到室外皆可感知的温暖氛围。大堂地板系统采用钉接层积木(NLT),不仅提升了空间的整体美感,还增强了声学性能,为访客带来更佳的体验。
▼光照策略,lighting strategy

Wood plays an integral role in the character of the centre, symbolizing warmth and durability, and also ensuring quick, efficient assembly on the challenging, compact site. With a hybrid steel-timber roof system, the structure is both striking and technically proficient. The flexibility of this system allowed a complex geometry that made possible north-facing clerestories that provide an abundance of natural light. Glulams, serving as both beams and vertical columns, support the structure in the lobby and contribute to its warm, inviting ambience visible from both inside and outside. The use of nail-laminated timber (NLT) for the lobby’s decking system allows for superior acoustic integration, enhancing the overall experience and finish of the space.
▼裸露的大跨度木质屋顶,the exposed mass timber roof



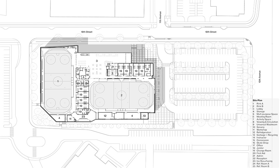
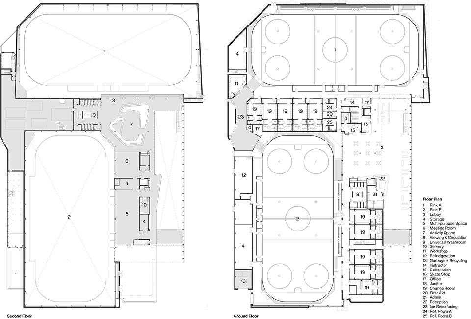
位于Burnaby新兴的Southgate社区,场地的有限面积促使冰场采用非传统的L形布局,两块NHL标准冰面在中心大堂交汇。这样的设计既改善了大堂与冰场之间的互动性与开放感,也使建筑朝向街道和社区的一侧更具活力和亲和力。
▼场地平面,site plan

Nestled in Burnaby’s emerging Southgate community, the site’s tight footprint led to a non-traditional arrangement of its two NHL-sized ice sheets: an L-shape with a central lobby located at their meeting point. This arrangement allows for an improved interface and openness between the lobby and the ice sheets, as well as a friendly, animated elevation to the street and community beyond.
▼两块NHL标准冰面在中心大堂交汇,an L-shape with a central lobby located at their meeting point


休闲中心的大堂不仅服务于冰上运动,还提供多功能活动空间,可用于匹克球、普拉提课程,甚至是比赛观赛派对。二层设有温暖侧观赛廊,为观众提供舒适、无障碍的观赛体验,而其后方的开放活动区则鼓励儿童自由玩耍,享受自主探索的乐趣。包容性设计贯穿整个设施,例如hcma设计团队专门打造的盲文及触觉标识,确保所有社区成员都能感受到宾至如归的氛围。
The recreation centre provides multipurpose rooms and spaces within the lobby for a range of activities beyond ice sports, from pickleball and Pilates to playoff watch parties. Second-floor warm-side viewing galleries offer spectators comfortable, accessible viewing, while directly behind informal play areas allow children to engage in casual, self-directed play. Inclusive design extends to every aspect of the facility, with braille and tactile signage created by hcma’s Communication Design team, ensuring all members of the community feel welcome.
▼多功能活动空间,spaces for a range of activities

该休闲中心以Rosemary Brown命名,以纪念这位加拿大社会正义与平等的先锋人物。中心承载着她的精神遗产,成为本拿比居民聚会、运动和竞技的共享空间。
Named in honour of Rosemary Brown—a trailblazing Canadian advocate for social justice and equality—the recreation centre embodies her legacy, standing as a place for all Burnaby residents to gather, play, and compete.
▼走廊,corridor

目前,该中心已正式向公众开放,未来将成为Southgate社区不可或缺的一部分,邀请新一代居民在这座充满温馨氛围的社区冰场留下珍贵回忆。
Now open to the public, the centre is set to be an essential fixture in Burnaby’s Southgate community, inviting future generations to build lasting memories at their friendly neighbourhood rink.
▼夜景,night view

▼夜景,night view

▼平面图,plan

▼剖面图,section

Project Name
Rosemary Brown Recreation Centre
Client: City Of Burnaby
Location: Burnaby, Bc, Canada
Completion: March 2024
Size: 8,547m2 / 91,999 Sq Ft
Cost: $49.5m Cad
Delivery: Method Stipulated Sum
Team Principal In Charge:
Paul Fast (Architect Aibc, Mraic)
Advising Partner:
Darryl Condon (Architect Aibc, Aaa, Saa, Oaa, Fraic, Leed® Ap)
Other:
Structural: Fast + Epp
Mechanical: Integral Group
Electrical: Integral Group
Civil: Binnie
Landscape: Pwl
Security: 3si
Building Envelope: Morrison Hershfield
Energy Modeler: Integral Group
Cost: Rta
Code: Jenson Hughes
Hardware: Tillicum
Vertical Transport: Vertek
Acoustic: Rwdi
A/V: Mc2
Refrigeration: Bradley Group
Geotech: Exp
Wayfinding + Signage: Hcma
Public Art: Jill Anholt
Contractor: Pomerleau
Inclusive Design
Fully-Accessible Change & Washrooms
Universal All-Gendered Washrooms / Change Rooms
Consideration Of Washroom Accessory Impact On Those With Neurodiversity (Hand Dryers)
Wide Circulation Paths And High Contrast Wayfinding
High Contrast Signage With Braille For Visual Impairment
Elevator Access To Level Two Programming
Provision Of Benches And Accessible Furnishings Throughout The Facility














