旧谷仓改造的住宅,奥地利 / MWArchitekten
这座建筑原本是莱茵河谷历史悠久的乡村街道上最早的住宅之一的农场部分。原有的住宅部分保持不变。在商业翼楼的体量中,新住宅楼将保留建筑原有商业部分的品质。
The building is a new replacement for the farm part of one of the first Rhine Valley houses along the historic village street. The original residential part remains unchanged. Within the cubature of the commercial wing, the new residential building will retain the qualities of the original commercial part of the building.
▼住宅概览,overview of the house

建筑重新诠释了经典设计元素,如简洁的木质立面、少量的大型开口、山墙三角形以及突出的屋檐。遮阳装置和大门采用了类似农业建筑的简单推拉或折叠结构。原谷仓的打谷场现已改作车库,屋面覆盖材料得以再利用,并在必要时补充了原有的瓦片。
The building interprets the typical design elements such as a simple wooden façade, a few large openings, the gable triangle and a projecting canopy.Shading and gates are implemented as simple sliding or folding elements, similar to the buildings used for agricultural purposes. The former threshing floor of the original barn is now used as a garage. The roof covering was reused and supplemented with the original tiles where necessary.
▼三角形山墙,the triangle gable


在改建成另一个住宅单元的过程中,现有的建筑群增加了一个地址。为了不影响原有的地址,新增的入口位于面向村庄街道的东立面。
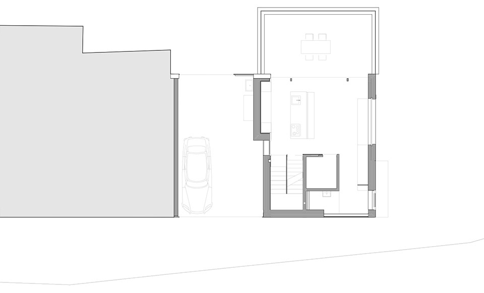
▼一层平面,ground floor plan

In the course of the conversion into another residential unit, the existing ensemble was extended by one address. In order not to distract from the original address, the additional entrance is located on the east façade facing away from the village street.
▼新旧建筑的结合,the combination of the old and new

一层室内空间朝向宽敞的花园区域,并与之自然衔接。儿童房和带有家庭办公画廊的宽敞起居空间位于上层,而这一封闭的过渡空间也为未来的密度提升提供了可能性。顶层则为父母的私人空间,并设有独立的屋顶露台。
The interior on the first floor is clearly oriented towards the spacious garden area and merges into it. The children’s rooms and a spacious living area with a gallery for home offices are located on the upper floor. However, this enclosed air space allows for future densification. The top floor accommodates the parents with their own roof terrace.
▼室内空间,the interior

▼室内空间,the interior


▼通往二层楼梯,the staircase towards the upper level

▼上层空间,the upper level space


木结构建筑的材料和氛围通过木质表面与多种浅色粘土抹灰的平衡组合得以展现。这种搭配营造出轻盈且和谐的空间氛围,使改造后的谷仓内部既延续了原建筑的特质,又契合其新的使用功能。
The materialization and atmosphere of the timber construction is characterized by the balanced interplay of wooden surfaces and various light-coloured clay plasters. The combination creates an airy and balanced spatial atmosphere inside the former barn, similar to the existing building and in keeping with its new use.
▼场地平面,site plan

▼地下室平面,basement plan

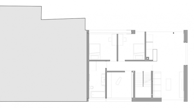
▼二层平面,first floor plan

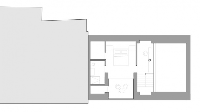
▼阁楼平面,attic floor plan

▼立面图,elevation



▼剖面图,section


Project Name: Living in the former barn
Office Name: MWArchitekten
Office Website: http://www.MWARchitekten.at
Contact email: Info@MWArchitekten.at
Firm Location: Marktstrasse 48, 6845 Hohenems, Austria
Completion Year: 2023
Gross Built Area (m2/ ft2): 190m2
Project Location: Vorarlberg, Austria
Program / Use / Building Function: Living
Lead Architects: Lukas Peter Maehr
Lead Architects e-mail: Maehr@MWArchitekten.at
Photographer and Credits: Adolf Bereuter
Photographer’s Website: https://adolfbereuter.com
Photographer’s e-mail: MAIL@ADOLFBEREUTER.COM














