潮音聚场,山东荣成 / 迹·建筑事务所(TAO)
潮音聚场坐落于荣成市桑沟湾畔滨海公园,东邻黄海,西接万亩生态防护林带,地理位置得天独厚,形成”三面环绿、一径通海”的半岛式地理格局。业主希望在此打造集会议、展览、宴会、餐饮及观景于一体的多功能文旅空间。
The Tide’s Echo Hall is situated in the Coastal Park along Sanggou Bay in Rongcheng, Shandong Province, with the Yellow Sea to the east and a vast ecological shelterbelt to the west. Its prime location creates a distinctive peninsula-like setting, “embraced by greenery on three sides and open to the sea on one side.” The client envisions the site as a multifunctional cultural and tourism hub, seamlessly integrating conference, exhibition, banquet, dining, and sightseeing facilities, fostering a harmonious connection between human activity and the coastal ecosystem.
▼从海面看向建筑,View from the sea

▼鸟瞰,Aerial view

建筑选址于滨海公园中部核心区,沿滨海生态步道两侧展开,总规划用地面积11,200平方米。场地地势低平,背靠一片茂盛的黑松林,面朝大海,视野开阔。这种自然环境的双重性——海洋的辽阔与树林的静谧——为建筑设计提供了丰富的灵感源泉。
▼场地周边环境,Site photo

▼场地分析,Site analysis diagram

The site is located in the central area of the Coastal Park, extending along both sides of the coastal ecological promenade, with a total area of 11,200 square meters. Characterized by gently sloping terrain, the site nestles against a dense black pine forest while opening toward the expansive sea, offering sweeping panoramic views. This duality of natural environment—the vastness of the ocean and the serenity of the woods—provides a rich source of inspiration for the architectural design.
▼鸟瞰,Aerial view

▼建筑俯瞰,Overlook to the buildings

整体布局上,设计根据不同场所特质与景观特征,将其划分成三个区域来布局不同功能的建筑,各自呈现出独特的性格。潮音聚场作为展览会议的主会场,布置在距海最近的场地东北侧,屋顶覆盖下的内外空间层层嵌套形成拥有多向视野的开放空间;餐厅作为主会场的配套,布置于场地西侧,黑松林为建筑提供了天然的屏障,围绕中心庭院形成隐匿静谧的空间体验;大排档则沿海岸线水平展开,连续开阔的临海界面充分利用海景资源,最大化地引入自然光线和海景视野,突出其公共性特征。建筑群在空间的三个维度上与场地紧密地联系起来,游走其间,室内外空间不断反转,创造出多层次的空间体验。
▼概念图解,Concept diagram

▼1_500场地模型,1 to 500 site model


The overall layout is organized into three distinct zones based on the unique characteristics of the site and its landscape features, with each zone expressing a distinct architectural identity. The Tide’s Echo Hall, serving as the main exhibition and conference venue, is positioned on the northeastern side of the site, closest to the sea. The interplay of nested volumes beneath the roof creates a dynamic sequence of spaces, while fostering an open environment with multi-directional views. The restaurant, as the supporting facility, is situated on the western side of the site, where the black pine forest acts as a natural buffer. Centered around a central courtyard, the design creates an intimate and tranquil spatial experience. The coastal food court stretches horizontally along the coastline, featuring a continuous and expansive sea-facing façade that maximizes natural light and ocean views, reinforcing its open and public character. The architectural complex is intricately integrated with the site across three spatial dimensions. As visitors navigate through the spaces, the boundaries between interior and exterior are continually redefined, creating a dynamic and layered spatial journey that responds to both the natural and built environment.
▼建筑全景,Overall view

自然意象的抽象Abstraction of Natural Imagery
作为最大的体量,潮音聚场面向大海,既是未来举办大型活动的场所,也将成为市民重要的亲海平台。建筑体量呈现出鲜明的空间导向性:西侧以谦逊的姿态面向黑松林带,通过层层递进的入口序列营造静谧的到达体验;东侧则以舒展的形态面向大海,打造出悬浮于潮汐之上的全景观景平台。微微起伏的巨大屋顶作为建筑最重要的表达元素,以其纯净的白色曲面形态成为视觉焦点。微微起伏的轮廓和超薄屋面结构实现了极致的轻盈表达,宛若鼓满海风的船帆,迎风舞动。部分大出挑的屋面由外部立柱支撑,进一步展现了力与美的动态平衡。
▼概念草图,Concept sketch

▼1_100建筑整体模型,1 to 100 physical model


As the largest volume, the Tide’s Echo Hall faces the sea, serving as both a venue for large-scale events and a vital coastal platform for the public. Its architectural form reflects a clear spatial orientation: on the west side, the building presents a humble gesture toward the black pine forest, creating a tranquil arrival experience through a layered entrance sequence; on the east side, it stretches out towards the sea, creating a panoramic viewing platform that appears to float above the tides. The subtly undulating roof serves as the most expressive architectural element. Its pure white curved surface becomes a striking visual focal point, evoking the image of a sail billowing gracefully in the sea breeze. The delicate contour and ultra-thin roof structure achieve an extreme sense of lightness, enhancing the impression of movement and fluidity. Portions of the cantilevered roof are supported by slender columns, further highlighting the dynamic balance between strength and elegance.
▼建筑远景,Distant view

▼看向海面,View to the sea

被树林环抱的餐厅,体量被刻意压低,以表达对周边环境的尊重。其起伏的屋顶与会议中心的屋顶形成高低错落的组合。在材料选择上,建筑使用了红色的木模混凝土,这种温暖而质朴的材料与树林的自然色调相呼应,增强了建筑与环境的对话关系。
The restaurant, nestled within the woods, intentionally features a low-profile to express respect for its surrounding environment. Its undulating roof forms a harmonious contrast with the roof of the Tide’s Echo Hall, creating a dynamic interplay of heights. In terms of materiality, the building employs red concrete with wooden formwork, a warm and rustic material that resonates with the natural tones of the forest, enhancing the architectural dialogue with its surroundings.
▼建筑远景,Distant view

▼大屋顶下的半室外空间,Semi-outdoor space under the roof

大排档沿海岸线呈线性布局,狭长的建筑体量笔直横亘于树林与沙滩之间,创造出通透开放的观景界面,为市民及游客提供了与海天林景零距离对话的休闲社交空间。在长达170米的场地范围内,沿长向不断错动的折线形屋顶,通过大跨度的折板结构将海景最大化,形式配合功能使用上的变化为建筑带来间歇与节奏。连续的落地玻璃幕墙系统消解了建筑内外空间的物理阻隔,使屋顶仿佛漂浮在空中,进一步强化了建筑的轻盈感,同时也模糊了室内与室外的界限。
The food court is arranged in a linear layout along the coastline, with their elongated form stretching between the woods and the beach. This configuration creates an open and transparent viewing interface, offering the public a direct and immersive experience with the sea, sky, and forest. Spanning 170 meters, the building features a zigzag roof, which maximizes the ocean view through large-span folded plate structures. This design not only optimizes the visual experience but also introduces rhythm and variety to the building’s form. The continuous floor-to-ceiling glass curtain wall system dissolves the physical boundary between interior and exterior, making the roof appear to float in mid-air. This amplifies the building’s sense of lightness while blurring the lines between indoor and outdoor spaces.
▼折线形屋顶下的半室外空间,Semi-outdoor space

▼半室外空间,Semi-outdoor space


屋面下的空间聚落Spatial Cluster beneath the Roof
为调和屋顶宏大体量与人体尺度间的落差,屋顶下的体量采用“化整为零”的设计策略——如同海岸礁石群,多个小体量错落堆叠,通过精确的几何切割与旋转,创造出层次丰富的室内外空间序列,赋予建筑独特的雕塑感。这些体量的探出与退位、尖锐与圆润的对比,以及彼此不同的比例关系,都被有机地调和,形成了一种既动态又平衡的空间景观。每一个小体量都是一个独立的空间容器,承载着会议空间、多功能厅等不同功能,同时又通过整体的组合关系,形成了一种连贯的空间叙事。使用者可以在其中感受到空间的流动与变化,仿佛在海岸边的巨石间穿行,既有一种探索的趣味,又有一种与自然共处的宁静。在形态上则通过虚实相间的立面处理,保持了整体统一性的同时,形成富有变化的立面节奏。
▼轴测爆炸拆解图,Exploded axonometric diagram

To mediate the discrepancy between the roof’s monumental scale and human dimensions, the design beneath the roof adopts a strategy of “breaking down the whole into smaller parts”—much like a cluster of coastal rocks. Multiple smaller volumes are staggered and stacked, with precise geometric cuts and rotations, creating a rich sequence of layered indoor and outdoor spaces that impart a sculptural presence. The interplay between protrusions and recesses, angular and rounded forms, along with varied proportional relationships, results in a dynamic yet balanced spatial composition. Each individual volume serves as a distinct spatial container, accommodating functions such as conference room and multi-functional hall, while their collective arrangement forms a coherent spatial narrative. Visitors experience the flow and transformation of space, as if traversing between the giant rocks along the coastline—offering both a sense of exploration and tranquil coexistence with nature. The facades achieve visual coherence through an interplay of solid and void, creating rhythmic elevation while maintaining overall unity.
▼入口处,Entrance

▼建筑外立面,Façade

▼室外楼梯,Outdoor staircase

▼建筑外立面,Façade

在体量内部,多层次吊顶系统创造出”空间中的空间”,划分出功能与尺度各异的空间单元,赋予每个空间独特的个性与氛围。圆形主会场及深长的多功能报告厅作为主要体量,提供了灵活的大空间,满足多样化的活动需求。交通空间如同城市街道将不同的功能区域串联起来,结合空间内不同的洞口、平台、阳台等元素,塑造出多重互望的视线关系,增强了空间的活力和多样性,进而创造出一种“城市性”的体验。
▼1_100建筑整体模型,1 to 100 physical model

Inside the volumes, a multi-layered ceiling system creates “spaces within spaces,” dividing areas into different functional and spatial units, imbuing each with its own unique character and atmosphere. The circular main hall and the deep, long multifunctional conference hall serve as the primary volume, providing flexible large spaces to accommodate a variety of activities. Circulation spaces act like city streets, linking various functional zones, while different openings, platforms, and balconies create multiple sightlines that enhance the vitality and diversity of the space. This dynamic interplay generates an experience that evokes the “urbanity” of the space.
▼前厅,Foyer

▼中庭空间,Atrium



▼洞口,Lookout opening

▼大楼梯,Grand staircase

▼瞭望平台,Balcony

路径与漫游Paths and Promenade
建筑的空间设计注重室内与室外的互动,通过开放的平台和灵活的动线,营造出一种自然与建筑交融的体验,形成连贯的空间叙事。二层平台被设计为开放的公共空间,坡道的引入使“漫游”成为建筑体验的核心。游人可以沿着坡道缓缓上行,感受从树林到大海的景观变化,同时体验建筑形体和空间的微妙转换。
▼轴测爆炸拆解图,Exploded axonometric diagram

The spatial design emphasizes the interaction between interior and exterior, blending nature with architecture through open platforms and flexible circulation paths, creating a continuous spatial narrative. The second-level viewing platform is conceived as an open public space, with the introduction of ramps making “promenade” the core of the architectural experience. Visitors ascend gently along the ramp, witnessing the shift in scenery from the forest to the sea, while also experiencing subtle transitions in architectural form and space.
▼建筑外立面,Façade

▼环形坡道,Circular ramp

▼环形坡道,Circular ramp

▼环形坡道,Circular ramp

▼环形坡道,Circular ramp


▼轴测爆炸拆解图,Exploded axonometric diagram

▼环形坡道,Circular ramp

▼环形坡道,Circular ramp

▼环形坡道,Circular ramp

▼环形坡道,Circular ramp

▼环形坡道,Circular ramp

▼环形坡道,Circular ramp

建筑墙体时而将视线遮挡,时而完全打开,从静谧到辽阔,从封闭到开放,而转上二楼的瞬间,视线豁然开朗,飘逸的曲面屋顶仿佛向大海无限延伸。这种虚实变化进一步丰富了漫游体验,使空间呈现出一种流动的状态。
At times, the building’s walls obscure the view, while at other moments, they open up entirely, shifting from serenity to expansiveness, from enclosed to open. Upon reaching the second floor, the view unfolds dramatically, with the sweeping curved roof appearing to extend endlessly toward the sea. This dynamic interplay of solid and void further enriches the promenade experience, giving the space a flowing, ever-changing quality.
▼二层观景平台,Viewing platform

▼二层观景平台,Viewing platform

▼二层观景平台,Viewing platform

▼室外坡道,Outdoor ramp

在这种漫游叙事中,漫游路径既是将室外空间引入建筑内部的过渡,又营造出内部空间的延续感,模糊了传统的内外界限,使得建筑不再是一个封闭的私密场所,而是成为面向城市与海滨的开放体。无论是在半室外观景平台上极目远眺,还是在建筑的庇护下聆听海浪与松涛的和鸣,使用者都能在建筑与自然的对话中找到一种微妙的平衡,感受到空间的流动性与开放性。
In this promenade narrative, the path serves both as a transition from outdoor to interior space and as a way to extending the experience within. It blurs the traditional boundaries between inside and out, transforming the building from a closed, private entity into an open, urban-seafront interface. Whether standing on the semi-outdoor viewing platform, gazing at the horizon, or sheltered by the building while listening to the symphony of waves and pines, visitors experience a delicate balance between architecture and nature, embracing the fluidity and openness of space.
▼建筑全景,Overall view

▼1_100建筑整体模型,1 to 100 physical model

▼剖透视,Perspective section

▼1_100建筑整体模型,1 to 100 physical model



▼总平面图,Master plan

▼潮音聚场首层平面图,Ground floor plan

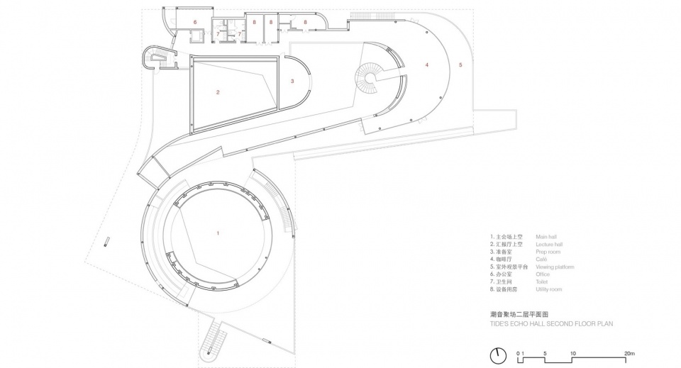
▼潮音聚场二层平面图,Second floor plan

▼潮音聚场东立面图,East Elevation

▼潮音聚场西立面图,West Elevation

▼潮音聚场南立面图,South Elevation

▼潮音聚场北立面图,North Elevation

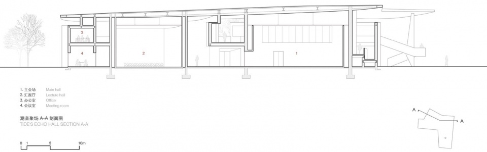
▼潮音聚场A-A剖面图,Section A-A

▼潮音聚场B-B剖面图,Section B-B

▼潮音聚场C-C剖面图,Section C-C

▼潮音聚场D-D剖面图,Section D-D

Credits & Data
Project: Tide’s Echo Hall
Client: Shandong Rongcheng City Construction Investment Development Co., Ltd.
Location: Rongcheng, Shandong
Program: Conference, exhibition, banquet, restaurant, café, food court, etc
Principal architect: HUA Li | TAO (Trace Architecture Office)
Design team: HUA Li, WANG Yue, MA Qianran, ZOU Xingfei, ZHANG Jingyi, WANG Langhuan, NIAN Tie, GU Yu, HE Mufei, ZHAO Xiayu, YIN Yihan, ZHANG Dayong, LI Hengyu
Structural engineer: MA Zhigang, ZHAO Xiaolei, MENG Lei
MEP engineer: LV Jianjun and Kcalin design group MEP engineer: LI Xin, LI Wei
Lighting consultant: z design and planning
Construction team: Shandong Rongcheng Construction Group Co., Ltd.
Floor area: 6,238 sq. m.
Structural system: Steel frame and shear wall structure
Design: 2020.11 – 2021.9
Construction: 2022.6 – 2024.11
Photograph: AOGVISION, SUN Xiangzhou














