华强科创广场,深圳 / AUBE欧博设计
为持续推进深圳市的城市更新,深圳市规划和国土资源委员会发布了《2015年深圳市城市更新单元计划第二批计划》,华强激光工厂城市更新单元被纳入到该计划中。AUBE欧博设计自2018年启动该项目的更新设计,于2023年完成建设,2024年华强激光工厂正式蝶变为华强科创广场并进入运营阶段。
To further advance Shenzhen’s urban renewal initiatives, the Shenzhen Municipal Urban Planning, Land & Resources Commission released the 2015 Shenzhen Urban Renewal Unit Plan (Second Batch), incorporating the Huaqiang Optical Technology Factory urban renewal unit into its agenda. AUBE Conception commenced the project’s renovation design in 2018, culminating in its completion in 2023. By 2024, the Huaqiang Optical Technology Factory had undergone a thorough transformation into Huaqiang SIP, officially entering its operational phase.
▼项目鸟瞰图,Aerial View

▼项目鸟瞰图,Aerial View

华强科创广场是福田区携手华强集团在福田区八大重点产业片区之一的梅林-彩田片区重点打造的首个以先进制造业为主题的产业园区-湾区智造总部大厦,同时也是全国首个“低空经济生态融合产业园”,为深圳福田梅林片区的标志性门户。
Huaqiang SIP represents a landmark collaboration between Futian District and the Huaqiang Group, situated within the Meilin-Caitian area—one of Futian’s eight key industrial zones. As the inaugural industrial park in the district dedicated to advanced manufacturing—the Greater Bay Area Intelligent Manufacturing Headquarters Tower, it also holds the distinction of being China’s first Low-Altitude Economy Ecological Integration Industrial Park, establishing itself as a gateway icon for Shenzhen’s Meilin Area in Futian District.
▼2018年航拍,Aerial View in 2018

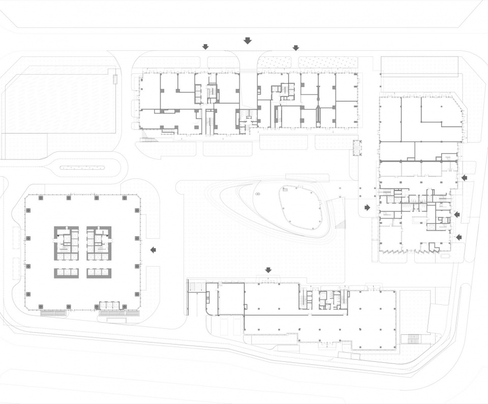
项目位于福田CBD北轴深圳智谷核心,南邻北环大道,西接北环新洲立交两大城市主干道,三山一水三公园绿肺环绕。总建筑面积191 848平方米,规划1栋200米超高层研发办公楼与1栋100米宿舍楼南北向错开布置,与24米多层办公楼、32米高层办公楼,塑造围合向心的城市空间并向周围打开,引入人群。丰富的产品多样性同时铸成了跌宕起伏的天际线。
The project sits at the heart of Shenzhen Intelligent Valley along the northern axis of Futian CBD, bordered to the south by Beihuan Boulevard and to the west by the Beihuan-Xinzhou Interchange—two major urban arteries. Enveloped by a verdant embrace of three mountains, one river, and three parks, the development spans a total floor area of 191,848 square meters. The master plan strategically positions a 200-meter super-high-rise research and office tower alongside a 100-meter dormitory tower in a staggered north-south layout, complemented by a 24-meter mid-rise office building and a 32-meter high-rise office block. This composition fosters a cohesive yet open urban space, drawing people in while sculpting an animated and undulating skyline through its rich diversity.
▼北环大道半鸟瞰视角,Semi-Aerial View from Beihuan Boulevard

▼北环大道人视图,Street View from Beihuan Boulevard

▼东侧半鸟瞰,Semi-Aerial View of the East Side

设计的灵感源自华强激光的记忆的传承,自地向天的光束将主塔切分,塔冠及避难层的棱镜形设计均是对于光的诠释。
The design draws inspiration from the enduring legacy of Huaqiang Optical Technology, with beams of light ascending from the ground to carve the main tower. The prism-like forms at the crown and refuge floors articulate an architectural interpretation of light itself.
▼广场人视图,View from the Plaza

▼西侧人视图,West Elevation Street View

▼100m高度塔身视角,Tower Façade Viewed from 100m Altitude

▼塔楼仰视图,Upward View from the Tower Base

项目围合出中心广场,并布置展示及商业的多功能建筑,成为广场亮点的同时,将空旷的广场变为可停留可休憩场所。沿场地水平轴线打造“人文之廊”串联形成了不同尺度的公共开放空间序列,让产业园区在夜间也能成为周边人群乐于活动的场所。
The project’s spatial configuration encloses a central plaza, where a multifunctional structure for exhibition and commercial purposes is thoughtfully arranged as a focal point, transforming the expansive plaza into a welcoming gathering place. Along the site’s horizontal axis, a “Corridor of Humanity” interconnects a sequence of public spaces of varying scales, ensuring that the industrial park remains an engaging social hub for surrounding communities, even after nightfall.
▼中心广场鸟瞰图,Central Plaza Aerial View

▼中心广场人视图,Central Plaza View



▼中心广场商业,Commercial Zone Views of Central Plaza



▼中心广场局部,Central Plaza Close-Up

▼多层办公立面,Mid-Rise Office Elevation

▼塔楼前广场景观,Forecourt Plaza Landscape

▼多层办公细部,Mid-Rise Office Façade Detail

宿舍的位置兼顾了南侧一览无余的城市景观和北侧壮美的山景,在中间自下而上设置的空中庭园,将空中的一字形公共观景场所与地面广场联系起来,并为每一层的内部长廊增加了通风和采光的机会。
The dormitory tower enjoys an unparalleled dual panorama—an uninterrupted cityscape to the south and majestic mountain views to the north. A sky garden, linking the linear public observation deck with the ground-level plaza, introduces opportunities for natural ventilation and daylighting along the internal corridors on every floor.
▼塔楼30层南向室内空间,Tower’s 30th-Floor South-Facing Interior

▼宿舍南向城市夜景,South-Facing Nightscape from the Dormitory

12米高的环通大堂透过通透的玻璃幕墙将广场空间延续进来,加强了室内外的互动。并为企业展示提供场所的可能。精致跌宕起伏的雨棚是对周边树的礼让。
The 12-meter-high full-floor lobby extends the urban plaza into the interior through transparent curtain walls, fostering seamless indoor-outdoor interplay while offering a potential venue for enterprise shows. The elegantly contoured canopy, with its rhythmically undulating form, subtly pays homage to the surrounding trees.
▼塔楼入口,Tower Entrance

▼塔楼大堂室内空间,Tower Lobby Interior

▼塔楼雨棚,Tower Canopy

▼塔楼雨棚细部,Tower Canopy Detail

整个项目围绕一个24小时向公众开放的城市庭园,将宿舍、办公楼、商业与公共花园、社区配套和多元的城市环境结合了起来,塑造一个并不张扬的,人文的新产城形象。打造一个充满活力的街区生活综合体。
At its core, the project revolves around a publicly accessible 24-hour urban garden, harmonizing the dormitory, office buildings, and commercial spaces with public gardens, community amenities, and a comprehensive urban environment. This creates a low-key yet human-centered new industrial-urban archetype—a vibrant living neighborhood complex.
▼建筑细部,Building Details

华强科创广场作为AUBE欧博设计在城市更新领域的重要实践之一,生动诠释了我们对城市空间优化与产业升级的深刻理解。AUBE欧博设计凭借其在建筑、景观和城市规划方面的集成一体化设计能力,不仅重新定义了福田区的产业格局,更深刻回应了深圳这座创新之城的历史脉络与文化精神。未来,AUBE欧博设计将继续秉持创新与可持续的理念,通过更多城市更新项目,与城市主人公们携手共进,共同塑造一个更具包容性、更具活力的未来城市。
As one of AUBE’s milestone urban renewal endeavors, Huaqiang SIP vividly renders our profound understanding of urban space optimization and industrial upgrading. Leveraging our integrated expertise in architecture, landscape, and urban planning, AUBE Conception has not only redefined Futian’s industrial landscape but also resonated with Shenzhen’s historical narrative and cultural ethos as a city of innovation. Looking ahead, we remain steadfast in our commitment to pioneering sustainable urban renewal projects, co-creating a more inclusive and dynamic urban future in collaboration with its people.
▼总平面图,Master Plan

▼首层平面组合图,Combined Ground Floor Plan

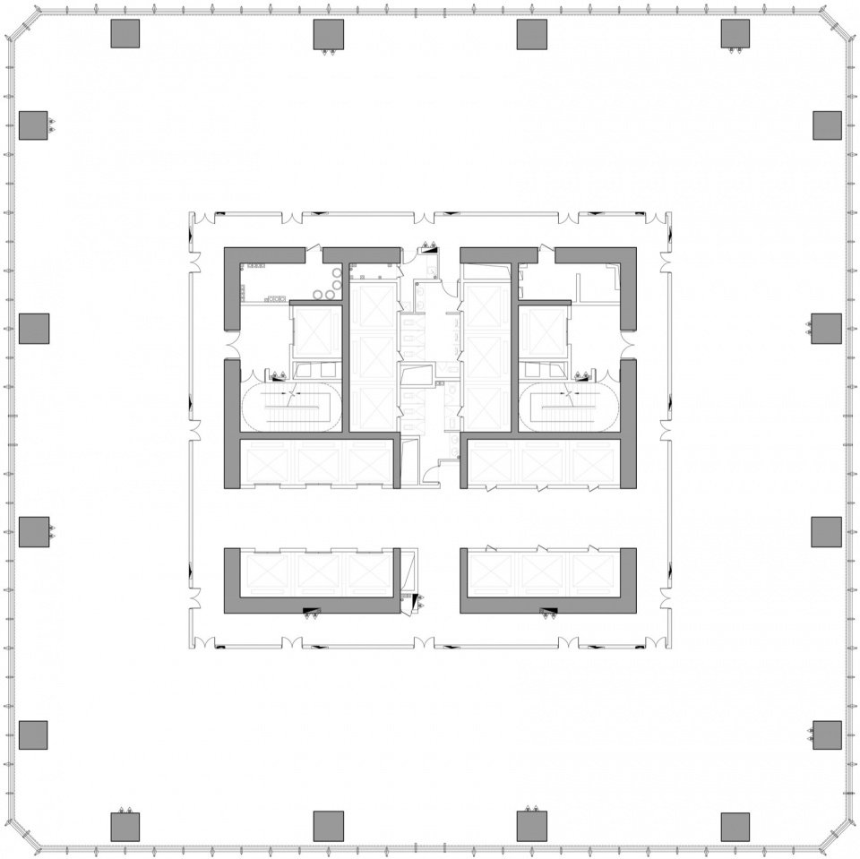
▼办公平面图,Office Floor Plan

▼办公立面图,Office Elevation

Project Profile
Location: Shenzhen, Guangdong Province
Client: Shenzhen Huaqiang Cloud Industrial Park Management Co., Ltd.
Scope: Planning and Architecture
Main Functions: Industrial R&D Office, Dormitory, Commercial & Public Facilities
Site Area: 24,000㎡
Total Floor Area: 192,000㎡
Design/Completion Year: 2018/2023
AUBE Team
Chief Architect: Chu Yijun
Project Director: Ding Rong
Architectural Team: Cai Handan, Feng Detai, Xu Ruihao, Zheng Xiaoxue, Chen Xi, Xu Zongqi, Peng Yong, Chen Qiuxia, Ye Hanyu
Architectural Concept Design: Shenzhen AUBE Engineering Design Co., Ltd.
Construction Drawing Design: Shenzhen Pengqing Architecture & Planning Design Co., Ltd.
Interior Design: Shenzhen Matrix Interior Design Co., Ltd., Shenzhen Biaopu Interior Design Consulting Co., Ltd.














