太原师范学院教师教育实训中心 / 华南理工大学建筑设计研究院有限公司 陶郅工作室
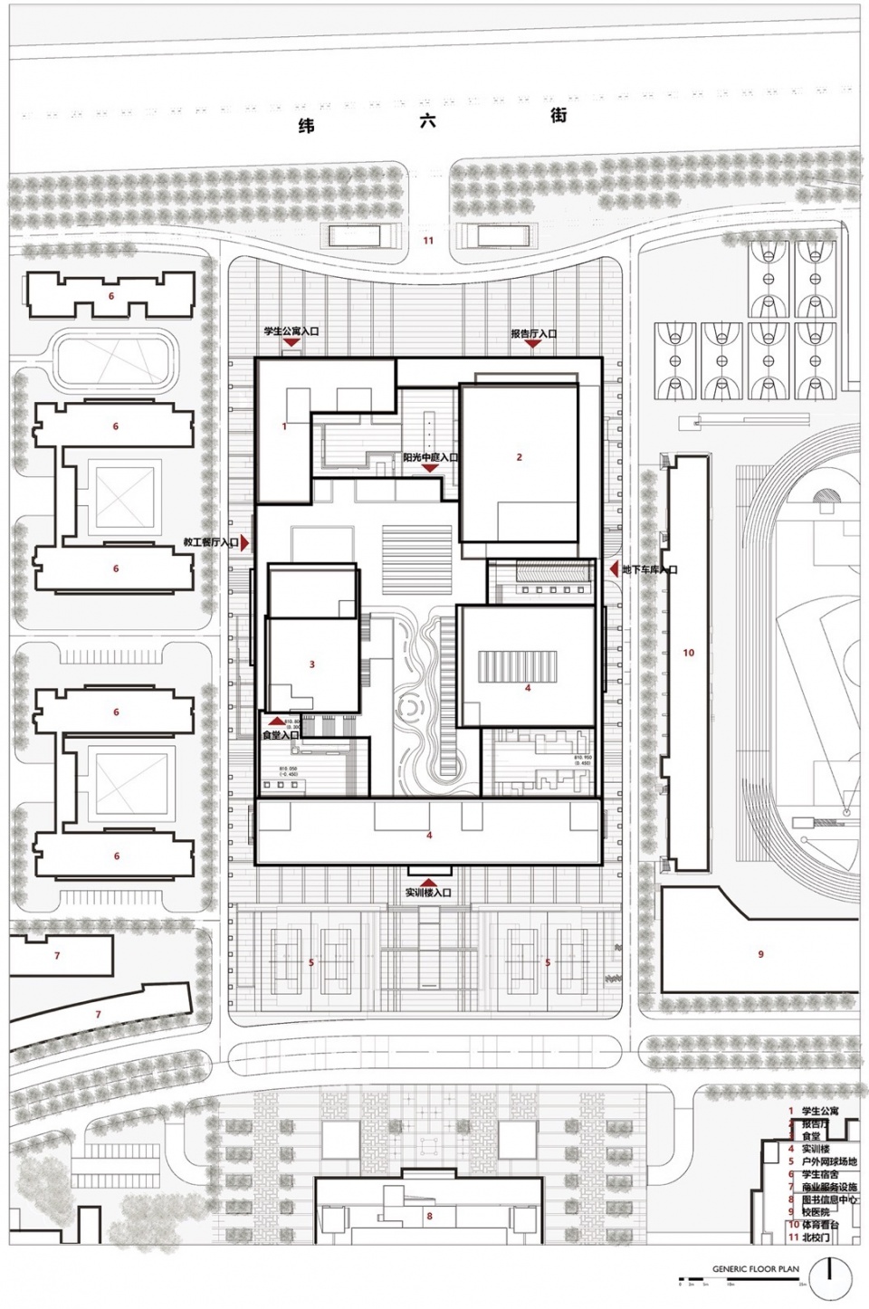
教师教育实训中心位于太原师范学院晋中新校区中轴线最北端,图书馆北侧,北大门南侧,西侧为学生宿舍区,东侧为运动场看台。为多功能复合的校园综合体建筑,总建筑面积约81946.3平方米,含37668平方米实训楼、7665平方米报告厅、15622.6平方米学生公寓、10599.6平方米食堂,4810.7平方米双创中心以及5580.4平方米的配套地下室及车库。
The Teacher Education Training Center is located at the northernmost end of the central axis of the Jinzhong New Campus of Taiyuan Normal University, on the north side of the library, the south side of the north gate, the student dormitory area on the west side, and the sports field grandstand on the east side. It is a multi-functional complex campus complex building, with a total construction area of about 81,946.3 square meters, including 37,668 square meters of training building, 7,665 square meters of lecture hall, 15,622.6 square meters of student apartments, 10,599.6 square meters of canteen, 4,810.7 square meters of entrepreneurship and innovation center, and 5,580.4 square meters of supporting basement and garage.
▼南入口日景,South Entrance Daytime View

▼南向实训楼主入口日景,South-facing Training Building Main Entrance Daytime View

▼西南向日景,Southwest Daytime View

1 互动共享——校园综合体Interactive Sharing – Campus Complex
整个校区已基本建设成型,基地为校园最后一块完整用地。随着当今师范教育理念的发展变化,规划已不能满足全新的教学需求。校方希望通过此地块的建设弥补学校当下诸多紧缺的功能用房。借鉴城市综合体的设计理念,打造一个文、娱、体、食、宿多功能集成的全新校园综合体范式。同时借鉴城市步行街的概念,通过不同功能之间合理组合,柔化边界,顺应校园南北主轴线形成一条活力内街。内街空间灵活流动,共享连廊、休憩平台、屋顶花园以及咖啡厅、研讨室、活动室等共享功能的设置可以容纳、激发多样化的校园活动,创造一个全天候不间断的校园生活中心。
▼功能分区图,Functional Zoning

The entire campus has been basically constructed, and the base is the last complete piece of land on the campus. With the development and change of the concept of teacher education, planning can no longer meet the new teaching needs. The school hopes that the construction of this plot will make up for the current shortage of functional housing for the school. Drawing on the design concept of urban complex, we will create a new campus complex paradigm with multi-functional integration of culture, entertainment, sports, food and accommodation. At the same time, drawing on the concept of urban pedestrian streets, through the reasonable combination of different functions, the boundary is softened, and a vibrant inner street is formed in accordance with the north-south axis of the campus. The flexible flow of the inner street space, the setting of shared corridors, rest platforms, roof gardens, cafes, seminar rooms, activity rooms and other shared functions can accommodate and stimulate diverse campus activities, creating an all-weather and uninterrupted campus life center.
▼东向实训楼之间内院,East-facing Courtyard Between Training Buildings

▼东向实训楼日景,East-facing Training Building Daytime View

▼西向实训楼与食堂之间内院,West-facing Courtyard Between Training Building and Canteen

▼报告厅入口柱廊看北庭院,View of North Courtyard from Auditorium Entrance Colonnade

▼西南向日景,Southwest Daytime View

▼南向实训楼主入口,South-facing Training Building Main Entrance

▼东向体育场看实训楼,View of Training Building from East-facing Stadium

2 开放聚合——文化方院Open aggregation – cultural square
晋中大院作为中国民居建筑的典范,外部规整,但内部形成多层次的院落,姿态纷呈,富有生活气息。方案在设计上吸取了传统山西大院的布局精髓,外部形成方正边界,体现对校园整体规划的尊重。边界之内开放,自由错动,通过多层次的院落与外部校园环境充分互动的同时打造丰富的外部空间,方便师生自由地到达与穿越场地,聚合校园人气,使建筑成为一个孕育校园文化的理想场所。
▼轴侧鸟瞰图,Axonometric Aerial View

As a model of Chinese residential architecture, the Jinzhong Courtyard is regular on the outside, but it forms a multi-level courtyard on the inside, with various postures and full of life. The design of the scheme draws on the essence of the layout of the traditional Shanxi compound, and forms a square boundary on the outside, reflecting the respect for the overall planning of the campus. The multi-level courtyard fully interacts with the external campus environment while creating a rich external space, which is convenient for teachers and students to reach and pass through the site freely, aggregate the campus popularity, and make the building an ideal place to nurture campus culture.
▼西向食堂日景,West-facing Canteen Daytime View

▼北向报告厅夜景,North-facing Auditorium Night View

▼北向报告厅与学生公寓,North-facing Auditorium and Student Dormitory

▼北向报告厅入口,North-facing Auditorium Entrance

▼北向报告厅入口柱廊空间,North-facing Auditorium Entrance Colonnade Space

▼东向夜景看实训楼之间内院,Night View of Courtyard Between Training Buildings from East

▼西向夜景看食堂和实训楼,
Night View of Canteen and Training Building from West

3 多义互联——阳光中庭Multisemy interconnection – Sunshine Atrium
设计在活力内街北端引入阳光中庭作为核心公共空间,为师生创造光线明亮、开放通透的室内共享空间,并通过富有趣味性的大台阶形成一个可以容纳千人集会的活动空间,并且作为周边双创、展览厅、报告厅等功能用房的聚集中心,成为校园的客厅。中庭设置立体街道衔接各个功能区,既作为交通,又可作为各种活动时的看台,形成互动气氛,促进中庭空间的高效使用。
▼剖透视图,Sectional Perspective

The design introduces the sunshine atrium as the core public space at the north end of the vitality inner street, creating a bright, open and transparent indoor shared space for teachers and students, and forming an activity space that can accommodate thousands of people through interesting large steps, and as a gathering center for the surrounding functional rooms such as entrepreneurship and entrepreneurship, exhibition halls, and lecture halls, it has become the living room of the campus. The atrium is equipped with a three-dimensional street to connect various functional areas, which can be used as a traffic and a stand for various activities, forming an interactive atmosphere and promoting the efficient use of the atrium space.
▼共享阳光中庭,Shared Sunlit Atrium


▼共享活力内街,Shared Vibrant Inner Street


▼共享活力内街咖啡吧,Shared Vibrant Inner Street Café

▼实训楼中庭,Training Building Atrium

▼实训楼中庭,Training Building Atrium

▼总平面图,Master Plan

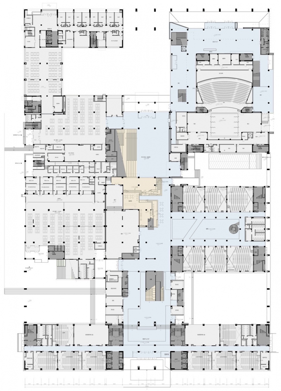
▼一层平面图,First Floor Plan

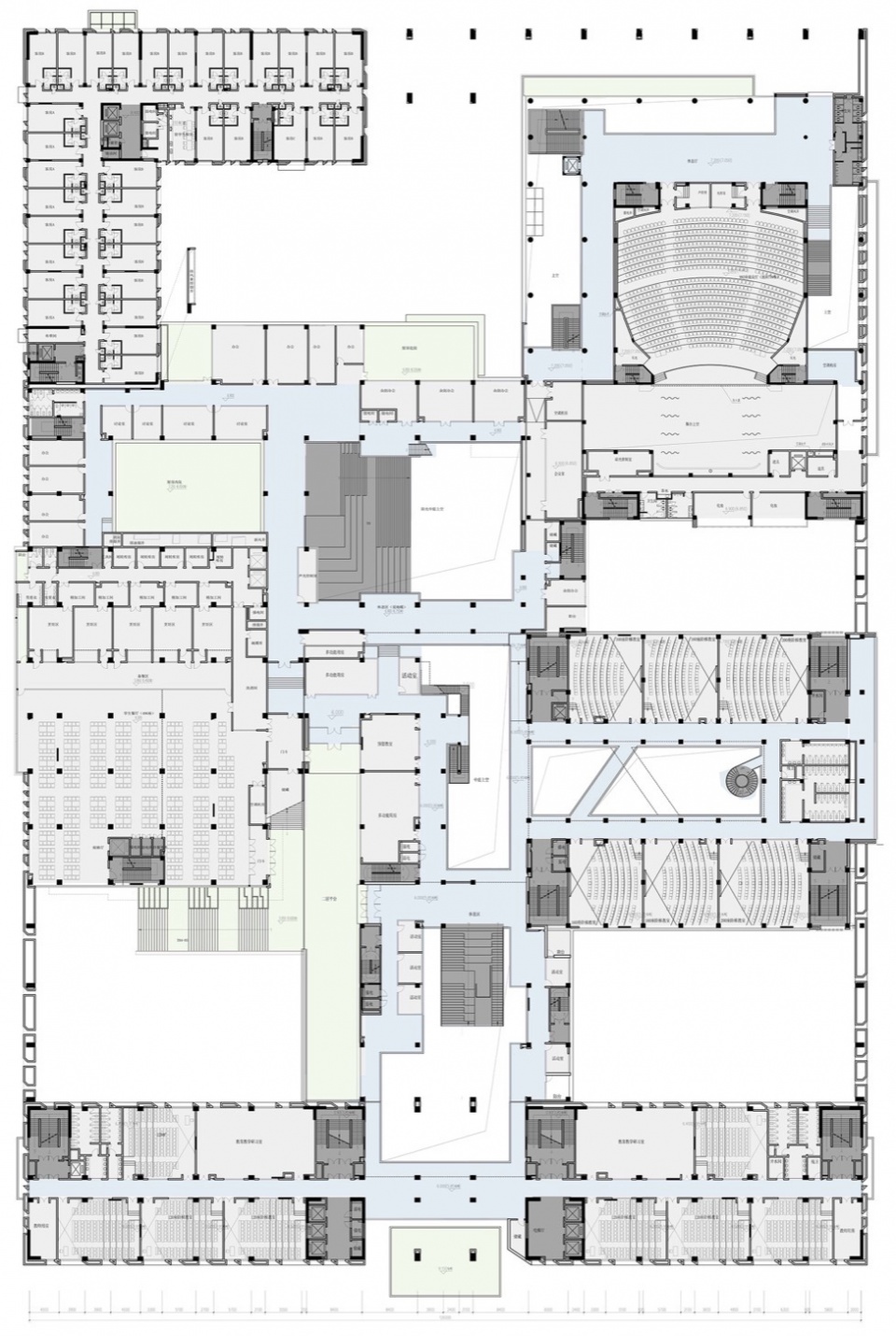
▼二层平面图,Second Floor Plan

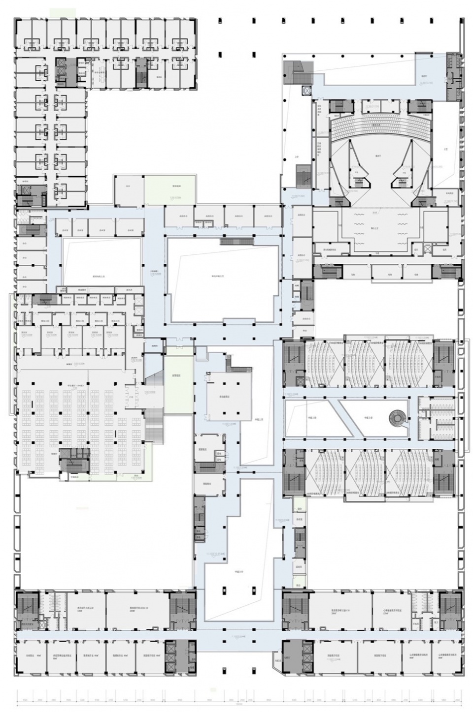
▼三层平面图,Third Floor Plan

▼东立面图,East Elevation

▼西立面图,West Elevation















