Triple E酒店,越南 / TAA Design
Triple E酒店位于胡志明市的核心地段——一个充满活力、快速发展的区域,这里汇聚了众多风格各异的小型酒店。项目由两栋九层高的建筑组成,设有两层地下空间,共提供80间客房。
Located in the heart of Ho Chi Minh City—a vibrant area undergoing rapid development and home to many small-scale hotels of various architectural styles—Triple E Hotel consists of two nine-storey buildings with two basements, offering a total of 80 rooms.
▼酒店外观,exterior of the hotel


▼酒店街景,street view of the hotel



酒店坐落于西贡历史城区的核心地带,该区域曾是热带现代主义建筑与当地独特文化肌理交汇的代表。在设计上,项目并未追求形式上的新奇,而是力图打造一处沉静的“背景”,为城市与文化语境让位——一个容纳艺术与绿意自由生长的建筑空间。
▼当地独特文化肌理,the city’s distinctive cultural fabric

The project sits within the historical Saigon urban core, an area once characterized by the intersection of Modern Tropical architecture and the city’s distinctive cultural fabric. Rather than pursuing novelty in form, the design seeks to establish a quiet “backdrop” for the urban and cultural context—an architectural space that gives room for art and greenery to speak.
▼容纳艺术与绿意自由生长,gives room for art and greenery to speak


建筑立面被构想为一层“景观滤网”:由钢结构构成的框架系统支撑悬挂式植被,既作为面向西侧的遮阳装置,也为内部空间提供一层绿意盎然的视觉缓冲。植物、钢缆与框架之间的交织关系形成了一种通透的热带立面肌理——低调却富有表现力,在密集的城市环境中呈现出克制而鲜明的美学存在。
▼景观滤网,green filter

The building façade is conceived as a “green filter”: a steel framework supporting hanging vegetation, serving both as a west-facing sunshade and a green visual buffer for the interior spaces. The interplay of plants, steel cables, and frame creates a porous tropical mass—subtle yet expressive—offering a modest aesthetic presence within the dense urban fabric.
▼景观滤网,green filter

▼框架系统支撑悬挂式植被,a steel framework supporting hanging vegetation


▼通透的热带立面肌理,creates a porous tropical mass


整座建筑摒弃了多余的装饰元素,保留结构与功能的纯粹性。裸露的材质、节能的策略以及对热带气候的适应性,共同塑造出一座可持续的建筑作品,回应着周遭的自然环境与城市语境。
The architecture strips away decorative elements, preserving the purity of structure and function. Raw materials, energy-saving strategies, and adaptability to the tropical climate all contribute to a sustainable work, one that resonates with its environmental and urban context.
▼自助餐厅,buffet dining area


▼用餐区,dining area



▼健身房,gym

▼客房区域,guest room


▼客房区域,guest room


▼场地平面,site plan

▼一层平面,ground floor plan

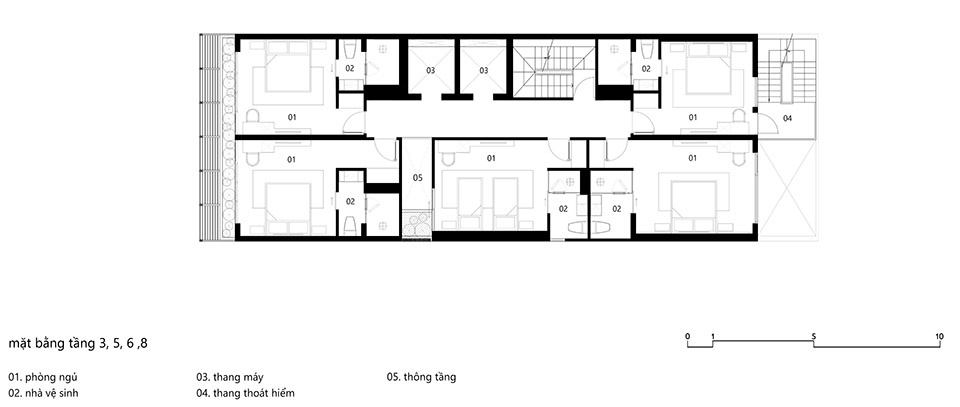
▼酒店层平面,hotel floor plan

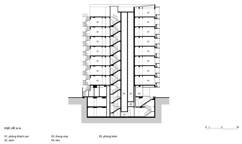
▼剖面,section

Design: TAA Design
Type: Hotel
Location: 146-158 Ky Con Street, District 1, Ho Chi Minh City, Vietnam
Site area: Two plots of 180 sqm
GFA: 2,000 sqm
Principal architect: Architect Nguyen Van Thien
Client: Saigonese Joint Stock Company
Photography: TAA Design +














