The Body Lab 北京华贸中心店 / 空间站建筑师事务所
如果把建筑与身体相对应,什么是建筑褪去衣衫的样子?我们认为是设备、设施和结构。我们把以上的思考放进一个与身体高度相关的空间之中,希望客人来到这里,褪去装饰性的服装,与这些空间元素近距离接触、互动,继而获得一种“与空间坦诚相见的放松”。
If we compare architecture to a body, what does architecture look like when it “takes off its clothes”? We think it is appliances, facilities and structure. We applied this line of thinking to a space that is highly related to bodies, hoping that guests make come here, take off their “ornaments”, interact closely with the elements of the space, and then find relaxation from “trusting the space fully”.
▼入口区,Entrance Area

▼活动走廊,Activity Corridor

▼服务岛区域,Service Island Area

TBL华贸店地处北京最繁华的国贸商圈,它所在的华贸中心是一座具有独特气质的综合商业体。商场的室内公共空间中运用了很多建筑外立面才会出现的元素,比如倾斜的玻璃幕墙,以及结构复杂的铝合金遮阳板等等。TBL的场地位于华贸中心顶层的露台,它是一个采光充足的玻璃盒子,我们希望在设计中,充分回应场地的特点。
TBL Huamao store is located in Beijing’s bustling business district of Guomao. The Huamao Center where the store is located is a comprehensive commercial complex with unique character. The indoor public space of the mall uses many elements appearing usually on facades, such as inclined glass curtain walls and complex aluminum alloy sunshades. TBL’s venue is located on the terrace of Huamao Center’s top floor. It is a glass box with abundant daylight. We hope that our design may be fully responsive to the characteristics of the venue.
▼私教室,Private Training Room


自然光线的引入是华贸店与TBL其他店的区别。这也让这个空间更加接近于“建筑”而不是“室内”。操课室本身可以看作一个有自己的外立面的独立小建筑。我们选取了场地外立面间隔一米的铝合金框架模数,搭建起操课室独立的结构系统,这个结构系统有两个倾斜的玻璃幕墙,由规律的铝合金横梁组成,我们在空间的两端设置了整面的镜面玻璃,使这种结构的秩序感得以延伸。
The incorporation of natural daylight is a distinctive and exclusive feature separating the Huamao store from the other TBL stores. This also makes this store more akin to an “edifice” rather than and “indoor space”. The gym itself can be regarded as an independent small building with its own facade. We selected an aluminum alloy frame module with a one-meter interval on the facade of the site to build an independent structural system for the gym. This structural system has two inclined glass curtain walls composed of regular aluminum alloy beams. We set up a whole wall of mirrored glass at both ends of the space to extend the sense of order of this structure.
▼团课教室,Group Class Room



▼团课教室,Group Class Room



在空间入口有一处商场的排烟机房,它被整齐的铝质隔栅所包裹,空间中所有的家具设计灵感即来自于这些铝质的隔栅立面,我们采用同样的材料语言设计了存包柜、更衣间以及遮阳百页。这些设计使这个处在建筑顶层的小型健身房像是从原有建筑设备空间自然生长出的一部分。
At the entrance of the space stands a smoke ventilator room of the mall, which is wrapped by neat aluminum grilles. The inspiration for furniture design comes from these aluminum grille facades. We used the same material language to design lockers, changing rooms and sunshade louvers. These designs are intended to make this smallish gym on the top floor of the building look like a new segment growing organically from a pre-existent space hosting building equipment space.
▼更衣柜区域,Locker Area



▼更衣区,Changing Area

操课室门前的过渡空间由于有大量自然光的引入,可以强烈感受到季节和一天中时间的变化,更像是一个具有公共性的半室外场所。这里分散着换鞋区、咖啡吧、存包柜、休息长椅和一个很小的自习区,成为“会员”们交流的场所。我们希望这两种“场所感”形成对身体行为的暗示,让来这里锻炼的人在外向——与伙伴的交流,和内向——与身体的交流两种状态之间实现切换。
The transition space in front of the gymnasium door enjoys ample sunlight, there the changes of seasons and time of day can be clearly felt. Essentially, the venue imitates the look of a semi-outdoor public place. It is interspersed with shoe changing areas, coffee bars, lockers, rest benches and tiny study rooms that become spaces for “patrons” to socialize. We hope that functionally divergent spaces will give cues for physical behavior, allowing patrons to alternate between states of extraversion —— communication with partners ——, and introversion —— communication with the body.
▼洗手池,Washbasin

▼活动走廊,Activity Corridor

▼局部,Detail





▼楼梯间,Staircase

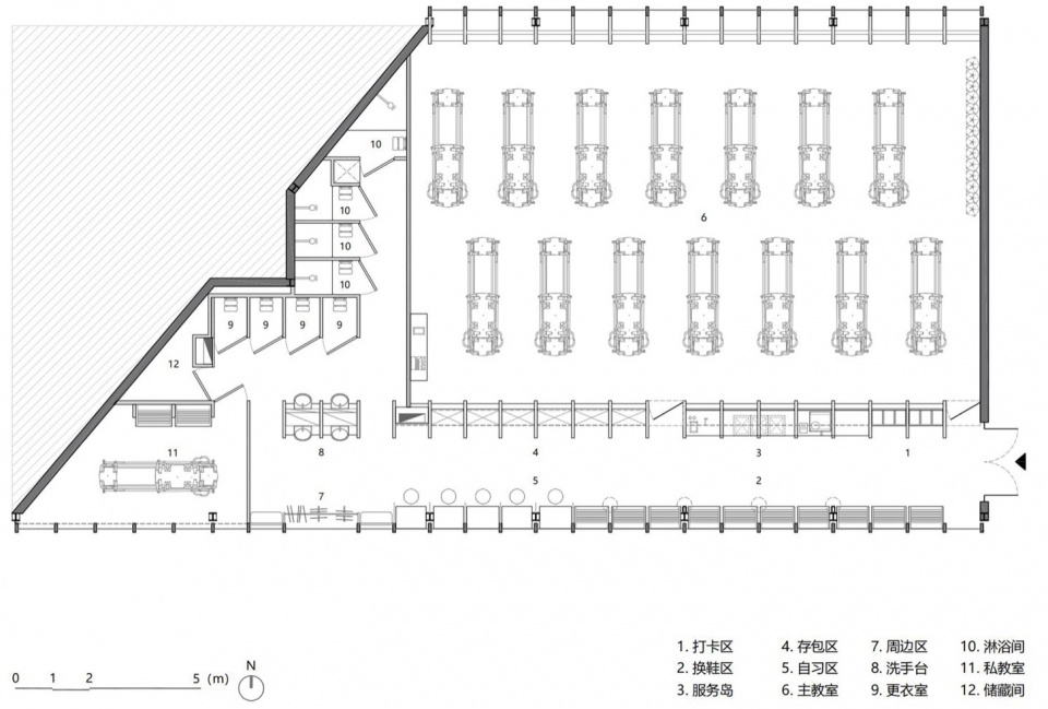
▼平面图,Plan

Project name: The Body Lab,China Central Place,Beijing
Design: SpaceStation
Website: http://www.spacestationarchitects.com/
Contact e-mail: contact@spacestationarchitects.com
Design year & Completion Year
Design:October-December/2024
Construction Finished:March/2025
Leader designer & Team
Leader designer: Wang Zheng
Project principal:Liao Huiqin
Design Team:Xiang Huaizhi,Yang Jianjing
Project location: China Central Place, Chaoyang District, Beijing, China
Gross Built Area (square meters): 300 square meters
Photo credits SpaceStation
Partners
VI Design:Relative Design
Water Supply and Drainage Engineering:Song Yanbo
HVAC Engineering:Gao Fei
Electrical Engineering:Yan Tianxiong
General Manager of Construction:Yang Dingrong
Construction Site Manager:Li Yizhong
Construction Team:Beijing Oriental Shengze Construct Engineering Co. ,Ltd.
Photographer:Jin Weiqi
Clients: The Body Lab
Brands / Products used in the projrct
1.Socket:Schneider
2.Glue:Green Valley
3.Intelligent lighting system:MIJIA














