喜叻空间研究2.0,杭州 / 喜叻空间研究
经历了三年多的成长与学习,喜叻对于办公空间的需求更加清晰。于是,新场域的设计核心延续了实用性这一功能主题。为了最大限度的满足使用者的功能需求,同时兼顾不同场景的使用效果,新办公室的功能以更加系统化和灵活化的方式呈现。“明亮,温暖,包容”依然是描述空间的主要词汇。
After more than three years of growth and learning, we now hold a clearer understanding of the office’s needs. As a result, the core design continues the functional theme of practicality. We aim to present functions in a more systematic and flexible ways, to maximize content the functional needs of users while considering the varying impacts of different use context. “Brightness, warmth, and inclusive” remain the key words to describe the space.
▼项目概览,overall of the project

▼户外座位区,outdoor seating area

▼入口,entrance

办公室位于创意园区的一层,这意味着我们第一次同时拥有室内和室外的空间。因此,如何有效地将这些空间整合,成为整体布局中需要考虑的重要因素。从开窗面着手,设计将低矮的窗台与地台相结合,延伸至室外,在室外设置绿植与休闲区,营造轻松的办公环境,并实现室内外的通透。
The office is located on the ground floor of the Creative Park, which means that for the first time, we have both indoor and outdoor spaces. Therefore, how to effectively integrate and interact with these spaces became an additional consideration in overall plan layout. We started from the window facade, combining a low platform with low windows and extending it into the outdoor area, where greenery and leisure areas are arranged to create a relaxing office atmosphere to achieve indoor-outdoor permeability.
▼夜景,night views


在空间的入口处,我们以相同材质的现浇混凝土来同时构建室外地台与入门玄关,进一步弱化室内外之间的界限,增加视觉的连续性。
At the entrance, we use the same cast-in-place concrete to construct both the outdoor floor and the entrance hall, further blurring the boundary between indoor and outdoor and enhancing visual continuity.
▼室外地台,outdoor platform

▼外观夜景细部,details of the facade

平面布局上,我们将不同的功能区以相对规整的体块放置于空间中,目的是增强空间的秩序的同时,也让空间功能相对独立与清晰。我们将各区域之间的隔断以不同高度的矮墙呈现,尽可能的获取采光,实现空间的通透感。
In terms of layout, we regularize the functional massing in the space, improving the spatial order and maintaining clear independence for each function. Varying heights of low walls serve as partitions, which allow maximum natural light to flow through and achieve the transparency of the space.
▼轴测图,axonometric drawing

原始空间的粗糙质感被保留,并将新建形体尽量局限于使用功能范围之内。让原始的墙面和裸漏的梁柱以更加开放的视觉形态呈现,形成时间与空间的对话。
We preserved the raw texture of the original space and kept the new elements functional. The original walls, exposed beams, and columns are presented in a more visual form, establishing a dialogue between past and present.
▼室内概览,overview of the indoor space

▼原始空间的粗糙质感被保留,
the raw texture of the original space is preserved

▼办公区,office area

▼时间与空间的对话,
dialogue between past and present


开合窗:为了兼顾实用与美观,重新设计的窗系统以开合的形态连接室内外空间,可翻折限位的操作杆也增加了窗的美观性和便捷性。
In interior design, we try to maximize functionality by dividing the space into different systems: top-hung windows, display, hanging, office furniture, and lighting. Modularization and systemization are employed throughout the project to create a flexible, adaptable space. Top-hung window: To balance aesthetics and practicality , we redesigned a top-hung window system with foldable handles for position limiting.
▼由室内看室外,viewing outdoor from interior

▼窗系统以开合的形态连接室内外空间,
the window system connects the indoor and outdoor spaces in an opening and closing form

▼开合窗,top-hung window

▼开合窗细部,
details of the top-hung window

▼细部,details

展示:考虑到大量书籍与材料的展示,我们设计了可在不同区域悬挂的展示架,以适应不同场景不同区域的使用需求。
Display: We designed a hanging shelve system for displaying books and materials that can be placed in different areas to meet the needs of varying situations.
▼不同区域悬挂的展示架,hanging shelve system for displaying books and materials

▼丰富的展览空间,various display area


▼室内一角,interior corner


▼办公室,office

▼独立办公室,private office area


悬挂:为了方便日常工具的使用与后期空间的可扩展性,拉索和快拆扣构建了空间的悬挂系统,方便工具的挂取和海报以及平面作品的展示。
Hanging system: Considering to arrange daily tools and allow for future space expansion, a cable and quick-release buckle system is implemented to create an efficient hanging system. The feature of this system allows for the easy hanging of tools, posters, and graphic works.
▼会议区,meeting space

▼办公区,office area

▼空间悬挂系统,hanging system


▼室内一角,corner of the indoor space

▼悬挂系统,hanging system

▼细部,details

办公家具:新设计的办公家具系统保证了室内的统一性与维护的便利性,固定尺寸的配件被设计成通用组件,家具可以通过简单的拆装以实现不同功能和尺寸的变化
Office furniture:We designed a modular series of office furniture for the new office to ensure consistency of interior design and the convenience of maintenance. The redesigned fixed-size accessories serve as universal components, allowing furniture to achieve functional and dimensional variability through simple assembly and disassembly.
▼办公家具概览,overview of the office furniture

▼办公家具系统保证了室内的统一性与维护的便利性,
a modular series of office furniture for the new office to ensure consistency of interior design

▼室内概览,overview of the indoor space

灯光:在空间的灯光设计上,为保证室内光线的均衡,设计最大限度的使用漫反射来实现空间的主照明,办公区的主照明与桥架相结合,在满足照明的基础上,将灯具变化为空间装置,管线也被隐藏其中。同时,我们将办公区的主照明与桥架相结合,在满足照明的基础上,将灯具变化为空间装置,室内管线也得到了最大限度的隐藏。工作区域的照明设计上我们为工作台设计了可手动调节角度的灯具,方便使用者的工作需求。
Lighting: In the spatial lighting design, we maximized the use of diffused reflection to achieve balanced ambient illumination, for which we developed a series of luminaires tailored to design professionals’ needs. Additionally, the main office lighting is integrated into a “bridge” design, transforming luminaires into spatial installations. This solution not only meets basic lighting requirements but also hides light pipelines. Beside we redesigned manually adjustable lighting for workbenches, offering greater flexibility for users.
▼办公区的主照明与桥架相结合,
the main office lighting is integrated into a “bridge” design


▼灯具变化为空间装置,
the lighting features have been transformed into spatial devices


▼细部,details


在此次新场域的设计中,我们仍强调自我精神的体现,并尽可能的满足使用者的需求,把不同的使用需求归类为不同的系统,以系统化的方式来思考和呈现。喜叻希望,新的场域是可以跟随使用者一起不断生长的可持续空间。
In this new venue, we continue to emphasize the expression of individual spirit while trying to content the users’ needs. We categorized the different functions into different systems and presented them in a systematic way. We consider the new space as a sustainable environment that is capable of evolving and growing alongside its users.
▼细部,details


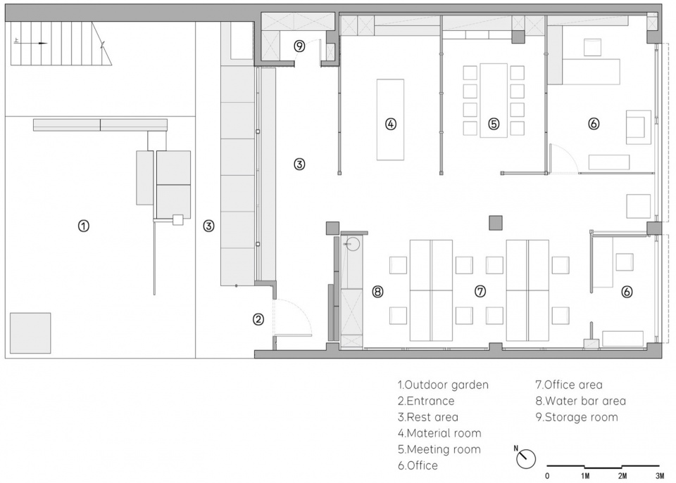
▼平面图,plan

▼立面图,elevation

▼剖面图,section

▼剖面图,section

▼细部详图,detailed drawing

Project name: Shire space research studio 2.0
Design: Shire Space Research
Leader designer & Team: Gao cheng/Zhang run
Design team:Wu yonghao
Design/Finish:March/2024-July/2024
Project location:Hangzhou
Project Area:150 square meters
Photo credits: Here Space Photography/He chuan
Lighting Technical Support:Artluci.Owen
Main Material: Stone,wood,metal,glass
Office address: Room a109, yinxiu Sanbao Creative Park, No. 30, Jingyuan Road, Gongshu District, Hangzhou
Furniture supply:Shire Space Research, Humanscale, Fritz Hansen, Thonet etc.














