申昊科技总部园区,杭州 / 峪作建筑
本项目坐落于杭州市余杭区义桥工业园,处于杭州主城区西侧,与杭州未来科技城相邻。建筑场地位于工业园东南侧,西侧和北侧均为已开发建设企业生产性用房的工业用地,南侧紧依山体,东侧则是尚未开发的农田,周边环境呈现出工业与自然交融的独特风貌。
Located in Yiqiao Industrial Park, Hangzhou, the project is situated on the western side of Hangzhou’s main urban area and adjacent to Hangzhou Future Science and Technology City. The construction site is in the southeastern part of the industrial park, with industrial buildings on the west and north sides, a mountain range closely adjacent to the south, and undeveloped farmland on the east. The surrounding environment presents a unique landscape blending industrial and natural features.
▼项目鸟瞰,aerial view of the project

▼项目鸟瞰,aerial view of the project

项目业主申昊科技是一家专注于机器人技术研发和生产的公司。此次项目旨在整合申昊科技的研发团队与资源,为其机器人科技的研发、测试、展示、交流、生产和加工等环节,构建一流的设施与场所,全力营造开放且创新的科技园区文化。
The client of this project, Shenhao Technology, is a listed company specializing in robotics R&D and manufacturing. The project aims to integrate the company’s R&D teams and resources, constructing first-class facilities and spaces for robotics research and design, testing, exhibition, and production, while fully creating an open and innovative tech workplace culture.
▼建筑外观,exterior of the building


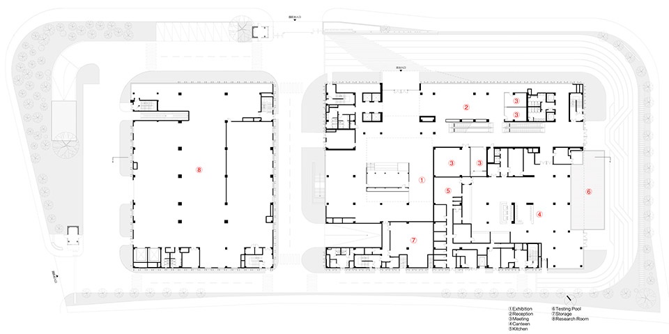
场地被划分为两个主要功能区域:东侧建筑用于办公和研发,西侧建筑则用于生产制造。两栋主体建筑通过3-5 层的连廊相互连接。
The site is divided into two main functional areas: the eastern building for office and R&D, and the western building for production and manufacturing. The two main structures are connected by a corridor on the 3rd to 5th floors.
▼建筑外观局部,exterior of the building


多样化的机器人测试场地以及机器人的运行和测试是申昊研发设施中独具特色的空间元素。设计团队巧妙地利用这一元素,提出以连续抬升的测试场地来组织室内空间,构建了全场景测试体系,从模拟复杂地形的立体轨道、高度还原变电站环境的专业测试舱,到精密控制的水下测试池,为轨道机器人、变电站检测机器人、水下机器人的研发测试提供一站式专业场所。同时打造开阔的开放性场域,为使用者创造更多偶遇与互动的机会。
The diverse robot testing fields and robotic operation/testing zones serve as unique spatial elements in Shenhao’s R&D facilities. The design team ingeniously leverages this feature, proposing a continuous elevated testing landscape to organize interior spaces. This creates a full-scenario testing system, including tracks simulating complex terrains, testing chambers highly restoring substation environments, and underwater test pools, providing one-stop venues for the R&D and testing of railway robots, substation inspection robots, and underwater robots. Meanwhile, open and expansive areas are created to offer users more opportunities for serendipitous interactions.
▼机器人测试水池, underwater test pools for robots

▼机器人测试水池和玻璃栈道, underwater test pools for robots and glass corridor

▼连廊,corridor

室内设计的灵感源于地球上丰富多样的自然环境和地貌特征。根据不同的功能需求,设计方案从海洋、沙漠绿洲、宇宙、热带雨林、草原、冰川等多种自然环境中汲取意象。
The interior design is inspired by Earth’s rich and diverse natural environments and land forms. According to different functional requirements, the design scheme draws imagery from various natural environments such as oceans, desert oases, the universe, tropical rainforests, grasslands, and glaciers.
▼建筑之间的天空,sky between the buildings

▼主入口,main entrance

▼主入口,main entrance

在保持简洁、现代的整体基调前提下,塑造出多样的空间体验,为不同功能、部门和场景打造各自独特的记忆点,与申昊机器人基于多种环境设计高适应性机器人的创新工作以及“工业大健康”的发展目标相呼应。
While maintaining a simple and modern overall tone, it creates diverse spatial experiences, establishing unique memory points for different functions, departments, and scenarios. This echoes Shenhao Tech’ innovative work in designing highly adaptable robots for multiple environments and its development goal of “industrial health.”
▼主入口门厅,main entrance lobby

▼北侧连续露台,continuous terrace

▼中庭空间,atrium space

▼二层展厅空间,the exhibition space on the second floor

▼轨道机器人测试场地,Orbital robot test site

▼机器人测试水池(地下室),underwater robot test site

▼办公空间,office space

▼办公空间廊道,office space corridor

▼报告厅室内,inside the lecture theatre

在空间打造方面,本项目着重打造多样的室内场景,将趣味性作为整体空间设计的重点,鼓励探索和交流。设计上尽可能地将自然环境元素引入室内,丰富使用者的体验,激发大家探索建筑的兴趣,促进各部门之间的沟通交流。通过营造如同草原般开阔的共享空间,打破传统办公空间的单调,让员工在舒适且富有创意的环境中工作,从而提升工作体验。
Focused on creating diverse indoor scenarios, the design prioritizes fun in overall spatial design to encourage exploration and communication. The design team strives to introduce outdoor natural environment elements indoors, enriching users’ experiences, stimulating interest in exploring the building, and promoting communication between departments. By creating shared spaces as open as grasslands, the design breaks the monotony of traditional office spaces, allowing employees to work in a comfortable and creative environment and enhancing their work experience.
▼夜景外观,building at night

▼模型,model

▼一层平面图,ground floor plan

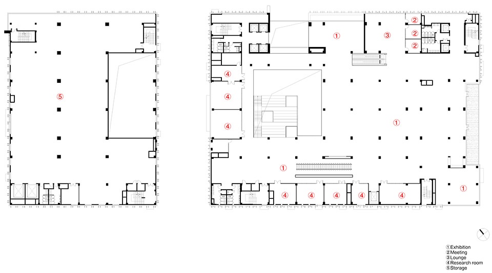
▼二层平面图,first floor plan

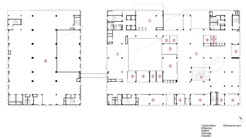
▼三层平面图,third floor plan

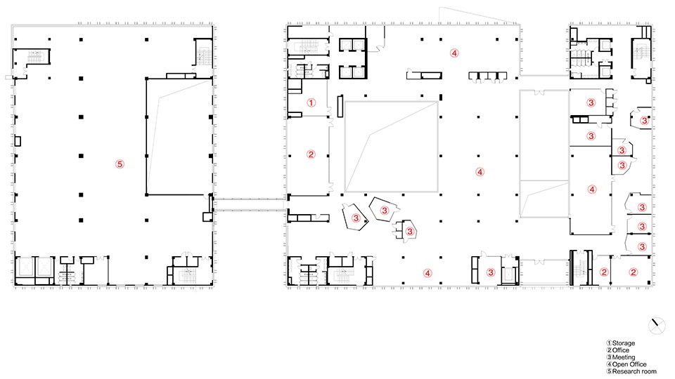
▼四层平面图,fourth floor plan

▼立面图,elevation

▼剖面图,section

Project name: SHENHAO Technology Headquarters Office
Project type: Architecture +Interior
Design: YUZO Design
Website: http://www.yuzodesign.com
Contact e-mail: jinting@yuzodesign.com
Design year: 2021
Completion Year: 2024
Leader designer & Team: Jinting Yang, Yaoyi Zhou, Jingyan Ma, Yunhao Lu, Yuting Lu, Binglei Shao, Zhe lv, Luqing Yue, Ruiyuan Ma, Luyao Zhou
Project location: Hangzhou, Zhejiang
Gross built area: 51969 ㎡
Photo credit: Chenxi Studio; Dong IMAGE
Partner: Zhejiang Huayu Engineering Design & Research Group
Clients: SHENHAO Technology














