霄云路33号办公楼,北京 / 北京大象建筑设计有限公司
霄云路33号项目紧临第三使馆区,靠近机场高速与三元桥,地处燕莎商圈的黄金地段。在寸土寸金的北京东三环片区, 稠密的街区为项目提供了丰富的背景与使用人群,亦不可避免地带来了都市喧嚣。
XIAOYUN ROAD 33 is situated adjacent to the Third Embassy District, close to the Airport Expressway and Sanyuan Bridge, in the prime location of the Yansha Business District. Within Beijing’s extremely valuable East Third Ring area, the dense neighborhood provides abundant background conditions and diverse users, while inevitably bringing the hustle and bustle of the city.
▼建筑与周边立面关系,Relationship between the building and the surrounding façade

▼夜幕下的沿街立面,Street façade at night

设计的挑战在于如何在此种场地条件下,整合在地文化、街区形态、使用功能、建筑尺度及人与空间的因素。尝试塑造城市界面的多种可能,打造出沉稳且具有内核的办公场域,处理好建筑与周边环境的关系,在与外界共栖的同时,打造国际化商务办公场景。
The challenge of design is that how to address the local culture, neighborhood morphology, functional requirements, building scale, and human-space connections. Exploring diverse possibilities for shaping the urban interface, the aim is to create a serene and meaningful workplace. What’s more, the design must harmonize the building with its surroundings to forge an international business environment.
▼建筑与街区关系,Building and neighborhood relationships

▼周边环境映入纯净立面,Surroundings reflected in a pristine façade

01
在地性 – 顺应文脉肌理,缝补城市街区
Regionalism:
Adapt to cultural texture and unite urban blocks
项目所处区域为北京典型的复合街区,写字楼林立商务氛围浓郁,周边分布高端公寓、居民住宅与沿街餐饮,烟火气十足。
The project is situated within a quintessential mixed-use neighborhood in Beijing, characterized by dense office towers and a strong business atmosphere. Surrounding areas feature high-end apartments, residential buildings, and street-side dining establishments, creating a vibrant urban life.
▼楼体位于L型用地两侧,Buildings are located on both sides of the L-shaped site

设计方案将两栋塔楼分别布置在L形用地的两端,86米高的1号楼紧临繁忙的霄云路,以建筑外观填补街道界面缺口,提升了区域形象。百米高的2号楼面对相对安静的东方东路,俯瞰使馆区和燕莎商圈。两栋楼以对公共开放的下沉广场衔接,喷泉、绿植、水幕错落有致,是可供观赏的绿化空间,亦是地下商业的室外延伸。
The design positions two towers at either end of the L-shaped site. The 86-meter-high Tower 1 directly fronts the bustling Xiaoyun Road, using its architectural form to fill the void in the streetscape and elevate the area’s image. The 100-meter-high Tower 2 fronts the quieter Dongfang East Road, overlooking the embassy district and Yansha Business District. Connecting both towers is a publicly accessible sunken plaza, tastefully arranged with fountains, greenery, and water curtains. This space serves as both an aesthetically pleasing green area and an outdoor extension of the underground retail zone.
▼下沉庭院的雅致空间,Elegant space in sunken courtyard

▼水景氤氲下沉庭院,Sunken courtyard with water features

设计通过两栋单体建筑满足不同开发周期及功能需求,以楼间的公共空间强化空间秩序、加深建筑单体联系,渗透景观绿化,着力打造适合“24小时”生活的新一代办公生活综合体。
The design employs two standalone buildings to meet distinct development phases and functional requirements. The public space between the towers reinforces spatial order, strengthens the connection between the individual structures, and integrates landscape greenery, collectively forging a new generation of office complex designed for vibrant 24/7 vitality.
▼下沉广场视角,View from the sunken plaza

02
功能性 – 加强配套功能,打造全时段办公园区
Functionality:
Strengthen supporting functions and create a full-time office park
1号办公楼为双大堂设计,首层入口大堂层高9米,外墙为隐框全玻璃幕墙,开敞通透的视野将室内外空间融为一体;顶部四层挑空设置为空中大堂,宛若哥特式教堂的尖拱形三维钢结构,支撑起通透的曲线玻璃幕墙,打破室内空间横平竖直的视觉感受,在引入室外自然光线的同时增加了空间趣味,让使用者直观感受空间的魅力。
Tower 1 employs a dual-lobby design. The ground-floor entrance lobby features a 9-meter-high ceiling with a unitized curtain wall which is configured the structure of concealed framing, creating a seamless indoor-outdoor integration. The sky lobby across top four floors is anchored by a three-dimensional Gothic pointed-arch steel structure supporting curved glazing. This breaks conventional rectilinear perceptions while flooding interiors with light.
▼建筑底部挑檐,Eaves at the bottom of the building

▼1号楼大堂空间,Lobby for the Tower 1

▼顶部四层挑空设置为空中大堂,The top four floors are set up as a sky lobby

2号楼办公楼处设置近似立方体的裙楼,两层高的大堂之上为会议厅与中小型共享会议室,塔楼首层到三层为餐馆和商业设施。裙楼与塔楼之间由挑高室内花园连接,大尺度的玻璃幕墙围合两侧立面与屋顶,自然光可倾斜而下点亮室内景观,为匆匆出入的上班族带来片刻的惬意和愉悦。
Tower 2 incorporates a nearly cubic podium. Above the double-height lobby are conference halls and shared meeting rooms. Floors 1-3 of the tower house restaurants and retail facilities. A soaring indoor garden links the podium to the tower, enveloped by Large scale glass curtain walls enclose the facades and roofs on both sides. Natural light can shine in, illuminating the indoor landscape, offering fleeting moments of tranquility for busy professionals.
▼2号楼近似立方体的裙楼,The near-cubic podium of Tower 2

▼2号楼大堂空间,The lobby of Tower 2


楼内员工可通过首层大堂的自动扶梯便捷到达地下一层的员工食堂和商街,或途经大台阶往返于下沉广场与街区。
Employees inside the building can easily reach the underground staff canteen and commercial street through the escalator in the lobby on the first floor, or travel back and forth between the sunken square and the block via the large steps.
▼公共广场,Public plaza

▼树阵广场,Tree line plaza

广场作为城市公共空间,是整个区块的绿色交通枢纽,加强了景观性,配合周边商业成为项目的“精神大堂”。在此,公共空间被作为完整体系考量,通过打造公共空间,将景观活力渗透进项目,打造舒适、愉悦、安全、高效的办公空间。
As an urban public space sunken plaza acts as the public green transit hub and visual anchor. Enhanced by landscaping and synergizing with adjacent commerce, it forms the project’s “spiritual core.” Here, public spaces are systematized: by strategically activating these zones, landscape vitality permeates the complex, forging a comfortable, engaging, secure, and efficient workplace.
▼1#办公区视线直达北京CBD,1#Office area with direct line of sight to Beijing CBD

▼2#标准层办公空间,2#typical office space

▼2#标准层电梯间,2#typical floor lift

▼2#会议空间,2#meeting room

03
立面语汇 – 纯粹、超扁平的立面形式
Facade skill:
Pure & super flat facade form
在统一中求变的设计思路,是本次营造项目特色的出发点。在空间体量的营造和细节处理上也延续了这一理念,为项目本身融入了更多活力与乐趣。楼栋立面设计选择了单元式玻璃幕墙体系,用统一的分割模数及立面细节表现简约的现代风格与含蓄内敛的艺术内涵。
The design philosophy of “seeking variation within uniformity” forms the cornerstone of this project’s distinctive character. This principle extends to spatial volume composition and detailing, infusing the development with dynamic vitality and engaging experiences. The tower facades employ a unitized curtain wall system, utilizing uniform segmentation modules and refined facade articulations to express a minimalist modern aesthetic with understated artistic depth.
▼“繁华”与“静谧”的质感对比,Contrasting textures of ‘bustling’ and ‘quiet’

每层建筑均采用整块幕墙玻璃,通过立面横纵栅格的划分,以纯粹的工业化风格呼应场地的都市氛围,打造“新”与“旧”、“繁华”与“静谧”的质感对比,让建筑与城市共生、共存、共对话。超扁平化的外立面通过玻璃反映射出的周边环境,使建筑体量消融于城市中,随时空变化与季节更迭,赋予建筑感性的面貌。
Full-height glass panels clad each floor, segmented by horizontal and vertical grids. This industrial vocabulary resonates with the urban context, creating a textural contrast between “new&old” and “bustle&tranquility”, enabling the architecture to symbiotically coexist with the city while fostering an ongoing dialogue. The ultra-flattened facade dissolves the building’s mass into the urban fabric through reflective properties of its glazing. As diurnal shifts and seasonal transitions unfold, this reflective surface imbues the architecture with dynamic perceptual qualities.
▼四季更迭,建筑映照环境变化,The seasons change and the architecture mirrors the changing environment

04
品质营造 – 用心打造经典作品
Quality creation:
Create classic works with dedication
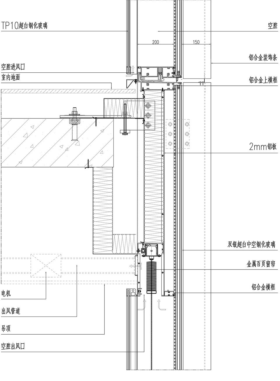
建筑立面的玻璃幕墙为双层内循环可呼吸式,外层玻璃起到围护作用,阻挡外部环境的风尘雨雪;内层玻璃在房间底部设排风口,天花板处设进风口,循环系统开启后,新鲜空气通过进风系统进入房间,室内空气连同阳光辐射产生的热量通过幕墙空腔的热回收系统排出。同时,可通过调整进新风量控制整个房间的温度、湿度等,营造舒适、安静与节能的办公环境。
▼双层可呼吸式窄体单元幕墙细部节点,wall detail

The building’s facade features a double-skin, mechanically ventilated curtain wall system. The outer glass layer serves as a protective barrier against wind, dust, rain, and snow. The inner glass layer integrates floor-level exhaust vents and ceiling-mounted intake vents. When activated, the circulation system draws fresh air through ceiling intakes into occupied spaces, while indoor air—along with heat from solar radiation—is expelled through the heat-recovery mechanism. Adjusting the fresh air intake enables precise control over room temperature and humidity, fostering a comfortable, quiet, and energy-efficient office environment.
▼沿街立面,Street facade

幕墙选用超白玻璃,视野通透明亮的同时将玻璃自爆的风险降至最低。外层特殊定制的Low-E膜在最大限度屏蔽红外线的基础上可保证采光功能,并减少镜面反射带来的光污染。
The curtain wall utilizes ultra-clear glass, maximizing visual transparency while minimizing spontaneous breakage risks. The outer layer features custom-engineered Low-E coating that optimizes infrared rejection without compromising daylighting, simultaneously reducing reflective glare pollution.
▼建筑入口,Building entrance

空调与电系统皆精益求精。变风量VAV(Variable Air Volume )送风系统可实现区域温度控制,全空气空调机组设有静电及初效过滤,提高空气过滤等级,提升室内空气品质。为满足特殊租户的用电要求,地下一层预留了柴油发电机组。两栋办公楼的公共区域照明采用高效光源及灯具,不同场所选取适配性节电开关。防火门监控系统、电气火灾监控系统和一级火灾集中自动报警系统全面保证建筑消防安全。
HVAC and electrical systems are meticulously engineered. The VAV (Variable Air Volume) system enables zoned temperature control, while central air handling units incorporate electrostatic and primary filtration to enhance air quality. To accommodate specialized tenant requirements, basement-level diesel generator sets are provisioned. Public areas in both towers employ high-efficiency luminaires with adaptive energy-saving switches. Comprehensive fire safety is ensured through monitored fire doors, electrical fire monitoring systems, and a centralized Grade-A automatic fire alarm system.
▼体块概念生成图,massing generation

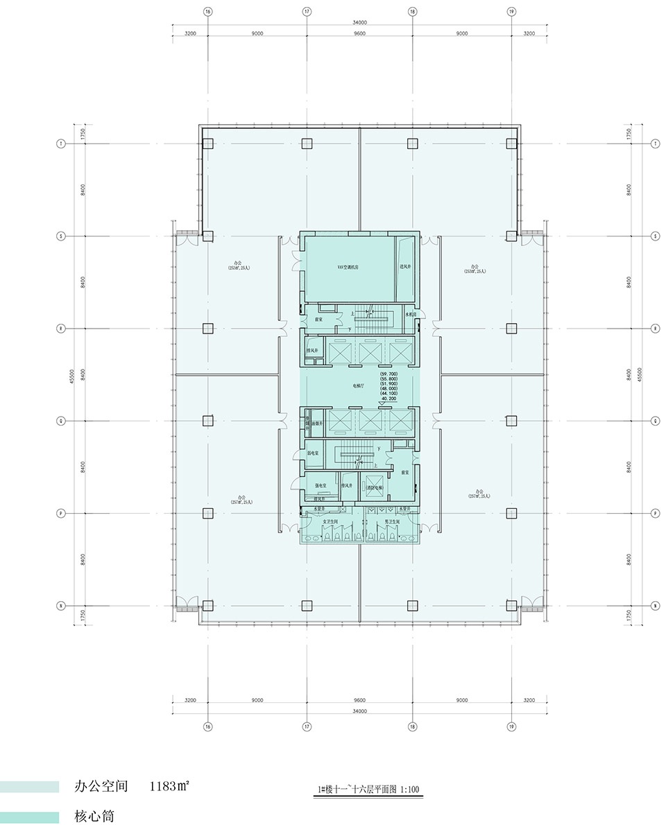
▼1号楼十一~十六层平面图,Tower 1 11f ~16f plan

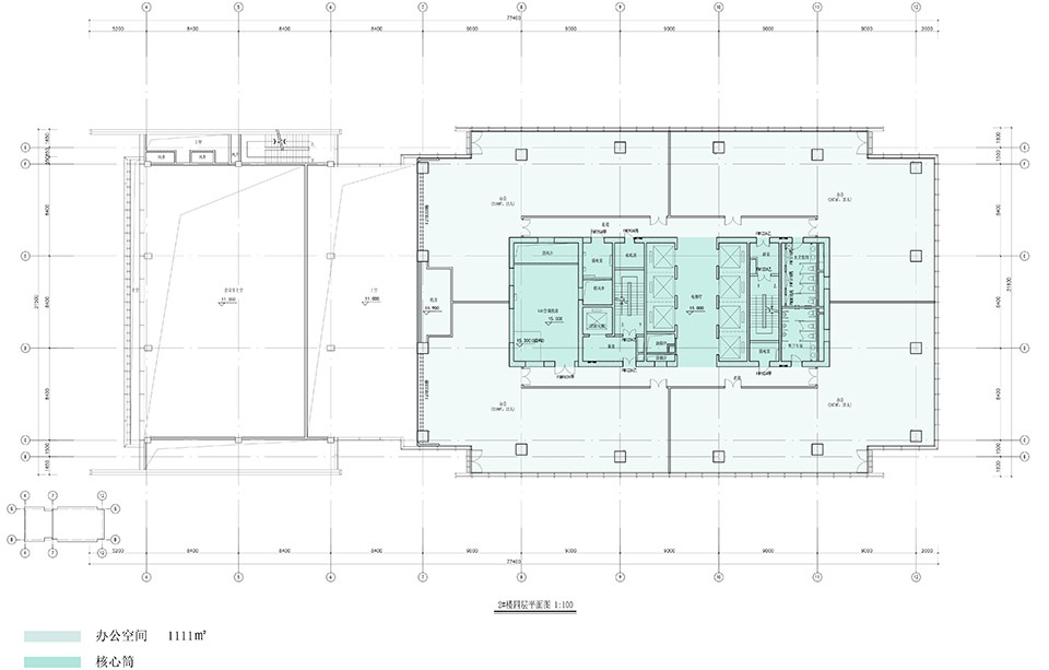
▼2号楼四层平面图,Tower 2 fourth floor plan

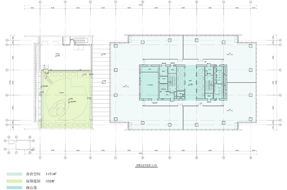
▼2号楼五层平面图,Tower 2 fifth floor plan

▼2号楼七~十层平面图,Tower 2 7f~11f plan

▼立面图,elevation

Project name:XIAOYUN RAOD 33
Project type:Office Building;Commercial Architecture;High-rise
Design:VAAS Architects Co., Ltd.
Website: https://vaasarchitects.com/zh/
Contact e-mail: info@vaasarchitects.com
Design year:2011
Completion Year:2022
Leader designer & Team:Architecture: ZhengLian; YueLi; Shuzhi Wu; Xiang Shen; Xiaoke Huang; Xin Shi; Jingwei Zeng; Yaohui Zhang ; Structure: Kejun Li; Bao Lu; Wentu Lu; Plumbing: Daping Yu; Hui Li; Jianliang Ye; Wei Tao; Tong Wu ; Electricity: Jing Yu; Weijie Chen
Project location:No.33 Xiaoyun Road, Maizidian Street, Chaoyang District, Beijing, China
Gross built area: about96300㎡
Photo credit: Shengliang Su、VAAS
Partner:CHINA INTERNATIONAL ENGINEERING DESIGN & CONSULT CO.,LTD
Clients:CHINA INVESTRMENT CORPORATION; VANKE
Materials:Metal Glass














