洞头伴度假酒店,温州 / FAX architects
背景与区位 Context & Location
洞头享有“百岛之县”“东海明珠”的美誉,是全国首个以区域命名的国家AAAA级旅游景区。项目选址于洞头北岙南翼的半山自然村,与隔海相望的大瞿岛景区共同构成山海交融的独特景观。
Dongtou, acclaimed as the “County of a Hundred Islands” and the “Pearl of the East China Sea,” is China’s first regional National AAAA-level tourist attraction. The project is situated in Banshan Natural Village on the southern foothills of Dongtou’s Bei’ao district. Framed by the mountainous terrain and facing the Daqu Island scenic area across the sea, the site embodies a unique landscape where mountain and ocean converge.
▼西北鸟瞰,Northwest bird’s eye view

▼西侧半鸟瞰,West side bird’s eye view



基地环境与策略 Site Strategy
半山自然村坐落在背山面海的山坡上,传统村落通过梯田式布局与粗犷的虎皮石民居,形成抵御台风的天然屏障。场地东倚山峦、西瞰海湾,上下高差达60余米,既可俯瞰海岸村落的烟火气息,亦可远眺金沙滩的落日余晖,是兼具自然野趣与人文底蕴的理想栖居地。
▼场地原始周边环境,Original site


▼原始场地建筑,Original building


Nestled on a mountainside slope overlooking the sea, Banshan Village utilizes a terraced configuration and rugged *tiger-skin stone* dwellings as a natural defense against typhoons. The site slopes eastward into hills and westward toward the bay, with a dramatic 60-meter elevation change. This vantage offers panoramic views—down to the coastal village’s vibrant life and across to the golden hues of sunset over Jin Beach—creating an ideal habitat blending wild nature and cultural heritage.
▼1号楼西侧鸟瞰, West side bird’s eye view of #1

▼1号楼入口透视,#1 entrance

▼1号楼细部,#1 details


▼2号楼无边泳池,Infinity pool in #2

▼2号楼二层露台,#2 second floor terrace


以“顺势而为”的核心理念,充分尊重原有地形与村落肌理:
功能分区:将靠近城市道路的两栋建筑改造为酒店公区(check-in、咖啡,餐厅,泳池,亲子空间等),其余12栋民宅在原址上重建为独立别墅客房,兼顾公共性与私密性。
交通优化:保留原生高差,将上山小径改造为盘山接驳车道,串联公区与客房,既减少对地形的干预,又提升了入住体验的仪式感。
▼概念手绘草稿,concept drawings

Guided by the core principle of “working with the terrain”, the design rigorously respects the original topography and village fabric:
Functional Zoning: Two structures near the urban road are transformed into the hotel’s public zone (check-in, café, restaurant, swimming pool, family space). The remaining 12 vernacular houses are rebuilt “in situ” as standalone villa guest rooms, balancing communal access and privacy.
Circulation Refinement: Native elevation changes are preserved. Original mountain paths are adapted into a winding shuttle road linking the public zone and villas. This minimizes site intervention while enhancing the ritualistic arrival experience.
▼3号楼南侧透视,South perspective of #3

▼3号楼西北侧透视,Northwest perspective of #3

▼3号楼局部透视,Partial perspective of #3

传统石屋的当代转译 Contemporary Reinterpretation of Vernacular Stone Dwellings
客房建筑以混凝土框架为结构基底,回收原址虎皮石砌筑外墙立面,与屋顶工业质感的铝镁锰板形成材质对话;公区空间融入船舵、潜望镜、船木肌理等海洋元素,通过虎皮石的沧桑感与清水混凝土的静谧交织出“记忆与重生”的空间诗篇。
▼项目模型,model

Guest villas employ a concrete frame structure, clad externally with recycled “tiger-skin stone” from the original site. This raw, textured masonry engages in a material dialogue with the industrially finished aluminum-magnesium-manganese alloy roofs. Public spaces integrate maritime elements—ship wheels, periscopes, weathered ship timber textures—weaving the patina of “tiger-skin stone” with the quiet solidity of fair-faced concrete into a spatial narrative of “Memory and Rebirth.”
▼6号楼东北侧透视,Northeast perspective of #6

▼6号楼南侧透视,South side perspective of #6

▼内部道路望4、5、6号楼,Internal road looking at #4, #5, #6

▼内部道路望6号楼,Internal road looking at #6

▼6号楼细部,#6 details

空间叙事与亮点 Spatial Narrative & Highlights
1号楼·潜望式checkin 前厅:建筑占地只有49平方米的微型综合前厅、不仅能在此办理入住,还可在内部游逛,微展厅与迷你商店的概念植入在不断攀升的空间中,建筑虽小,顶楼向外延申的落地窗犹如矗立在山脚的潜望镜。坐在二层面西的横向扁长转角窗,感受时间大海的流动与永恒。
▼1号楼轴测图,#1 axo

Building 1 · Periscope Check-in: A compact 49 sqm multifunctional lobby houses reception while inviting exploration. Integrating micro-exhibition and boutique retail concepts within its ascending volume, the structure culminates in a top-floor, floor-to-ceiling window projecting like a periscope anchored on the mountainside. Seated beside the elongated west-facing corner window on the second level, one senses the flow and eternity of the ocean of time.
▼7、8号楼西北侧透视,Northwest perspective of #7 & #8

▼内部道路望7、8号楼,Looking at #7 & #8 from inner road


2号楼·复合微剧场:跨出1号楼移步至2号服务楼,首先通过海螺状清水混凝土楼梯盘旋而上,船舵造型的天顶呈现日轨的变化,保留的虎皮石墙面与混凝土墙将山海景观纳入室内,形成视觉焦点。
▼2号楼轴测图,#2 axo

Building 2 · Hybrid Micro-Theater: Moving from Building 1 to the service building, visitors ascend a spiral staircase of fair-faced concrete, shaped like a conch shell. A ship-wheel-inspired skylight traces the sun’s path. Preserved *tiger-skin stone* and concrete walls frame views of mountain and sea, drawing the landscape inward as focal points.
▼9、10号楼西侧透视,West side perspective of #9

▼9、10号楼沿路透视,Road side perspective of #9

▼9、10号楼北侧透视,North side perspective of #9

3-14号楼·悬浮梯田聚落:12栋别墅顺应60米高差,以阶梯状布局错落于山体之上。每栋均设独立入口、私人花园及无边海景视野,实现“垂直栖居”的诗意体验。
▼3号楼轴测图,#3 axo

Buildings 3-14 · Suspended Terraced Cluster: Twelve villas cascade down the 60-meter slope in a stepped formation. Each features a private entrance, secluded garden, and infinity-edge sea views, realizing a poetic experience of “vertical dwelling”.
▼9号楼北侧透视,North side perspective of #9


▼内部道路望9-10号楼,Looking at #9 & #10 from inner road

▼9、10号楼二楼阳台,#9 & #10 belcony at second floor

建筑师的总结与反思 Architect’s Reflection
项目初期由于对海岛微气候以及建筑排水防潮的认知比较片面性,导致运营期间出现墙体渗漏等技术问题,这促使我们重新审视海岛特殊气候环境的复杂性——台风季800-1200mm的短时强降水与夏季持续90%以上的相对湿度,构成了高降水量与高潮气的双重挑战。传统标准化设置的排水檐沟与防潮技术设施在此极端气候条件下表现欠佳,暴露出设计策略适应气候的重要性。
Initial underestimation of the island’s microclimate and inadequate moisture management strategies led to operational issues like wall seepage. This prompted a critical reassessment of Dongtou’s complex climate: typhoon-season deluges (800-1200mm short-term rainfall) combined with sustained summer humidity exceeding 90% present dual challenges of intense precipitation and high humidity levels. Standardized drainage gutters and conventional damp-proofing proved insufficient under these extremes, underscoring the vital need for climate-responsive design strategies.
▼1号楼顶层观景平台,#1 terrace

▼2号楼餐厅,#2 dining space


▼2号楼咖啡吧望露台,#2 coffee bar overlooking the terrace

▼3号楼客房,#3 guest room


▼3号楼客厅,#3 living space

▼4号楼客房,#4 guest room

▼5号楼客房,#5 guest room

这是一个系统的反思,涵盖设计、材料选择、施工工艺、维护管理等多个方面。同时,可能希望强调海岛环境的特殊性,比如台风、高湿度、盐雾腐蚀等因素,这些都需要在设计施工中特别考虑。
This necessitated systemic reconsideration across design, material selection, construction techniques, and maintenance protocols. The unique constraints of island environments—typhoons, salt spray corrosion, pervasive humidity—demand specialized integration from conception through execution.
▼12号楼室内,#12 interior space

▼1号楼二层空间,#1 second floor space

▼1号楼楼梯,#1 stairs

▼1号楼楼梯细部,#1 stairs details

▼2号楼旋转楼梯,#2 spiral staircase


▼12号楼天窗,#12 skylight

▼2号楼露台,#2 terrace


伴酒店的设计实践,本质上是对”何为当代乡土建筑”的一次探索和尝试。它拒绝符号化的仿古姿态,而是让传统营建智慧与当代技术在理性碰撞中达成和解,最终创造出既扎根于本土、又指向未来的建筑尝试。在这里,虎皮石的沧桑质感与清水混凝土的静谧力量共同编织成一首关于时间、记忆与重生的空间诗篇。本次实践也启示我们:当代乡土建筑既要深度解码地域气候的客观存在,又要实现传统营造智慧的现代转译,需通过材料叙事建立空间与场所的精神共鸣,最终在功能性与艺术性之间达成实用平衡。
Ban Hotel’s design is fundamentally an exploration of “contemporary vernacular architecture”. It rejects superficial historical mimicry, instead forging a synthesis between traditional construction wisdom and modern technology through rational dialogue. The result is an architecture deeply rooted in place yet oriented toward the future. Here, the weathered texture of *tiger-skin stone* and the serene presence of fair-faced concrete compose a spatial poem of time, memory, and renewal. This project affirms that contemporary vernacular practice must rigorously decode regional climatic realities while translating traditional intelligence into modern application. It achieves resonance between space and place through material narrative, ultimately finding equilibrium between utility and artistry.
▼总平图,masterplan

▼总剖面图,overall section

▼1#-1f平面图,1#-1f plan

▼1#-2f平面图,1#-2f plan

▼1#-3f平面图,1#-3f plan

▼1#-4f平面图,1#-4f plan

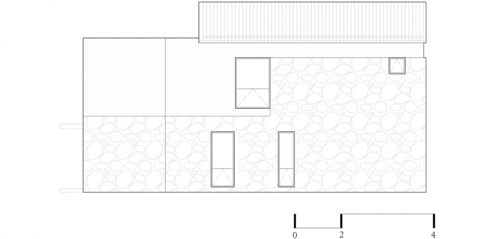
▼1#-立面图,1# elevaion




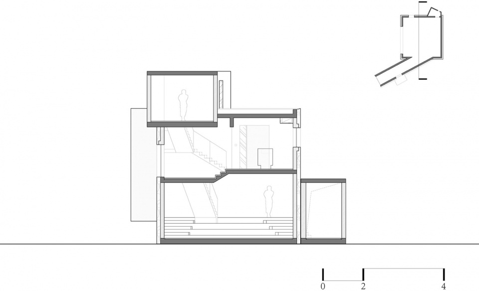
▼1#剖面图,1# section

▼2#-1f平面图,2#-1f plan

▼2#-2f平面图,2#-2f plan

▼2#-立面图,2# elevation




▼3#-1f平面图,3#-1f plan

▼3#-2f平面图,3#-2f plan

▼3#-立面图,3# elevation



Project name:Dongtou Banhouse Hotel
Project type:Architecture&Interior
Design:FAX architects
Website:www.f-a-x.cn
Contact e-mail:1213612737@qq.com
Design year:2018
Completion Year:2021
Leader designer & Team:Fang chenguang Tao Wenshi Lv Cunyu Lin Fangrong Lin Xuerang Tao Yun Gu Chengdu
Project location:Dongtou,Wenzhou
Gross built area: 4300㎡
Photo credit: Mo Fei Photography
Partner:LND(Housekeeping Interior Design)
Clients:Wenzhou Deshan Dormitory Management Co., Ltd.
Materials:Fair-faced Concrete Aluminum-magnesium-manganese sheet aluminium sheet














