马海村文化馆,桂林 / 九七华夏Ÿ此间工作室+南大建筑间架工作室
环境Environment
“马海村综合文化馆”项目位于广西桂林龙胜各族自治县马海村田寨组,该村为壮族聚居地,至今保留着以梯田为代表的原生态稻作农业景观和干栏式木构民居聚落。项目场地原为村小学校址,2013年校舍被改建为一座公共服务建筑,该建筑建造质量较差,空间、结构均不适用,村集体决定将其落架搬迁至别处重建。在友成基金会资助下,拟在原址规划建设一座包含阅览、集会、观演、展示和休闲等功能的综合文化建筑,既弥补该村相关文化设施的缺失,又能为来访的游客提供服务,并以此作为马海村复兴计划的重要启动项目。
The “Mahai Village Comprehensive Cultural Center” project is located in Tianzhai Group, Mahai Village, Longsheng Autonomous County, Guilin, Guangxi. This village is a settlement predominantly inhabited by the Zhuang ethnic group and still retains the original ecological rice-farming landscape represented by terraced fields and the stilted wooden residential settlements. The project site was originally the location of the village primary school. In 2013, the school building was renovated into a public service building. However, the construction quality of this building was poor, and its space and structure were not suitable for use. The village collective decided to dismantle it and relocate it elsewhere for reconstruction. With the support of the China Social Entrepreneur Foundation, it is planned to construct a comprehensive cultural building on the original site, which will include functions such as reading, gathering, performance, displaying, and leisure. This building will not only make up for the lack of cultural facilities in the village but also provide services for visiting tourists. It will also serve as an important starting project for the revitalization plan of Mahai Village.
▼马海村俯视,Top view of Mahai Village

由于原小学校的公共属性,与村中大部分民居选址于地势相对较低处不同,该基地位于地势较高的山脊端部,面临山谷。在此修建房屋,凸显于原有聚落的外围,会对聚落的整体形态和风貌产生较大影响。我们认为采取与当地民居相近的体量和建构逻辑,有利于新建建筑融入聚落整体形态。由此,将基于当地民居既有“类型”发展出具有公共属性的新型“变体”,作为本项目的主要设计策略。
Due to the public nature of the original primary school, unlike most of the residential buildings in the village which are located in relatively lower areas, this site is situated at the end of a ridge with a higher terrain, facing a valley. Constructing a building here, which protrudes from the periphery of the existing settlement, will have a significant impact on the overall morphology and appearance of the settlement. We believe that adopting a volume and constructional logic similar to that of the local residential buildings will help the new building blend into the overall morphology of the settlement. Therefore, developing a new type of “variation” with public attributes based on the existing “typology” of local residential buildings will be the main design strategy for this project.
▼田寨西南侧鸟瞰,Aerial view from the southwest of Tianzhai

构架Framework
当地民居的木构架遵循中国传统土木营造的“间架”体系,即一种与身体尺度密切相关的构架单元及其组合规律。同时,其进深方向的高度变化规律决定了屋面的形态特征。
The wooden framework of local residences follows the traditional Chinese timber construction system known as “Jian-Jia,” which is a framework unit closely related to human scale and its combination rules. Meanwhile, the height variation pattern in the depth direction determines the morphological characteristics of the roof.
▼从寨口处看文化馆,View from the entrance of Tianzhai

本次新建建筑的结构构架符合当地民居的“间架”规律,包括相近的“开间”和“步架”单元的尺度(1开间=2.4m,1步架=1.2m)和数量,相近的檐口高度和楼层高度,以及由此形成的相近尺度的单体体量;并且,由同一举折规律,而形成近似的屋面曲线。从而,由“间架”的建构,获得建筑外部尺度、形态与聚落整体的协调。
The structural framework of the newly constructed building complies with the local residential “Jian-Jia” rules, including similar scales of “Kaijian (bay)” (1 bay = 2.4 m) and “Bujia (horizontal spacing between purlins)” (1 bujia = 1.2 m) units, as well as their quantities, similar eaves height and floor height, and the resulting similar individual building volumes. Moreover, the same “Juzhe” rule forms an approximate roof curve. Thus, through the construction of “Jian-Jia,” the external scale and form of the building are coordinated with the overall settlement.
▼聚落中的文化馆,The cultural center in the settlement

在建筑内部,由“开间”、“步架”决定了平面柱间距离的模数,再结合楼层高度、开窗方式和空间构成关系,使得身处其中的身体感受可与在当地民居中相类比。
Inside the building, the “Kaijian” and “Bujia” determine the modular distance between columns in the plan. Combined with floor height, window opening pattern, and spatial composition, the physical experience within the building can be analogous to that in local residences.
▼从西南侧俯瞰文化馆,Aerial view from the southwest

由于当地村民对“间架”的熟悉,他们能够很快理解和大致接受建筑设计方案。基于这一共同语言,建筑师也能与他们就方案的调整进行有效讨论。在施工过程中,当地大木工匠能够在不完全读懂施工图的情况下,凭借对“间架”的认知,理解构架逻辑,以现代工业化材料实施建造。
Due to the local villagers’ familiarity with “Jian-Jia,” they can easily understand and generally accept the architectural design proposal. Based on this common language, architects can also effectively discuss adjustments to the proposal with them. During the construction process, local carpenters, without fully understanding the construction drawings, can rely on their knowledge of “Jian-Jia” to grasp the framework logic and implement construction using modern industrial materials.
▼从西北角台地下仰视,Looking up from the northwest corner

建筑构架面阔8开间,中缝南侧4开间的三层进深10步架,二层、底层逐层内收0.5步架。中缝北侧4开间在此基础上向西延伸出4步架。南、北两部分不同的“间架”配置,为相应的公共性和行为创造了条件。该构架在朝向聚落的南侧,二、三层山面分别出挑与檐面相等的0.5、1步架,以支撑歇山批檐,并在东南、西南角形成转角构架。建筑北侧山面为悬山,仅从构架主体出挑批檐。
The building framework has a total width of 8 bays. The southern 4 bays of the central axis have a depth of 10 bujias in the third floor, with each floor (second and first) being stepped back by 0.5 bujias. The northern 4 bays of the central axis extend 4 bujias to the west based on this. The different “Jian-Jia” configurations of the southern and northern parts create conditions for the corresponding publicness and activities. On the southern side facing the settlement, the second and third floors project outwards by 0.5 bujias and 1 bujia, respectively, equal to the eastern and western sides, to support the “Xieshan” roof overhang, and form corner frameworks at the southeast and southwest corners. The northern gable of the building is a “Xuanshan” roof, with only the main framework projecting the overhang.
▼东立面,East elevation

建筑构架主体部分,共3层,面阔8开间,进深8步架,为钢结构;构架其余部分为工业集成竹结构。
The main part of the building framework (3 stories, 8 bays, 8 bujias) is made of steel; the remaining parts of the framework are bamboo glulam structures.
▼从聚落内部看文化馆,View from the settlement

▼南立面,South elevation

空间构成Spatial Composition
前、后的二分|Front and back division
应对公共建筑人流疏散的要求,建筑内部设置两部楼梯。结合阅览、展示等功能,将垂直贯穿楼层的通高书架/展架与楼梯整合设置。作为室内唯一的空间划分要素,两部并置的楼梯将平面平行于屋脊方向划分。这一空间划分,结合建筑在环境中所处的位置,赋予了建筑前、后的方向性。这与当地民居“前堂后室”的空间划分相对应,符合当地人对空间公共/私密的方位感知习惯。
▼行为/活动,Behavior/activities

To meet the requirements for crowd evacuation in public buildings, two staircases are installed inside the building. Integrating functions such as reading and display, the full-height bookshelves/display-racks that penetrate vertically through the floors are combined with the staircases. As the only spatial division element inside the building, the two adjacent staircases divide the plan parallel to the ridge of the roof. This spatial division, combined with the building’s location in the environment, endows the building with a front and back orientation. This corresponds to the local residential spatial division of “front hall and back room,” which aligns with the local people’s perception of spatial public/private orientation.
▼楼梯/书架前空间被连续屋面覆盖,Spaces under a continuous covering

▼楼梯/书架前空间被连续屋面覆盖,Spaces under a continuous covering

由于楼梯位置相对于屋脊偏东,楼梯东侧部分进深较小,背倚高地,视线局限于较近的连续山体;楼梯西侧部分进深较大,俯瞰山谷,视野开阔,与村落联系直接,适合聚集性公共活动。由此,形成了居“前”、靠“后”(西、东)两种不同的空间氛围。
Since the staircases are located to the east of the ridge, the eastern part of the staircase has a smaller depth, backed by higher terrace, with a limited view of the nearby continuous mountain range; the western part of the staircase has a larger depth, overlooking the valley, with an open view and a direct connection to the village, making it suitable for gathering and public activities. Thus, two different spatial atmospheres are formed: one that is “in front” and the other that is “at the back” (west and east).
▼底层东西向通道,The east-west passage on the ground floor

左、右的二分|Left and right division
基于建筑正面朝向的确立,左、右(南、北)两侧各4开间亦呈二分。其中左侧4开间进深10步架,右侧4开间进深14步架。建筑底层由“前”广场通往“后”山的通道,以及由此带来建筑平面西侧的凹口,再次强调了左、右二分。
Based on the establishment of the building’s front orientation, the left and right (south and north) sides, each with 4 bays, are also divided into two parts. The left 4 bays have a depth of 10 bujias, while the right 4 bays have a depth of 14 bujias. The ground floor of the building features a passage from the “front” square to the “back” mountain, as well as the resulting indentation on the western side of the building’s plan, which further emphasizes the left-right division.
▼北立面,North elevation

▼“大台阶”作为地形的延续,The “grand steps” as an extension of the terrain

底层的“左-前”空间架空,形成与前广场连续的公共空间。底层与二层的“右-前”空间合并为“大台阶”,强调了地形的连续感。二层与三层的“左-前”空间合并为垂直方向的通高空间。三层的“右-前”空间,强调了在室内感受到与“大台阶”空间在同一屋面覆盖下的连续感。上述几个居“前”的空间在视线上互通。
The “left-front” space on the ground floor is opened, forming a continuous public space with the front square. The “right-front” space on the ground and second floors is combined into a “grand steps,” emphasizing the continuity of the terrain. The “left-front” space on the second and third floors is merged into a full-height vertical space. The “right-front” space on the third floor emphasizes the sense of continuity under the same roof covering as the “grand steps” space. The aforementioned spaces in the “front” part are visually interconnected.
▼楼梯/书架前空间关系,Spatial relationships in front of the staircase/bookshelf

▼“大台阶”及檐下公共空间,The “grand steps” and the public space under the eave

▼从咖啡吧台区域看“大台阶”,View of the “grand steps” from the bar

▼檐下公共空间与广场及聚落的关系,
The public space under the eave, the plaza, and the settlement

由于建筑左、右两部分步架数不同,右侧4开间向前伸出4步架并挑檐,建筑总体平面呈L形,围合出前广场,迎接来自聚落的人流,并提供了稀缺的公共活动场地。
Due to the different number of bujias in the left and right parts of the building, the right 4 bays extend forward by 4 bujias with an overhanging eave. The overall plan of the building is L-shaped, enclosing the front square to welcome people from the settlement and providing a public activity space.
▼从底层架空空间看广场,View from the open space on the ground floor

▼底层架空公共空间,The public space on the ground floor

▼楼梯/书架前空间,Space in front of the staircase/bookshelf

▼楼梯/书架后空间,Space behind the staircase/bookshelf

▼楼梯/书架前空间关系,
Spatial relationships in front of the staircase/bookshelf

▼楼梯/书架内,In the staircase/bookshelf

小断面工业化竹材的结构性应用Structural Application of Small-Section Industrialized Bamboo
我国是竹林资源极其丰富,而木材资源相对短缺的国家,竹林面积和竹材产量均居世界首位。建筑业作为社会支柱产业之一,持续快速发展的同时,消耗着大量资源,同时产生大量废弃物。竹材作为一种可再生、可降解的有机材料,其成材周期远短于木材,扩展其在建筑领域的应用意义重大。
▼构架示意,Framework diagram

China is a country with extremely abundant bamboo forest resources and relatively scarce timber resources, ranking first in the world in both bamboo forest area and bamboo production. As one of the pillar industries of society, the construction industry continues to develop rapidly while consuming a large amount of resources and generating a significant amount of waste. Bamboo, as a renewable and biodegradable organic material, has a much shorter maturation cycle than timber. Expanding its application in the construction field is of great significance.
▼施工中的构架,The framework under construction

目前,我国工业化竹材的生产、研究处于世界先进水平。工业化竹材是以原竹为原料,将原竹分解成小尺度的竹材料单元,再经过一系列加工整合而成的新型竹质复合工程材料。相较原竹,工业化竹材保留了竹材料良好的物理及力学性能,并具有形态规则、性能稳定、强度提高和耐久性好等优势,使其作为常规建筑结构材料成为可能。
At present, China’s production and research of industrialized bamboo are at an advanced level in the world. Industrialized bamboo is a new type of bamboo composite engineering material made from raw bamboo, which is decomposed into small-scale bamboo material units and then processed and integrated through a series of procedures. Compared with raw bamboo, industrialized bamboo retains the good physical and mechanical properties of bamboo materials and has the advantages of regular shape, stable performance, increased strength, and better durability, making it possible to use as a conventional building structural material.
▼从转角看“间架”关系的延续,The continuity of the “Jian-Jia” relationship

本项目结构材部分采用小断面(60mmÍ60mm/160mmÍ40mm)工业集成竹材。小断面轻型构件便于生产、运输和施工,可缩短生产和施工周期,减少对现场环境的扰动,降低建设过程中的碳排放。马海村所在地域竹林资源丰富,但缺乏相关产业加以大规模利用,传统竹产品产、销量低。工业化竹材作为建筑结构材应用在马海村的成功尝试,为当地竹材资源利用的现代化转型提供了思路和样板。
A part of the structural materials of this project use small-section (60mm×60mm/160mm×40mm) industrialized bamboo glulam. The small-section lightweight components facilitate production, transportation, and construction, shorten production and construction cycles, reduce on-site environmental disturbance, and cut carbon emissions throughout the entire construction process. The region where Mahai Village is located has abundant bamboo forest resources but lacks relevant industries for large-scale utilization, with traditional bamboo products having low production and sales volumes. The successful application of industrialized bamboo as a building structural material in Mahai Village provides ideas and models for the modern transformation of local bamboo resource utilization.
▼工业竹构件施工,Construction of industrialized bamboo components


基于空间构成的被动式环境调控策略Passive Environmental Control Strategies Based on Spatial Composition
该建筑室内不采用空调系统。本案采取类似当地民居的半封闭围护界面,将建筑视为与外部环境连续的可调节环境。夏季,屋面挑檐和建筑体量的层层出挑形成了遮阳,“大台阶”开口、架空层、遍布立面的开启扇和室内贯通空间提供了良好的通风。冬季,通过临时隔离“大台阶”空间并关闭开启扇,可在建筑南侧获得相对封闭的日照充分的空间。
The building does not use an air conditioning system. This project adopts a semi-enclosed envelope similar to that of local residences, treating the building as a continuously adjustable environment in relation to the external environment. In summer, the eaves of the roof and the step-back building mass provide shade. The openings of the “grand steps,” the elevated floor, the windows distributed across the façade, and the full-height vertical space offer good ventilation. In winter, by temporarily isolating the “grand steps” space and closing the windows, a relatively enclosed and sunlit space can be obtained on the south side of the building.
▼聚落中的文化馆,The cultural center in the settlement

在中国传统语境中,“间架”既是一套社会规则、制度,又具有极强的地域适应性、灵活性和可变性。在乡村复兴背景中,我们并不将“间架”视为一个完结的结构体,而是正在变化中的乡村环境的一部分,它将处于与社会持续的互动中。
In the traditional Chinese context, “Jian-Jia” is both a set of social rules and institutions, and it also has strong regional adaptability, flexibility, and variability. In the context of rural revitalization, we do not regard “Jian-Jia” as a finished structural object, but rather as a part of the changing rural environment, which will continue to interact with society.
▼从西北侧山谷仰望田寨,Looking up from the valley

▼总平面图,Masterplan

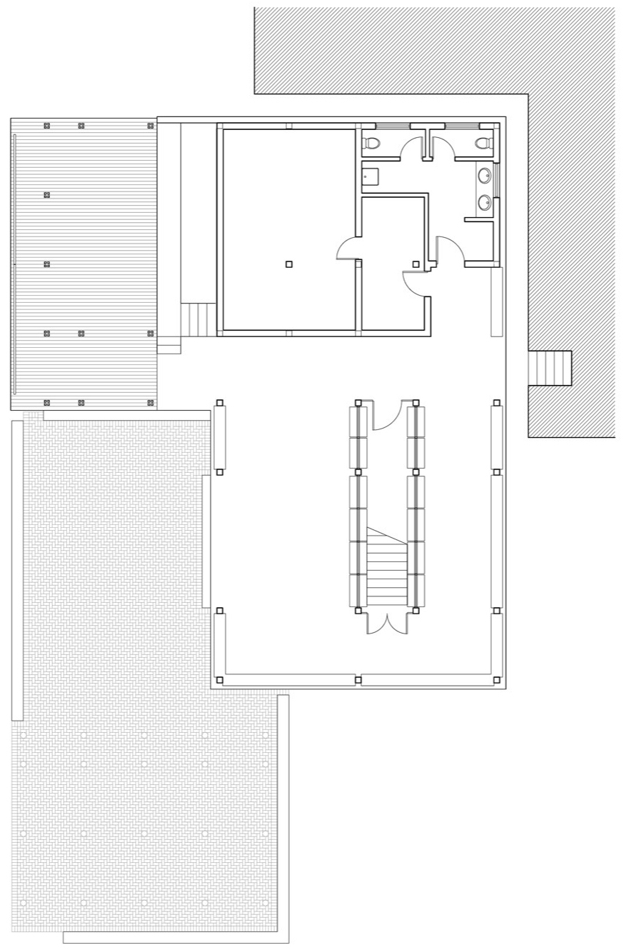
▼一层平面图,First floor plan

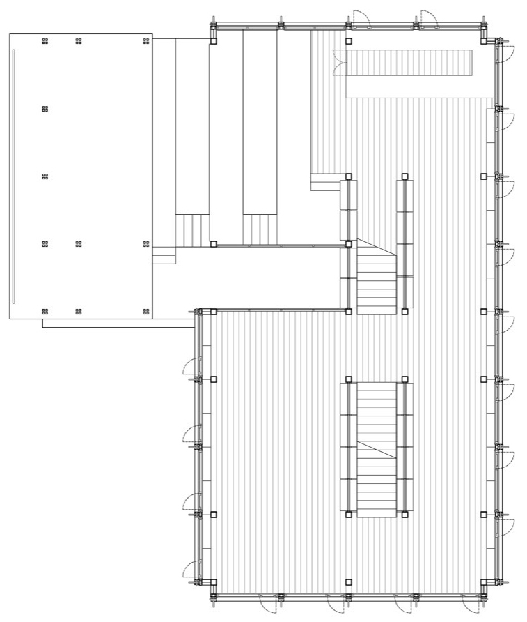
▼二层平面图,Second floor plan

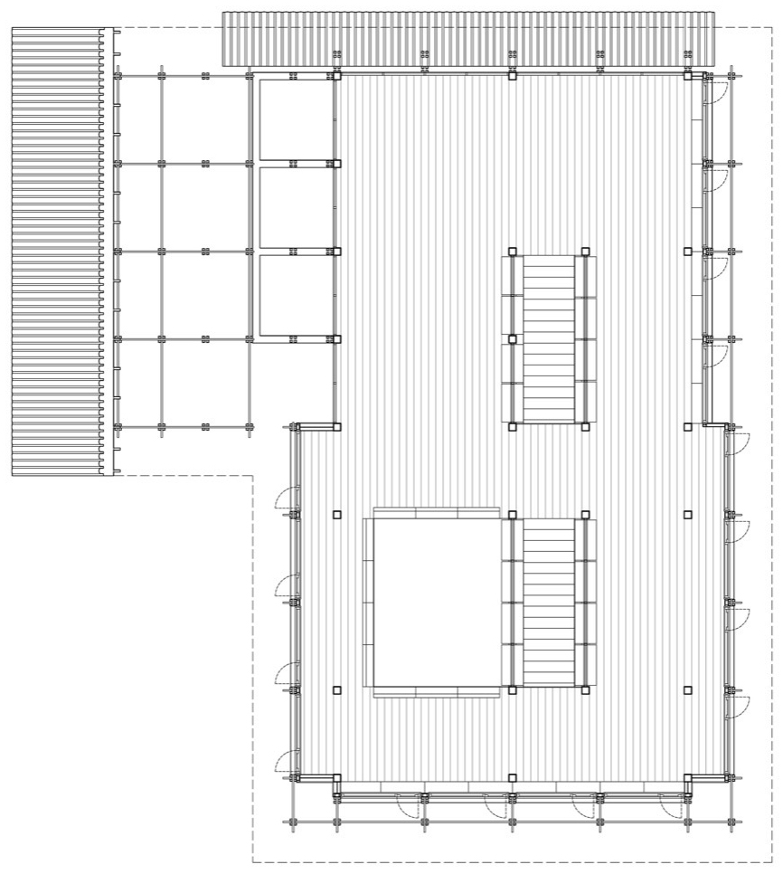
▼三层平面图,Third floor plan

▼横剖面图,Transversal section

▼横剖面图,Transversal section

▼纵剖面图,Longitudinal section

▼南立面图,South elevation

▼北立面图,North elevation

▼西立面图,West elevation

▼东立面图,East elevation

本项目设计研究以南大建筑赵辰工作室在相关领域的长期研究、实践为基础
参考文献:
[1]赵潇欣.基于“间架”的中国传统木构架原型及其发展规律研究[D].南京大学,2015.
[2]张备.工业竹材作为建筑结构材料应用的初探[D].南京大学,2014.
[3]周剑晖.工业化竹材的体系化建筑设计研究初探[D].南京大学,2019.
[4]高祥震.以轻型木构框架为参照体系的工业化竹材框架结构节点的设计研究[D].南京大学,2020.
[5]曹超.工业竹与钢混合框架结构体系及其节点优化设计研究[D].南京大学,2024.
The design research for this project is based on the long-term research and practice of Atelier Zhao Chen at Nanjing University in the relevant fields.
References:
[1] Zhao Xiaoxin. A Study on the Development Process of the Prototype of the Traditional Chinese Wooden Framework on the Basis of “Jian Jia” [D]. Nanjing University, 2015.
[2] Zhang Bei. Application Research on Industrialized Bamboo Lumber as the Building Structural Material [D]. Nanjing University, 2014.
[3] Zhou Jianhui. The Primary Study on Systematic Architectural Design of Industrialized Bamboo [D]. Nanjing University, 2019.
[4] Gao Xiangzhen. Design Study of the Joints in Industrialized Bamboo Frame Based upon the Light Timber Frame System [D]. Nanjing University, 2020.
[5] Cao Chao. Design Research on the Hybrid Frame Structure System of Industrialized Bamboo with Steel as well as its Joint [D]. Nanjing University, 2024.
项目基本信息
Project name: Mahai Village Comprehensive Cultural Center
Project type: architecture
Location: Tianzhai Group, Mahai Village, Longji Town, Longsheng Autonomous County, Guilin City, Guangxi Zhuang Autonomous Region
Status: built
Design period: September 2022 – March 2023
Construction period: April 2023 – October 2023
Site area: 473m2
Gross floor area: 520m2
Client: China Social Entrepreneur Foundation
Cost: ¥2,300,000
Design:
C.J.Studio, 97HUA Cultural & Tourism Group
Atelier Jian-Jia, Institute of Architecture Design and Planning Co., Ltd, Nanjing University
Lead architects: Yang Kan, Liu Xingang
Full list of design & technical teams:
Architectural detailed design: Liu Xingang, Yang Kan, Wang Guanyu, Mao Yanyan, Wang Yao
Interior design: Liu Xingang, Zhang Chang, Zhou Zunyao
Structural engineering: Li Liang
Lighting design: Tang Qiubao, Thinker (Beijing) International Lighting Design Co., Ltd
Electrical engineering: Yuan Huayong
HVAC engineering: Zhang Fuchen
Water supply and drainage engineering: Ren Shaobo
On-site designers: Cao Chao, Miao Yingying
Wooden structure construction: Lan Shunfa’s team
Photographer: Hou Bowen














