Ballard园区制冰厂改造,印度 / Malik Architecture
Ambico制冰厂已有140年历史,位于孟买历史文化核心地段的Ballard Estate(巴拉德园区)内。我们将其重新构想为IF.BE(Ice Factory Ballard Estate),一个融合艺术、展览、活动、表演、聚会、餐饮与设计的有机空间。本质上,它是一个供人相遇与交流的场所,围绕一棵古老的榕树展开,被一组美丽却已老化的建筑所环绕。
The 140-year-old Ambico Ice Factory is located in Ballard estate, the heart of Mumbai’s heritage precinct. We have re-imagined the space as IF.BE (Ice Factory Ballard Estate), an organism that merges art/exhibition/events/performance/gathering/food and design. Essentially it is a space for encounter, organized within beautiful but ageing structures surrounding a large Banyan tree.
▼改造后制冰厂,the Ice Factory after renovation


▼围绕一棵古老的榕树展开,surrounding a large Banyan tree


长期以来的时间侵蚀、随意添加的结构,以及不对称的结构与设施负荷,导致了不同程度的破损与衰败。通过耐心而细致的勘查,这些问题逐步显现。历史图纸资料显示,原本的建筑围合出一个连续的庭院,但如今已被临时结构与金属屋顶所填塞。
▼轴测爆炸图,exploded axonometric

Time, arbitrary additions, asymmetric structural and infrastructural loading had caused a level of damage and decay that was revealed through a patient and assiduous examination. The drawing archives revealed a continuous courtyard, which was now cluttered with ad-hoc structures and metal roofs.
▼连续的庭院,a continuous courtyard



▼修复后的屋顶,the roof after renovation


▼最初的砖墙轮廓显现,the first semblance of brickwork could emerge


▼重构制冰厂的建筑逻辑,reconstructing the architectural logic of the ice factory

▼重构制冰厂的建筑逻辑,reconstructing the architectural logic of the ice factory

我们花了四个月的时间,轻柔地剥除厂房上几十年历史的粉刷层,直到最初的砖墙轮廓显现。建筑中使用的珍贵缅甸柚木构件,也在修复过程中逐渐重见天日。制冰厂、变电站、冷库与制冰区均需经过细致的检查和“外科手术式”的修缮介入,通过加固手段稳固坍塌的墙体、下垂的屋顶与桁架结构。最终,我们拼接起一幅由材料碎片与尺寸信息组成的“手稿”,以此重构制冰厂的空间语言与建筑逻辑。
For four months, the factory’s decades-old plaster walls were gently scraped before the first semblance of brickwork could emerge. The building’s vintage Burma teak woodwork, lost to time, was slowly uncovered. The Ice Factory, sub-station, cold storage and the ice-cubing area required intensive examination and surgical intervention through retrofits to stabilize crumbling walls, sagging roofs and trusses. Eventually, a palimpsest of small material fragments and measurements were pieced together to understand the Ice Factory’s spatial vocabulary.
▼改造过程,renovation progress


▼改造策略,renovation strategy


IF.BE 被视为一颗“种子”,在这个以商业为主的历史街区中播下城市更新的可能。整合与缝合的过程,旨在强化那种微妙而脆弱的关系——介于“被发现之物”与“重新创造之物”之间。
IF.BE is a “seed” for urban regeneration in a largely commercial heritage precinct. The suturing is imagined to heighten the fragile, almost tenuous relationship between the ‘Found’ and the ‘Made’.
▼周围环境,context

▼改造策略,renovation strategy

▼一层平面图,ground floor plan

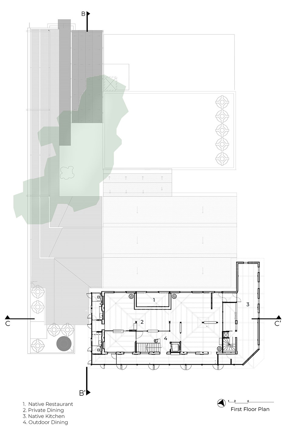
▼二层平面图,first floor plan

▼剖透视,perspective section

Project size: 1000 m2
Site size: 1040 m2
Completion date: 2022
Building levels: 2
Credits: Malik Architecture
Principal architect: Kamal Malik Arjun Malik
Photographer: Bharath Ramamrutham














