南枝·新中式糖水,南通 / 向生设计事务所
南枝,一家以中式糖水为核心的东方品牌,将传统糖水文化与现代生活方式相结合,让食客在品尝甜品的同时 感受到自然、质朴与初心的回归,在都市生活中,寻求一方宁静的心灵归处,以质朴纯真的初心打造糖水空间。
Nanzhi, an Eastern brand centered on Chinese sweet soups, merges traditional dessert culture with modern living. It allows diners to feel a return to nature, simplicity, and true intentions while savoring sweets. Amidst urban life, it offers a tranquil spiritual haven, crafting a dessert space guided by this genuine simplicity.
▼项目实景,Project scene

一步一景,步步惊喜A Scene at Every Turn, a Delight at Every Step.
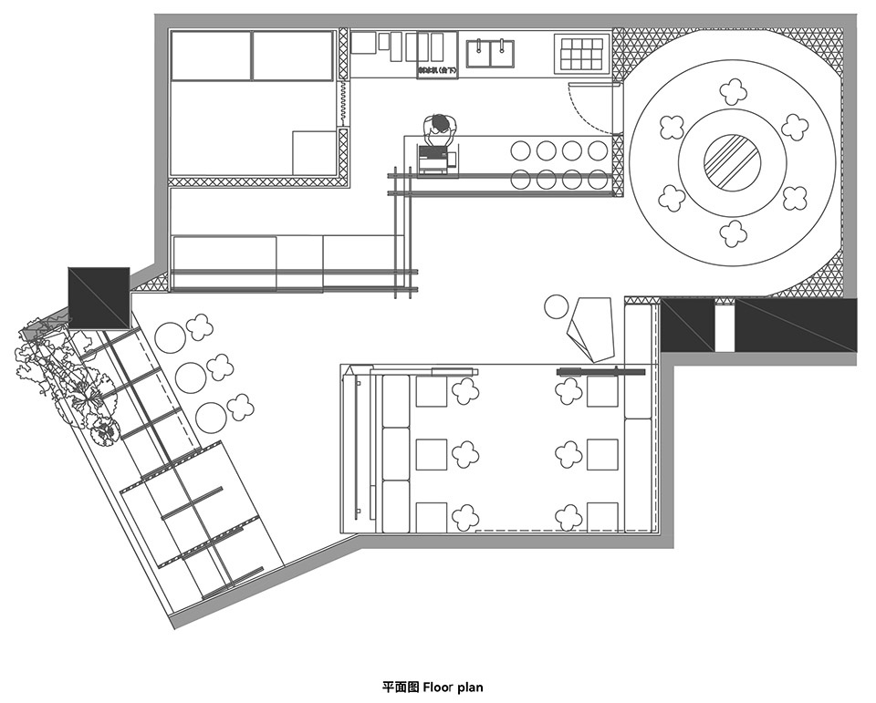
从空间规划来看,平面动线上借鉴苏式园林翠玲珑布局,让店内动线呈三折形态,使顾客在店内行走时,视觉上产生丰富的层次变化,随着步伐推进,空间的不同区域依次呈现,层层递进。通过巧妙的布局,原本有限的空间得以在视觉上放大,仿佛不断往纵深延展,丰富了顾客的空间体验,也为整个店铺增添了探索的乐趣。
▼俯视剖面图,Top view section drawing

From a spatial planning perspective, the layout draws inspiration from the “Cui Linglong” (Jadeite Pavilion) of Suzhou-style gardens. This creates a triple-fold pathway inside the shop. As customers walk through, their visual experience gains rich layers of variation. With each step, distinct areas of the space unfold progressively. Through this clever layout, the originally limited space appears visually expanded, seeming to stretch continuously deeper, enriching the spatial experience and adding an element of discovery to the shop.
▼门头,Storefront

▼门头,Storefront

在设计手法上,有植入苏式元素,力求将江南韵味融入每一处细节,廊下、石景、游园、灯笼… 在品牌气质的提炼上,让其成为一家精致温婉的江南疗愈糖水铺。
Design-wise, elements of Jiangnan style are thoughtfully integrated. We strive to infuse this subtle charm into every detail: covered corridors, rock gardens, garden strolls, lanterns… In distilling the brand essence, it evolves into a refined and graceful Jiangnan-style healing parlor for sweet soups.
▼自然造景,Natural landscaping

植物、粗石、矮脚凳、屏风,尽显江南小调的独特气质。
Plants, rough-cut stones, low stools, partition screens– each reveals the unique character of Jiangnan’s delicate aesthetic.
▼入户空间,Entrance

曲径通幽处,动线辗转可见,光线柔和温暖,让客人不自觉的想进一步游览体验。
Where paths wind towards tranquil spots, where the journey twists and reveals, bathed in soft, warm light that instinctively beckons guests to explore further.
▼曲径通幽处,Where paths wind towards tranquil spots



排排灯笼,犹如新春游园盛会。
Rows of lanterns hang like those at a festive New Year garden gathering.
▼排排灯笼,Rows of lanterns


穿行游览,抵达“园林”深处,圆桌端正,四五好友可共同乘凉,饮水,相聚。
Walking and exploring lead to the heart of this “garden”. Here, a round table sits poised, inviting four or five friends to cool off, enjoy drinks, and gather together.
▼靠窗就座区,The seating by the window

▼物料展台,Material exhibition stand

▼就座区,Seating area


▼植物造景,Plant landscaping

▼园亭,Garden Pavilion

▼吧台,Bar

▼平面图,Floor plan

Project Name:Nanzhi
Project Type:Dining space/retail space
Design Company:Reborn Design
Leader Design:Yang Fanfan
Design Team:Huang Shiyi
Year Finished:2025.01
Project Address:203, 2nd Floor, Wanda Plaza, North Street, Chongchuan District, Nantong City, Jiangsu Province, China
Project Area:80㎡
Main Material:Artistic paint, rust red steel plate, black stone, antique brick, handcrafted brick, linen fabric
Photography:Zhou Ziyi
Video:Ran Lijing
Photo & Video Copyright:©Zhou Ziyi|©Ran Lijing
Design Drawings Copyright:©Reborn Design
Company Website:http://www.reborndesign.cn/
Contact Email:xiangsheng_0514@163.com














