胖妹面庄中关村大融城店,北京 / 空间站建筑师事务所
每一个来到胖妹面庄的顾客都会有两个强烈的感受:一是一碗热辣“够劲”的重庆小面,另一个则是“浓眉大眼”的平面和空间设计带来的品牌印象。
Every customer entering a store of the Pang Mei Noodles chain will likely be attracted by the mighty presence of steaming hot and spicy Chongqing noodles, coupled with a distinct brand style resulting from a bold and playfully flamboyant approach to graphic and spatial design.
▼大融城内部门头,storefront inside the mall

▼门头,storefront

▼制作区完全打开,showcase the authenticity of their noodle-making

▼室内概览,overview of the space

胖妹面庄中关村店的设计中我们希望在这两个方面走得更远。为了展示有诚意的制作,我们改造了之前胖妹面庄的制作区与客区的关系,将制作区完全打开,成为“明档”,并把客区置于制作区的包围之中。这样一来,所有制作过程的“烟火气”会直接感染到每一个用餐的顾客。这不仅会增强客人对于食物的信任感,同时也是重庆“直截了当”的饮食文化的体现。
In the design of the Zhongguancun Store of Pang Mei Noodles, we hope to go further in highlighting these aspects. To showcase the authenticity of their noodle-making, we abandoned the layout of production and the dining areas from previous Pang Mei stores, transformed the production area into a “transparent kitchen” with an unobstructed view and placed the dining area around it. In this way dining customers can enjoy the hustle and bustle and the mouth-watering smells coming from the kitchen area. This design not only boosts costumer trust in the product but also reflects rather faithfully the no-fuss, inclusive noodle culture originating in Chongqing.
▼室内概览,overview of the space


▼客区置于制作区的包围之中,
the production area with an unobstructed view and placed the dining area around it


▼设备管线被处理成银色,the equipment pipelines were processed to be silver


▼座位区,seating area


▼由室内看室外,viewing the outdoor from interior

在空间形象表达中,我们尝试用蒙太奇的方式对“重庆小面”的内涵做出表达。直径十公分的钢管是市政栏杆的常用尺寸,这也暗示出空间的公共性。弯曲盘绕的钢管仿佛让顾客置身于一碗面条“内部”的空间。场地中原有的设备管线被处理成银色,与新加入的整齐盘绕的钢管系统形成互文,又似乎让人联想起闪闪发光的管弦乐器……
In the spatial design of this store, we attempted to imaginatively re-create some of the aspects commonly associated with the consumption of “Chongqing noodles”, deploying a sort of “montage” approach. The 10 cm diameter steel pipes we used in the store are the standard for municipal railings found all over China, a hint to the public, outdoor nature of the space. Moreover, the curved and coiled steel pipes seemingly immerse customers into a huge bowl of noodles. Existing equipment pipelines are coated in silver paint, forming an intertextual dialogue with the newly added, neatly coiled steel pipe system, almost evoking shimmering images of brass instruments in an orchestra.
▼室内视角,interior view


▼弯曲盘绕的钢管,the curved and coiled steel pipes


▼细部,details

所有的照明装置都置于管线层之上,紧贴楼板底部安装。这样一来,设备不再是躲藏在阴影中的配角,而成为了站在舞台中心的表演者。
All lighting fixtures are placed above the pipelines layer of the ceiling, installed close to the bottom of the floor slab. This way, the equipment is no longer relegated to a supporting role hiding in the shadows, but becomes a protagonist standing center stage.
▼室外立面,exterior facade


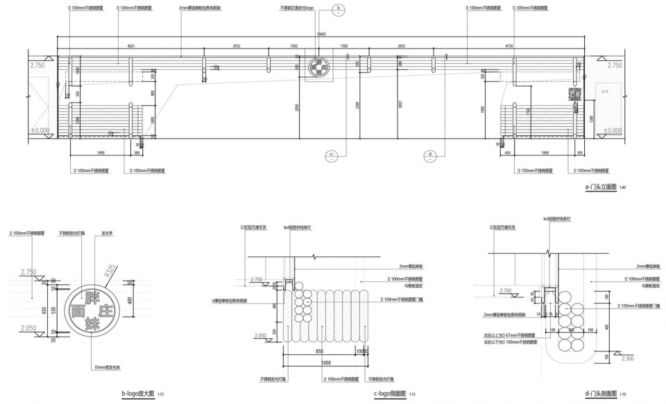
▼平面图,plan

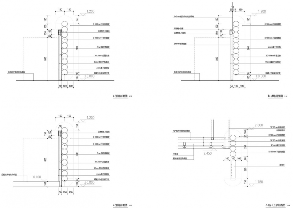
▼细部详图,construction details


Project name: Pang Mei Noodle Shop Beijing Zhongguancun ARTPARK
Design: SpaceStation
Website: http://www.spacestationarchitects.com/
Contact e-mail: contact@spacestationarchitects.com
Design year & Completion Year
Design:November/2024-February/2025
Construction Finished:April/2025
Leader designer & Team
Leader designer: Wang Zheng
Team: Zhou Jimin,Wei Dunxiao, Xu Hui,Yang Jianjing
Project location: Zhongguancun ARTPARK B2 A-LG2-02 , Haidian District, Beijing, China
Gross Built Area (square meters): 166 square meters
Photo credits: SpaceStation
Partners
VI Design:Meat studio
Water Supply and Drainage Engineering:Song Yanbo
HVAC Engineering:Gao Fei
Electrical Engineering:Yan Tianxiong
Totally Construction Management:Yang Dingrong
Manager at Construction Field:Liu Dingshan
Construction Team:Beijing Oriental Shengze Construct Engineering Co. ,Ltd.
Photographer:Jin Weiqi
Clients: Pang Mei Noodle Shop














