西溪·果麦书店,杭州 / 紋建筑
项目位于西溪湿地福堤的北端。原建筑是二十年前的办公楼建筑——U型中轴对称的布局,功能空间组合的错综体量。建筑架空于湿地上,三翼环抱的水院封闭而消极。设计需对其进行外立面改造及室内设计,将其转化为一处书店。
The project is located at the northern starting point of Fudi, Xixi Wetland. The original building was an office building twenty years ago – a U-shaped symmetrical layout with a combination of functional spaces in an intricate volume. The building is elevated above the wetland, with a closed and negative water courtyard surrounded by three wings. The design required a façade renovation and interior design to transform it into a bookstore.
▼西北角航拍,Aerial view from the northwest corner

▼西南角航拍,Aerial view from the southwest corner

一层被规划为环抱水院、水平连通的空间。西侧纵向主空间容纳了书籍展销功能,北翼书吧为咖啡阅读区;南翼为阅读沙龙区,通过室外楼梯与二楼景观露台相联。
The first floor is planned as a horizontally connected space that embraces the water courtyard. The longitudinal main space on the west side houses the book display and sale area, while the north wing serves as a coffee reading area. The south wing accommodates a reading salon, which connects to the landscaped terrace on the second floor via an external staircase.
▼主入口立面,Main entrance façade

▼主立面的西南视角,Southwest view of the main façade

剥离掉所有围护墙体,留下的是一组混沌而无意义的混凝土框架结构。一系列新“结构群”的介入,给原本混沌的结构强行赋以新的秩序,使其转化为与自然深度关联的空间场域。
Stripped of all enclosing walls, what remains is a set of disordered and meaningless concrete frame structures. The intervention of a series of new “structures” imposes a new order to the originally chaotic structure, transforming it into spatial fields which are deeply connected to nature.
▼傍晚时分的书店西立面,West façade of the bookstore at dusk

▼突破建筑边界的木梁群悬吊披檐,The secondary eaves suspended by timber beams that extend beyond the architectural boundary

▼西侧界面的阅读与休憩场所,Reading and resting area along the western interface

原框架的解体Disintegration of the Original Framework
针对原状错综的屋顶梁板,通过引入容纳机电设备的吊顶系统进行梳理,原框架结构被解体为:丛立的柱群,支撑起高低错落的体量。西侧屋顶体量的简化调整,与立面退入的柱廊,将原中轴对称的立面调整为水平向的悬浮体量,从而强化建筑的公共性。主入口平台的既有弧形车道上,铺设了由水泥条构成的错角形人行栈道,将原车行平台转化为尺度多样、方向变换的入口空间。
▼改造前原状,Pre-renovation condition


In response to the original complex roof beams and slabs, a ceiling system accommodating MEP equipment was introduced to reorganize them. The original framework was disintegrated into a forest of standing columns supporting the staggered volumes. The simplified adjustment of the roof volume on the west side, along with the recessed colonnade on the façade, transforms the originally symmetrical central-axis composition into a horizontally floating volume, thereby enhancing the building’s sense of publicness. On the existing curved driveway of the main entrance platform, a staggered-angle pedestrian walkway made of concrete strips has been laid, transforming the original vehicular platform into an entrance space with varied scales and shifting orientations.
▼立面退入的外廊,Setback exterior corridor on the façade

▼西侧外廊作为休憩场所,The west-side outer corridor serves as a resting area

木梁群的重构Reconstruction of the Timber Beams
针对原6*6 米的框架柱网,木双梁系统被引入。每组木双梁贯通性地夹住混凝土柱列,建立起垂直于水院、连通U型内外的水平向空间秩序。
▼原状框架结构,Existing structural framework

▼原状框架轴测,Axonometric – Original Structural Frame

▼轴测 – 结构群,Axonometric – “Structures”

In response to the original 6×6 meter structural grid, a timber double-beam system was introduced. Each timber double-beam continuously clamps the rows of concrete columns, establishing a horizontal spatial order that is perpendicular to the water courtyard and connects the inside and outside of the U-shape.
▼水院空间,Water courtyard space

结构用胶合松木梁,通过暗托板节点与混凝土柱子进行结构性固定,并在各处向室外悬挑。双梁间的缝隙兼作了空调回风、柱列照明的设备集成带。
The structural glued laminated pine beams are structurally anchored to the concrete columns via concealed plate joints, while cantilevering outward at various points. The gaps between the double beams also serve as integrated channels for air-conditioning return and column-aligned lighting.
▼水院一角,A corner of the water courtyard

在木梁群构成的水平向空间场域中,设计进一步做了两处垂直向的空间扰动,其一是导向天光的书塔,其二是引向湿地的水榭,使得自然景观能够更为立体化地介入书店空间。
In the horizontal spatial fields formed by the timber beams, the design further introduces two vertical spatial disturbances: one is the book tower leading to the skylight, and the other is the waterside pavilion leading to the wetland, enabling the natural landscape to engage with the bookstore space in a more three-dimensional way.
▼水院一角,A corner of the water courtyard

抬升的书塔The Elevated Book Tower
西南角高体量内增设了一处“书塔”。层叠嵌套的两圈环形夹层构成了类似剧场的剖面模式,错层尺度刚好提供了不同标高的坐读空间,朝向东侧的窗口引入了湿地远处的绿意。
A “Book Tower” is inserted into the tall volume at the southwest corner. The two rings of stacked and nested mezzanines form a theater-like pattern in section. The staggered levels create sit-and-read spaces at varying heights, while the window facing east frames distant views of greenery from the wetland.
▼书店主空间望向书塔,View from the main bookstore space toward the book tower

▼书塔空间成为悬浮的风景,The book tower space becomes a floating scenery

▼书塔空间成为悬浮的风景,The book tower space becomes a floating scenery

▼书塔一角,A corner of the book tower

书塔夹层打破了常规楼板的处理,井字形布局的钢梁夹层架设在混凝土柱间并向下悬吊,工字钢顶面与木地板齐平,被呈现为与木梁同质的水平向要素:在纵向空间尽头,梁群向下层叠而泻下自然光线。书塔内人们的剪影被水平木梁截获,成为漂浮的风景。
The mezzanine within the book tower breaks the conventional treatment of floor slabs. A grid of steel beams in a crisscross layout is suspended between the concrete columns to form the mezzanine structure. The top surfaces of the I-beams are flush with the wooden flooring, allowing them to visually read as horizontal elements that share the same material quality as the timber beams. At the end of the longitudinal space, the beams cascade downward in layered sequences, channeling natural light. Within the book tower, the silhouettes of people are captured by the horizontal timber beams and become a floating scenery.
▼书塔望向书店主空间,View from the book tower toward the main bookstore space

▼书塔内部南向视角,South-facing view of the interior of the book tower

▼书塔望向北侧远处的湿地,View from the book tower towards the northern wetlands in the distance

下沉的水榭The Sunken Waterside Pavilion
原建筑朝向水院的不规则玻璃体量被替换为一处单坡顶。平面斜线的几何潜力被充分利用,自然地构成了剖面逐渐压低的坡顶;同时原楼板被局部敲除,改造为一处下沉近水区域。压低的顶面与下沉的地面共同作用,成为了一处融入湿地的“水榭”。退台阶梯提供了朝向湿地、三面而坐的阅读场所。在U型平面转角处,将水榭“割让”给水院,不仅对室内空间产生了水平方向的扭转,同时获得引向湿地水面的垂直力,强化了湿地对于内部的空间作用。
The original irregular glass volume facing the water courtyard was replaced with a single-sloped roof. The geometric power generated by the diagonal line of the floor plan was fully utilized, naturally forming a sloped roof that gradually lowers in section. At the same time, part of the original floor slab was removed to create a sunken area close to the water. The lowered roof and sunken floor work together to form a “waterside pavilion” that integrates seamlessly with the wetland. The recessed stepped seating offers a reading field facing the wetland, allowing people to sit on three sides. At the turning point of the U-shaped plan, the pavilion is “ceded” to the water courtyard, which not only produces a horizontal directional twist in the interior space but also introduces a vertical force guiding toward the wetland’s water surface, thereby enhancing the spatial impact of the wetland on the interior.
▼下沉水榭,Sunken waterside pavilion




水榭屋面采用灰色钛锌板,顶棚则整体喷涂以银色金属漆:既着意强化坡顶作为物体压下水面的空间力,又突显银色对环境光反射的微妙反应,以作为映射呈现自然水光的背景。庞大的水榭顶棚在每天上午反射出潋滟的水波纹,湿地以这样奇特的方式“进入”室内。
The roof of the waterside pavilion is clad in grey titanium-zinc panels, while the ceiling is uniformly sprayed with silver metallic paint. This design both emphasizes the spatial power of the sloping roof as an object pressing down on the water and highlights the subtle response of the silver material to the reflection of ambient light, which is suitable for use as a backdrop for mapping and presenting the shimmering textures of natural water ripples. Each morning, the vast canopy of the waterside pavilion reflects shimmering water ripples, allowing the wetland to “enter” the interior in this subtle and poetic way.
▼书店主空间与下沉水榭,Main bookstore space and sunken waterside pavilion

▼下沉水榭望向水院北翼,View from the sunken waterside pavilion toward the north wing of the water courtyard

▼下沉水榭望向水院南翼,
View from the sunken waterside pavilion toward the south wing of the water courtyard

悬吊的披檐 Suspended Secondary Eaves
《营造法式》中记载过一类宋式临水外檐装修构件——“障日䈳”。设计对该传统原型进行了当代转译:木梁突破建筑边界向外出挑,披檐两侧由上拉的吊杆悬挂在木梁上,中间由一根下接的斜杆辅助支撑,从而构成了特殊的临水建筑界面。披檐采用了与水榭相似的材料构造。
The 《Yingzao Fashi》records a type of Song-style waterfront eave decorative architectural component – “zhangri ta” (sun-shading screen). The design is a contemporary reinterpretation of this traditional prototype. The timber beams break through the architectural boundary, cantilevering outward. On both sides, the secondary eaves are hung from the timber beams by upward tension rods, while a downward slanted rod in the center provides additional support, thus forming a unique waterfront architectural interface. The secondary eaves adopt a material construction similar to that of the waterside pavilion.
▼调节光线与尺度的披檐,The secondary eaves that regulate light and scale

▼木梁与书梁交错的内部架构与披檐空间,The intersecting internal structure of timber beams and book-beams with the secondary eaves space

▼沙龙区的阅读空间,Reading space in the salon area

披檐作为建筑邻水边界的中介性元素,有两点作用。其一是调节室内光线,在遮挡刺眼的直射阳光同时,银色顶棚提供了柔和的漫射光,形成更适宜阅读的室内空间;其二是,调节空间尺度,压低的檐口屏蔽掉福堤的游客及水院两翼对视的干扰,让人在室内的视线朝下导向湿地水面,强化建筑架空于水上的场所知觉。
As intermediary architectural elements situated at the water’s edge, the secondary eaves have two functions. First, they regulate interior lighting: while blocking harsh direct sunlight, the silver-toned canopy reflects soft diffused light, creating a more comfortable indoor reading environment. Second, they adjust the spatial scale of the interior: the lowered eaves block out visual disturbances from the passing tourist along the Fudi and the buildings on both sides of the water courtyard, guiding the interior gaze downward toward the wetland water and reinforcing the spatial perception of the building floating above water.
▼沙龙区的阅读台阶与书梁,Reading steps and book-beams in the salon area

▼沙龙区的阅读台阶与书梁,Reading steps and book-beams in the salon area

▼沙龙区的阅读台阶与书梁,Reading steps and book-beams in the salon area

▼沙龙区一角,A corner of the salon area

木梁悬吊的披檐、柱间架空的桌椅构件,与立体错动的玻璃界面、可整面打开的折叠窗, 共同形成了建筑与自然之间的多处中介性场域。
The secondary eaves suspended by timber beams, the elevated tables and benches between the columns, the staggered three-dimensional glass façades, and the fully openable folding windows together create multiple in-between fields between architecture and nature.
▼沙龙区望向水院,View from the salon area toward the water courtyard

▼书吧望向水院,View from the book bar towards the water courtyard

交错的书梁Interlaced Book-Beams
书架被设计为寄生于柱列之间的特定结构要素—— 通透的“书梁”,希望让读者既能看到书籍、又能看到风景。我们与结构师张准进行合作,创造了 “书梁”结构装置:以横向水平木梁与纵向不锈钢板进行水平层叠,成为组合结构:胶合木和欧松板组合成工字型截面,承担长达6米的结构跨度,而纵向不锈钢板则将木梁联结为结构整体,实现平面内的抗扭。书梁由两侧的结构吊杆悬吊而与柱子固定,实现“梁”型的受力模式。
▼施工 – 书梁打样,Construction – Mock-up of book-beams

The bookshelves are designed as specific structural elements that parasitize between the columns—transparent “book-beams” that allow readers to see both the books and the surrounding landscape. In collaboration with structural engineer Zhang Zhun, we created the “book-beams” structural installation. Horizontal timber beams are layered with vertical stainless steel plates to form a composite structure. The glued-laminated timber and oriented strand board are combined into an I-shaped cross-section, which carries a structural span of up to 6 meters. The vertical stainless steel plates link the timber beams into an integrated structural unit, thus realizing torsion resistance in-plane. The book beams are suspended by structural rods on either side and fixed to the columns, thereby realizing a “beam” typology load-bearing behavior.
▼主入口隔着书梁望向水院,View of the water courtyard from the main entrance through the book-beams


六组书梁在柱列之间高低错落,与木梁群形成丰富的空间交错效应。它们漂浮于白色的空间中,限定出了一个个边界暧昧、朝向自然打开的场域群。
Six groups of book-beams are staggered between the columns, forming a rich interlacing effect together with the system of timber beams. They float in the white space, defining a cluster of fields with ambiguous boundaries that open towards nature.
▼书店主空间,Main bookstore space



▼书梁装置细部,Detail of the book-beams installation

西溪湿地作为杭州的城市次生湿地,不仅吸引大量游客,也是周边居民日常散步、骑行的场所。我们在湿地上构建出一座透明而开放的书店,让人们同时阅读书籍与自然,成为嵌入城市自然生活的公共场所。
As a secondary urban wetland in Hangzhou, Xixi Wetland attracts not only large numbers of tourists but also serves as a daily place for walking and cycling among local residents. We have built a transparent and open bookstore within the wetland for people to read books and nature at the same time, becoming a public place embedded in the natural life of the city.
▼主入口立面夜景,Main entrance façade at night

▼总平面图,Site Plan

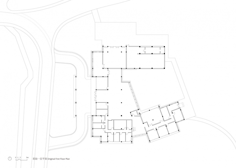
▼原始一层平面,Original First Floor Plan

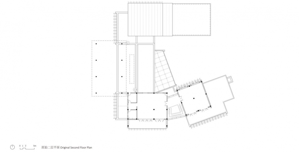
▼原始二层平面,Original Second Floor Plan

▼一层平面,First Floor Plan

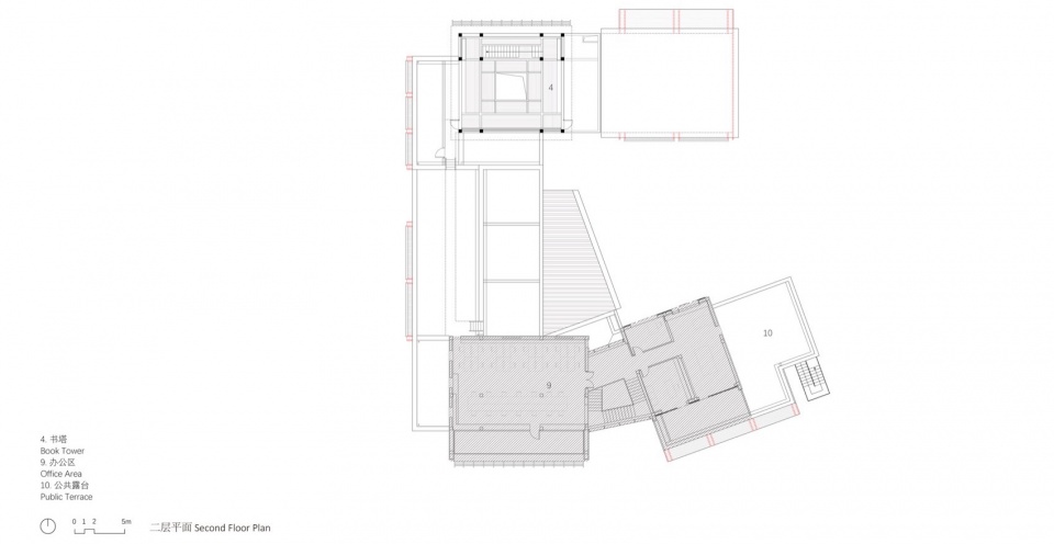
▼二层平面,Second Floor Plan

▼西立面,West Elevation

▼水院剖面,Section of the Water Courtyard

▼剖面1,Section 1

▼剖面2,Section 2

▼剖面3,Section 3

Project name: Xixi · Goldmye Bookstore
Project type: Architectural Renovation / Interior Design
Design: Atelier Wen’Arch
Contact e-mail: info@wenarch.com
Leader designer: Shen Wen
Team: Shen Wen, Wang Weishi, Yi Shihao (on-site), Sun Huizhong
Structural Consultant: Zhang Zhun(AND Office)
Lighting Design: DLX Lighting Design
Structure & Mechanical Engineer: Shanghai Zunbang Architectural Design Co., Ltd.
Clients: Hangzhou Xixi Wetland Operation and Management Co., Ltd.; Goldmye Culture&Media Co.,Ltd.
Design year: 2024
Completion Year: 2025
Project location: North Gate of Xixi National Wetland Park, Hangzhou
Gross built area: 880 ㎡
Photo credit: Chen Hao;Chen Yang/whyseeimage
Video credit:Chen Yang/whyseeimage














