Suuel酒店,墨西哥 / CAAM
Suuel酒店是对瓦哈卡波多黎各港(Puerto Escondido)数十年深情凝视的结晶。它是一场以人为尺度展开的宏大梦想,体现了这样一种信念:这片土地的未来可以走出不同的发展道路,孕育出一系列独特空间,从而守护墨西哥最具生命力的海滩文化之一,并延续其长久魅力。
Suuel is the result of decades of loving Puerto Escondido. It is a grand dream with a human scale, reflecting the belief that it can grow differently, with special spaces that preserve one of the most powerful beach cultures in Mexico, thus ensuring its longevity.
▼外观概览,exterior overview



▼街景,street view

▼凉廊,corridor


▼走廊尽头的楼梯,staircase at the end of the corridor


Suuel酒店的选址与设计理念,植根于波多黎各港强大而鲜明的海滩文化,以及其对Suuel创作者生活方式的深远影响。这里所追求的“在地性”,并非对传统的简单复刻,而是对地方精髓的深切感知,并体现在Suuel的建筑与功能构思中。
The design concept and location of Suuel are based on the strength of Puerto Escondido’s beach culture and its profound influence on the way of life of Suuel’s creators. The vernacular is not necessarily derived from the vestigial, and so the local, traditional essence of Puerto Escondido is deeply felt in the design and programming decisions of Suuel.
▼从室内看花园,viewing the garden from interior

▼阶梯式几何元素,stepped geometric elements


▼屋顶露台,rooftop terrace

酒店坐落于一片郁郁葱葱的树林之中,巧妙地借助Nim树的掩映而构筑自身,于隐匿中孕育丰富的内在世界。进入其中,迎接宾客与餐厅食客的是一座沙质庭院——Pacífica Radio餐厅不仅是Suuel酒店的餐饮空间,更是其声音与文化精神的延伸。炎热午后,这片庭院会转变为地掷球场,而每月一次的“Vinyl Fetish Sessions”黑胶音乐活动则让这里变身为声音之室,邀请杰出音乐策展人驻场播放精选曲目。厨房则开放于外部,与酒吧及庭院紧密相连,行走其间的赤足旅人得以随意窥见料理现场,轻松决定是否踏入这个空间。
Suuel is nestled among lush, generous trees. It is around these Nim trees that the hotel takes shelter and camouflages, creating a rich inner life. Upon entering, one discovers a sand garden that welcomes Suuel’s guests and diners of Pacífica Radio, the restaurant and sonic and cultural concept of Suuel. That same space transforms during hot afternoons into a pétanque court and once a month into a sound room for the “Vinyl Fetish Sessions,” welcoming incredible music selectors. The venue’s exceptional kitchen opens to the public, connecting with the bar and the outdoors, allowing barefoot curious wanderers to peek inside and decide to enter.
▼公共休息区,public leisure area

▼温暖的光线与柔和的色彩,warm light and soft colors


▼氛围感,ambiance

▼光影,light and shadow


▼细部,details


拾级而上走向客房,建筑与空间的肌理通过双足的感知不断被识别与发现。树荫与微风相随,无论身在何处,Suuel的自然气息始终陪伴左右。九间客房均以高空间品质为优先考量,远超一般酒店标准,不仅设有舒适的休憩与办公区域,还配有宛如丛林的露台,大多数房间更配备专属小型跳水池。而位于顶层的共享泳池藏于绿荫之间,是另一个惊喜之地,让人在枝叶掩映之中,伴随瓦哈卡太平洋的涛声,享受一片静谧绿洲。
As one ascends to the rooms, the architecture is continuously recognized and discovered through the feet. The shade and breeze from the trees accompany us wherever we go within Suuel. Each of the 9 rooms prioritizes spatial quality, offering more generous spaces than typical hotel rooms, with ample areas for lounging, working, jungle-like terraces, and, in most cases, private plunge pools. Additionally, the common pool on the top floor is a surprise, also tucked among the foliage of the Suuel trees, creating a small oasis accompanied by the wild sound of the waves of the Oaxacan Pacific.
▼客房,guest room


▼客房内部,interior of the guest room


▼客房配备大面积露台,the guest room is equipped with a large terrace

▼露台,terrace

▼其它房型,other type of the guest room

▼客房,guest room


▼客房细部,details of the guest room


▼光影,light and shadow

▼浴室,bathroom

项目整体大量使用木材,柔化空间气质,营造出穿堂风的通道,为宾客带来自然通透的清凉体验。同时,轻盈的布帘与纱帐在空间中灵动飘逸,划分与连结、遮蔽与开放之间,构成极富感官魅力的内饰语言。透过Suuel的设计与建造,Caam及其创作团队于波多黎各港留下了独特印记,也让我们得以相信,这片海滩将继续作为一处心灵的逃离地与重新连接的所在,延续梦境般的吸引力。Suuel酒店,是一场以人为尺度展开的宏大梦想。
The use of wood throughout the project further softens the spaces, creating wind tunnels that refresh guests and a permanent play of fabrics and curtains that decorate the interiors, sensually opening and breaking up the spaces. Through the design and construction of Suuel, Caam and the other creators have left a mark on Puerto Escondido, allowing us to believe that this destination will continue to be a beach dream, an escape and reconnection destination. Suuel is a grand dream with a human scale.
▼外观,exterior view


▼外观细部,details of the exterior


▼走廊与楼梯,corridor and staircase


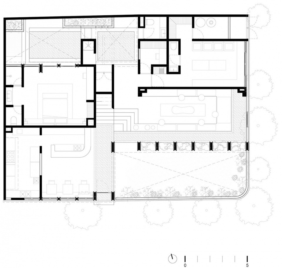
▼一层平面图,ground floor plan

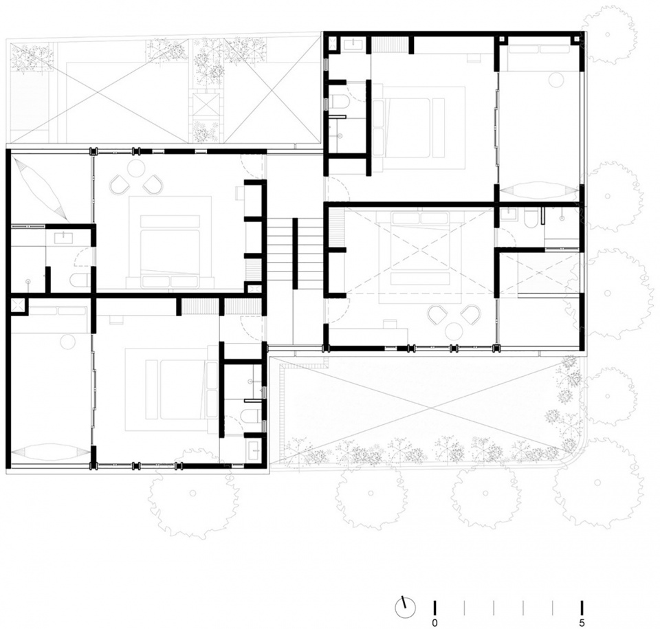
▼二层平面图,first floor plan

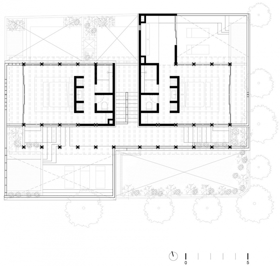
▼三层平面图,second floor plan

▼屋顶平面图,roof plan

▼立面图,elevation

▼剖面图,section

CREDITS
Typology: Hotel
Architects: CAAM (Camilo Moreno Oliveros and Daniel Moreno Ahuja),
Interior Design: SQUADRA STUDIO (Sofía Díaz Barriga Ochoa and María Carbajal), KRIM (Karen Rauch and Isabella Medrano),
Construction: CIMERA (Héctor Anselmo and María Anselmo),
Client: Circle Development
Area: 679 m²
Year: 2024
Location: Puerto Escondido, Oaxaca, Mexico
Photography: Zaickz Moz
CONTACT INFORMATION
Website: http://caam-arq.com/
Social Media: @caam.arq
Office Location: Condesa, CDMX, Mexico
Lead Architect: Camilo Moreno Oliveros














