Calfuco小屋,智利 / Tomas de Iruarrizaga
这个仅有 50 平方米的小型庇护所位于智利太平洋沿岸的瓦尔迪维亚附近,坐落在茂密湿润的瓦尔迪维亚雨林之中。业主希望建造一座可供度假的小木屋,设计的主要挑战在于重新诠释人们早已熟知的传统木屋概念。
This small 50 m² shelter is located near Valdivia, on Chile’s Pacific coast, nestled within the dense and humid Valdivian rainforest. The client sought a small cabin for vacation use, and the main challenge was to reinterpret the well-established concept of a traditional cabin.
▼项目鸟瞰,aerial view of the project


▼建筑与周围景观,building and surrounding landscape


我们提出了一个非常狭长的塔楼式方案,通过混凝土墩将其架空,朝向北侧光线,并占据极小的地面面积。平面为一个小型矩形——宽四米、长七米——恰好嵌在一簇树木之间,从地面升起十米直至树冠层。
We proposed a very narrow tower, raised off the ground on concrete piers, oriented toward the northern light and occupying a minimal footprint. The plan is a small rectangle — four meters wide by seven meters long — that fits snugly between a cluster of trees, rising ten meters from the ground up to the canopy.
▼建筑外观,building exterior view



建筑被划分为两个极为紧凑的楼层:底层包含一个兼作为走廊的小型入口大厅,连接卧室、唯一的浴室以及楼梯。二层为开放式空间,将起居区与厨房结合在一起,当其朝向景观敞开时,显得宽敞而富有格调。室内高度在满足舒适活动的最小尺度与回应森林环境尺度的更大空间之间变化。
The structure is divided into two very compact floors: the first level includes a small entrance hall that doubles as a corridor connecting the bedrooms, the single bathroom, and the staircase. The second level features an open-plan space combining the living area and kitchen, which feels spacious and noble as it opens toward the landscape. Interior heights shift between the minimum needed to move comfortably and dimensions that acknowledge the surrounding scale of the forest.
▼二层开放式空间,second floor open-plan space

▼二层望向森林,second floor view face forest

▼起居室,living area


▼厨房,kitchen



▼卧室,bedroom



▼楼梯空间,stairs space


▼双坡面屋顶,the gabled roof

建筑形态被设想为一个紧凑、轮廓分明的体量——一个棱角锐利的棱柱,与自然环境形成鲜明对比。室内覆以月桂木饰面,温暖且富有触感;一切都如同船舱般犹如内置家具,结构框架与龙骨清晰可见。双坡屋顶采用一根斜向的脊梁,贯穿整个体量,如同鱼骨般的脊柱。整个建筑在现场通过传统木工工具切割与建造完成,未使用任何数字化加工方法。
The form is conceived as a compact, sharply defined volume — a prism with acute angles that stands in stark contrast to the natural surroundings. The interiors, clad in laurel wood, are warm and tactile; everything feels like built-in furniture, much like in boats, where frames and keels are exposed. The gabled roof features a diagonal ridge beam running across the volume like a fishbone spine. The entire structure was cut and built on site using only traditional carpentry tools, without any digital fabrication methods.
▼建筑与环境,building environment


▼夜景,night view



▼总平面图,master plan

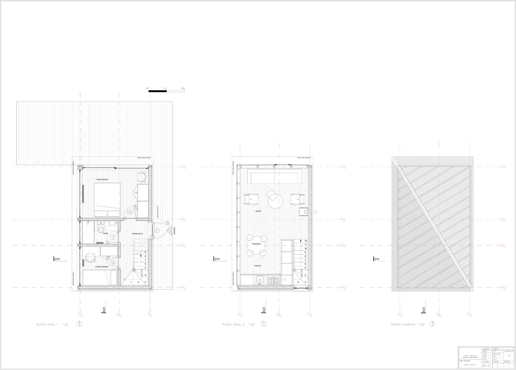
▼平面图,floor plan

▼ 立面图,elevations


▼ 剖面图,sections



▼轴测图,axonometric diagram


▼细部详图,construction details




▼家具细节图,furniture details


















