一厸YILIN美学餐厅,台州 / 可米设计 + 深源创新实验室
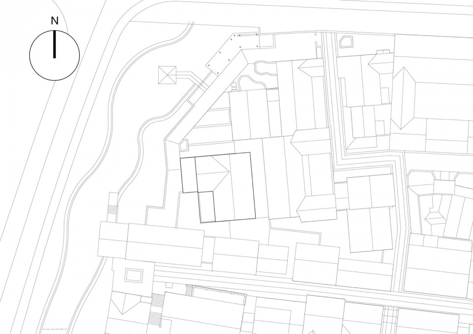
一厸YILIN美学餐厅,位于台州市椒江区葭沚老街西北角偏安一隅,该建筑改造实现了一个在艺术与设计、审美与实用中寻找视觉、触觉、嗅觉、味觉全感官的生活美学空间,亦是集艺术餐厅、在地风物、民艺再创、展览策划、设计的复合社交空间。
Nestled in a quiet corner of the northwest side of Jiazhi Street District in Jiaojiang, Taizhou, the renovation of this building has realized a living aesthetic space that engages all senses—sight, touch, smell, and taste—bridging art and design, beauty and functionality. It is also a multifunctional social space integrating an art restaurant, local cultural products, folk craft revival, exhibition curation, and design.
▼店面立面,Storefront Elevation

“厸”通“邻”,亦为与大家做邻居的概念。又与“临”同音,为来临,为靠近,传统文化是源于生活亦要回归当下。从老粮坊的画廊,成长到葭沚老街的美学复合空间。一厸,所尝试企及的,是在保留大量丰富的在地物质特产、人文故事与习俗的同时,把在地内容与当代都市生活进行新的连接,让在地文脉成为城市更新中的重要焕新动力。
“厸” (pronounced *lín*) carries the meaning of “neighbor,” embodying the concept of being a welcoming presence to all. It also homophonically suggests “arrival” and “closeness,” reflecting how traditional culture originates from life and should return to the present. From its beginnings as a gallery in the Laoliangfang district to its evolution into an aesthetic complex space in Jiazhi Street District, YILIN strives to preserve the rich local specialties, cultural stories, and customs while forging new connections between regional heritage and contemporary urban life, making local cultural context a vital force in urban renewal.
▼一楼大厅,First-Floor Lobby

▼一楼大厅,First-Floor Lobby

▼二楼大厅,Second-Floor Lobby

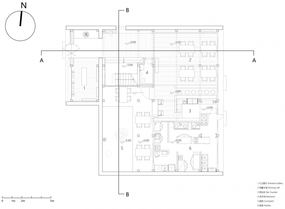
建筑在改造的过程中基本保留了原有的空间布局。原布局最大的特点之一便是,绕着一个侧向庭院U型组织的三段形式与尺度不同的空间,这种不对称性塑造出独特的内在动态,因此后续的设计也再次围绕院子展开,挖掘旧建筑的特质并结合新的需求进一步强化。
▼功能关系,Program Diagram

During the renovation, the original spatial layout was largely retained. One of its most distinctive features is the U-shaped arrangement of three sections of varying scales around a side courtyard, creating a unique asymmetry that shapes an inherent dynamism. Thus, the subsequent design revolves around the courtyard, amplifying the old building’s character while addressing new needs.
▼庭院,Courtyard

▼庭院入口,Courtyard Entrance

餐厅朝向西侧的入口,具有接近两层的通高,成为一个兼顾艺术品展示与对外立面表达的空间,材质与色泽沉着的的大门与轻盈的玻璃组成了客人们进入餐厅前看到的第一个建筑表情。按照参观路线,来客会率先走进入口处高阔宽敞的门厅兼展厅,这里大面积的留白与朴素的底色提供了最好的展览效果。而在步入大门之前,从通透的玻璃立面也能看到室内陈设的器物展品,以及门洞所面向的具有深度的室内空间。
The restaurant’s entrance, facing west, features a nearly two-story-high space that serves as both an art display area and an expression of the façade. The composed materiality and subdued hues of the door, paired with lightweight glass, form the first architectural impression guests encounter. Following the visitor’s route, guests first enter a spacious, lofty foyer that doubles as an exhibition hall. The extensive blank walls and modest backdrop provide an optimal setting for displays. Even before stepping inside, passersby can glimpse curated artifacts and the depth of the interior through the transparent glass façade.
▼东巷向内看,View into the East Alley

穿过门厅之后,便会到达两侧透光的会客厅,来客将第一次通过楼梯旁上的落地窗看到庭院空间,这里同时植入了交通组织的服务核心。以器物美学和非遗文化为主题下,通过手工化的材料编织进原生的空间基因中,上方的竹编吊顶和竹制的扶手栏板,以及地面的青砖,为每一位拾级而上或往前行进的人营造出的现场感受里——亲密的传统中流淌着现代的静谧。
Beyond the foyer lies a sunlit reception area, where visitors catch their first glimpse of the courtyard through floor-to-ceiling windows beside the staircase. This area also houses the core of the circulation layout. Under the theme of artifact aesthetics and intangible cultural heritage, handcrafted materials are woven into the original spatial DNA. The bamboo-woven ceiling overhead, bamboo handrails, and bluestone bricks underfoot immerse visitors in an atmosphere where intimate tradition flows with modern tranquility, whether ascending the stairs or moving forward.
▼门厅展厅,Entrance Hall Exhibition Space

▼会客厅通道,Reception Room Corridor

穿过一楼的会客厅,进入到用餐区域,地坪在这里进行了一次抬高,转向吧台一侧时地坪进行了第二次抬高,使得室内形成转动升起的节奏。庭院的入口最终被设置在吧台旁靠窗一角处,作为一层公共区域流线的结尾。面向庭院的檐廊除了可以用作半室外的就餐之外,有时在这里还能欣赏到院子中进行的艺术表演等。庭院也在二期的改造中,由原本的石板院子,升级成了一个苔藓景观庭。
Passing through the ground-floor reception area, guests arrive at the dining zone, where the floor level rises once, then again near the bar, creating a dynamic, ascending rhythm. The courtyard entrance is positioned by the window next to the bar, marking the end of the public area’s flow on the first floor. The eaves corridor facing the courtyard serves as a semi-outdoor dining space and occasionally hosts artistic performances. In the second phase of renovation, the original stone-paved courtyard was transformed into a moss landscape garden.
▼吧台,Bar Counter

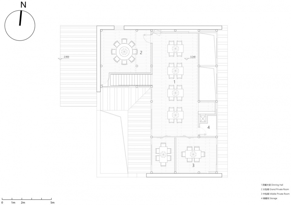
用餐区东侧的通高空间悬挂了花卉艺术装置将两层之间的视觉联系起来。新建的墙与吊顶中偶尔暴露出的原始结构,暗示般叙述着老房子原本的样貌。会客厅处的楼梯则可继续上到二层,二层设有二十个大厅座位,两个小包厢与一个大包厢,提供了多样的用餐空间体验,并充分利用原有的开窗来合理布局进行采光,也能从高处观看庭院与葭沚老街的巷道。
In the double-height space east of the dining area, a floral art installation hangs, visually linking the two floors. Occasionally exposed original structures in the new walls and ceiling hint at the building’s past. The staircase in the reception area leads to the second floor, which features twenty main hall seats, two small private rooms, and one large private room, offering diverse dining experiences. The layout maximizes natural light through the original windows while providing elevated views of the courtyard and the alleyways of street.
▼一楼大厅,First-Floor Lobby

▼一楼大厅,First-Floor Lobby

整个空间的软装,包括门把手、绘画等则由业主两位助理人亲自完成。比如她们向章安非遗竹编老师学习了竹编工艺,又在表面肌理上运用了岩彩和漆艺工艺,制作了二楼造型独特的系列灯具。
The interior furnishings, including door handles and paintings, were personally crafted by the clients. For instance, they learned bamboo-weaving techniques from a Zhang’an intangible cultural heritage artisan and applied rock pigment and lacquer finishes to create the uniquely shaped series of lamps on the second floor.
▼二楼餐厅,Second-Floor Dining Room

▼通高俯拍,Double-Height Space Overhead View

▼布局图,Layout Diagram

▼区位,Location

▼一层平面,Ground Floor Plan

▼二层平面,Second Floor Plan

▼A-A剖面图,A-A Section

▼B-B剖面图,B-B Section

Project name: YILIN Aesthetic Restaurant
Project type:Restaurant / Exhibition Gallery
Design: CO-MILEU+ Deep Origin Lab
Website:
Contact e-mail:deeporiginlab@gmail.com;office@comilieu.com
Design year:2024
Completion Year:2025
Leader designer & Team:
CO-MILIEU: Dai Qiaoqi, Tang Yini
Deep Origin Lab: Liu Qinrong, Xu Chaocai, Yao Lu
Project location:Jiazi Street, Jiaojiang District, Taizhou, Zhejiang Province
Gross built area: 310㎡
Photo credit: Qinrong, A Shui
Partner:Shanghai Supai Construction Co., Ltd.
Clients:Taizhou Yiling Culture Co., Ltd.














