Langen Bei Bregenz社区中心,奥地利 / MWArchitekten
随着Langen bei Bregenz人口的持续增长,市镇面临着增加幼儿园学位的迫切需求。同时,社区中心也亟需升级改造,以满足日益增长的功能要求。该社区拥有活跃的社团文化,尤其是音乐协会,对合适的活动空间需求尤为突出。
Due to the increasing population in Langen bei Bregenz, kindergarten places had to be created in the municipality. At the same time, the community center needed to be adapted to the increasing requirements. The community has a lively club life and the music club in particular needed suitable premises.
▼建筑外观,exterior of the building


在“不新增用地”的前提下,团队开展了一项研究,提出了社区中心分阶段重组的整体方案。规划以幼儿园的扩建为起点,通过在现有建筑中进行改造实现,最终以音乐协会迁入新建阁楼及社区中心的整体更新为收尾。同时,方案亦为未来的扩建预留了可能性。
Provided that no land was built on, a study was carried out to develop a phased restructuring of the center. Starting with the extension of the kindergarten as a conversion in the same building, the restructuring ended with the move of the music club to a new attic and the conversion of the community center. Future extensions have already been considered and prepared.
▼外观局部,exterior detail


▼外观细部,exterior detail

在市政厅改造部分,现有屋顶被拆除,新增一层以木结构为主的新楼层。新屋顶不仅构成建筑的重要部分,还集成了光伏发电系统,为建筑自身及电网提供可再生能源。
The existing roof will be removed for the extension of the existing municipal office and replaced by one storey, mainly in timber construction. The newly created roof supplies the building and the electricity grid with a PV system.
▼会议室,meeting room


▼楼梯间,staircase space


现有建筑原本提供的十五米无柱跨度,通过桁架结构得以实现,桁架同时成为室内空间的视觉与结构元素。
The column-free span of fifteen meters provided by the existing building is achieved using trusses, which also form the interior.
▼桁架细部,trusses detail


新增楼层在形式上有别于原有建筑,其简洁抽象的表达与下方经过翻新的立面形成鲜明对比。新立面的开口设计克制且精确布置,从而避免与原有立面的分割产生竞争。
The new storey is formally set apart from the existing building and contrasts with the refurbished façade in its abstraction. The openings in the façade are minimalist and deliberately placed. The degree of abstraction of the extension therefore does not compete with the existing façade division below.
▼新增一层以木结构为主的新楼层,the extension of the existing municipal office mainly in timber construction


▼立面开口设计,the openings in the façade


▼音乐厅,the music room


改造后的市政厅将实现全楼层的无障碍通行,同时扩大会议室规模,以满足市政委员会的成员数量需求。在会议室与音乐厅前方,设置了一个共享前厅,为不同使用者提供交流与互动的空间,进一步强化社区中心的公共属性与凝聚力。
The renovation of the existing municipal office includes barrier-free access across all floors, as well as an enlargement of the meeting room to accommodate the required number of members of the municipal council. In front of the meeting room and the music room, an anteroom will be created for the various users of the building to meet and exchange ideas.
▼建筑夜景,night view of the building

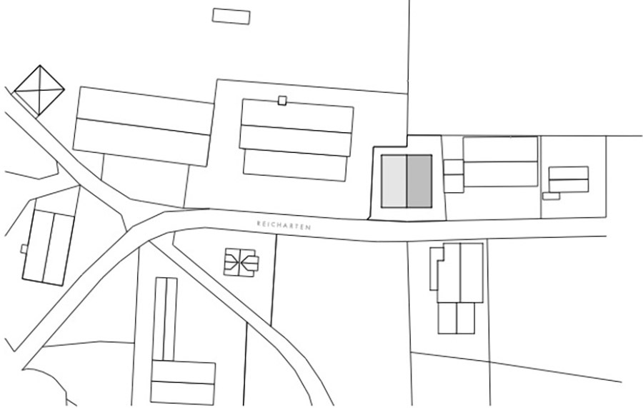
▼场地平面图,site plan

▼负一层平面图,basement floor plan

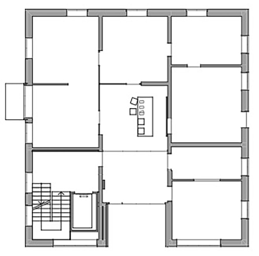
▼一层平面图,ground floor plan

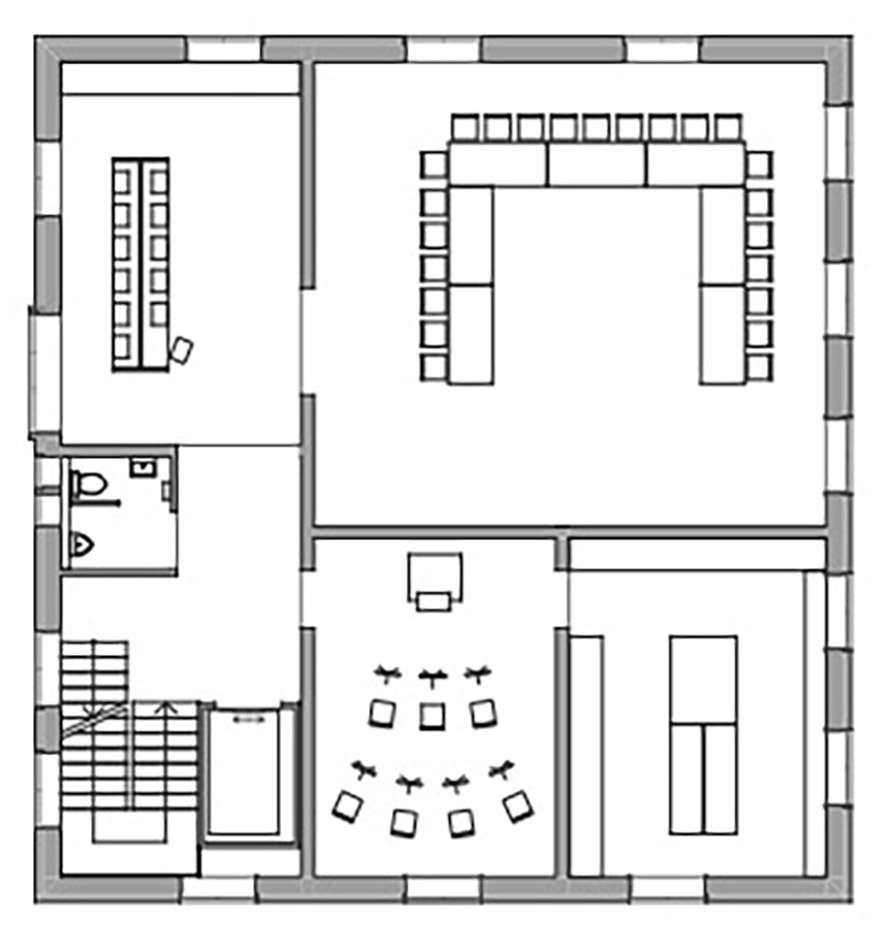
▼二层平面图,first floor plan

▼三层平面图,second floor plan

▼立面图,elevation




▼剖面图,section


Project Name: COMMUNITY CENTER LANGEN BEI BREGENZ
Office Name: MWArchitekten
Office Website: http://www.MWArchitekten.at
Contact Email: Info@MWArchitekten.at
Headquarters: Marktstraße 48, 6845 Hohenems, Austria
Completion Year: March 10, 2025
Building Area: 244 sq m
Basement Gross Area: 235 sq m
Gross Area: 800 sq m
Usable Area: 650 sq m
Project Location: Vorarlberg, Austria
Program / Use / Building Function: Public
Lead Architects: Lukas Peter Mähr
Lead Architects’ Email: Maehr@MWArchitekten.at
Photographer
Image credit: Dominic Kummer
Photographer’s website: https://dominic-kummer.com
Photographer’s email: hallo@dominic-kummer.com














