巴塞罗那Cactus住宅,西班牙 / LAOS + Laura Bongiovanni
本次改造位于巴塞罗那的萨里亚老城区,由两栋19世纪末的住宅组成,其修缮程度各不相同。尽管建筑外立面受保护,但建筑内部在漫长岁月中经历了大量改动,几乎丧失了全部原有的饰面与覆盖层。
The intervention consists of the rehabilitation of two late 19th-century dwellings with varying degrees of intervention in the old town of Sarrià. While the façade is protected, over time, the interior has undergone extensive modifications, eliminating the vast majority of original finishes and coverings.
▼项目概览,project Overview

第一阶段的工作重点是移除所有缺乏历史或建筑价值的构件,并尽可能突显原有特征。在无遗存的部位,剔除新增部分以暴露原始结构,从而呈现出历次改造的痕迹:原有砖拱、后期加设的钢结构加固、各个阶段使用的不同砖材,以及铸铁柱廊等。设计尽量避免对承重墙进行干预,并将新的平面布局与现有开口位置相适配。
The first phase of the intervention involves removing all elements that lack historical or architectural interest and highlighting the original features. Where no vestiges remained, added elements were removed to expose the original structure. The different interventions over time are revealed: the original brick vaults, later steel reinforcements, the types of bricks used in each phase, and the cast-iron pillar galleries. The proposal avoids, as much as possible, any intervention on the load-bearing walls and adapts the new layout to the existing openings.
▼结构之美,the beauty of structure

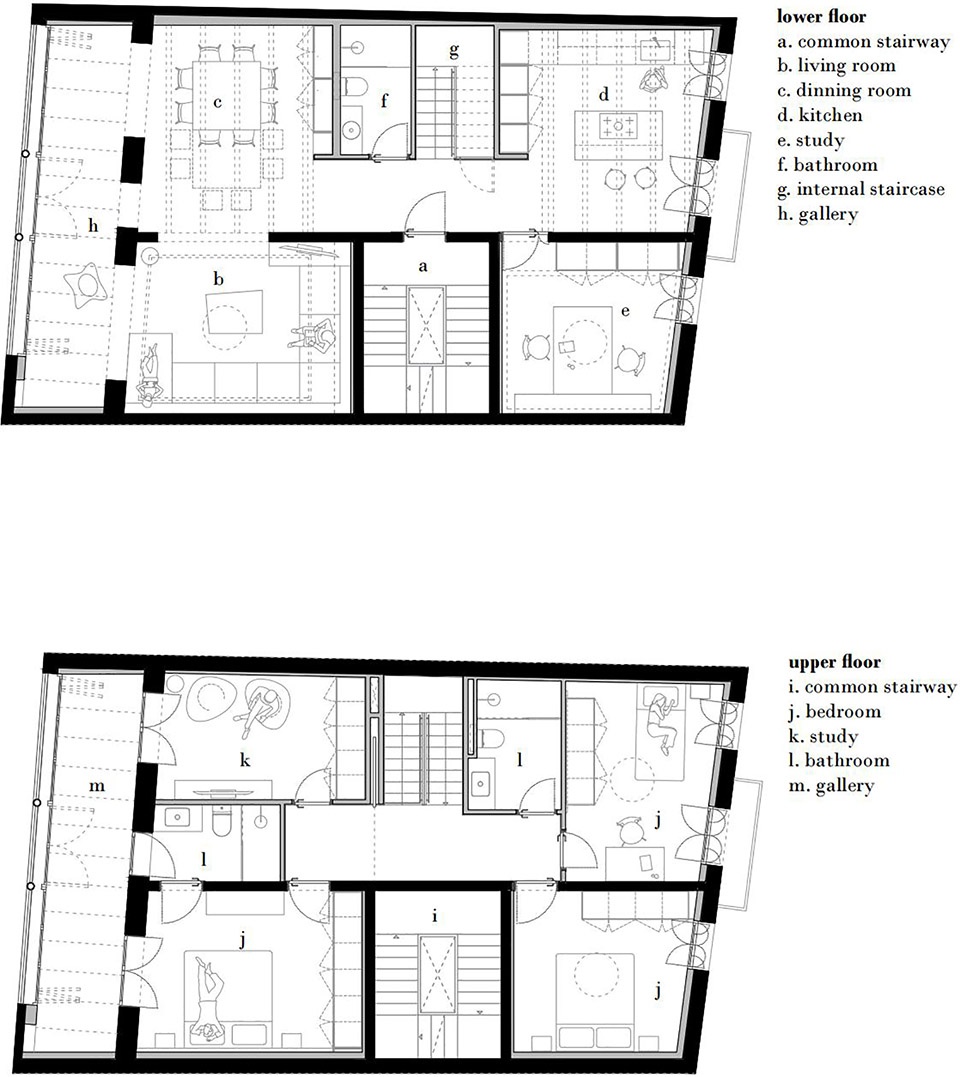
建筑内部规划为两套双层住宅,通过一座共用楼梯相连。底层布置起居空间,上层为卧室区。主要房间面向外立面,内部空间则作为服务区使用。改造还在内侧增加了由高密度石膏纤维板与水泥板构成的内衬保温层,以保持原有结构的热惰性。
The layout consists of two duplex dwellings connected by a communal staircase. The lower floor houses the living areas, while the upper floor is dedicated to the sleeping areas. The main rooms are positioned along the façades, while the interior space is reserved for service areas. The intervention also includes the addition of insulation through an internal lining with high-density gypsum fiber and cement panels, which helps
maintain the thermal inertia of the original construction.
▼厨房,kitchen




▼卫浴空间,bathroom


▼卧室,the sleeping areas

▼卧室细节,the sleeping areas details



材料与细部Materiality
新建的核心空间覆以橡木饰面板。地面采用整体浇筑的水磨石,与地暖系统一体化处理。床头板及其他家具元素同样选用橡木饰面。
The new central cores are finished with oak wood paneling. The flooring is resolved with a continuous terrazzo surface that integrates the underfloor heating system. Headboards and other furniture elements also feature an oak wood finish.
▼新建的核心空间,the new central cores



起居室与餐厅均朝向南立面,墙面保持裸露,仅保留历史时期的石膏线装饰假天花。楼板上的矩形梁则暗示这里曾有阁楼,后被改作居住空间。
The living and dining areas share the south-facing façade. The walls are left bare, except for the historic false ceiling with plaster moldings. The rectangular beams of the upper floor slab indicate the presence of an old attic that was later repurposed for residential use.
▼新旧对比,comparison of old and new

▼天花板细节,ceiling design details





非物质遗产的延续Intangible Heritage
除了受保护的实体构件外,设计同样重视并保留了住宅原有的气候适应性,这被视为其非物质遗产的重要组成部分。项目修复了南向的廊道,并延续了原有陶砖墙体的热惰性特征。
Beyond the protected material elements, the intervention recognizes and values the original climatic behavior of the house as part of its intangible heritage. South-facing galleries are restored, as well as the thermal inertia of the existing ceramic walls.
▼南向的廊道,south-facing galleries

冬季时,这些廊道可储存热量,充当热缓冲区;夏季则成为通风、遮蔽直射阳光的空间。室内保温层同样采用高密度石膏纤维板与水泥板,以在增强保温性能的同时保留陶砖墙体的热惰性,使室内在夏季保持夜间的凉意,在冬季则可以维持白天的暖意。
In winter, the galleries function as heat accumulators and act as thermal cushions; in summer, they become ventilated spaces, protected from direct solar radiation. The rehabilitation incorporates thermal insulation through an interior cladding made of high-density gypsum fiber and cement panels, which allow the preservation of the thermal inertia of the original ceramic walls, thus maintaining the nighttime coolness in
summer and daytime warmth in winter.
▼廊道细节,gallery details



▼轴测图,axonometric drawing

▼走廊分析图,gallery analysis diagram

▼平面图,site plan

Project Title: Casa Cactus
Authors: Xavier Botet Campderrós(Laos arquitectura) + Laura
Bongiovanni Martínez
Photography: Jose Hevia
Collaborators: Aga Enginyeria (Engineering)
Client: Private
Location: Barcelona
Date of construction: 2024














