J住宅,北京 / 左通右达建筑工作室
J住宅位于北京西部,整栋建筑坐落在山地高处,东望玉泉山,拥有开阔的风景和视野。住宅主人十几年间旅居海外。院中当年栽下的花木依然葱郁,与久未打理杂生的野草、红砖外墙、阳光房斑驳的金属表面一起,凝固了那个时代的片段。
House J is located in the western part of Beijing, perched high in the mountains. To the north lies Fragrant Hills Park (Xiangshan Park), while to the east, the view opens toward Yuquan Mountain, offering broad and expansive vistas. The owner of the residence spent more than a decade living abroad. The flowers and trees planted in the courtyard years ago remain lush and vibrant. Alongside them, untended wild grass has grown freely, while the red brick exterior walls and the weathered metal surfaces of the sunroom are fragments of a bygone era.
▼室内概览,overview of the indoor space

原有场地的房屋位于花园北侧,建筑内部不成比例的中厅占据了大部分面积,压迫了二层和三层的卧室和起居空间。突出的阳台被包裹成的阳光房,遮挡了大量的光线;过大的进深让房屋地上面积被困在阴影之中。
▼分析图,analysis diagram

The original house sat on the north side of the garden. An oversized central hall dominated the interior space, compressing the bedroom and living spaces on the second and third floors. The protruding balcony had been turned into a enclosed sunroom, which blocked a significant amount of natural light. The excessive depth of the building trapped much of its floor area in shadow.
▼通高玄关,double-height space

▼由玄关看客厅,
viewing the living space from the entrance

▼客厅,living space

▼细部,details

主人家庭结构十年间发生了变化,孩子们都已长大独立,旧屋的功能格局已不适配现在的生活方式。一家人日常几乎分散在不同国家生活,而几代人之间也向往落叶归根的聚合状态。主人因此渴求既有充足光线和包裹感,又能相对独立的空间,同时也憧憬“居群山环抱之中,拥有一寸花园”的浪漫图景。
The structure of the owner’s family changed over the past ten years. The children have grown and started their adult lives. The old layout no longer suits their current lifestyle. Family members now live scattered across different countries, while the desire for togetherness across generations has grown stronger. The owner longs for a space that is bathed in light, offers a sense of enclosure, yet remains relatively independent. In the meantime, they also dream of“dwelling among mountains with just a slice of garden to call their own.”
▼茶室,tea room

▼室内庭院,inner patio

场地北侧临路,与南侧标高最大高差1.5米。东边的侧向花园,又由北至南缓坡下降了半米有余。规划上,整体策略着重利用这种细微但连续的高差变化,对应不同形状,尺度,光影和人们的生活动态需求,创造差异化的空间,将新的形态反映到新的空间中。
▼剖面图,section

The northern edge of the site faces the road, with a height difference of up to 1.5 meters from the southern side. The east-facing side garden gently slopes down by over half a meter from north to south. The overall design strategy takes advantage of these subtle yet continuous elevation changes. By corresponding to different shapes, scales, light conditions, and dynamics of human life, they become a source of differentiated spatial expressions in the new design.
▼厨房餐厅,kitchen and dining room

▼餐厅,dining area

▼视线的穿透,penetration of the line of sight

▼餐厅,dining area

立面上去除了突出的阳台和阳光房,通过扩大或者缩小原始房屋的大小、重置各层楼板的高度形成连贯的尺度感。阳光从天顶开窗流入双层通高的玄关,再经过低矮的过厅,抵达被内向植物围合的客厅空间。经过结构的调整,容纳客厅的盒子被悬挑在建筑的正中心,望向与它错动半米的餐厅和负一层地下花园。混凝土结构梁上翻,形成在悬浮客厅底部的室内花园无柱大空间,让阳光自然流淌。随着各类植物日渐繁盛,客厅的悬浮盒子将会被树梢包裹,与室外庭院花木内外呼应,绿意环绕,重重叠叠。挑高的中庭在二层是去向三间卧室的通道。走廊环绕着悬浮的客厅,空间的错动让抵达每间卧室的路径都不尽相同。回游之间,视线可以穿透室内和室外,回望这双层绿色包裹的庭中之庭。
▼剖面图,section

The protruding balcony and sunroom were removed. The original structure was resized—some parts expanded, others reduced—and the floor heights were reset to create a cohesive sense of scale. Sunlight pours in through skylights into the double-height entrance hall, flows through a transitional space, and reaches a living room enclosed by inward-facing plants. Due to structural adjustments, the living room now occupies a cantilevered box at the very heart of the house, looking out toward the slightly offset dining area and sunken garden. By raising the concrete structural beams, a column-free indoor garden space was created beneath the floating living room. The resulting void allows sunlight to flow naturally through. As various plants thrive, the floating box of the living room will eventually be embraced by tree canopies, echoing the courtyard’s greenery both inside and outside. The double-height central atrium on the second floor becomes a passage leading to three bedrooms. A corridor wraps around the floating living room. Due to the spatial shifts, the path to each bedroom differs. As one walks through the space, views cut through both interior and exterior, revealing a garden within a garden, wrapped in greenery over two levels.
▼客厅,living room

▼客厅的悬浮盒子被树梢包裹,
the floating box in the living room is wrapped around the treetops

▼细部,details



▼室内窗口,interior openings

▼温暖的灯光,warm light ambiance


这一系列的空间调整,同时为精于厨艺的家中女主人设置了面向客厅和室内外花园的开放厨房。女主人的备餐与男主人的阅读各不打扰,交流却可以在无声的视线中交互中进行。餐厅在空间和材料上都连接了户外的花园,当年种下的植物依旧安守在原位。在山石的引导下,东侧花园作为独立的入口,让访客可以从远山包裹的庭院直接抵达空间重叠的室内。
In this reconfiguration of space, an open kitchen facing both the living room and the indoor-outdoor garden was designed for the owners, who excel in culinary arts. Their food preparation and reading activities remain separated in space, yet communication takes place through silent visual interaction. The dining area, in both layout and materials, connects seamlessly with the outdoor garden. The original plants remain in their original spots. Guided by stones, the east garden serves as an independent entrance, allowing visitors to arrive directly at the overlapping interior spaces from a courtyard embraced by distant mountains.
▼俯瞰茶室,overlooking the tearoom

▼茶室,tearoom

▼户外庭院,outdoor garden



这是一个多维度重叠的花园空间:阳光随着人的活动路径流入室内,室外,半室外,直至充满各角落。这些角落因为不同的处境,提供了丰富的空间信息。在物理层面或是精神层面上,每个人都拥有属于自己的花园。也许是室内和室外的重叠,也许是现实与理想的重叠。重要的是,他们并不通向外部,而是通往内心记忆、精神和灵魂的栖身之所。
This is a multidimensional, overlapping garden space: sunlight flows in along the paths of human activities—indoors, outdoors, and semi-outdoors—illuminating every corner. These corners shaped by different spatial conditions offer a richness of spatial information. Physically or spiritually, everyone has their own garden. It is the overlap between not only indoor and outdoor, but also reality and imagination. What matters is not where these spaces lead to externally, but how they open a path inward to our memory, spirit, and soul.
▼外观夜景,night view of exterior


▼庭院与外立面,courtyard and facade



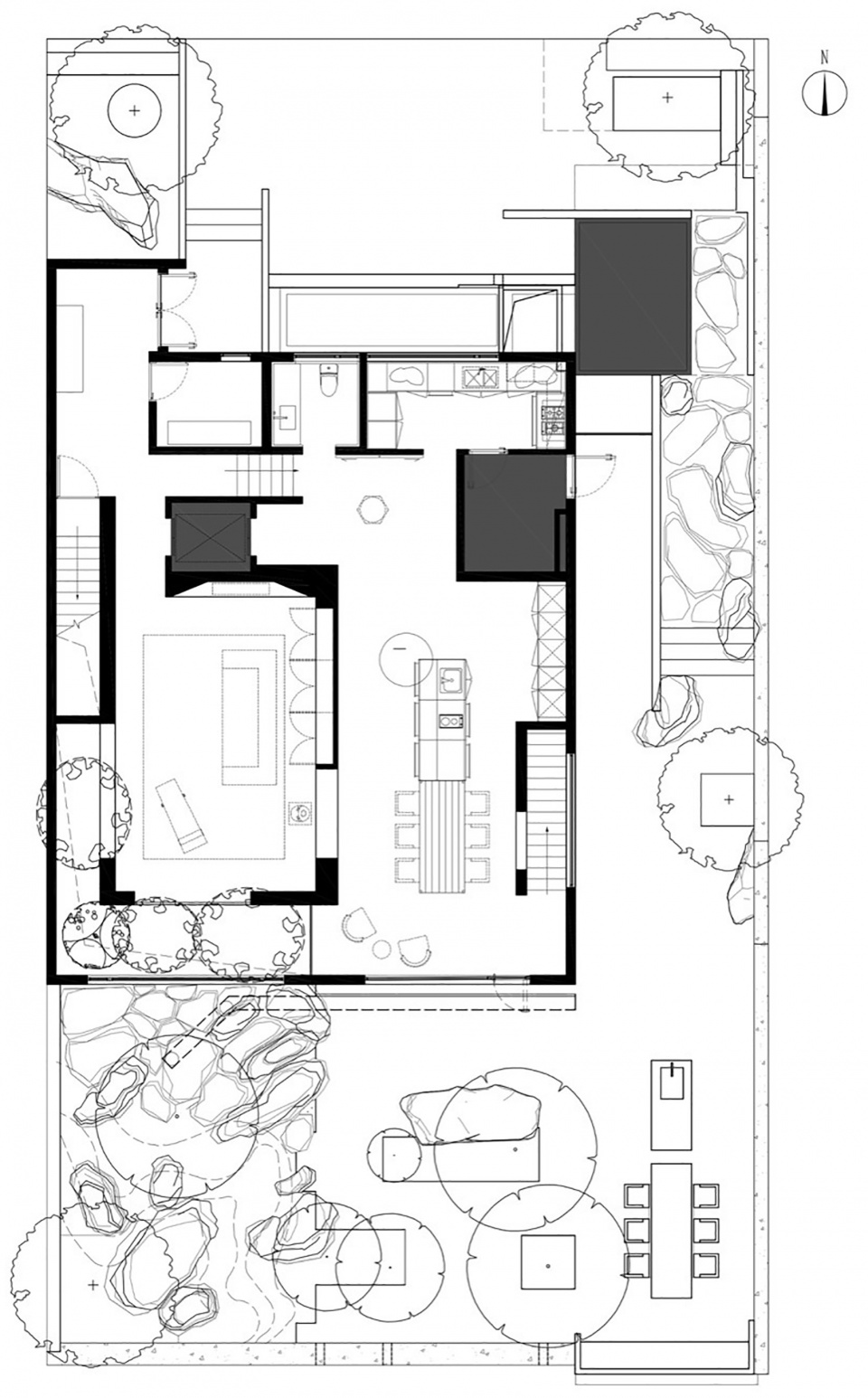
▼一层平面图,1f plan

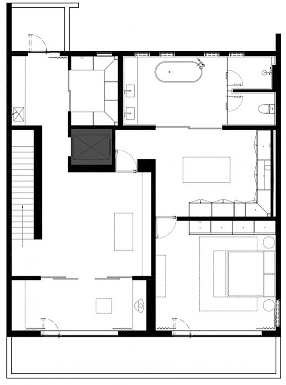
▼二层平面图,2f plan

▼三层平面图,3f plan

▼地下层平面图,basement plan

▼剖面图,sections




项目信息
项目地点:中国北京
项目类型:建筑,室内,景观
基本功能:私人住宅
建成年份:2025年
建筑规模:650平方米
建筑及室内设计:左通右达建筑工作室Atelier About Architecture
主持建筑师:王旎
设计团队:刘晓鑫 姜万春 董宁 李旸 廖鸿兴 克霞
景观团队:李昕 刘帅 曹积学 吴紫颖
灯光团队:Viabizzuno,北京众信恒瑞照明设计有限公司
结构顾问:马智刚
施工团队:智营造装饰工程有限公司
项目负责人:陶智,陆海荣
木工:苏锦忠,杨桂生
机电:贺贵新,黄建彬
油工:孙宏旗,王卫彬,吴春建,马艳蕊
磨石工:梁正六,高中庆
瓦工:曹晓峰
门窗顾问:李祚岐
摄影师:朱雨濛
Project information
Project location: Beijing, China
Project Type: Architecture, Interior, Landscape
Basic features: private residence
Year of built: 2025
Building scale: 650 square meters
Architecture & Interior Design: Atelier About Architecture
Principal Architect: Wang Ni
Design team: Liu Xiaoxin, Jiang Wanchun, Dong Ning, Li Yang, Liao Hongxing, Kexia
Landscape team: Li Xin, Liu Shuai, Cao Jixue, Wu Ziying
Lighting team: Viabizzuno, Beijing Zhongxin Hengrui Lighting Design Co., Ltd
Structural Consultant: Ma Zhigang
Construction team: Zhizao Decoration Engineering Co., Ltd
Project Leader: Tao Zhi, Lu Hairong
Carpentry: Su Jinzhong, Yang Guisheng
Electromechanical: He Guixin, Huang Jianbin
Oilers: Sun Hongqi, Wang Weibin, Wu Chunjian, Ma Yanrui
Grinder: Liang Zhengliu, Gao zhongqing
Bricklayer: Cao Xiaofeng
Photographer: Zhu Yumeng














