前海珑湾国际人才公寓,深圳 / Foster + Partners
前海珑湾国际人才公寓项目是专为高强度、以工作为中心的生活方式的专业人士打造的新型建筑类型。Foster + Partners设计的两座相连塔楼呈扇形布局,以优化景观与采光,并在外侧最大化隐私性,并在中央区域营造集中式的公共空间。目前,首批住户已入住。
The first tenants have moved into Grand Bayview Qianhai, a new building typology that is aimed specifically at professionals who have an intensive work-centred lifestyle. Designed by Foster + Partners, the two connected towers are arranged in a fan shape to optimise views and daylight, maximise privacy on the outer radius, and provide focused communal areas at the centre of the scheme.
▼项目概览,project overview

▼地面绿化与建筑,ground greening and the tower

▼外立面,external facade

项目中的两栋高达180米的住宅塔楼由一座大型半公共花园相连,并与周边绿带相接,延伸了地面层的使用体验。二层平台与桂湾的高架步道网络无缝衔接,形成邻近地块之间的过渡空间,同时为公众打造了可享用的绿色城市绿洲。随着住户在楼内向上移动,各层的绿色露台提供共享的公共休憩空间。柔和的植物景观营造出宁静的氛围,当住户从电梯中走出时,便能感受到设计带来的安定与舒缓。
Rising to 180 metres, the two apartment buildings are linked by a large semi-public garden that connects with adjacent greenbelts, extending the experience of the development at ground level. A deck on level two seamlessly connects with the elevated walkway network of Guiwan, providing a transitional space between neighbouring sites and creating a green urban oasis for the public to enjoy. As residents travel up through the buildings, green terraces provide shared communal spaces for relaxation across all levels. Soft planting on the terraces creates a calm and atmospheric sense of arrival, as residents step out from the lifts.
▼入口空间,entrance space

▼空间细部,entrance space details

塔楼的空中花园为所有住户共享,既能提供城市全景,也可支持多种活动,如健身课程与策划活动。每座空中花园均为三层通高空间,结合遮阳百叶与绿植,营造出更为私密与专属的氛围。
The towers’ sky gardens are a shared space for all residents. They offer spectacular views across the city and facilitate a wide range of activities, such as exercise classes and curated events. Each sky garden is a triple height space with louver shading and planting, offering a more private and exclusive atmosphere.
▼空中花园,sky gardens



住宅单元的设计极具灵活性,可在未来进行组合。模块化建造方式使预制成为可能,从而节省时间并确保质量控制。项目通过减少施工过程中混凝土的使用,降低了隐形碳排放。整个地上主体结构采用在临近区域预制完成的轻型钢材。建筑围护结构也尽可能采用预制,并在场外进行组装。
Units are designed to be extremely flexible and can be combined in the future. Modular construction allowed for prefabrication, saving time and ensuring quality control. The project reduced embodied carbon by minimising the use of concrete during construction. The entire superstructure, located above ground, is made from lightweight steel and was fabricated in a nearby region. The building envelope is prefabricated and was assembled off-site whenever possible.
▼共享露台,shared terraces

▼总平面图,site plan drawing

▼标准层平面图,Typical floor plan

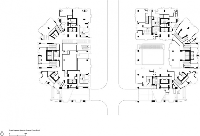
▼底层平面图,ground floor plan

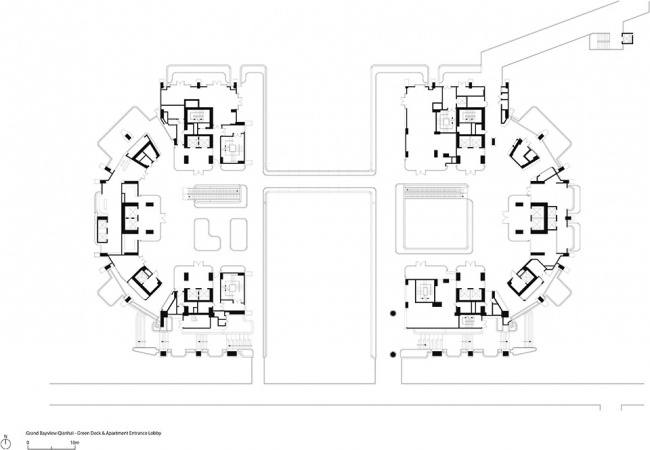
▼入口大堂平面图,Floor plan of the entrance lobby

▼屋顶平面图,roof plan

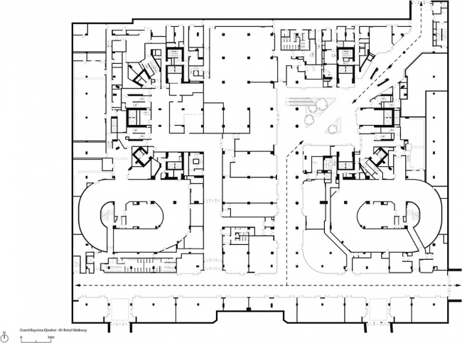
▼地下1层平面图,B1 floor plan

▼立面图,elevation drawing


▼剖面图,section drawing















