Pazzallo住宅,瑞士 / cerbi zaccara architetti
这座住宅位于卢加诺圣萨尔瓦托雷山(Monte San Salvatore)山坡上的一处历史村落边缘。场地原本是一块小型梯田,用作菜园与葡萄园。
The house is situated on the edge of a historic village, on the slopes of Monte San Salvatore in Lugano. The site was originally a small terraced plot, once used as a vegetable garden and vineyard.
▼住宅外观,exterior of the house



项目试图以简洁的建筑手法,综合呈现设计过程中形成的核心原则与愿景:在起居空间与花园之间建立理想的连续性;捕捉越过村落屋顶的最佳景观视野;以当代方式重新诠释场地的梯田形态;在历史村落中创造一个高品质的“留白”,尤其在建筑影响力最为突出的地方。
The project set out, through a concise architectural gesture, to synthesis all the principles and aspirations that emerged during the design process:
The desire to create an ideal continuity between the living spaces and the garden, The ambition to capture the most beautiful possible views across the landscape, visible above the rooftops of the village, The preservation of the terraced form of the land, reinterpreted in a contemporary way, The creation of a high- quality void within the historic village, in a place where the house’s impact is at its boldest.
▼在历史村落中创造一个高品质的“留白”,creation of a high- quality void within the historic village


建筑构造刻意保持简明直接,由两个实体体量、一根立柱与三道地面台阶构成。主要的结构元素同时也是立面——一对Vierendeel桁架梁。其中一端落地,另一端则连接至第二个垂直体量(亦为梁体),它同样支撑于地面与一根立柱之上。
The construction is intentionally kept simple and direct, formed from the interplay of two solid volumes, a pillar and three ground terraces. The main structural elements, which also serve as façades, are a pair of Vierendeel beams. One end of each rests on the ground, while the other connects to a second perpendicular volume, also functioning as a beam, that in turn rests on the ground and on a pillar.
▼简明直接的立面,simple and direct facade


▼一层中庭,courtyard on the ground floor


这些梁体的正交交织,借由场地的干砌石墙与偏置的立柱支撑,与周边环境形成雕塑般的张力。混凝土的厚重感被木质楼板柔化,密集排列的裸露梁条赋予空间节奏。
The orthogonal intersection of these beams, supported by the site’s dry-stone walls and an offset pillar, creates a sculptural tension with the surrounding context. The physical presence of concrete is softened by the wooden slabs, with their dense rhythm of exposed beams.
▼梁体的正交交织,The orthogonal intersection of these beams


材料的对比使用——外部结构为混凝土,楼板为木材——不仅保证了良好的热工性能,也有效控制了热桥效应。
The use of contrasting materials, concrete for the external structure and wood for the slabs, ensures good thermal performance and effective control of thermal bridging.
▼楼板为木材,wood for the slabs


住宅共两层:底层位于主楼下方,设有宽敞的厨房、门廊与书房;一层则布置卧室、浴室与客厅,布局清晰简明。
The house is arranged over two levels. The ground floor accommodates a large kitchen, a porch, and a study, all located beneath the main volume of the building, which forms the first floor. The first floor contains the bedrooms, bathrooms, and living room, organized in a straightforward layout.
▼卧室空间,bedroom space

▼走廊空间,corridor space


▼浴室空间,bathroom space

屋顶被设计为一处露台,可直接从花园进入。
The roof of the house is designed as a terrace, accessible directly from the garden.
▼屋顶露台,The roof of the house is designed as a terrace

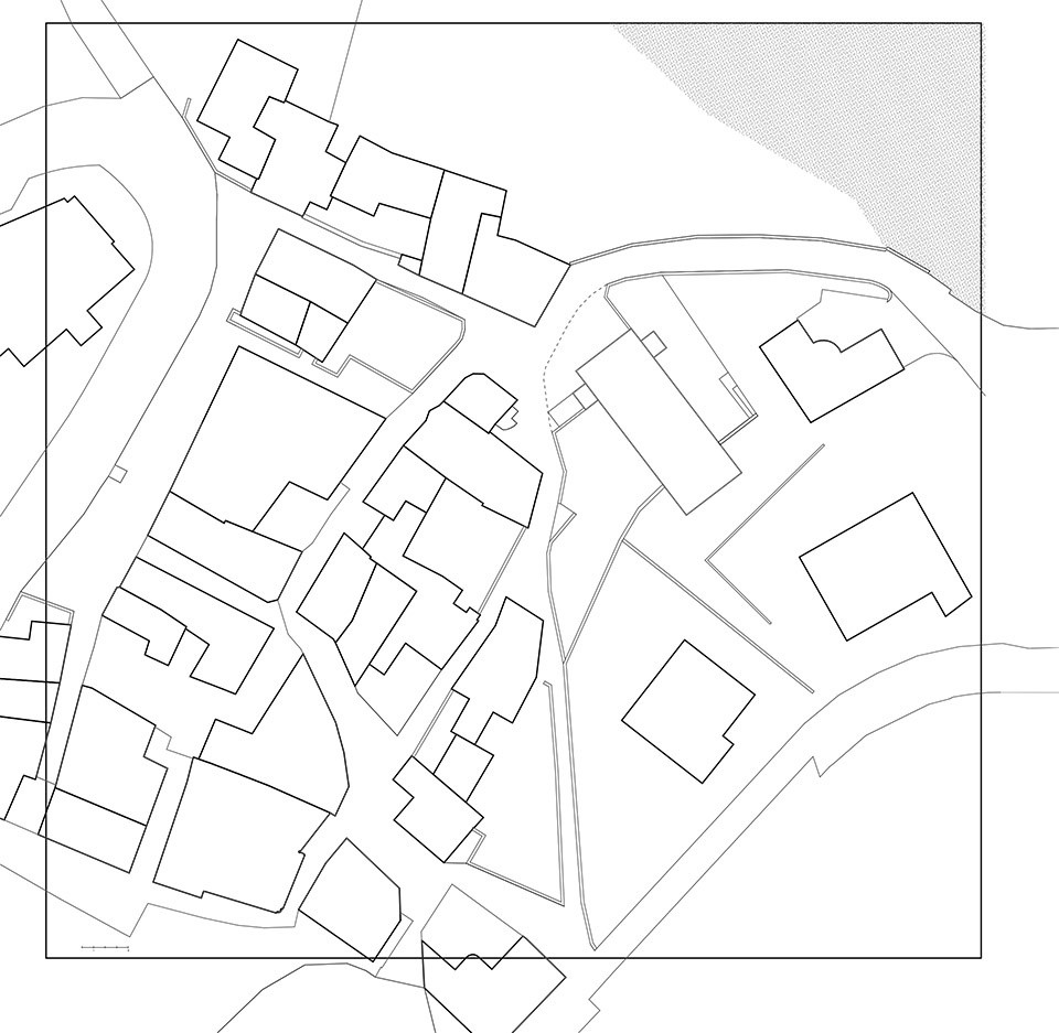
▼场地平面,site plan

▼平面图,plan

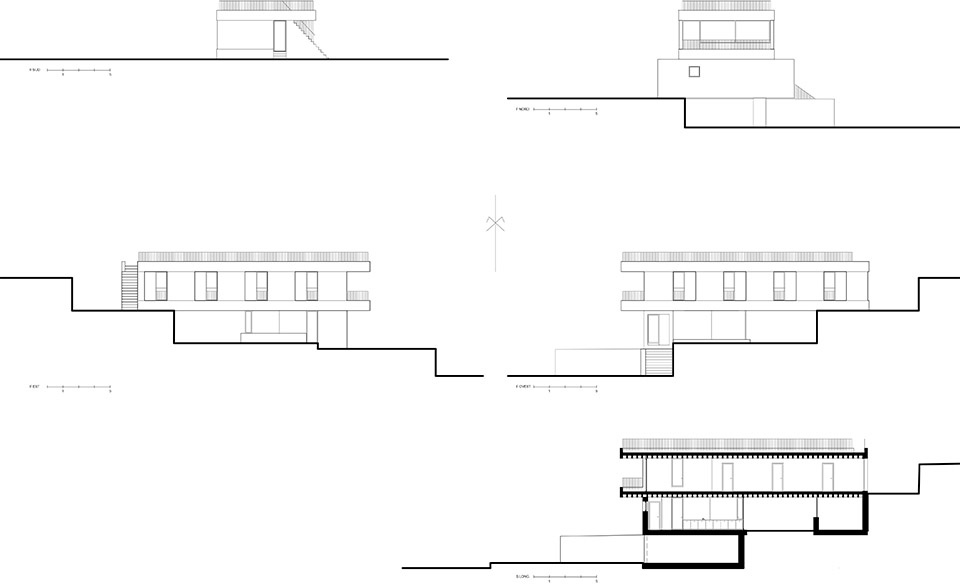
▼立面及剖面,elevation and section

Civil Engineer for Concrete: Alessio Casanova, Casanova Ingegneria SA, CH 6912 Pazzallo.
Civil Engineer for Wood: Stefano Fiorello, IT 23862 Civate (Lecco).
Physicist and Fire Engineer: Donatello Cairoli, Uce Sagl + Cispi Sagl, CH 6900 Paradiso.
Concrete Construction: Regazzoni Sa, 6900 Lugano.
Wooden Flooring: PGF Holz & Bio AG, CH 7500 St. Moritz.
Windows: Ormanni Sagl, 6742 Pollegio.
Kitchen: Reform Furniture Germany GmbH, DE 10178 Berlin














