斯特劳森地下水抽水站,奥地利 / firm Architekten
为满足霍尔布兰茨(Hörbranz)市镇日益增长的用水需求,现有的抽水站将被一座新建筑所取代。地下水的取水与处理将在此项目中得到面向未来的升级。
In order to take into account the increased water demand of the market town of Hörbranz, the existing pumping station will be replaced by a new building. Groundwater extraction and treatment will be made fit for the future.
▼建筑外观,Exterior of the building

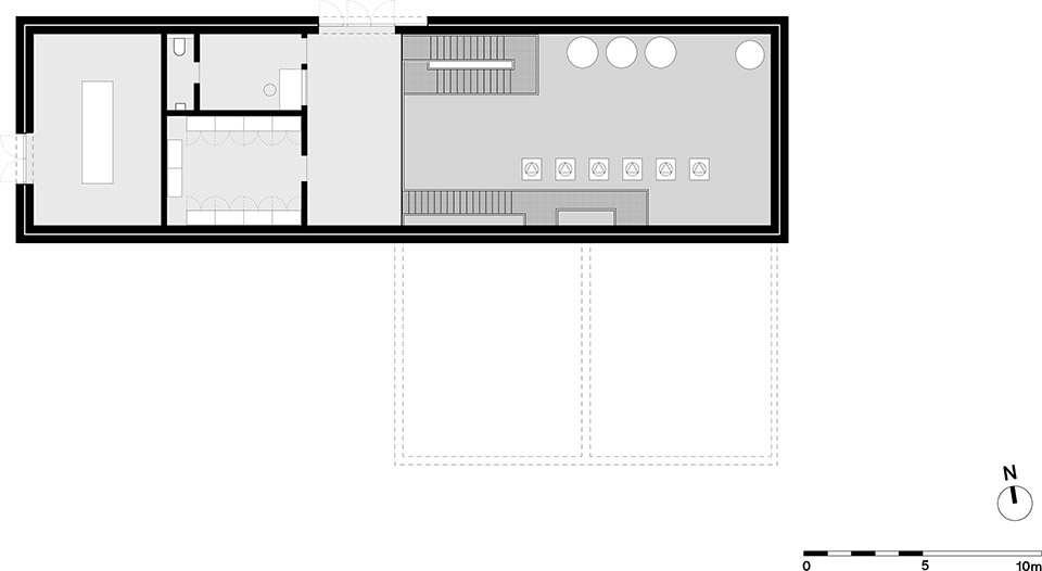
新建筑除包含垂直滤井外,还设有深水池、增压系统、控制与开关装置,以及备用电源系统。除了地下水取水功能外,该建筑还确保与邻近城镇洛豪(Lochau)的紧急供水连接。
In addition to the vertical filter well, the building also includes a deep tank, a pressure booster, switching and control system and a power replacement (emergency power system). In addition to groundwater extraction, the new building ensures an emergency connection with the neighbouring municipalities of Lochau
▼混凝土浮雕立面,the concrete relief façade

▼建筑与环境,building and environment

新的抽水站采用混凝土浮雕立面,出于安全原因不设窗户。混凝土立面的重复性浮雕将建筑划分并赋予结构感。随着阳光角度的变化,这一浮雕效果也会呈现不同的视觉强度。由于建筑独立矗立于空旷草地之上,这种立面肌理被设计为在远距离外亦可感知。
The new pumping station has a concrete relief façade that does not have windows for safety reasons. The recurring relief of the concrete façade divides and structures the building. The relief is perceived with varying intensity depending on the sun’s rays. This structure is designed in such a way that it can also be perceived from a distance, as the building stands alone on an open meadow.
▼立面的光影变化,the changes in light and shadow on the facade


▼金属大门,the metal gates

两扇大型金属大门采用深蓝色搪瓷,呼应了深水池中的水。建筑内部,墙壁与天花板均保持混凝土的原始可见状态。钢制楼梯同样使用与大门一致的蓝色,而天花板上的轨道吊车则特意点缀以绿色,形成鲜明的色彩对比。
The two large metal gates are made of dark blue enamel, which is a reference to the water in the deep tanks. Inside the building, the concrete remains visible both on the walls and on the ceiling. The steel stairs are designed in the blue of the gates. With the rail crane on the ceiling, a colour accent in green is deliberately set.
▼天花板上的轨道吊车,the rail crane on the ceiling


▼内部设备,internal equipment


▼总平面图,site plan

▼平面布置图,floor plan

▼立面图,elevation drawing

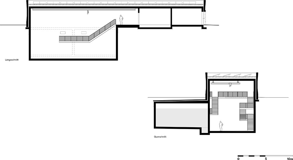
▼剖面图,section drawing

architecture: firm Architekten, www.firm.ac
overall management: Rudhardt+Gasser+Pfefferkorn Ziviltechniker
client: Marktgemeinde Hörbranz
site: Hörbranz, Österreich
size: 245 m²
planning: 2020 – 2022
construction: 2023 – 2025
photography: Adolf Bereuter














