兰亭,墨西哥 / FGP Atelier
▼项目概览,project overview

兰亭位于墨西哥瓦哈卡市中心的民族植物园内,该园区坐落于圣多明各·德·古斯曼教堂及其修道院(建于1572–1666年)围墙之内——如今已成为圣多明各植物园。亭阁坐落于世界上生物多样性最为丰富的生态环境之一,同时也是一系列文化体验的一部分。其设计作为一座当代文化建筑,与周围的历史语境形成鲜明对比,核心理念是最小化资源使用与环境影响。2018年,该建筑被《Architect’s Newspaper》评为北美最具可持续性的建筑。
▼项目区位,project location

The Orchid Educational Pavilion is located in the Ethnobotanical Gardens, which is in the heart of Oaxaca, Mexico within the walls of the Church and former monastery of Santo Domingo de Guzman (constructed 1572-1666) – now the Botanical Gardens of Santo Domingo. The Pavilion sits within one of the most biologically diverse ecologies in the world and as part of an ensemble of cultural experiences. The Pavilion is conceived as a contemporary cultural building in contrast with its historic context around the idea of minimum use of resources and minimum environmental impact. It has been recognized by the architect’s newspaper as the most sustainable building in North America in 2018.
▼项目鸟瞰,bird ‘s-eye view of the project

▼周围的历史语境,the historic context

1994年夏天,墨西哥艺术家弗朗西斯科·托莱多(Francisco Toledo)、路易斯·萨拉特(Luis Zárate)以及人类学家兼生物学家亚历杭德罗·德·阿维拉(Alejandro de Avila)共同着手打造一个文化组合体,后来发展成为圣多明各植物园。他们希望以一座亭阁为这一成就加冕,用于培育多样物种、开展实验,并面向社区开展教育。亭阁的设计由总部位于芝加哥的建筑师弗朗西斯科·冈萨雷斯·普利多(Francisco Gonzalez Pulido)主导,在设计初期便很快明确:这座亭阁不应与环境竞争,而应予以回应与映照。重要的是创造一个“透镜”,通过它来观照和提炼这一环境,同时也成为未来深入理解其生态与文化的平台。
In the summer of 1994, Mexican Artists Francisco Toledo and Luis Zárate and the Anthropologist and Biologist, Alejandro de Avila began creating the cultural ensemble that would become the Botanical Gardens of Santo Domingo. They hoped to crown their achievement with a pavilion for growing diverse species, conducting experiments, and teaching the community. After the design of the pavilion started with Chicago-based architect Francisco Gonzalez Pulido, it quickly became clear that the Pavilion should reflect rather than compete with this context. It was important to create a lens through which this context could be seen and refined as well as a platform for learning more about this context and its ecology in the future.
▼回应与映照环境,reflect the context

兰亭旨在通过可持续系统(零能耗)为培育多样物种提供适宜条件,同时保持建筑本身的最低侵入性。它被设想为一件互动性的教育工具,用以向未来世代展示该地区丰富的生物多样性,并激发更广泛的可持续建筑实践。亭阁运作所需的少量能源——用于被动式冷却与灌溉系统——由远程太阳能板与地热系统提供。同时,其模块化单元设计使得建筑能够根据需要进行扩展、拆解或整体迁移。
The Orchid Educational Pavilion is intended to support the conditions for growing diverse species through sustainable systems (zero energy) while being a minimally invasive building. It is designed as an interactive tool to educate future generations in the vastness of the biodiversity of the region and inspire broader implantation of sustainable architecture. The small amount of energy it needs for its passive cooling and irrigation systems is provided by remote solar panels and a geothermal system. At the same time, modular units allow the structure to be extended, dismantled, or moved entirely if necessary.
▼互动性的教育工具,an interactive tool to educate

▼模块化单元的设计,the design of modular units

这座亭阁通过其独特的材料运用及对环境的框景方式,在植物园中营造出与众不同的体验。作为一个完全自给自足的生态系统,它不仅引导参观者思考如何以更可持续的方式生活,也促使人们反思维系脆弱物种生存所需的条件,以及在未来维系我们自身脆弱生存所可能需要的条件。
The Pavilion provides a unique experience within the Botanical Gardens through its materiality and the way that it frames its context. An entirely self-sustaining ecosystem, it challenges visitors to consider how they might live in a more sustainable manner as well as to reflect on what is required to sustain the life of delicate species and that might be required to sustain our own delicate existence in the future.
▼独特的材料运用,unique materiality

▼温室内的植物景观,the plant landscape in the greenhouse

▼屋顶细部,roof details

在设计过程中,“完全透明”的理念至关重要。楼梯与观景平台的地板采用开放式格栅铺板,使光线与视线能够从各个方向进入室内空间。亭阁的设计基于五个要素:西侧温室(热室)、东侧温室(冷室)、中央楼梯(用于收集雨水)、观景平台以及地热系统。东西两侧的温室为矩形玻璃盒体,沿南北轴线布置,以激发自然交叉通风。它们位于中央楼梯两侧,并按照截然不同的热工标准进行设计。
The idea of total transparency was critical in the design. The flooring planks for the staircase and the viewing platform are an open grid to allow light and views from all directions into the chambers. Its design is based on five elements: the west chamber (hot chamber), the east chamber (cool chamber), the central staircase (which collects rainfall), the viewing platform, and the geothermal system. The east and west chambers are rectangular glass boxes oriented on the north-south axis to provoke natural cross ventilation. They are located on either side of the central staircase and designed to run on very different thermal criteria.
▼楼梯,the staircase

▼外立面细节,facade details

▼观景平台,the viewing platform

建筑的环境调节依靠地热系统实现:冷空气由地下土层输送,经由两台由太阳能板供能的空气处理机注入温室。中央楼梯引导参观者穿过温室到达观景平台,在此不仅可饱览教堂与植物园的壮丽景致,还能从高处视角审视经过精心策展的植物内容。楼梯下方设有雨水收集与储存装置,为蒸发冷却系统提供水源,以支持制冷与灌溉功能。
The conditioning is provided through a geothermal system that injects cold air into the chambers from the underground soil via 2 air-handling units that are powered by solar panels. The central staircase brings the visitors through the chambers up to the viewing platform from where stunning views into the church and the botanical gardens can be experienced as well an opportunity to contemplate the curated plant content from an elevated perspective. Underneath the staircase, rainfall is collected and stored to be used by the evaporative cooling system that supports the cooling and irrigation systems.
▼不同的观景体验,different viewing experiences

在确定了形式与结构之后,系统与材料的选择进一步依据弗朗西斯科·冈萨雷斯·普利多(Francisco Gonzalez Pulido)提出的“隐形系统”理念加以细化。沃纳·索贝克(Werner Sobek)进一步完善了结构系统,而舒勒(Schuler)则负责地热系统的设计。因为建筑的大部分构件均由瓦哈卡的工匠在现场手工制作、加工并组装完成,当地最终承担施工的工匠与材料供应商也被纳入团队。许多人原本从事的是更熟悉历史建筑修复的工种,他们对细节的专注使他们能够以延续瓦哈卡数百年来建筑传统的精湛工艺,建造出一座高度复杂的当代建筑。
Having determined the form and the structure, the systems and materials that would be employed were refined based on Francisco Gonzalez Pulido’s concept of invisible systems. Werner Sobek further developed the structural system, while Schuler designed the geothermal. Since most of the building has been hand-crafted, manufactured and assembled on site by artisans from Oaxaca, the local craftsmen and material suppliers who ultimately would build the Pavilion were added to the team. Many of these men were from trades in the city that were more accustomed to restoring historic structures. They brought an attention to detail that allowed them to build a highly sophisticated modern work of architecture with the craftsmanship that has defined the buildings of Oaxaca for centuries.
▼结构系统,the structural system


▼复杂的结构体系,a complex structural system

▼悬挂植物的天花板,the ceiling hanging plants

▼高度复杂的当代建筑,a highly sophisticated modern work of architecture

最终,兰亭的建成所传达的是一种更大的自由与可持续性,旨在帮助使用者过上更富有创造力与生产力的生活。它标志着一种转变——从依赖于僵硬固定几何、可以被部署到世界任何场所的严格形式化居住方式,走向一种生态化的建筑方法。这种方法不仅仅是优化能源性能或将建筑对象纳入更广阔的系统之中,而是通过建筑语言来呈现生态本身,界定材料性、建构逻辑,以及系统、空间与功能的层级关系。
The result is a building that expresses greater freedom and sustainability in order to help the inhabitants live a more productive and creative life. It marks a shift from a strictly formal approach to dwelling relying on rigid fixed geometries that can be deployed to any site around the world to an ecological approach that does not merely optimize energy performance or integrate the architectural object into a broader system, but rather manifests the ecology in an architectural language defining materiality, tectonics, and a hierarchy of systems, spaces, and programs.
▼生态化的建筑方法,ecological construction methods

▼设计手稿,design manuscript


▼轴测图,axonometric drawing

▼平面图,floor plan

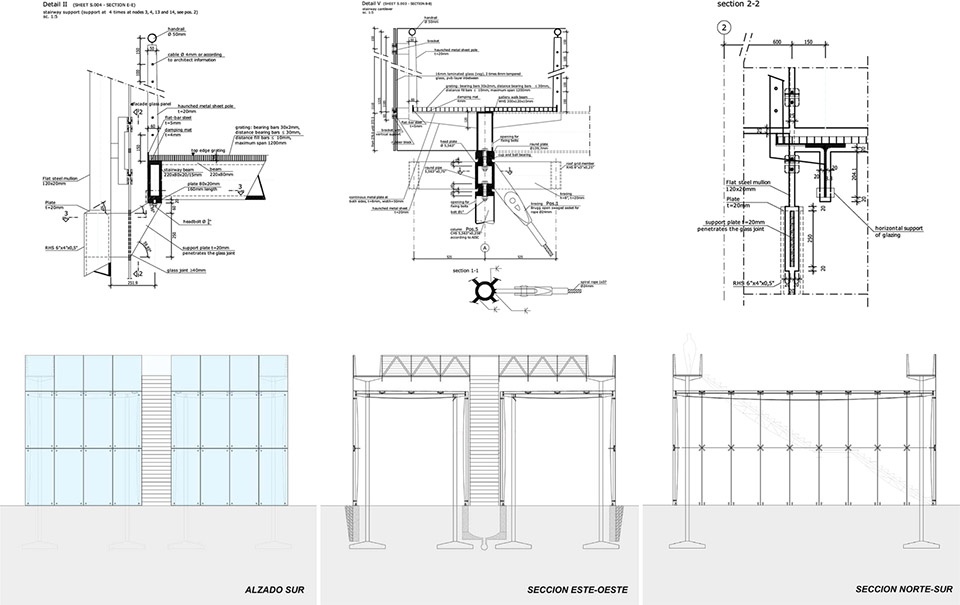
▼细部图纸,detail drawing

Project name:Orchid Educational Pavilion
Project type:Greenhouse
Design:FGP Atelier
Website:www.fgp-atelier.com
Contact e-mail:info@fgp-atelier.com
Completion Year:2018
Lead Architect:Francisco Gonzalez Pulido
Project location:Jardín Etnobotánico de Oaxaca, Oaxaca, Mexico
Gross built area:100㎡
Client: Jardin Etnobotanico de Santo Domingo de Guzman
Consultants: Werner Sobek Engineers and Transsolar
Photo credit: Rafael Gamo
Glass: Saint Gobain
Steel: Aceros de Monterrey
Hardware: Aluvisa
Concrete: Cemex














