克莱蒙特·麦肯纳学院罗伯特·戴科学中心,美国 / BIG
克莱蒙特·麦肯纳学院(CMC)的新罗伯特·戴科学中心,完美诠释了多学科融合与互动的设计理念。这座占地1.25万平方米的建筑设计独特,每一层的朝向各不相同,巧妙地引导师生在实验室、教室及校园各处自由流动,激发思想的碰撞。
The new Robert Day Sciences Center at Claremont McKenna College maximizes multidisciplinary integration and interaction: each level of the 135,000-sq-ft building is oriented in a different direction, channeling the flow of people and ideas between the labs, classrooms, and the surrounding campus.
▼鸟瞰,Bird’s eye view

▼周边环境,Surrounding context

罗伯特·戴科学中心于2020年启动,服务于1400名学生。该中心是BIG建筑事务所在洛杉矶的首个建成项目,也是CMC罗伯茨校区总体规划中率先竣工的建筑。设计通过一系列建筑延伸中央长廊,并与毗邻的在建体育场相连,旨在打造更加一体化的校园空间。科学中心的合作方包括结构工程公司Saiful Bouquet、总承包商KPRS以及施工管理方IDS房地产集团。
▼轴测图,ago

Commissioned in 2020, the Robert Day Sciences Center serves a community of 1,400 students. The center is BIG’s first built project in Los Angeles, and the first completed building in the BIG-designed masterplan for CMC’s Roberts Campus, which envisions a more unified campus shaped by a series of buildings that extend the central mall and adjacent sports bowl currently under construction. Collaborators on the Sciences Center include Saiful Bouquet as Structural Engineer, KPRS Construction as General Contractor, and IDS Real Estate Group as Construction Manager.
▼外观概览,Exterior view


▼顶视图,Top view


▼局部顶视图,Partial top view


罗伯特·戴科学中心位于校园东端,俯瞰着鲍尔迪山的美丽景致,地处第九街与克莱蒙特大道的交汇处。它不仅成为校园的新门户,还巧妙地加强了与其他学术部门的紧密联系。高达4.5米的悬浮天篷气势磅礴,迎接着学生、教授、教职员工和访客的到来,引导人们进入一个充满生机与自然采光的多层中庭。
▼分析图,analysis

With views of Mount Baldy, the Robert Day Sciences Center is positioned on the eastern edge of campus at the corner of Ninth Street and Claremont Boulevard – creating a new gateway to the school and strategically facilitating strong connections to other academic departments. A dramatic 15-ft hovering canopy welcomes students, professors, staff, and visitors, drawing them into a sky-lit multilevel atrium buzzing with life and movement.
▼街道测视角,Street view

▼建筑立面,Facade

▼立面近景,Facade close view

▼从操场看向建筑,Looking towards the building from playground


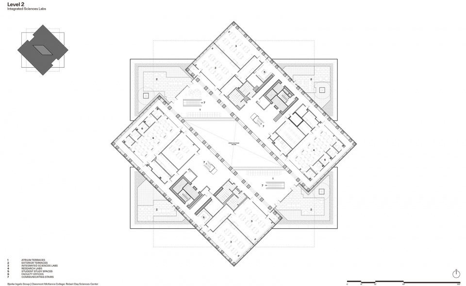
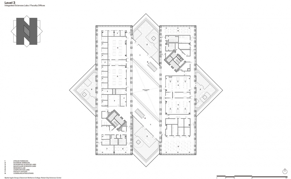
这座建筑的结构设计由两组叠加的体块构成,每对体块相对于下层楼面旋转45度。旋转体块之间的空隙形成了建筑中心的全高中庭,可直接俯瞰各楼层教室和研究空间。中庭的开放空间不仅鼓励协作与交流,也体现了建筑概念与教育理念的高度融合。外立面采用玻璃纤维增强混凝土板,呈现木材般的纹理,同时具备现代实验室所需的耐用性与防火性能。屋顶上覆盖的1021平方米太阳能电池板每年可提供约342兆瓦时的能源。
The building’s structure is designed as a stack of two volumes, with each pair rotated 45 degrees from the floor below. The voids of the rotated blocks create the full-height atrium at the heart of the building, which provides direct views into classrooms and research spaces from all levels. The open spaces within the atrium invite collaboration, embodying the center’s architectural and educational approach. The facade incorporates board-formed panels of glass fiber reinforced concrete, which create a wood-like texture while providing the durability and fire resistancerequired for a modern laboratory. The roof’s 11,000 sq ft of solar panels provide about 342 megawatt hours of energy production per year.
▼入口处,Entrance

▼室外露台,Terrace

建筑内部的每一层都悬挑于下层之上,三角形钢桁架构成支撑结构,外覆道格拉斯冷杉木。将桁架的纹理、节奏与几何形态延续至建筑外部,巧妙地实现了室内与室外的自然过渡。中庭内设有一座大型楼梯,既是社交与休闲的场所,又连接着首层、二层和咖啡馆,成为建筑中心充满活力的交流与聚集空间。
Inside, each level bridges the level below, supported by triangular steel trusses clad in Douglas fir. The texture, rhythm, and geometry of the trusses carry through to the exterior, creating a seamless transition from inside to outside. The atrium features a large staircase meant for socializing and relaxing that connects the first two floors and a café, creating a lively hub in the center of the building.
▼入口大厅,Entrance hall

▼中庭空间,Atrium


▼中庭的大型楼梯,The huge stairs

由艺术家达米安·奥尔特加创作的雕塑《磁场》悬挂在9米高空,作品由18个金属环和1,476颗色彩鲜艳的玻璃球组成,漂浮在轨道上,细节丰富,仿佛再现了地球的磁层。
Suspended 30 ft in the air, Magnetic Field by Damien Ortega – an intricate sculpture of Earth’s magnetosphere -floats in orbit, composed of 18 metal rings and 1,476 vibrant glass spheres.
▼雕塑《磁场》,Magnetic Field

▼悬挂在9米高空,Suspended 9 meters above the ground

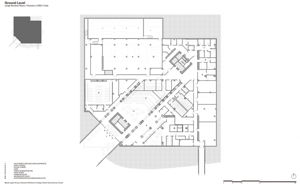
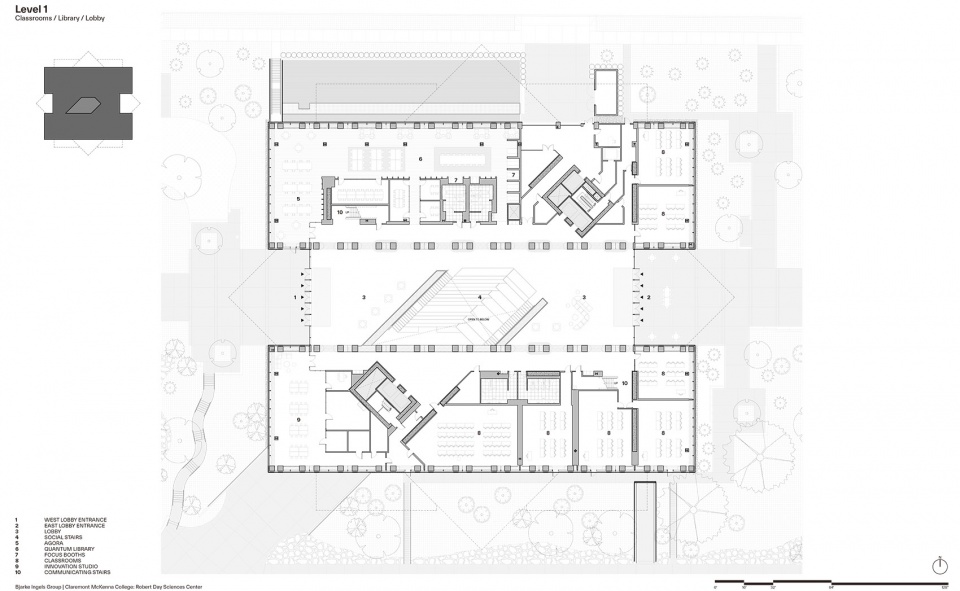
首层设有麦克尔威论坛(McElwee Forum)、大型研讨空间和影像室,教室、研究空间、干湿实验室、量子图书馆和创客空间则分布在上层。教室环绕建筑外围布局,既能欣赏美景,又与下层中庭和社交空间形成有效的隔离。
The ground floor includes the McElwee Forum, a large seminar space, and imaging suites, while classrooms, research spaces, dry and wet labs, the Quantum Library, and a maker’s space are located on the upper floors. Classrooms areorganized around the perimeter of the building, offering picturesque views while keeping them separate from the atrium and social spaces below.
▼教室,Classroom


▼研讨空间,Seminar space


▼实验室,Laboratory

▼自习空间,Study space

▼公共学习空间,Public learning space



贯穿整座建筑的暖色调木质外墙和混凝土地板,与学校标志性的红色与金色相得益彰。由BIG设计的室内空间充分考虑了未来科学创新的需求,巧妙融入了可按需配置的教室和模块化座椅等灵活元素。
Throughout the building, warm wood cladding and concrete floors are accented with the school’s signature colors of red and gold. The BIG-designed interiors are designed to accommodate future scientific innovation, incorporating elements such as reconfigurable classrooms and modular seating.
▼暖色调材质,Warm-toned materials


▼材质细部,Material details

八个户外屋顶平台沿“条形”建筑的轮廓边缘布局,平台可俯瞰北侧山脉、西侧校园以及东侧体育场的全景。这些多功能空间可灵活用作户外教室、自习区或社交场所,并种植了本地植物。罗伯特·戴科学中心目前正在申请LEED金级认证。
Eight outdoor rooftop terraces located on the corner perimeters of each ‘bar’ offer sweeping 360-degree views of the mountains to the north, the campus to the west, and the sports bowl to the east. These multifunctional spaces, landscaped with native flora, are designed to be used as outdoor classrooms, study areas, or places to meet. The Robert Day Sciences Center is aiming for LEED Gold.
▼夜览,Night view




当天色渐晚,罗伯特·戴科学中心如灯塔般屹立在科学思想、研究和创新的交汇处,在圣盖博山脉的映衬下熠熠生辉。它不仅是CMC东大门的标志性建筑,更将校园打造成一个充满活力、激发灵感的探索之地。
As day turns to night, the Robert Day Sciences Center continues to serve as a beacon for the confluence of scientific ideas, research, and innovation. Standing illuminated against the backdrop of the San Gabriel Mountains, the center not only anchors CMC’s eastern gateway, but transforms the surrounding campus into a vibrant, inspiring place of discovery.
▼首层平面图,ground floor plan

▼二层平面图,first floor plan

▼三层平面图,second floor plan

▼四层平面图,third floor plan

▼立面图,elevation




▼剖面图,section


▼结构细部,details


项目详情
PROJECT FACTS
Name: Claremont McKenna College Robert Day Sciences Center
Size: 135,000 sq ft
Location: Claremont, California, United States
Client: Claremont McKenna College
Design Architect and Architect of Record: BIG
Collaborators: Saiful Bouquet, Acco Engineered Systems, Atlas Civil Design, MRY, Rosendin Electric, WSP USA,
Jacobs, ARUP, KGM Architectural Lighting, Heintges, KOA, EWCG, KPRS, Herrick, Hortus Environmental Design, IDS
Real Estate Group, Kleinfelder, Salamander, Code Consultants Inc
BIG TEAM
Creative Director: Bjarke Ingels
Partner-in-Charge: Leon Rost
Project Manager: Aran Coakley
Technical Lead: Amir Mikhaeil
Project Leader: Lorenz Krisai
Team: Abigail Meyer, Ahmad Tabbakh, Alan Maedo, Ana Luisa Pedreira, Beat Schenk, Bernardo Schuhmacher,
Bianca Blanari, Casey Tucker, David Holbrook, David Iseri, Dylan Hames, Gus Steyer, Hector Romero, Jan
Leenknegt, Janie Louise Green, Joe Veliz, Kam Chi Cheng, Minjung Ku, Neha Sadruddin, Pooya AleDavood, Richard
Cagasca, Ryan Duval, Seung Ho Shin, Sue Biolsi, Terrence Chew, Thomas Guerra, Thomas McMurtrie, Tracy Sodder,
Vi Madrazo, Won Ryu, Yanan Ding, Yasamin Mayyas, Yen-Jung Alex Wu, Yiling Emily Chen














