W住宅扩建,泰国 / IDIN Architects
该项目是W住宅一期的扩建,源于业主对使用需求的扩大。业主希望将新宅作为主要居所,并将原有的W住宅一期改造成客房。设计的挑战来自业主的愿望——他们希望新住宅为单层建筑,让家人之间在一天的生活中都能彼此看见、互动。同时,业主十分喜爱原住宅屋顶的山景,并希望保留给两头宠物奶牛的活动空间,使它们能够在庭院中行走与吃草。
This project is an extension of the first house, W House I, due to the expansion of usage needs. The owner wanted to move to the new house as their primary residence and turn the first house, W House I, into a guest house. The design challenge arose from the owner’s desire for a single-story house where everyone in the family could see each other and engage in activities together throughout the day. At the same time, the owner greatly enjoyed the beautiful mountain view from the rooftop of the original house and wanted to maintain space for their two pet cows, allowing them to walk and graze.
▼住宅外观,exterior of the house


设计通过将这座单层住宅整体抬升至7米高,达到原住宅屋顶的高度,从而巧妙地满足了这些需求。建筑仿佛被“架空”于空中,形成类似两层的效果,而地面层则作为花园与开放空间,供奶牛活动。
▼设计策略,design strategy

The design solves these needs by elevating the single-story house to a height of 7 meters, matching the height of the original house’s rooftop. It’s as if the house has been lifted on stilts, creating a two-story effect, while leaving the ground level as a garden and open space for the cows.
▼架空的单层住宅,elevated single-story house



▼地面层则作为花园与开放空间,供奶牛活动,leaving the ground level as a garden and open space for the cows


住宅的上层设有环绕整栋建筑的阳台,可实现360度全景视野,让居住者在一天的不同时刻环行漫步、欣赏景致。泳池也被设置在这一层,与主要生活空间并列。
The upper floor of the house has a balcony around the house, allowing for a 360-degree view, so you can walk around and enjoy the view at different times. The swimming pool is also elevated to this level.
▼实现全景视野的阳台,a 360-degree view balcony

▼实现全景视野的阳台,a 360-degree view balcony

▼与主要生活空间并列的泳池,The swimming pool is also elevated to this level


建筑采用双层立面系统:内层为玻璃,外层为可开启或闭合的木百叶围合面板,以调节通透与私密的平衡。整个结构由两道大型混凝土承重墙支撑,墙体采用大跨度设计,地面结构则使用格栅板体系,不仅解决了技术难题,也为住宅带来独特的建筑特征。
The house is designed with a two-layer surface: the inner layer is glass, and the outer layer is a slatted deck that can be opened or closed for privacy. The entire structure rests on two large concrete walls, which are long-span walls, and the floor is constructed with a Waffle Slab, solving technical challenges and adding interesting features to the home.
▼结构由两道大型混凝土承重墙支撑,The entire structure rests on two large concrete walls



▼清水混凝土从室外自然延伸至室内墙面,raw concrete flowing from the exterior to the interior


W住宅二期整体使用清水混凝土,从室外自然延伸至室内墙面,形成统一的空间质感。整体氛围以温暖色调为主,木材选用原木色枫木,纹理自然清晰,与混凝土形成和谐对比。厨房区域则采用印度绿石,为空间增添现代感。
The materials used throughout W House II are raw concrete, flowing from the exterior to the interior as wall surfaces. The mood and tone of the house emphasize warm tones. The wood used is a natural tone, with maple wood selected for its distinctive grain pattern and its ability to complement concrete well. Green India stone was used in the kitchen area to give the house a more contemporary feel.
▼整体氛围以温暖色调为主,the mood and tone of the house emphasize warm tones


▼印度绿石吧台成为空间核心,the Green India stone bar counter serves as the focal point of the space


▼印度绿石吧台成为空间核心,the green marble bar counter serves as the focal point of the space

▼可在此全天相聚、交流与放松,where everyone can gather throughout the day

▼卧室空间,bedroom space


在中央起居区,设计了一张超大沙发,可灵活调整组合以适应不同活动,使其成为全屋的核心场所——家人可在此全天相聚、交流与放松。
In the central living area, an oversized sofa was designed, allowing for flexible seating arrangements to accommodate various activities, making this space the heart of the house where everyone can gather throughout the day.
▼住宅夜景,house at night



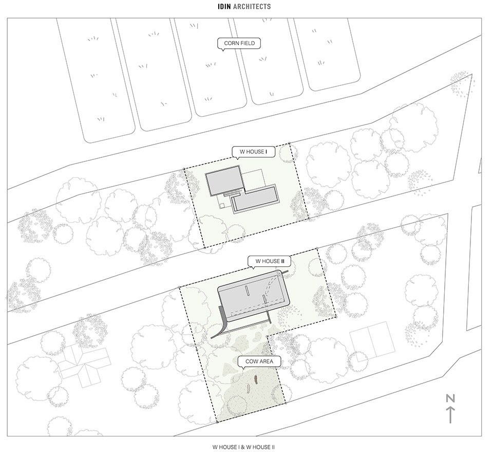
▼场地平面,site plan

▼一层平面,ground floor plan

▼二层平面,second floor plan

▼二层平面,third floor plan

▼立面图,elevation

▼剖面图,section



PROJECT TITLE: W HOUSE II
PROJECT TYPE: Private House
LOCATION: Pak Chong, Nakorn Ratchasima, Thailand
ADDRESS: Moo 10, Green Hill Valley, Pak Chong Subdistrict, Pak Chong District, Nakhon Ratchasima 30130, Thailand
CONSTRUCTION: 03/2022-11/2024
OPENING YEAR: 2024
USABLE AREA (SQM): 300
OWNER: Wittaya Warunchaichana
ARCHITECT: IDIN Architects
INTERIOR DESIGNER: IDIN Architects
LANDSCAPE ARCHITECT: P_do Landscape Studio
CONTRACTOR: WIMUTTI Construction Limited Partnership
PHOTOGRAPHER: DOF Sky | Ground














