Towarowa 22多功能综合体办公楼,波兰 / JEMS Architekci
Office House是Towarowa 22多功能综合体的第一阶段办公楼,由AFI Europe、Echo Investment 和 Archicom Collection合作建设。这个现代化的6.5公顷都市区包括了办公空间、住宅建筑、餐厅、零售服务以及文化和艺术场所。
Office House is an office building that constitutes the first phase of the multifunctional Towarowa 22 complex, a venture realized by AFI Europe, Echo Investment, and Archicom Collection. This modern, 6.5-hectare metropolitan quarter encompasses office spaces, residential buildings, restaurants, retail services, and venues dedicated to culture and the arts.
▼项目概览,overview of the project



JEMS建筑事务所的设计团队还负责了该开发项目的绿化景观和公共空间设计。项目的核心是Słowa公园,这是一个独特的花园,位于曾经的印刷厂遗址之中。这个现代主义遗产成为了设计的主要灵感来源,并在很大程度上决定了建筑的美学。
▼鸟瞰轴测图,axonometric

The architects from JEMS also designed the development’s green landscapes and public spaces. At the heart of this endeavour lies Park Słowa [Word Park] – a unique garden integrated within the remnants of a former printing house. This very modernist heritage became the primary source of inspiration; it also dictated, to a large extent, the building’s aesthetic.
▼绿化景观和公共空间,green landscapes and public spaces

一个为工作而设计的“家” A home for work, not an office block
JEMS建筑师决定创造一座打破传统办公楼形象的建筑。从语义层面入手,名字本身便有所不同。
JEMS architects resolved to create a building that shatters the traditional image of the office block. They began at the semantic level: with the word, the name itself.
▼打破传统办公楼形象的建筑,a building that shatters the traditional image of the office block

▼建筑立面,building facade

他还指出,“家”这个词带来了积极的情感联想:安全感、一个人乐于归来的地方。这正是设计师们力图创造的氛围,将现代建筑与用户舒适度融合在一起,打造一个“为工作而设计的家”。员工福祉是设计的核心,正因如此,Office House确保了与自然的无缝连接。
He also notes that the word “home” conjures up positive emotions: security, the comfort of a place one gladly returns to. This is precisely the atmosphere the designers sought to create, merging modern architecture with user comfort in their “home for work”. Employee wellbeing is a cornerstone of the design, which is why Office House ensures a seamless connection with nature.This “home for work” is designed not only to nurture the welfare of its users but also that of its surroundings. Its well-considered form, based on detailed climatic analyses, mitigates the urban heat island effect typically generated by dense traditional development.
▼建筑立面,building facade

绿化渗透建筑 Vegetation permeating architecture
Office House 的H形体量与多层公园凉亭相连。凉亭由部分玻璃的长廊构成,具有精致的格栅结构,周围被郁郁葱葱的植物包围。这个空间被设想为一个休闲区域,配有咖啡馆和餐厅。
▼概念草图,concept sketch

The H-shaped massing of Office House connects to a multi-story park pavilion. A partially glazed pergola, featuring a delicate lattice-work structure, is enveloped by lush vegetation. This space is envisioned as a recreational zone, complete with a café and restaurant.
▼公园凉亭,park pavilion


▼让花园渗透到室内,allow the garden to penetrate into the interior


对生态建筑的新视角 A new perspective on eco-architecture
建筑师们邀请植物进入不仅仅是室内庭院,还包括阳台、走廊和屋顶露台,尤其是在最阳光充足的立面上。他们设计这些元素,既能在夏季阻挡过多的热量,又能在冬季让自然光充分渗透到建筑内部。
The architects invited vegetation not only into the internal courtyards but also onto the balconies, loggias, and roof terraces, primarily along the most sun-drenched elevations. They designed these elements to shield the interiors from excessive heat in the summer, while allowing natural light to permeate the entire building in winter.
▼玻璃连廊,glass loggias

▼从走廊天窗仰望建筑,look up to the building from the loggia skylight

▼走廊天窗,the loggia skylight

在露台和屋顶的边缘放置了花盆,这些区域特别容易过热,花盆中的湿润基质有助于在外立面上创造一个宜人的微气候。设计师还在阴影区域营造了微气候,通过可操作的窗户促进室内自然通风。
Planters have been placed on the edges of terraces and roofs, areas particularly prone to overheating, where their moist substrate helps create a pleasant microclimate along the facade. The designers also cultivated a microclimate in shaded zones, promoting natural ventilation of the interiors through operable windows.
▼露台营造宜人微气候,create a pleasant microclimate along the facade


▼在阴影区域营造了微气候,a microclimate in shaded zones


▼纵深阳台和露台,Projecting, longitudinal balconies and terraces


多样的立面、露台和多层公园也同时成为了非正式会议和活动的场所,从而创造了适合工作和放松的空间。所有这些特点使得Office House 在2024年10月荣获绿色建筑奖的可持续建筑项目类别奖项。
The varied elevations, terraces, and multi-level park double as venues for informal meetings and events, thus creating spaces conducive to both work and relaxation. All this was recognized by the Green Building Awards jury, which recognized Office House in October 2024 in the Sustainable Building Project category.
▼多样的立面,The varied elevations

触感宜人的墙面 Wall surfaces pleasant to the touch
建筑内部的设计考虑到了全年用户舒适性,提升了其功能性办公室空间的价值。建筑师巧妙利用H形楼层平面图,创造了多样化的差异化空间。精心设计的外立面让植物成为办公室内部的一部分,始终作为背景存在。
The building’s interiors were designed for year-round user comfort, elevating them beyond mere functional office space. Leveraging the building’s H-shaped floor plan, the architects crafted a variety of differentiated spaces. A well-considered facade allows vegetation to form a constant backdrop for the office interiors.
▼精心设计的外立面,A well-considered facade


▼“蘑菇”柱子,”mushroom” columns

室内空间提供了多样的视野——可以看到繁忙的街道、露台或公园宁静的角落,赋予了这些空间独特的个性,并营造出一种家的氛围。木材、光滑的混凝土和浅米色的水磨石等触感材料,创造了一个适宜工作的氛围。地板采用温暖的米色和深红色砖块,唤起了自然材料的感觉。
The interiors offer diverse views – onto bustling streets, terraces, or tranquil corners of the park, lending them a unique character and fostering the aura of a home. Tactile materials, such as wood, “satin-finish” concrete, and light-beige terrazzo, cultivate an atmosphere pleasant for work. The flooring, finished in shades of warm beige and burgundy brick, evokes natural materials.Two separate ground-floor entrances lead to a lobby resembling a canopied urban plaza, while the open courtyard space and orangery create a buffer between the street and the interior. Guests are welcomed in the entry zone by a two-level lobby with a mezzanine, finished in wood, glass, and concrete with diverse textures, taking the form of undulating cladding on the elevator cores or as polished, warm, light terrazzo prefabricates.
▼室内大堂,interior lobby

▼共享区域,shared space


▼创造了适宜工作的氛围,cultivate an atmosphere pleasant for work


▼开阔的共享空间,spacious shared space


▼木材与植被的组合,the combination of wood and vegetation


▼夹层空间,mezzanine level space

▼上层办公区域,the office area on the upper level


▼上层办公区域,the office area on the upper level


圆柱:正面与负面 The column: positive and negative
Office House的设计灵感来源于波兰文学之家的建筑和历史,这是战后波兰最大的印刷厂。JEMS建筑师引入了圆形图案,灵感来Dom Słowa独特的天窗,这成为了整个设计理念的主旋律。多层公园中的凉亭具有圆形开口,允许光线自由流通。
The design for Office House drew inspiration from both the architecture and the history of the Dom Słowa Polskiego [House of the Polish Word], which was the largest printing plant in post-war Poland. JEMS architects introduced a circular motif, inspired by the distinctive skylights of the Dom Słowa, which became the leitmotif for the entire concept. The pergola in the multi-level park features circular openings, permitting the free flow of light.
▼天窗引入圆形图案,the skylight introduced a circular motif


▼创造出引人入胜的光影变化,create an intriguing play of light and shadow


▼电梯厅及旋转楼梯细部,the lift hall and the spiral staircase detail


▼植被细部,vegetation detail


Dom Słowa特有的“蘑菇”柱子启发了新柱子的设计;圆柱及其负面形态——垂直排列的圆形开口——突出了建筑的关键构图节点,如入口和花园的中心焦点。JEMS的设计为不断变化的办公环境提供了全新的视角,环境友好的解决方案得到了有机的引入,功能性与员工福祉以及环保管理和谐融合。
The distinctive “mushroom” columns of the Dom Słowa inspired the design of new columns; the motif of the column and its negative, a vertical sequence of circular openings, accentuates key compositional points, such as the entrances or the garden’s central focus. The JEMS design offers a new perspective on the evolving office landscape. Environmentally-friendly solutions are introduced organically, harmoniously blending functionality and employee wellbeing with environmental stewardship.
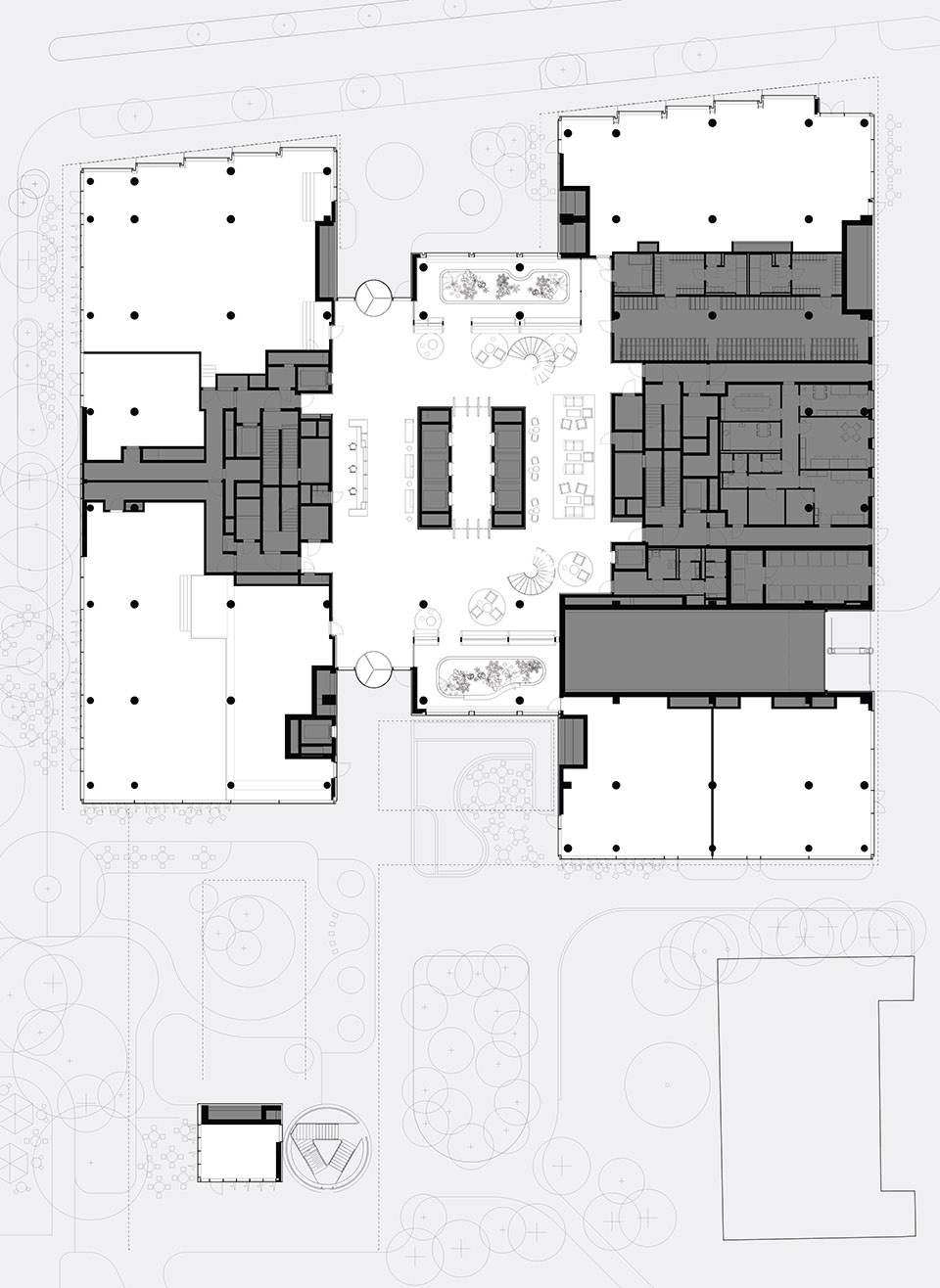
▼一层平面,ground floor plan

▼二层平面,first floor plan

▼六层平面,sixth floor plan

▼剖面图,section

Project name: Towarowa 22 – Office House Phase B
Year 2022–2025
Design authors: JEMS Architekci
Design Team: Agata Drochlińska, Olek Gadomski, Agnieszka Gajewska, Paweł Gozdyra, Paweł Majkusiak, Piotr Prokopowicz, Maciej Rydz, Nadia Sajjad, Anna Świderska
Industries:
Facades: Hulewicz Consulting
structure, plumbing & HVAC, electrical systems: TEQUM
Vegetation: Pracownia Architektury Krajobrazu Marta Tomasiak
Investor: AFI Europe, Echo Investment














