蜜多商店东郊记忆店,四川 / 超大建筑XL Architects
XL Architects 受邀为蜜多商店打造其位于成都东郊记忆的零售空间,设计过程就是一场探索年轻品牌与老工业园区之间有意思的空间对话。蜜多商店是于2019年创立于成都的售卖精品文具及装饰画的文创杂货品牌, 致力于用设计力量打造温暖治愈的“书桌美学”。东郊记忆则是原国营红光电子管厂,如今被改造为集合音乐、 美术、戏剧、摄影等文化形态的工业遗址主题旅游地。蜜多商店的场地则位于这座横跨中央大道的历史建筑一楼楼梯间内。
XL Architects was commissioned to design the retail space for Melooo at Chengdu East Suburb Memory. The design process became an engaging spatial dialogue between a young brand and a historic industrial park. Melooo, a cultural and creative lifestyle brand established in Chengdu in 2019, specializes in boutique stationery and decorative art, dedicated to crafting a warm and healing “desk aesthetics” through thoughtful design. East Suburb Memory, formerly the state-owned Hongguang Electron Tube Factory, has been transformed into an industrial heritage tourism destination that blends music, fine arts, theater, photography, and other cultural experiences. The site of Melooo is situated within the stairwell on the first floor of a historic building that spans Central Avenue.
▼项目概览,Overview of the project


▼商店开业给历史建筑带来了新的活力,The opening of Melooo has brought new life to historic building

楼梯间里造房子: 双门头 大高差Building a house inside a stairwell: Double entrances and Significant height difference
场地原本是这栋历史建筑临街的一个开敞楼梯间。准确来说,蜜多商店的使用空间是被夹在楼梯下方和几个 大柱子之间的缝隙里的,有面朝两条街道的双门头展面和被大楼梯挤压出层高急剧变化的室内空间。
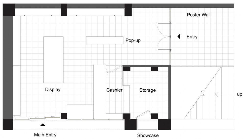
▼场地分析图,Site analysis

▼原始场地,The original site

The site was originally an open stairwell along the street front of this historic building. To be precise, the usable space of Melooo is confined within the space beneath the staircase and between several large columns. It features a double-frontage display facing two streets, along with an interior space where the soaring volume of the grand staircase creates dramatic variations in ceiling height.
▼门店与原始大柱子的关系,The relationship between the store & columns

点线面搭建双门头Construct a Double-Storefront Through Points, Lines, and Planes
在双门头的设计中XL Architects 希望用一种轻盈却同样有结构感的方式来对话这座工业建筑本身厚重的混凝土梁柱体系。通过将不锈钢冲孔板,金属圆管和金属卡扣以点线面穿插的方式搭建双门头,既能有XYZ 轴的多向支撑, 又能灵活的调整横竖比例以及logo 的点位,创造出一种这里始终在建设的工业感。
▼手绘草图,Design sketch

In the design of the double storefront, XL Architects sought to establish a dialogue with the industrial building’s robust concrete beam-and-column structure through a lightweight yet structurally expressive approach. By assembling the facade using stainless steel perforated panels, metal tubes, and fasteners—interwoven as points, lines, and planes—the design achieves: Multi-directional stability (X/Y/Z-axis support); Flexible proportion adjustments for both horizontal and vertical elements; and flexible logo placement. This design strategy creates an ever-evolving industrial aesthetic, evoking the sensation that the structure is perpetually under construction.
▼正门门头,Main store front

▼侧面门头细节,Main store front

▼正门不锈钢冲孔板细节,Details of main entrance


永不过时的橱窗体验A Timeless Window Display Experience
利用老建筑巨大立柱之间的狭窄空间打造出一方既现代又复古的橱窗,供人细细观赏蜜多的书桌美学。
We’ve crafted a modern-yet-classic showcase within the narrow space between the historic building’s massive columns – an intimate space to appreciate Melooo’s desk aesthetics.
▼百变橱窗,Windows display


建筑 与VI 设计有机结合The organic integration of architecture and Visual Identity design
VI( 视觉系统)设计在当下的商业世界里有时起到更加直接地触达消费者的作用, 一个优秀的 logo 设计可能会立马让消费者记住这个品牌,产生一次强连接。蜜多的创始人迪哥是一位资深的平面设计师, 由迪哥设计的logo巧妙地呼应着建筑改造中“点线面” “悬挂”“透气”等元素,让蜜多商店以一种统一的, 轻盈的,谦逊的设计语言对话原始建筑。
In today’s commercial landscape, VI design sometimes plays a more direct role in connecting with customers. An outstanding logo design can instantly make a brand memorable, creating a powerful bond with the audience. The founder of Melooo, Di, is a seasoned graphic designer. The logo he designed interestingly echoes key elements of the architectural transformation—such as “points, lines, and planes,” “suspension,” and “breathability”—allowing Melooo to engage with the original building through a unified, lightweight, and humble design language.
▼轻盈的logo设计,Logo design

▼侧墙的logo,Logo on the side wall

善用高差 新旧融合“Mastering Height Differences: Blending Old and New”
大楼梯为室内空间制造出戏剧性的高差变化,XL Architects巧妙的利用高差变化,合理布局陈列与收银区域; 新旧融合,在这个工业感十足的老建筑里, 打造出轻松适宜 温暖治愈的室内空间。
The grand staircase introduces a dramatic height variation, which XL Architects use to thoughtfully arrange display and cashier areas. Blending industrial heritage with modern comfort, they created a relaxed, warm, and inviting interior space.
▼室内陈列区,Display area


▼收银台,Casher area

▼室内货架,Display shelf
▼丰富的商品,Abundant items
▼平面图,plan















